Расход материалов Пенетрон | ГК Омега
Система материалов Пенетрон состоит из:
– шести «главных» средств: Пенетрон, Пенекрит, Пенебар, Пенетрон Адмикс, Пенеплаг и Ватерплаг;
– материалов для восстановления поврежденных бетонных поверхностей: Скрепа М500, Скрепа М600, Скрепа М700 и Скрепа 2К;
– инъекционных смол: ПенеСплитСил и ПенеПурФом, а также их разновидностей и катализаторов.
Практически всегда для качественного выполнения работ по гидроизоляции необходимо использовать не один тип материала, а несколько. Специально для того, чтобы быстро просчитать необходимое количество того или иного материала ниже приведен расход всех материалов Пенетрон, а также указаны некоторые особенности работы с ними.
Пенетрон – основополагающий, редко использующийся самостоятельно, материал в линейке средств Пенетрон. Назначение – проникающая гидроизоляция бетонных поверхностей. Также используется в качестве грунтующего состава при работе с другими материалами Пенетрон.![]()
Расход Пенетрона при нанесении в два слоя в среднем составляет 1 кг сухой смеси на 1 кв.м.
Если поверхность плохо увлажнена, неоднородная, с кавернами и выбоинами – расход увеличивается до 1,1 кг/кв.м. На структурно ровной и хорошо пропитанной водой поверхности расход уменьшается до 0,8 кг/кв.м.
Например, для обработки поверхности площадью 25 кв.м потребуется 25 кг сухой смеси Пенетрон.
При сознательном снижении расхода существенно снижается эффективность материала. Это связано с принципами работы материала: проникновение активной химической составляющей возможно только в случае возникновения разницы химических потенциалов на поверхности и внутри тела бетона обрабатываемых участков. Следовательно, чем меньше химии будет находиться на поверхности, тем слабее будет происходить процесс пенетрации.
Пенекрит – материал для изоляции швов, стыков и примыканий. Перед использованием Пенекрита обрабатываемый участок обязательно расширяется с помощью УШМ и отбойных молотков до состояния П-образной штробы с размерами 25х25 мм. При таком сечении штробы расход материала составляет в среднем 1,8 кг/п.м. Расход пропорционально изменяется в большую или меньшую сторону в зависимости от размера штробы. Минимально допустимый размер штробы, заполнение Пенекритом которой будет эффетивно, составляет 20х20 мм.
Пенебар – достаточно простой в использовании материал. Жгут размещается в области рабочего шва бетонирования на этапе строительства и ОБЯЗАТЕЛЬНО фиксируется сеткой и дюбелями. Следует избегать контакта Пенебара с арматурой конструкции. Немаловажный момент: жгут должен располагаться не ближе 5 см от крайних точек в конструкции.
Нельзя выкручивать, разрезать вдоль длины и снимать уже установленный жгут.
Пенеплаг, Ватерплаг – материалы быстрого реагирования.
 Основное их назначение – мгновенное устранение течей. Материалы быстро застывают, поэтому замешивать необходимо то количество, которое может быть выработано за время жизни смеси: Пенеплаг схватывается за 40 секунд, Ватерплаг – за 3 минуты.
Расход Ватерплага и Пенеплага составляет 1,9 кг сухой смеси на 1 куб.дм объема готовой смеси.
Пенетрон Адмикс – гидроизолирующая добавка в бетон. Вводится в бетон в виде водного раствора (пропорции водного состава приведены в Технологическом Регламенте). Причина, по которой нельзя всыпать Пенетрон Адмикс в сухом виде, описана в статье «Почему материалы Пенетрон не всегда эффективны?»
В ситуациях, когда точный рецепт бетонной смеси неизвестен, добавка вводится в количестве 4 кг на 1 куб.м. бетона.
Если рецептура бетона известна, расчетное количество добавления материала Пенетрон Адмикс составляет 1% от сухой массы цемента.
Например:
1 куб.м бетона марки М350 содержит, в зависимости от марки цемента, от 350 до 420 кг цемента; 1% составит 3,5-4,2 кг, следовательно, потребность в добавке составляет 3,5-4,2 кг/куб.
 м.
Скрепа М500 Ремонтная, Скрепа М700 Конструкционная – сухие строительные ремонтные объемно-восстановительные конструкционные смеси. Скрепа М500 и Скрепа М700 похожи по своим характеристикам и применяются для восстановления разрушенных участков бетона. Расход у этих материалов составляет 1,8 кг/кв.м при толщине слоя в 1 мм. Эффективная толщина слоя составляет 10-15 мм.
Скрепа М600
В зависимости от консистенции раствора, расход сухой смеси меняется от 1,5 до 1,7 кг на 1 куб.дм готового раствора.
Скрепа 2К – эластичная двухкомпонентная цементная мембрана, предназначена для обмазочной гидроизоляции любых, а не только цементосодержащих, поверхностей.
 Расход готовой смеси составляет 4-4,5 кг/кв.м в зависимости от структуры обрабатываемой поверхности.
ПенеСплитСил, ПенеПурФом – инъекционные материалы. Расход материалов рассчитывается в зависимости от объема полости и плотности обрабатываемой поверхности.
Расход на каждом объекте индивидуален и устанавливается опытным путем, методом пробной прокачки тестовых участков.
В случае несоблюдения технологии выполнения, расход может увеличиться. Внимательно ознакомьтесь с инструкцией по использованию материалов перед началом гидроизоляционных работ.
Техническая характеристика системы Пенетрон | Пенетрон
Современные строительные технологии давно и успешно применяют материалы системы Пенетрон в гидроизоляции бетонных и железобетонных конструкций. Эффективность гидроизоляции обеспечивает интегральная капиллярная система материалов Пенетрон.
ОБЩАЯ ХАРАКТЕРИСТИКА:
Система Пенетрон включает в себя 6 материалов – Пенетрон, Пенетрон Адмикс, Пенекрит, Пенеплаг, Ватерплаг, Пенебар — каждый из которых решает специализированные, четко очерченные задачи как в области гидроизоляции, так и в защите бетонных конструкций (монолитных и сборных): от агрессивного воздействия внешней среды до максимальной водонепроницаемости бетонных сооружений и конструкций.
Так, гидроизоляционный материал Пенекрит специализируется в шовных работах – для гидроизоляции швов, трещин, сопряжений, стыков, примыканий и проч. Пенекрит рекомендуется использовать в сочетании с материалом Пенетрон. Гидроизоляционные материалы Ватерплаг и Пенеплаг применяют для устранения напорных течей.
НАЗНАЧЕНИЕ:
Способность материалов системы Пенетрон проникать в структуру бетона на глубину порядка 30-40 см позволяет использовать Пенетрон для гидроизоляции всей толщи бетонной конструкции. Таким образом, Пенетрон максимально устраняет фильтрацию воды сквозь тело бетона, повышая его водонепроницаемость, обеспечивает морозостойкость и прочность бетона, одновременно является эффективной защитой от неблагоприятного воздействия факторов окружающей среды, в частности, грунтовых и сточных вод, морской воды, различных кислот и т.п.
ОПИСАНИЕ:
Материалы системы Пенетрон представляют собой сухую строительную смесь, в состав которой входит портландцемент, кварцевый песок особого гранулометрического состава, а также химически активные компоненты.
ПОДГОТОВКА БЕТОННОЙ ПОВЕРХНОСТИ:
Для максимально эффективного проникновения Пенетрона в глубь бетона его поверхность необходимо тщательно очистить от грязи, пыли, торкрета, штукатурки, цементного молока, краски, плитки, нефтепродуктов, высолов и подобных веществ и материалов, препятствующих действию химически активных компонентов материалов Пенетрон. Бетонную поверхность очищают разными способами в зависимости от степени загрязнения поверхности: это может быть механический способ с применением жесткой щетки с металлическим ворсом или водоструйная установка с высоким давлением. Гладкие или шлифованные поверхности рекомендуется обрабатывать слабым раствором уксусной кислоты и смывать его через час.
Внимание! Перед тем, как нанести Пенетрон, бетон необходимо максимально пропитать водой на всю глубину, которую позволит рабочая поверхность.
ПРИГОТОВЛЕНИЕ РАСТВОРА:
При приготовлении раствора помните, что воду вливают в сухую смесь, но не наоборот! Сухую смесь Пенетрон смешивают с водой в следующих пропорциях: 1) вода (400 граммов) – Пенетрон (1 кг) или 2) соотношение воды к смеси Пенетрона равно 1:2, т.
 е. 1 часть воды к 2 частям Пенетрона по объему.
Смешивание осуществляется либо вручную, либо с помощью низкооборотной электрической дрели. Готовый к употреблению раствор по консистенции напоминает жидкую сметану. Необходимо учитывать, что спустя полчаса после приготовления гидроизоляционные качества раствора теряются, поэтому предварительно рассчитайте то количество раствора, которое вы непосредственно будете использовать сразу же поле смешивания. При нанесении раствора на рабочую поверхность его постоянно помешивают. Категорически не допускается повторное добавление воды в готовый раствор.
Гидроизоляция «Пенетрон»: характеристики, применение и расход
Фундамент — основа любого здания. Поэтому, чтобы Ваш дом или офис простоял без ремонта и разрушений долгие годы, нужно позаботиться о защите фундамента от различных факторов, которые могут повлиять на прочность и характеристики материала. Одним из подобных способов защиты является качественная гидроизоляция помещений.
 В данной статье мы расскажем о гидроизоляционной смеси «Пенетрон», её характеристиках, видах, преимуществах и недостатках.
Влияние воды на износ бетона
Любой объект подвержен старению и деформации. Различные факторы ускоряют процесс изнашивания строительных конструкций, одним из самых пагубных и малозаметных является действие влаги.
Условно выделяют две группы типов воздействия по времени:
- временное;
 - постоянное.
 
Временное проявляется в аварийных ситуациях, например, в прорыве коммуникаций или затоплении при сильных проливных дождях.
К постоянным относят влияние грунтовых вод или грунтовой влаги. Постоянное воздействие менее заметное и более опасное. Происходит постепенное разрушение конструкции, вред наносится ежедневно, ежечасно, ежеминутно. Даже сейчас, когда Вы читаете этот текст, сидя на работе или дома, в своем гараже или на даче, грунтовые воды повреждают фундамент, разрушая его, появляются трещины и разломы.
Чтобы избежать разрушения здания, применяют различные материалы, защищающие бетон от проникновения жидкостей.
Гидроизоляционная смесь
«Пенетрон»История компании «Пенетрон» началась в конце 70-х годов прошлого века. За это время было разработано множество гидроизоляционных материалов: различные сухие смеси, гидроизоляционные жгуты, инъекционные составы и т.д.
Сегодня речь пойдет об одноименной сухой гидроизоляционной строительной смеси фирмы «Пенетрон».
Характеристики и свойства
«Пенетрон»Смесь «Пенетрон» обладает проникающим свойством, это значит, что вещество проникает в толщу бетона, образуя микроскопические кристаллы, которые препятствуют попаданию воды в бетон, заполняя трещины, при этом структура этих кристаллов не ограничивает конструкцию в возможности «дышать». Подобные свойства могут показаться спорными, ведь как может проникать одно и не проникать другое? Все просто.
 Обратимся к школьному курсу химии и вспомним о поверхностном натяжении жидкости, благодаря которому вода стремится принять наиболее удачную форму для меньшего соприкосновения с объектами. В качестве примера можно привести капли росы на траве. Вокруг капли образуется мембрана, сохраняющая форму и не позволяющая содержимому растекаться. С этим свойством и работает «Пенетрон».
В состав сухой проникающей капиллярной смеси «Пенетрон» входит цемент, гранулированный кварцевый песок и активные химические добавки, которые и делают материал столь функциональным.
Преимущества состава
«Пенетрон»- Пенетрон
 
Способность внедрения вглубь бетона выгодно выделяет проникающий состав «Пенетрон» на фоне материалов, которые образуют лишь поверхностный защитный слой.
Другой заметный плюс — простота при нанесении. Рекомендуется наносить на влажные поверхности, чем больше влаги, тем быстрее произойдут химические реакции и приведут в действие активные вещества, содержащиеся в смеси.
 При повторном повышении влажности кристаллы увеличиваются в размерах, каждый раз реагируя на изменения среды. Подобный подход позволяет давать гарантию защиты более 30 лет, некоторые специалисты утверждают, что здание обработанное «Пенетрон» не будет нуждаться в ремонте около 50 лет!
Недостатки
«Пенетрон»В качестве минусов товаров «Пенетрон» указывают цену и наличие более дешевых аналогов на рынке. Здесь нет однозначного ответа, так как при более высокой цене «Пенетрон» дает и длительную гарантию, это не значит, что все аналоги хуже и только копируют «Пенетрон», не принося ничего нового в состав. При подборе нужного материала посоветуйтесь со специалистом в данной области, который сможет объяснить Вам разницу между фирмами и их продукцией и посоветует товар наиболее соответствующий Вашим потребностям.
Расход
«Пенетрон» на 1 м2Расход может составлять от 0,8 до 1,1 кг/м².
  Важно, чтобы при нанесении материала температура конструкции не опускалась ниже +5 С°, но и не превышала +35 С°.
Гидроизоляционные материалы
«Пенетрон»Существует множество материалов компании «Пенетрон», которые имеют отличительные черты и используются в совокупности с другими составами и смесями либо отдельно.
Гидроизоляционных жгут
«Пенебар»«Пенебар» — гибкий гидроизоляционный жгут, который применяют для гидроизоляции трещин, вводов коммуникаций, швов и т.д. Особенность действия данного жгута в том, что он разбухает под действием влаги, увеличиваясь в размерах до 300% (!) в ограниченном пространстве, не теряя эластичности. Достоинствами является отсутствие привязки ко времени года в работе с ним, а также долговечность и стойкость к перепадам температуры.
Гидроизоляционная добавка в бетон
«Пенетрон Адмикс»Смесь «Пенетрон Адмикс» относится к сухим гидроизоляционным смесям «Пенетрон», её добавляют непосредственно в бетон на стадии его приготовления.
 Отметим, что в сухом виде данный материал добавлять нельзя, только смешанным с водой в пропорции 1 кг смеси на 600-700 мл воды. Добавка к бетону не должна превышать 1% от массы всего бетона.
Основная задача «Пенетрон Адмикс» состоит в обеспечении водонепроницаемости железобетонных конструкций и изделий еще на стадии их производства. Помимо защиты от воды данная добавка защищает материалы от агрессивных веществ и соединений, которые наносят вред на постоянной или временной основе: соленая морская вода, сточные воды, химические кислотные соединения.
Сухая мелкозернистая смесь «Пенекрит»
Применяется для гидроизоляции швов, вводов коммуникаций, различных стыков, а также для обработки неподвижных швов.
Перед применением данную смесь разводят с водой, соотношение материала к воде 5:1. После этого вдоль проблемной зоны (трещины, шва и др.) с помощью соответствующих инструментов выполняется канавка или штраба, затем эту штрабу заполняют материалом в несколько слоев, обрабатывая поверхность вокруг специальным раствором.
 При размере штрабы 25х25 мм будет расходоваться примерно 1,5 кг/м.п. материала, от размеров «канавки» зависит и расход материала.
Одним из главных плюсов этого материала является безопасность, что позволяет применять его, например, при гидроизоляции хозяйственных конструкций, предназначенным для хранения питьевой или хозяйственной воды.
Смесь для мгновенной ликвидации напорных течей
«Пенеплаг»«Пенеплаг» настоящий спаситель в случае аварийной протечки, этот материал способен долго не размываться водой и схватывается в течение 1 минуты. Перед нанесением течь обрабатывается по тому же принципу, по которому обрабатывают больной зуб перед пломбой: отверстие расширяют, очищают, придают ему нужную форму. «Пенеплаг» представляет собой сухую смесь, которую необходимо смешать с водой в соотношении 4:1, получившаяся густая масса затвердевает очень быстро, поэтому ее рекомендуется использовать в течение 30 секунд.
  Расход «Пенеплаг» составляет 1,9 кг/дм³. При контакте с водой материал расширяется, поэтому необходимо обеспечивать увлажнение в течение трех суток с момента нанесения.
Сухая смесь для быстрой ликвидации напорных течей
«Ватерплаг»По многим показателям «Ватерплаг» схож с «Пенеплаг», но имеются и важные отличия. «Пенеплаг» это смесь для мгновенной ликвидации течи, (время затвердевания около минуты) а «Ватерплаг» для быстрой (время затвердевания около трех минут). У обоих материалов совпадают пропорции смешивания с водой, средний расход, а также необходимость использования в первые 30 секунд. Благодаря особенностям состава «Ватерплаг» можно использовать при гидроизоляции конструкций и поверхностей, связанных с хранением или подачей питьевой или хозяйственной воды. Подобным свойством обладают те же «Пенекрит» или «Пенетрон», но у них нет достаточной скорости схватывания, составы просто вымываются напорными течами, не успевая затвердеть.
 Их используют для обработки поверхности уже после ликвидации активной течи.
Система
«ПениБанд»Система «ПениБанд» состоит из двух материалов, которые получают хвалебные отзывы среди продуктов «Пенетрон» благодаря высокому уровню сцепления с различными поверхностями (пластик, бетон, металлу) и эластичности:
- эластичная лента «ПениБанд»;
 - клей «ПениПокси».
 
Основная задача «ПениБанд» заключается в герметизации самых уязвимых компонентов конструкции — швов и трещин. Перед гидроизоляцией бетонной конструкции ее необходимо подготовить, убрав различного рода неровности, нельзя накладывать материал на разрушенные участки бетона. При использовании ленты «ПениБанд» под нее не должны попадать посторонние предметы, чтобы обеспечить наиболее плотное соприкосновение. Несоблюдение правил может привести к негативному эффекту, поэтому перед работой нужно внимательно ознакомиться с инструкцией по применению, которая есть на упаковке или в интернете (воспользуйтесь официальным сайтом «Пенетрон» или сайтами официальных представителей в России).
инструкция по применению и расход на 1 м2 проникающего состава производства России, отзывы
С течением времени при эксплуатации зданий и сооружений их поверхности, выполненные из железобетона, неизбежно подвергаются воздействию температурных колебаний и атмосферных осадков. Даже самый качественный бетон или кирпич не сможет устоять под воздействием воды и постепенно начинает разрушаться, что ведет к уменьшению запаса прочности конструкций, выполненных из этих материалов. Учитывая это обстоятельство, бетонные и кирпичные поверхности требуют тщательной гидроизоляции. Наиболее эффективным методом защиты бетонных поверхностей считается метод проникающей гидроизоляции или, как его еще называют, «пенетрирование». Новаторами такой методики около 70 лет назад стали датчане, и только спустя годы, перенимая опыт зарубежных специалистов, в России появились подобные влагозащитные смеси.
В состав такого гидроизоляционного продукта традиционно входит портландцемент и полимерные или минеральные компоненты, добавляемые в определенных пропорциях.
Технические характеристики
Первый пенетрирующий состав, выпускаемый в Дании, назывался Vandex. Позднее технологию освоила канадская производственная компания и стала выпускать аналогичный продукт под названием Xypex. Далее изобретение переняли испанцы и стали производить состав под названием Drizoro. А немного позже проникающая гидроизоляция стала производиться и в Америке под названием Penetron– наименование марки было выбрано таким же, как назывался и завод, выпускающий этот продукт.
 Профессионалы, которые специализируются на гидроизоляционных работах, считают, что Penetron американского производства является самым качественным товаром, но если сравнивать любой другой его аналог, продукт из Америки стоит намного дороже.
В нашей стране использование «Пенетрона» началось с 1984 года. На территории Российской Федерации существует Группа Компаний «Пенетрон-Россия», представляющая американский товар на российском строительном рынке в сегменте гидроизоляционных продуктов. В 2004 году начал свою работу первый завод в Екатеринбурге, специализирующийся по выпуску сухих смесей марки «Пенетрон». Завод входит в состав Группы Компаний «Пенетрон-Россия», которая, помимо производства и сбыта, внесла свой вклад и при создании единого стандарта качества данного товара в России, благодаря чему с 01.04.2016 был принят ГОСТ Р 56703-2015, регламентирующий качество гидроизоляционной смеси.
Система проникающей гидроизоляции марки «Пенетрон» подразумевает использование таких дополнительных материалов, как «Пенекрит», «Пенеплаг», «Пенетрон Адмикс», «Пенебар» и «Ватерплаг».
Все эти продукты применимы при работе с монолитными либо сборными конструкциями из бетона.
- Продукт «Пенетрон» выпускается как сухая смесь, в составе которой задействован определенной марки портландцемент, кварц в мелкодисперсной фракции в виде песка, а также запатентованная химическая добавка, состав которой не разглашается. Пропитка из «Пенетрона» является материалом, обладающим способностью к глубокому проникновению во внутренние слои обрабатываемой бетонной поверхности для защиты ее от капиллярного проникновения влаги.
 - Продукт «Пенекрит» – это сухая смесь для осуществления шовной изоляции стыков бетонных деталей от воздействия влаги и воды. Материал применяют с целью исключения капельных протечек и фильтрации воды через микротрещины бетона.
 
- Продукт «Пенебар» – защищает от влаги швы, стыковочные поверхности сооружений, места ввода/вывода коммуникационных систем, а также локальные точки сопряжений и примыкающих поверхностей в строительных конструкциях.

 - Продукт «Пенетрон Адмикс» – специализированная добавка, которая предназначена для добавления в бетонные смеси с целью усиления прочности бетона к влаге и воздействию низких температур.
 
- Продукт «Пенеплаг» – уникальный материал, который способен в кратчайший срок остановить фонтанирующую течь даже под определенным напором воды. Проведение работ допустимо даже в водной среде.
 - Продукт «Ватерплаг» – сходен по действию с «Пенеплагом» и способен устранить фонтанирующую протечку под напором воды, но немного уступает ему в скорости действия.
 
Ввиду большой популярности марку «Пенетрон» активно подделывают, выдавая низкопробный продукт за качественный материал.
 Поэтому тару для готовой смеси в Россию поставляют из Америки. Ранее смеси «Пенетрон» упаковывались в белые ведра, но с недавнего времени цвет ведер стал синим, а герметичные крышки – оранжевыми. Герметичность тары позволяет увеличивать срок хранения продукта до 18 месяцев с даты его выпуска, в то время как обычные смеси, расфасованные в крафт-мешках, имеют срок годности не более 6 месяцев.
Гидроизоляционные проникающие материалы «Пенетрон», «Ватерплаг» и «Пенекрит» имеют фасовку кратную 5, 10 и 25 килограммам, а смеси «Пенетрон Адмикс» и «Пенеплаг» фасуют кратно 4, 8 и 25 килограммам. Наиболее часто востребованная фасовка смеси составляет 25 кг.
Область применения
Технология использования для бетона продукта марки «Пенетрон» позволяет заполнять трещины, имеющиеся на поверхности, глубиной 30-40 сантиметров и шириной до 4 миллиметров.
 При необходимости материал можно использовать путем нанесения его на поверхность в два слоя.
Применение проникающей гидроизоляции целесообразно применять в следующих случаях:
- для изоляции стен, пола и потолка в помещениях с повышенным уровнем влажности – душевые и ванные комнаты, санитарные блоки различного назначения;
 - при отделочных работах внутренних поверхностей подвала и цокольного этажа здания;
 - для гидроизоляции фундамента, сооруженного для больших резервуаров с водой – например, для бассейна;
 - для защиты бетонного фундамента от разрушающего действия влажной среды;
 - для защиты бетонных конструкций, которые находятся под постоянным воздействием пресных или морских вод – порт, пирс, причал, волнорезы;
 - для гидроизоляции конструкций, расположенных под землей с близким прилеганием грунтовых источников воды – подземные овощехранилища, автомобильные стоянки, метрополитены, транспортные тоннели и тому подобные сооружения;
 - для защиты несущих конструкций, расположенных над водой – мостовые арки.

 
Срок эксплуатации такой проникающей гидроизоляции в среднем составляет от 70 до 100 лет, что соответствует срокам жизненного цикла любой бетонной конструкции. Для сравнения герметик обмазочного типа способен прослужить максимум 25 лет. Материал марки «Пенетрон» не требует при нанесении специальной подготовки – работу производить можно по влажным поверхностям. Проникающая гидроизоляция защищает бетонную структуру от воздействия морской или пресной воды, пара, кислоты, щелочи, карбонатных и сульфатных компонентов, а также противостоит воздействиям нитратов и хлоридов.
Кроме того, продукт останавливает рост и размножение грибка, водорослей и различных микроорганизмов.
Плюсы и минусы
Гидроизоляционные материалы глубокого проникновения марки «Пенетрон» имеют такие основные преимущества, которые недоступны другим видам поверхностной гидроизоляции.
 
- Материал пригоден для нанесения с любой стороны конструкции – с внешней либо с внутренней.
 - Методика нанесения изоляционного материала дает возможность равномерного покрытия всей обрабатываемой площади без сколов и трещин.
 - Возраст бетонной конструкции не влияет на качество итоговых результатов гидроизоляции. Материал одинаково хорошо адгезируется к свежеизготовленным поверхностям и к бетону, который уже находится какое-то время в эксплуатации.
 - Рабочий слой гидроизоляции не требует нанесения поверх него каких-либо дополнительных защитных слоев из других материалов.
 
- Гидроизоляционная защита глубокого проникновения способна выдерживать резкие перепады температур в плюсовом и минусовом диапазонах, а также устойчива к химическим и механическим действиям.

 - Материал довольно легко наносится вручную или при помощи распылителя, при этом он безопасен для человека и окружающей его экологической среды.
 - В составе строительных конструкций нередко используется железобетон, глубокая гидроизоляция продлевает срок службы металлического каркаса как минимум в три раза.
 - Проникающую гидроизоляцию можно наносить на штукатурку, выполненную из цементно-песчаной смеси. А вот отделочные работы и покраску после нанесения изоляционного материала марки «Пенетрон» лучше всего делать спустя не менее 28 суток.
 
Отзывы о применении проникающей гидроизоляции марки «Пенетрон» в целом положительные.
Однако существует перечень поверхностей, применение для которых этого продукта является нецелесообразным:
- пенобетонные и газобетонные поверхности;
 - керамзитобетонные материалы;
 - пеномагнезитные и газомагнезитные материалы;
 - пеногипсовые, гипсовые и газогипсовые поверхности;
 - шунгизитбетонные и сланцезольные бетонные материалы;
 - пенополистирольные бетонные изделия;
 - асбоцементные материалы.

 
Использование проникающей гидроизоляции для этих материалов эффективно, но ввиду их пористости расход смеси будет неоправданно велик.
Для таких случаев экономически выгоднее использовать обмазочные виды герметиков. Кроме перечисленных поверхностей, специалисты не рекомендуют наносить материалы глубокого проникновения на поверхности, которые подвержены вибрационным нагрузкам – в этом случае слой гидроизоляции будет растрескиваться и не выполнит возложенной на него защитной функции. Например, такому влиянию подвержены опоры мостов или автотранспортных виадуков.
Подготовка поверхности
Перед тем как начать нанесение гидроизоляционной проникающей смеси на бетонные поверхности, специалисты рекомендуют провести подготовительные работы.
 
- Для оттока излишнего количества влаги потребуется сооружение небольшой канавы, куда она будет стекать и отводиться от рабочей поверхности.
 - Произвести работы по созданию так называемой гидропломбы, которая будет закрывать стыковочные соединения, трещины и прочие проблемные участки, имеющиеся на обрабатываемой поверхности.
 - Выявить те участки поверхности, где может практически или теоретически проходить влага.
 - Крошащиеся и осыпающиеся поверхности потребуют зачистки и оштукатуривания цементно-песчаной смесью. Дефекты в виде разрушений и сколов нужно восстановить при помощи использования строительной смеси, которая не даст впоследствии усадку.
 - В процессе устранения дефектов целостности покрытия заделку трещин и сколов лучше всего оставлять в шероховатом состоянии для лучшей адгезивности с гидроизоляционным материалом.
 
- Обрабатываемую поверхность в обязательном порядке зачищают ото всех биологических микроорганизмов – удалению подлежат плесень, грибок, мох, водоросли, морские моллюски.
 Такую зачистку проводят с помощью антисептиков. - Скопившиеся солевые отложения на рабочей поверхности также необходимо удалить, применяя для этой цели средство с соляной кислотой. Соли, выступающие на поверхности, ухудшают адгезивные и рабочие свойства «Пенетрона».
 - Бетонную поверхность зачищают от загрязнений, пыли, масляных пятен – делать это нужно до появления чистого пористого слоя бетона.
 - Сухую поверхность необходимо увлажнить водой так, чтобы бетон хорошо напитался влагой.
 
Проникающая гидроизоляция имеет очень хорошее сцепление с поверхностями, выполненными из бетона, а также у нее хорошая адгезивность во время изоляции кладки из обычного кирпича, обработанного цементно-песчаной штукатуркой.
 Состав одинаково хорошо работает при обработке им объекта снаружи и изнутри. Однако в процессе обустройства влагоизоляции погреба из силикатного кирпича вы можете столкнуться с тем, что гидроизоляционный состав «Пенетрон» плохо держится на гладких кирпичных стенах и буквально скатывается с нее, не образуя при этом защитный слой.
Выходом из ситуации может быть только нанесение «Пенетрона» не с помощью кисти, а при помощи шпателя, делая по нескольку проходов материалом.
Способы монтажа
Инструкция по применению гидроизоляционной смеси «Пенетрон» сообщает, что расход на 1 м2 материала составляет не более пятисот граммов.
 Материал довольно экономичен – для обработки его достаточно нанести тонким слоем. Такой расход нанесения актуален при обработке ровных поверхностей из кладки с применением кирпичей, и во время изолирования стыковых и шовных соединений. Если же наносить раствор на поверхность из бетона, то грунтовка 1 м2 потребует от 800 до 1200 граммов смеси. Толщина одного слоя готовой смеси на обрабатываемую поверхность составляет всего 1-3 миллиметра. Если для сравнения взять расход материала на мастику из битума, применяемую при проведении поверхностной влагоизоляции, то выяснится, что покрытие площади в 1 м2 потребует от одного до полутора килограммов продукта. И это только в том случае, когда толщина слоя будет не больше 1 миллиметра.
Перед началом работ порошкообразный гидроизоляционный состав «Пенетрон» нужно развести водой – для этой цели берут 400 миллилитров жидкости и 1 килограмм состава. В емкость сначала насыпают «Пенетрон» и только потом к порошку добавляют воду.
 Перемешивать состав нужно быстро и аккуратно до консистенции густой сметаны, лучше всего это делать дрелью со специальной насадкой. Дрель используйте только на малых оборотах, чтобы состав не разбрызгивался вокруг вас. Обратите внимание, что за один раз вам нужно приготовить столько рабочего материала, чтобы успеть его нанести на обрабатываемую поверхность за 30 минут. В процессе работы готовая смесь нуждается в регулярном перемешивании, чтобы вся масса сохраняла одинаковую рабочую консистенцию.
Загустевшим составом продолжать работы нельзя — вам потребуется приготовить свежую порцию материала.
На очищенную и увлажненную рабочую поверхность смесь гидроизоляции наносят в два слоя при помощи широкой кисти с ворсом из синтетических волокон. Для обработки больших площадей целесообразнее воспользоваться специальным раствороподающим насосом с распылителем.
 Первый слой материала распределяют по увлажненной поверхности, а второй слой наносят сразу же после первого – ждать пока высохнет первый слой не нужно. Лучше всего, если до начала распределения второго слоя, предыдущий слой материала будет дополнительно хорошо увлажнен. В процессе обработки нужно следить, чтобы нанесение материала было равномерным, без единого пропуска.
При нанесении материала в два слоя расход его увеличится и на 1 м2 будет составлять не менее одного килограмма. Специалисты рекомендуют стыковые соединения, трещины и различные технологические места примыканий конструкции обрабатывать специально для этого разработанным продуктом «Пенекритом».
Работая с материалом марки «Пенетрон», нужно знать некоторые нюансы.
  Например, чтобы получить хорошую влагоизоляцию между фундаментом из бетона и стенами, сооруженными из строительных материалов, имеющих большую пористость (кирпичи, древесина, ячеистые марки бетонных блоков), необходимо по горизонтали всю поверхность фундамента покрыть «Пенетроном», при этом не включая в процесс сами стены. Гидроизоляция поверхности фундамента в этом случае послужит барьером, который будет препятствовать капиллярному пропитыванию фундамента влагой от стен.
При создании пенетрирующей изоляции поверхностей, сделанных с применением каменной или кирпичной кладки, перед проведением работ нужно покрыть эти поверхности штукатурной смесью из цемента и песка, а затем уже проводить нанесение гидроизоляции «Пенетрон».
Штукатурить стеновые поверхности целесообразнее всего с применением кладочной сетки, ячейка у которой должна быть 50х50 либо 100х100 миллиметров.
 Сетку предварительно хорошо закрепляют к рабочей поверхности, оставляя зазор между ней и стеной не менее 15 миллиметров. Слой штукатурной смеси должен быть не меньше 40 миллиметров – допускается и более толстый слой. Спустя сутки после окончания штукатурных работ можно применять состав «Пенетрон» для пенетрирующей влагоизоляции.
После завершения нанесения гидроизоляции все поверхности с нанесенным на них составом «Пенетрон» на протяжении трёх суток нужно беречь от минусовых температур и механических повреждающих воздействий. Необходимо обеспечить, чтобы в эти три дня весь слой материала был в постоянно увлажненном состоянии – только так можно уберечь гидрозащитный слой от трещин при сушке. С этой целью увлажненную поверхность накрывают полиэтиленом.
После проведения гидроизоляционных работ поверхностям дают полностью просохнуть и только спустя 28-30 дней после этого можно приступать к покраске или закреплению декоративных отделочных элементов.
 Этот срок бывает и гораздо большим по продолжительности – все зависит от того, какие требования к увлажненности бетона будут у отделочных декоративных материалов, которые планируется применять для работ. До момента нанесения отделки обработанные материалом «Пенетрон» площади зачищаются металлической щеткой либо специальным приспособлением в виде водоструйного аппарата.
Видеоурок по нанесению гидроизоляции «Пенетрон» ждет вас в видео ниже.
Проникающая гидроизоляция пенетрон технические характеристики
Главная » Разное » Проникающая гидроизоляция пенетрон технические характеристикиПенетрон – Проникающая гидроизоляция – Сухая смесь для гидроизоляции бетонных поверхностей
Сухая смесь для гидроизоляции бетонных поверхностей
Описание проникающей гидроизоляции Пенетрон
ОПИСАНИЕ: Смесь сухая гидроизоляционная проникающая капиллярная W10 (повышение марки по водонепроницаемости на 3 ступени) «Пенетрон» ГОСТ Р 56703-2015. 
  | 
ПРЕИМУЩЕСТВА:
– Срок службы гидроизоляции равен сроку службы строительных конструкций;
– Повышение водонепроницаемости, морозостойкости и коррозионной стойкости бетона;
– Приобретение бетоном свойства «самозалечивания» трещин с раскрытием до 0,4 мм;
– Возможность нанесения, как при прямом, так и при обратном давлении воды;
– Не требует сушки поверхности перед нанесением;
– Сохранение паропроницаемости бетона;
– Применяется в хозяйственно-питьевом водоснабжении.
Купить материалы системы Пенетрон для гидроизоляции
в Москве (495) 660 52 00 в Екатеринбурге (343) 217 02 02
Внимание! Для гидроизоляции трещин с шириной раскрытия более 0,4 мм, швов, стыков, сопряжений, примыканий, вводов коммуникаций применяется Пенекрит в сочетании с Пенетроном.
 
Почему проникающая гидроизоляция является на сегодняшний день самым прогрессивным и технологичным методом защиты бетона от пагубного воздействия воды?
- Проникающая гидроизоляция не подвержена механическому износу, поскольку гидроизолирующими свойствами обладает сам бетон. Срок службы гидроизоляции равен сроку службы бетона, а за счет гидроизоляции бетона этот срок возрастает.
 - Использование проникающей гидроизоляции более технологично. Нет необходимости полностью просушивать бетон. Благодаря проникающим свойствам Пенетрона, бетонную конструкцию можно обрабатывать с любой стороны, иными словами при обработке фундамента нет необходимости его откапывать.
 - Проникающая гидроизоляция Пенетрон обладает уникальными свойствами самозалечивания сквозных трещин, пор и других дефектов, которые неизбежно появляются на любых бетонных конструкциях при эксплуатации, с раскрытием не более 0,5 мм.
 Если в новообразовавшиеся поры бетона начинает просачиваться вода, то возобновляется рост кристаллов. - Пенетрон дает постепенное повышение водонепроницаемости бетона до W20 (2 Мпа).
 - Пенетрон не влияет на основные физические параметры бетонной смеси: подвижность, прочность, сроки схватывания и т. д., за исключением водонепроницаемости. Обработанный Пенетроном бетон сохраняет паропроницаемость.
 
Фирменный материал Пенетрон поможет даже в тех условиях, когда другие сухие строительные смеси не справляются. Итак, как уже было отмечено в основу действия фирменного гидроизоляционного материала Пенетрон, заложен абсолютно иной принцип. Обычно гидроизоляция носит поверхностный характер. Нанося поверхностные гидроизоляционные материалы на плоскость бетона мы создаем определенный защитный слой, препятствующий проникновению воды.
Принцип действия проникающей гидроизоляции Пенетрон
При нанесении на влажный бетон жидкого раствора материала для проникающей гидроизоляции «Пенетрон» на поверхности создается высокий химический потенциал, при этом внутренняя структура бетона сохраняет низкий химический потенциал.
 Осмос стремится выровнять разницу потенциалов; возникает осмотическое давление. Благодаря наличию осмотического давления активные химические компоненты материала «Пенетрон» проникают глубоко в структуру бетона. Чем выше влажность бетонной структуры, тем эффективнее происходит процесс проникновения активных химических компонентов в глубь бетона. Этот процесс протекает как при положительном, так и при отрицательном давлении воды. Глубина проникновения активных химических компонентов материала «Пенетрон» 
сплошным фронтом достигает нескольких десятков сантиметров. 
Читать дальше>>
Уникальные свойства проникающей гидроизляцииМатериалы проникающего действия системы Пенетрон обладают рядом уникальных свойств, делающих их использование максимально простым и эффективным.
- материалы Пенетрон наносятся на влажную поверхность; предварительная сушка поверхности не требуется, что значительно снижает затраты при выполнении работ
 - технология выполнения гидроизоляционных работ с применением материалов системы Пенетрон не требует сложной, длительной и затратной процедуры подготовки поверхности
 - материалы системы Пенетрон просты в использовании
 
Читать дальше>>
Химическая стойкость бетона после применения проникающей гидроизоляцииХимическая стойкость и антикоррозионные свойства бетона после применения проникающей гидроизоляции Пенетрон.
  
Читать дальше>>
Испытания проникающего гидроизоляционного материала Пенетрон
Действие материала «Пенетрон» основано, в основном, на осмотическом давлении, реакциях в твердом состоянии и броуновском движении. Химические компоненты сухой смеси «Пенетрон», растворяясь в воде, глубоко проникают в структуру бетона и вступают в реакцию с составными частями продуктов твердения цементного камня.
Применение смеси «Пенетрон» способствует долговечности бетонных и железобетонных конструкций, так как за счет снижения проницаемости цементного камня для агрессивных сред повышается их срок эксплуатации.
Читать дальше>>
ВИДЕОИНСТРУКЦИЯ
Ссылка для скачивания видеофайла (166 Мб)
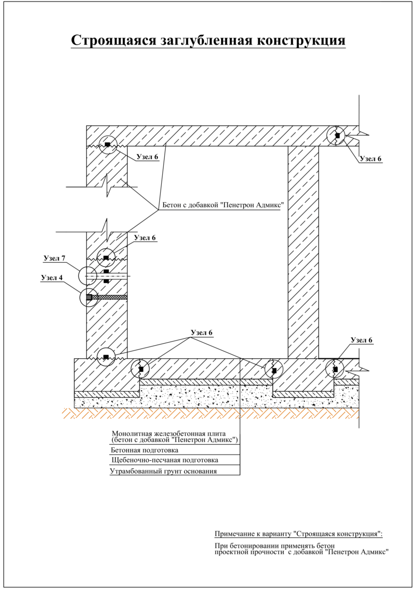
Инструкции по применению материалов ПЕНЕТРОН
Работы проводить в сухую безветренную погоду при температуре поверхности конструкции от +5 до +35 °С.
 
РАСХОД СУХОЙ СМЕСИ: 0,8 – 1,1 кг/м2 при нанесении в два слоя.
ПОДГОТОВКА ПОВЕРХНОСТИ: Очистить поверхность от загрязнений до структурно прочного бетона. Увлажнить бетон водой до максимально возможного его насыщения.
ПРИГОТОВЛЕНИЕ РАСТВОРНОЙ СМЕСИ: Использовать чистую воду и тару. Перемешать с водой в пропорции 2 л воды на 5 кг сухой смеси или 1 часть воды на 2 части сухой смеси по объему в течение 2 минут до получения жидкой сметанообразной консистенции. Использовать за 30 минут, регулярно перемешивая без добавления воды.
НАНЕСЕНИЕ: Нанести первый слой кистью или распылителем на влажный бетон, второй – на свежий, но уже схватившийся первый слой через 1 – 2 часа. Перед нанесением второго слоя поверхность увлажнить. Все статичные трещины, швы, стыки, вводы коммуникаций, сопряжения и примыкания изолировать смесью «Пенекрит». При наличии течей устранить их смесями «Пенеплаг» или «Ватерплаг».
УХОД ЗА ОБРАБОТАННОЙ ПОВЕРХНОСТЬЮ: Увлажнять и защищать поверхность от механических воздействий, отрицательных температур и осадков в течение 3-х суток. Нанесение декоративного покрытия проводить не ранее, чем через 3 суток после обработки. Перед нанесением покрытия поверхность бетона тщательно очистить механическим способом для улучшения адгезии.
МЕРЫ ПРЕДОСТОРОЖНОСТИ: Использовать перчатки резиновые, перчатки х/б, респиратор, очки защитные, спецодежду из плотной ткани, сапоги. При попадании смеси на кожу или в глаза немедленно промыть водой и обратиться к врачу.
Купить материалы системы Пенетрон для гидроизоляции
в Москве (495) 660 52 00 в Екатеринбурге (343) 217 02 02
Технические характеристики материала Пенетрон
Наименование показателя  | Требования  | Фактические значения  | Методы измерения  | 
Сухая смесь  | |||
Влажность  | не более 0,2 %  | 0,1 %  | ГОСТ 8735  | 
Наибольшая крупность зерен заполнителя  | 0,63 мм  | 0,63 мм  | |
Содержание зерен наибольшей крупности  | не более 5 %  | 1,8 %  | |
Насыпная плотность  | 1200±100 кг/м3  | 1200 кг/м3  | |
Содержание хлорид-ионов  | не более 0,1 %  | 0,002 %  | ГОСТ 5382  | 
Растворная смесь  | |||
Подвижность  | не менее Пк3  | Пк3  | ГОСТ 5802  | 
Сохраняемость первоначальной подвижности  | 30 мин  | 30 мин  | |
Водоудерживающая способность  | не менее 90 %  | 95,2 %  | |
Бетон, обработанный гидроизоляционной смесью «Пенетрон»  | |||
Повышение марки по водонепроницаемости обработанного бетона от необработанного  | не менее чем на   | 3 – 5 ступеней (до W20)  | ГОСТ 12730.  | 
Прочность на сжатие  | не приводит к снижению  | Увеличение на 5-18 %  | ГОСТ 10180  | 
Марка по морозостойкости  | не приводит к снижению марки по морозостойкости  | Увеличение на 100-200 циклов  | ГОСТ 10060  | 
Коррозионная стойкость  | не приводит к снижению  | Увеличивает (зависит от водонепроницаемости)  | ГОСТ 25246  | 
Паропроницаемость  | не ухудшает показатели паропроницаемости  | не ухудшает  | ГОСТ 25898  | 
Дополнительные характеристики  | |||
Упаковка  | Многослойные мешки (25 кг), пластиковые ведра (5, 10, 25 кг).  | ||
Условия хранения и транспортировки  | Многослойные мешки хранить в сухих помещениях, пластиковые ведра при любой влажности и температуре.  | ||
Гарантийный срок хранения  | 12 месяцев в многослойных мешках, 18 месяцев в пластиковых ведрах при условии ненарушенной герметичности заводской упаковки.  | ||
Купить материалы системы Пенетрон для гидроизоляции
в Москве (495) 660 52 00 в Екатеринбурге (343) 217 02 02
Область применения проникающей гидроизоляции Пенетрон
НАЗНАЧЕНИЕ
Используется для гидроизоляции бетонных и железобетонных конструкций за счет повышения их водонепроницаемости и приобретения бетоном свойства «самозалечивания» трещин c раскрытием до 0,4 мм.
ПРЕИМУЩЕСТВА: 
– Срок службы гидроизоляции равен сроку службы строительных конструкций;
– Повышение водонепроницаемости, морозостойкости и коррозионной стойкости бетона;
– Приобретение бетоном свойства «самозалечивания» трещин с раскрытием до 0,4 мм;
– Возможность нанесения, как при прямом, так и при обратном давлении воды;
– Не требует сушки поверхности перед нанесением;
– Сохранение паропроницаемости бетона;
– Применяется в хозяйственно-питьевом водоснабжении.
Купить материалы системы Пенетрон для гидроизоляции
в Москве (495) 660 52 00 в Екатеринбурге (343) 217 02 02
DOWNLOAD (pdf)
PENETRON
ADVANTAGES
- Becomes an integral part of the concrete, forming a complete body of strength and durability; PENETRON should not be confused with coating and membrane system’s
 - Penetrates deeply and seals concrete’s capillary tracts and shrinkage cracks
 - Can be applied from either the positive or negative side
 - Waterproofing and chemical-resistance properties remain intact even if the surface is damaged  Completely effective against high hydrostatic pressure
 - More effective overall and less costly than hydrolytic membrane or clay panel systems  Easy to apply, labor-cost effective  Increases concrete’s compressive strength  Cannot come apart at the seams, tear or be punctured
 - Does not require protection during backfilling, placement of steel or wire mesh, and other common procedures  Seals hairline and shrinkage cracks of up to 0.
 4 mm (1/64”) rather than merely masking or bridging them - Resists chemical attack (pH 3-11 constant contact, pH 2-12 intermittent contact) and provides a range of protection from freeze/thaw cycles, aggressive subsoil waters, sea water, carbonates, chlorides, sulfates and nitrates
 - Can be applied to moist or “green” concrete
 - Protects embedded steel (reinforcing steel and wire mesh)
 - Non-toxic. Approved for potable water applications. UK & International certificates available by request.
 - Zero VOC – Penetron powdered products contain zero volatile organic compounds and are safe for use both outdoors and in confined indoor spaces.
 
DESCRIPTION
PENETRON® is a surface-applied, integral crystalline waterproofing material, which waterproofs and protects concrete in-depth. It consists of Portland cement, specially treated quartz sand and a compound of active chemicals. PENETRON® needs only to be mixed with water prior to application.
 When PENETRON® is applied to a concrete surface, the active chemicals react with moisture and the by-products of cement hydration to cause a catalytic reaction which generates an insoluble, crystalline structure. These crystals fill the pores and minor shrinkage cracks in the concrete to prevent any further water ingress (even under pressure). However, PENETRON® will still allow the passage of vapor through the structure (i.e. the concrete will be able to “breathe”). Even after the concrete has cured, PENETRON® remains dormant in the concrete and will reactivate in the presence of moisture to seal capillary tracts and hairline cracks. In addition to waterproofing the structure, PENETRON® protects concrete against seawater, wastewater, aggressive ground water and many other aggressive chemical solutions. PENETRON® is approved for use in contact with potable water, and is therefore suitable for use in water storage tanks, reservoirs, water treatment plants, etc. PENETRON® is not a decorative material.
DIRECTIONS FOR USE
Surface Preparation: All concrete to be treated with PENETRON® must be clean and have an “open” capillary surface. Remove laitance, dirt, grease, etc. by means of high pressure water jetting, wet sandblasting or wire brushing. Faulty concrete in the form of cracks, honeycombing, etc. must be chased out, treated with PENETRON® and filled flush with PENECRETE MORTAR. Surfaces must be carefully pre- watered prior to the PENETRON® application. The concrete surface must be damp but with no wet sheen on the surface.
Mixing: PENETRON® is mechanically mixed with clean water to a creamy consistency or that resembling thick oil. Mix only as much material as can be used within 20 minutes and stir mixture frequently. If the mixture starts to set do not add more water, simply re-stir to restore workability.
Mixing Ratio
| Vertical Surfacesf | Horizontal Surfaces | |
| Brush Application | 5 parts Penetron to 2 parts water  | 3 parts Penetron to 1 part water  | 
| Spray Application |  5 parts Penetron to 2.   75-3.25 parts water | 
Application: Slurry consistency: Apply PENETRON® in one or two coats per specification by masonry brush or appropriate power spray equipment. When two coats are specified, apply the second coat while the first coat is still “green”
Dry powder consistency (for horizontal surface only): The specified amount of PENETRON® is distributed in powder form through a sieve or a semi-mechanical barrow spreader and troweled into the freshly placed concrete once this has reached initial set.
RECOMMENDED FOR
PENETRON® integral crystalline waterproofing can be applied to all structurally sound concrete – new or old. It may be applied to either the positive or negative sides of the concrete face.
- Typical areas of application are:
 - Basement retaining Walls
 - Underground Vaults
 - Parking Structures
 - Swimming Pools
 -  Concrete Slabs (floor/roof/balcony.
 etc - Sewage and Water treatment plants
 - Tunnels and Subway Systems
 - Channels
 - Reservoirs
 - Water Retaining Structures
 - Foundations
 - Bridges, Dams & Road
 
Application Rates:
Vertical Surfaces: Two coats of PENETRON® at 0.7-0.8 kg/m² (1.25-1.5 lb/yd²) applied by brush or spray. Please contact your Penetron Representative for alternative application methods that may be applicable to your project and help to increase production.
Horizontal Flatwork: PENETRON® at 0.7-0.8kg/m² (2 lb./yd²) applied in one slurry coat to hardened concrete. Alternatively, PENETRON® can be dry sprinkled at 1 kg/m² (1.8 lb/yd²) and trowel applied to fresh concrete when it has reached initial set.
 Construction joints: PENETRON® at 1.6 kg/m² (3 lb./yd²) applied in slurry or dry powder consistency immediately prior to placing the next lift/bay of concrete.
  
Blinding concrete: PENETRON® at 1.4 kg/m² (2.5 lb./yd²) applied in slurry or dry powder consistency immediately prior to placing the overlying concrete slab.
Post-treatment: The treated areas should be kept damp for a period of three days and must be protected against direct sun, wind and frost, by covering with polyethylene sheeting, damp burlap or similar.
Decorative materials: Allow Penetron treated surfaces to cure for 14 days before applying other Penetron products or decorative finishes. Surfaces should be mechanically cleaned (with metal brush, water jet, etc.) to provide adequate surface key for additional finishes.
SPECIAL CONSIDERATIONS: Do not apply PENETRON at temperatures below +5 degrees centigrade or to freezing or frozen surfaces. Penetron cannot be used as an additive to to concrete or plasters. (Penetron |Admix should be considered for these applications)
 PACKAGING: PENETRON® is available in 25 kg,10 kg,5 kg pails.
STORAGE/SHELF LIFE When properly stored in a dry place in unopened and undamaged original packaging, shelf life is 18 months.
SAFE HANDLING INFORMATION
PENETRON® contains cement which is alkaline. Will irritate eyes and skin and may cause skin sensitization. Wear appropriate eye, skin and breathing protection when using this product. Avoid contact with skin and eyes. In case of contact with eyes, rinse immediately with plenty of water and seek medical advice. For further information please refer to Material Safety Data Sheet
KEEP OUT OF REACH OF CHILDREN.
WARRANTY
PENETRON INTERNATIONAL, LTD. warrants that the products manufactured by it shall be free from material defects and will conform to formulation standards and contain all components in their proper proportion. Should any of the products be proven defective, the liability to PENETRON INTERNATIONAL, LTD. shall be limited to replacement of the material proven to be defective and shall in no case be liable otherwise or for incidental or consequential damages.
 PENETRON INTERNATIONAL, LTD. MAKES NO WARRANTY AS TO MERCHANTABILITY OR FITNESS FOR A PARTICULAR PURPOSE AND THIS WARRANTY IS IN LIEU OF ALL OTHER WARRANTIES EXPRESSED OR IMPLIED. User shall determine the suitability of the product for its intended use and assume all risks and liability connection therewith.
PENETRON | Кристаллическая гидроизоляция | PENETRON Total Concrete Protection
Кристаллическая гидроизоляция PENETRON
ПЕНЕТРОН – это цельный кристаллический гидроизоляционный материал, наносимый на поверхность, который используется для гидроизоляции и химической защиты как над, так и под землей.
 ПЕНЕТРОН – это цельный кристаллический гидроизоляционный материал, наносимый на поверхность, который используется для гидроизоляции и химической защиты как над, так и под землей.PENETRON наносится кистью или распылителем либо на положительную, либо на отрицательную сторону бетона и в присутствии влаги проникает глубоко в структуру. Последующая химическая реакция заполняет микротрещины, поры и капилляры нерастворимыми кристаллическими образованиями, которые предотвращают попадание воды и переносимых водой химических веществ даже при высоком гидростатическом давлении.
 PENETRON самозаживает трещины, которые образуются в течение всего срока службы бетона, что обеспечивает постоянную защиту бетона.
Как это работает
.
% PDF-1.5 % 17 0 объект > endobj xref 17 45 0000000016 00000 н. 0000001497 00000 н. 0000001560 00000 н. 0000002066 00000 н. 0000002587 00000 н. 0000003200 00000 н. 0000003363 00000 н. 0000003612 00000 н. 0000004173 00000 п. 0000004259 00000 н. 0000004610 00000 н. 0000004723 00000 н. 0000004903 00000 н. 0000006078 00000 н. 0000007216 00000 н. 0000007471 00000 н. 0000007646 00000 н. 0000008028 00000 н. 0000009220 00000 н. 0000009604 00000 н. 0000010039 00000 п. 0000010332 00000 п. 0000010709 00000 п. 0000011841 00000 п. 0000012884 00000 п. 0000014013 00000 п. 0000014183 00000 п. 0000014477 00000 п. 0000014779 00000 п. 0000014955 00000 п. 0000016088 00000 п. 0000017011 00000 п. 0000017360 00000 п.
 0000020503 00000 п. 0000020621 00000 п. 0000022373 00000 п. 0000025253 00000 п. 0000030205 00000 п. 0000034580 00000 п. 0000035134 00000 п. 0000035436 00000 п. 0000036380 00000 п. 0000036698 00000 п. 0000044482 00000 п. 0000001196 00000 н. трейлер ] / Назад 63028 >> startxref 0 %% EOF 61 0 объект > поток hb“`g“y`X, = 00k`8y: D \ {LYn \> bHI8-KIII @ 쁴 Exʎv22I (v \ rqhbb⚐Nd, mV0 :, о? Ga` Ը G9 KFL_0_
PENETRON PLUS | Кристаллическая гидроизоляция
Кристаллический гидроизоляционный раствор PENETRON PLUS Dry-Shake
Уникальная комплексная кристаллическая химическая обработка для водонепроницаемости и защиты бетона, PENETRON PLUS специально разработана для сухого встряхивания горизонтальных бетонных поверхностей или сборных сегментов, где требуется повышенная стойкость к ударам и истиранию.
PENETRON PLUS, упакованный в виде сухой порошковой смеси, состоит из портландцемента, различных активных химикатов и синтетического отвердителя (измельченного и рассортированного по размеру частиц, подходящих для бетонных полов).
 После того, как PENETRON PLUS будет нанесен на свежую бетонную плиту и затереть ее шпателем, он быстро проникнет в застывающий бетон. Под воздействием влаги из свежей плиты рост кристаллов будет происходить глубоко внутри бетонного тела, обеспечивая прочную изоляцию от проникновения воды.Как это работает
.
PENETRON ADMIX SB | Кристаллическая гидроизоляция
PENETRON ADMIX SB Кристаллическая гидроизоляционная добавка
PENETRON ADMIX SB идентичен нашей кристаллической добавке 3 rd поколения, но упакован в удобные предварительно отмеренные растворимые пакеты для легкого нанесения при добавлении продукта в новую бетонную смесь. В качестве гарантии качества PENETRON ADMIX SB оснащен нашим уникальным «зеленым индикатором», сигнализирующим о том, что в смеси присутствует подлинный PENETRON ADMIX.
 Внутри бетона PENETRON ADMIX SB снижает проницаемость за счет постоянно самозаживляющихся микротрещин, пор и капилляров.
 Это защищает бетон от проникновения воды и эффектов разрушения даже при высоком гидростатическом давлении. Он обеспечивает проекты с водонепроницаемым и прочным бетоном, который имеет способность к самовосстановлению и заделке трещин, которые развиваются в течение срока службы бетона.
PENETRON ADMIX SB совместим со всеми обычно используемыми добавками для удобоукладываемости (например.грамм. суперпластификаторы, замедлители схватывания) и составы дизайна смеси (перед заливкой рекомендуется пробные смеси).
Как это работает
.
Гидроизоляция Пенетрон – Гидроизоляция Пенетрон в Туле
Проникающая гидроизоляция ПЕНЕТРОН предназначена для обработки поверхностей бетонных конструкций. Результатом такой обработки является полная гидроизоляция бетонной конструкции за счёт образования кристаллов ПЕНЕТРОНА в теле бетона.
 ПЕНЕТРОН проникает на глубину от 600 мм и более. Кристаллы ПЕНЕТРОНА создают непреодолимую преграду для молекул воды. Насыщение бетона водой и течи прекращаются. Гидроизоляция эффективно работает весь срок службы бетонной конструкции, обработанной ПЕНЕТРОНОМ. Практический расход материала – от 0.8 до 1 кг на квадратный метр поверхности.
Сухая смесь для гидроизоляции бетонных поверхностей ТУ 5745-001-77921756-2006
ОПИСАНИЕ
Сухая строительная смесь, состоит из специального цемента, кварцевого песка определенной гранулометрии, запатентованных активных химических добавок.
НАЗНАЧЕНИЕ
Применяется для гидроизоляции поверхностей сборных и монолитных бетонных и железобетонных конструкций. Повышает показатели водонепроницаемости, прочности, морозостойкости бетона. Защищает конструкцию от воздействия агрессивных сред: кислот, щелочей, сточных и грунтовых вод, морской воды. Используется для гидроизоляции поверхностей, имеющих поры и трещины с шириной раскрытия не более 0,4мм.
ВИДЕОИНСТРУКЦИЯ
Внимание! Для гидроизоляции трещин с шириной раскрытия более 0,4 мм, швов, стыков, сопряжений, примыканий, вводов коммуникаций применяется Пенекрит в сочетании с Пенетроном.
ОСОБЕННОСТИ
Материал экологически чист, радиоактивно безопасен. Разрешен для применения в хозяйственно-питьевом водоснабжении. Сертифицирован для применения в строительстве.
ГАРАНТИЯ ПРОИЗВОДИТЕЛЯ
Завод гидроизоляционных материалов «Пенетрон» гарантирует соответствие материалов системы Пенетрон Техническим Условиям 5745-001-77921756-2006 «Смеси сухие гидроизоляционные дисперсные системы Пенетрон», а также всем современным стандартам. Завод гидроизоляционных материалов «Пенетрон» гарантирует, что материалы системы Пенетрон содержат все компоненты в их соответствующей пропорции. Применение материалов системы Пенетрон должно осуществляться в строгом соответствии с Технологическим регламентом на применение гидроизоляционных материалов проникающего действия системы Пенетрон.
Технические характеристики
| п/п | Характеристики материала | Значение | Методы измерения | 
|---|---|---|---|
| 1 | Внешний вид | Сыпучий порошок серого цвета без комков и механических примесей | ТУ 5745-001-77921756-2006 | 
| 2 | Влажность, %, по массе, не более | 0,6 | ТУ 5745-001-77921756-2006 | 
| 3 | Сроки схватывания, мин.: | ТУ 5745-001-77921756-2006 | |
| начало, не ранее | 40 | ||
| конец, не позднее | 90 | ||
| 4 | Насыпная плотность в стандартном неуплотненном состоянии, кг/м3 | 1200±50 | ТУ 5745-001-77921756-2006 | 
| 5 | Повышение марки бетона по водонепроницаемости после обработки, ступеней, не менее | 4 | ТУ 5745-001-77921756-2006 | 
| 6 | Повышение прочности обработанного бетона на сжатие от начальной обработки, %, не менее | 10,0 | ТУ 5745-001-77921756-2006 | 
| 7 | Повышение морозостойкости бетона после обработки, циклов, не менее | 100 | ГОСТ 10060.  1-95 | 
| 8 | Стойкость бетона после обработки к действию растворов кислот: HCl, h3SO4 | стоек | Ст. СЭВ 5852-86 | 
| 9 | Стойкость бетона после обработки к действию щелочей: NaOH | стоек | Ст. СЭВ 5852-86 | 
| 10 | Стойкость бетона после обработки к действию светлых и темных нефтепродуктов | стоек | Ст. СЭВ 5852-86 | 
| 11 | Стойкость бетона после обработки к гамма облучению дозой 3000 МРад | стоек | Заключение ПТО «Прогресс» № 22/26 от 06.05.03  | 
| 12 | Ультрафиолет | не оказывает влияния | Ст. СЭВ 5852-86 | 
| 13 | Применимость для резервуаров питьевой воды | допускается | Гигиенический сертификат ТУ 5745-001-77921756-2006  | 
| 14 | Кислотность среды применения, рН | от 3 до 11 | Ст.  СЭВ 5852-86 | 
| 15 | Применение: температура поверхности, ° С, не менее | +5 | ТУ 5745-001-77921756-2006 | 
| 16 | Температура эксплуатации, ° С | в соответсвии с нормами эксплуатации бетона | ТУ 5745-001-77921756-2006 | 
| 17 | Условия хранения материала | в помещениях любой влажности при температурах от – 80 до +80 | ТУ 5745-001-77921756-2006 | 
| 18 | Гарантийный срок хранения материала, месяцев, не менее | 18 | ТУ 5745-001-77921756-2006 | 
Линия средств защиты бетона Penetron
Пенетрон предлагает полный спектр продуктов Integral Crystalline Waterproofing и защиты бетона, которые предоставляют клиенту наиболее подходящие, эффективные и экономичные решения для удовлетворения их потребностей в гидроизоляции и защите бетона.
 Бетон является наиболее широко используемым строительным материалом в мире, и, поскольку на него так сильно полагаются, чтобы сформировать прочную и долговечную структурную основу для многих наших конструкций, крайне важно найти способы улучшить его и сохранить в для того, чтобы строительство было долговечным и безопасным.
 Именно этому направлению «Пенетрон» посвятил свою линейку продуктов.
Повреждения бетона можно разделить на две основные категории: химические повреждения и физические повреждения. Компания «Пенетрон» разработала свою кристаллическую систему «Пенетрон» для борьбы с большинством повреждений бетона, вызванных его пористой природой. Снижая проницаемость бетона и придавая ему способность к самовосстановлению трещин, «Пенетрон» делает бетон водонепроницаемым и эффективно снижает частые, но широко распространенные повреждения в результате коррозии, циклов замораживания-оттаивания и образования накипи.
 При использовании бетона, обработанного PENETRON ADMIX, сам бетон будет водонепроницаемым и прочным. Однако существуют и другие области, подверженные утечкам и разрушению, например, строительные швы, анкерные отверстия, соты, трещины и т. Д. Использование актуальных продуктов линейки Penetron для решения этих проблем обеспечит водонепроницаемость конструкции и защиту от разрушения.
 с единой системой и одним контактным лицом, если возникнет необходимость в поддержке. 
Бетон – просто добавьте Penetron Admix
PENETRON ADMIX – это кристаллическая добавка, которая снижает проницаемость бетона за счет самозаживления всех трещин, пор и капилляров до 0.При контакте с водой размером 5 мм (1/64 дюйма) образуется водонепроницаемая бетонная матрица.
Бетон, обработанный PENETRON ADMIX, как и стандартный бетон, должен быть размещен, защищен и отвержден в соответствии с требованиями Строительных норм ACI 318-05 для конструкционного бетона для обеспечения оптимальных результатов.
 В качестве меры контроля качества PENETRON ADMIX содержит нетоксичный, не оставляющий пятен отслеживающий агент, который виден во время укладки бетона (флуоресцентная стекающая вода), что служит индикатором того, что PENETRON ADMIX действительно был добавлен в бетон.PENETRON ADMIX – единственная кристаллическая добавка в бетонной промышленности, содержащая трассирующий агент.
 
Строительные соединения и проходы
При указании бетона, обработанного PENETRON ADMIX, рекомендуется устанавливать PENEBAR SW55 вдоль всех неподвижных строительных швов (горизонтальных и вертикальных) и вокруг всех сквозных проходов в стенах или перекрытиях, таких как трубы, инженерные коммуникации, сваи и стальные элементы.
PENEBAR SW55 – это гидроизоляция, разработанная для предотвращения проникновения воды через залитые бетонные швы за счет контролируемого расширения под воздействием воды, что приводит к надежному уплотнению внутри и по отношению к бетону.PENEBAR SW55 используется вместе с PENEBAR SW PRIMER. PENEBAR SW PRIMER наносится на участок, где будет размещаться гидрошпонка, и используется в качестве клея.
 Его превосходная способность расширять и герметизировать бетонные швы позволяет ему заменять более пассивные связки в системах гидроизоляции из ПВХ и устраняет необходимость в сварочных инструментах, разделении форм и специальных форм.
 
Ремонт бетона: трещины (более 0,5 мм), анкерные отверстия, соты, обнаженная арматурная сталь, сколы и т. Д.
Все трещины размером более 0,5 мм, анкерные отверстия, соты, обнаженная стальная арматура, сколы и любые другие проблемы, связанные с бетоном, должны быть отремонтированы с помощью комбинации PENETRON и PENECRETE MORTAR для восстановления гидроизоляционных и защитных качеств.
PENETRON – это цельный кристаллический гидроизоляционный материал, наносимый на поверхность, который обеспечивает водонепроницаемость и защищает бетонную матрицу изнутри.
PENETRON идеально подходит для восстановления бетона.PENETRON может использоваться для гидроизоляции и защиты существующих бетонных конструкций с положительной стороны (сторона, подверженная воздействию воды) или отрицательной стороны (сторона, противоположная воде), и не чувствителен к гидростатическим условиям.
 PENECRETE MORTAR – это кристаллический гидроизоляционный ремонтный раствор, используемый в сочетании с раствором PENETRON для ремонта бетонных конструкций, нуждающихся не только в гидроизоляции, но и в защите.
 Ремонт может производиться как с положительной, так и с отрицательной стороны бетонного элемента.
Активные утечки
Обычно PENEPLUG используется для закупоривания / остановки активных утечек воды, герметизации негерметичных стыков, анкерных отверстий или трещин. PENEPLUG можно использовать внутри или снаружи в качестве водонепроницаемого раствора для закупоривания или там, где требуется быстрое схватывание и раннее увеличение прочности.
 PENEPLUG – это быстросхватывающаяся интегральная кристаллическая вяжущая гидроизоляция, предназначенная для предотвращения активных протечек и проникновения влаги. PENEPLUG устанавливается в пределах от 30 до 60 секунд до твердости 25 МПа (3600 фунтов на кв. Дюйм).
Другие члены семьи
 Хотя описанная выше кристаллическая система Penetron широко используется во многих проектах, они не единственные продукты в линейке средств защиты бетона Penetron. Компания «Пенетрон» осознает, что существуют различные уровни интересов и потребностей от проекта к проекту и от структуры к структуре, и для удовлетворения потребностей многих был разработан широкий спектр некристаллических продуктов.
 
Пароизоляция
 Наше семейство VB 225 ™ представляет собой технически совершенное решение по снижению влажности для коммерческих, институциональных и жилых напольных покрытий.Оптимален при использовании вместе с цементными выравнивающими материалами или смолистыми напольными покрытиями. Все чаще используется как самостоятельная грунтовка для снижения влажности. 
Самовыравнивающиеся подложки
 Для ремонта или нового строительства наши подложки LEVELINE® обеспечивают ровную и ровную поверхность перед укладкой практически любого напольного покрытия. Подходит для всех жилых, коммерческих и институциональных приложений. 
Обезжиривающие составы и строительные растворы
 Когда бетонные поверхности требуют снятия покрытия, заделки заплат, заполнения пустот или откосов, линейка продуктов SURFIX ™ обязательно найдет решение.Наш широкий ассортимент простых в использовании материалов обеспечивает успешный монтаж. 
Покрытия и топпинги
 Для проблемного, изношенного или поврежденного дождем, структурно прочного бетона эти продукты для обработки поверхности RENEW® омолаживают бетонные поверхности с высокими прочностными характеристиками.
 
Служба технической поддержки
Penetron поощряет своих клиентов обращаться к ближайшему представителю Penetron, чтобы они могли участвовать на протяжении всего жизненного цикла проекта, обеспечивая всю необходимую техническую поддержку и поддержку на месте, необходимую для успеха каждого проекта Penetron.
ГОТОВО ДЛЯ ЗАГРУЗКИ – ПРИЛОЖЕНИЕ PENETRON!
Приложение PENETRON, доступное теперь для устройств iOS и Android, является идеальным мобильным справочником по широкому спектру информации о продуктах и решениях PENETRON – с этим приложением все в ваших руках.
PRAN против PRAH: РАЗНИЦА ПЕНЕТРОНА
Рассмотрение отчета ACI 212.3R-10 о химических добавках для бетона
«Отчет о химических добавках для бетона», опубликованный Американским институтом бетона (ACI 212.3R-10 / январь 2011 г.) включает главу о добавках, снижающих проницаемость (PRA). Эти PRA (добавки, снижающие проницаемость) включают широкий спектр добавок, которые можно использовать для уменьшения проницаемости в бетоне. В частности, он описывает две категории PRA:
- Добавка для снижения проницаемости для негидростатических условий (PRAN) – ранее называемая «гидроизоляционная добавка», где сопротивление воде под давлением очень ограничено и не подходит для бетона, подверженного воздействию воды под давлением
 - Добавка для снижения проницаемости для гидростатических условий (PRAH) – или «гидроизоляционная добавка», которая достаточно устойчива, чтобы противостоять воде под давлением, и используется для водонепроницаемых конструкций резервуаров, фундаментов, защитных конструкций и т. Д.
 
В общем, эффективность добавок, снижающих проницаемость, зависит от того, является ли это PRAN или PRAH.
PRAN состоят из гидрофобных или водоотталкивающих химикатов (мыла и производные длинноцепочечных жирных кислот, растительных масел и нефти), тонкоизмельченных твердых веществ (тальк, бентонит, кремнистые порошки, глины, углеводородных смол и каменноугольных пеков) или химически активные наполнители (известь, силикаты и коллоидный кремнезем). Они наиболее широко используются для защиты от влаги в негидростатических условиях.
 PRAH включают тонкоизмельченные твердые вещества (такие как коллоидный диоксид кремния), гидрофобные блокаторы пор и кристаллические примеси. Однако тонкодисперсные твердые вещества, включая коллоидный диоксид кремния, обычно используются в негидростатических условиях, и только некоторые полимерные материалы можно отнести к категории PRAH. Гидрофобные материалы, закупоривающие поры, используются только в негидростатических условиях. Кристаллические гидрофильные полимеры (латекс, водорастворимый или жидкий полимер 
) используются только в гидростатических условиях.
Кристаллические добавки устойчивы к проникновению воды против гидростатического давления и зарекомендовали себя как наиболее эффективные продукты PRAH с явными преимуществами по сравнению с гидрофобными материалами, основанными на других механизмах или коалесценции полимеров, или другими наполнителями с точки зрения герметизации трещин, долговременной эффективности, повышенной прочности бетонная конструкция и т. д. Наконец, они способны перекрывать трещины, образовавшиеся в результате теплового или механического движения.
Только кристаллические примеси могут быть классифицированы как настоящие продукты PRAH.Как описано в таблице на странице 2 документа ACI 212.3R-10 о добавках («Добавки, их характеристики и использование»), в гидростатических условиях можно использовать только кристаллические гидрофильные полимеры (латекс, водорастворимый или жидкий полимер). .
Преимущества PRAH
Запатентованные активные ингредиенты кристаллического PRAH реагируют с водой и частицами цемента в бетоне, увеличивая плотность гидрата силиката кальция (CHS) и / или создавая отложения, блокирующие поры, в существующих микротрещинах и капиллярах, препятствующие проникновению воды.Поскольку микротрещины образуются в течение всего срока службы бетона, кристаллические примеси продолжают активироваться в присутствии влаги, закрывая дополнительные зазоры.
 Как отмечается в отчете ACI: «Чтобы противостоять гидростатическому давлению, PRAH используют механизм блокировки пор за счет роста кристаллов, коалесценции полимера или другого наполнителя, хотя способность выдерживать гидростатическое давление будет зависеть от того, насколько полностью заблокированы поры и устойчивость отложений под давлением. Различие следует проводить на основе продемонстрированной способности добавки снижать проникновение воды при ожидаемых условиях эксплуатации 
.”
 Механизм блокировки пор основан на патентованных активных химических веществах, смешанных со смесью цемента и песка 
.
Поскольку PRAH на основе коалесценции полимеров или других наполнителей неспособны выдерживать высокое гидростатическое давление, их нельзя рассматривать как «настоящие» добавки PRAH. Механизм блокировки пор в PRAH на кристаллической основе основан на запатентованных активных химических веществах, смешанных со смесью цемента и песка, которые постоянно и всесторонне реагируют на влагу и изменяются даже при воздействии высокого гидростатического давления.
В отличие от гидрофобных материалов, таких как продукты PRAN, описанные выше, кристаллические примеси являются гидрофильными. Кристаллические отложения образуются по всему бетону, становясь постоянной частью бетонной массы под воздействием воды. PRAH делают внешние гидроизоляционные мембраны ненужными даже для бетона, находящегося под высоким гидростатическим давлением.
Технология PENETRON PRAH: испытания в условиях высокой гидростатики
Подобно общему процессу, описанному выше для кристаллических добавок PRAH, активные ингредиенты PENETRON ADMIX® вступают в реакцию с побочными продуктами гидратации цемента в присутствии воды в свежих и затвердевших бетонных конструкциях.Эти реакции расширяют гидратацию и образуют дополнительные молекулы гидрата силиката кальция вместе с нерастворимыми кристаллами по всей матрице бетона. Эти нерастворимые образования осаждаются в естественных порах и капиллярах бетонной смеси, что резко снижает проницаемость бетона.
Когда PENETRON ADMIX® добавляется в бетон во время замеса, образовавшаяся кристаллическая решетка также надежно герметизирует микротрещины, которые развиваются в течение всего срока службы бетона.Продукция PENETRON была тщательно протестирована в лаборатории в условиях высокой гидростатики (включая ASTM D5084, NBR 10.787 / 94, USAE CRD C48, BS EN 12390-8 и DIN 1048-5 на водопроницаемость). В этих испытаниях полученная кристаллическая решетка эффективно снижает проницаемость бетонных образцов по сравнению с контрольными образцами; утечка в обработанном бетоне была устранена даже в условиях высоких гидростатических испытаний.
Следующие примеры демонстрируют улучшения в результате реакций снижения проницаемости PENETRON ADMIX® при высоких гидростатических условиях.
Испытания на проникновение воды под давлением – NBR 10.787 / 94
Напор 101,5 фунт / кв. Дюйм
После воздействия давления 101,5 фунтов на квадратный дюйм (234,1 фута напора) в течение четырех недель кристаллическая реакция PENETRON почти полностью снизила проницаемость бетона и устранила все утечки.
MSZ EN 12390-8: 2009 (DIN 1048)
Показаны образцы, обработанные PENETRON ADMIX® (отмечены буквой P), и два контрольных образца.Все образцы подвергались давлению 72,5 фунтов на квадратный дюйм в течение 72 часов. Эта фотография была сделана сразу после разделения образцов пополам для измерения глубины проникновения воды. Образцы PENETRON ADMIX® показали снижение водопроницаемости на 94,4% по сравнению с контрольными образцами.
Последние проекты PENETRON PRAH
Технология снижения проницаемостиPENETRON зарекомендовала себя в полевых условиях в высоких гидростатических условиях и с большим успехом зарекомендовала себя. Несколько недавних проектов подчеркивают эффективность добавок PENETRON для снижения проницаемости в условиях высоких гидростатических условий эксплуатации:
- Туннельная подъемная станция Южного Кобба возле Атланты, Джорджия,
 - Tower Street Reservoir – резервуар для хранения воды емкостью восемь миллионов галлонов в Харрисонбурге, штат Вирджиния,
 - National Road Bikeway Tunnel возле Св.Клэрсвилл, Огайо
 - Аэропорт Сингапура / Терминал 3, Сингапур
 - Сады у залива, Марина-Бэй, Сингапур
 - Corredor Duarte, Санто-Доминго, Доминиканская Республика
 - Международный аэропорт Ченнаи, Индия
 
Туннельная подъемная станция Южного Кобба
Это сооружение представляет собой шахту глубиной 212 футов, которая поднимает сточные воды из более чем 32 000 LF туннелей в округе Кобб, штат Джорджия. На таких огромных глубинах конструкция – влажный колодец в сухом колодце – требовала, чтобы проницаемость бетона была чрезвычайно низкой, чтобы исключить все проблемы с утечкой сточных вод из влажного колодца в сухой колодец (который используется обслуживающим персоналом).Давление грунтовых вод на высоте 212 футов, а также сломанные и раздробленные куски непоследовательной коренной породы были основными проблемами водонепроницаемости. PENETRON ADMIX® был указан как PRAH для этого проекта; более 20 000 кубических метров были обработаны и успешно гидроизолированы.
Водохранилище Тауэр-Стрит
Расположенный в Харрисонбурге, штат Вирджиния, этот новый бетонный резервуар для воды емкостью восемь миллионов галлонов заменил протекающий в земле резервуар, облицованный бетоном. Новый резервуар, созданный корпорацией Crom Corporation, отличается преимуществами снижения проницаемости благодаря встроенной технологии кристаллической гидроизоляции PENETRON.При строительстве нового резервуара использовался улучшенный торкрет-бетон PENETRON ADMIX® (PAES) для защиты арматурной стали, встроенной в бетонную оболочку, и для устранения всех утечек из конструкции высотой более 70 футов. Способность PENETRON ADMIX® снижать проницаемость бетона при высоких гидростатических условиях улучшила систему распределения воды в Харрисонбурге, исключив утечку воды.
Восстановление туннеля для велосипедных дорожек национальной дороги
Велосипедный туннель National Road Bikeway, которому уже более 100 лет, пострадал от проникновения и повреждения грунтовых вод.Первоначально построенный в 1902 году в районе тонкослоистых, слабопористых, слабых сланцев со значительными притоками грунтовых вод, основной задачей проекта реабилитации было предотвращение инфильтрации воды и последующего нарастания льда и повреждений. Способность технологии PENETRON снижать проницаемость новой футеровки из торкретбетона даже при высоком гидростатическом напоре превзошла ожидания команды разработчиков. Проблема проникновения льда и воды была полностью устранена.
Сингапурский аэропорт Чанги / Терминал 3
Аэропорт Чанги – это не просто узел воздушного транспорта, он является символом национальной гордости и эталоном качества обслуживания.Терминал 3 отличается инновационными пассажирскими удобствами и современной архитектурой. 140 000 м³ бетона было обработано PENETRON ADMIX®, а также суспензией PENETRON® и PENECRETE MORTAR ™.
Сады у залива, Марина-Бэй, Сингапур
Отличительные сады на набережной – это всепогодное «развлекательное» пространство, архитектурная икона, садоводческая достопримечательность и демонстрация устойчивых энергетических технологий – с большими охлаждаемыми зимними садами, воспроизводящими особый климат, чтобы разместить необычный ассортимент цветов и растений.Проект представлял собой серьезные проблемы с гидроизоляцией, так как он полностью построен на мелиорированной земле и находится в непосредственной близости от океана. 18 300 м³ бетона было залито с помощью PENETRON ADMIX® в фундаментную плиту и стены; PENEBAR ™ SW-55 использовался в строительных швах и PENESEAL PRO® на горных стенах.
Corredor Duarte, Санто-Доминго, Доминиканская Республика
Туннель Корредор-Дуарте, новейший туннель в Доминиканской Республике, обеспечивает быстрое сообщение между Санто-Доминго и остальной частью страны.Туннель длиной около 1200 м (4000 футов) играет ключевую роль в уменьшении хронических пробок на дорогах столицы. Сразу за туннельно-проходческой машиной был нанесен гораздо более тонкий слой торкретбетона, создавая естественное несущее кольцо и сводя к минимуму деформацию окружающих слоев горной породы. PENETRON ADMIX® был использован для уменьшения проницаемости торкретбетонных стен. ПЕНЕБАР ™ SW-55 использовался для герметизации стыков бетонных конструкций. Всего было использовано 45 тонн PENETRON ADMIX® и 2300 метров PENEBAR ™ SW-55.
Международный аэропорт Ченнаи, Индия
Международный аэропорт Ченнаи, расширенный и модернизированный для удовлетворения повышенных требований к перевозкам, расширил международный терминал и добавил новый внутренний пассажирский терминал, многоуровневую автостоянку и параллельную взлетно-посадочную полосу, чтобы увеличить пропускную способность до 16 миллионов пассажиров в год. В аэропорту, расположенном рядом с Бенгальским заливом, колебания уровня грунтовых вод (-10 м летом и -3 м во время сезона дождей) требовали тщательной гидроизоляции всех бетонных конструкций и бетонных швов в подвале (глубина 10 м).Всего 125 тонн PENETRON ADMIX® было использовано для изготовления плит цоколя и подпорных стен; Было использовано 15 000 метров гидрошпонок набухающего типа PENEBAR ™ SW-45 для предотвращения попадания воды по бетонным швам.
Прочность бетона | PENETRON Total Concrete Protection
Информационный бюллетень отрасли Penetron®
Самая старая известная бетонная оболочка, Пантеон в Риме, была построена около 125 г. н.э. и все еще стоит
.Конструкторы бетонных конструкций традиционно делают упор на прочностные характеристики материала.В последние годы отрасль начала применять более целостный подход, уделяя особое внимание стоимости жизненного цикла конструкции. Следовательно, долговечность бетона теперь считается столь же важной, как механические свойства и первоначальная стоимость.
По оценкам, в развитых странах около 40 процентов всех строительных ресурсов идет на ремонт и техническое обслуживание и только 60 процентов – на новое строительство.
Помимо социально-экономических последствий долговечности, существует также четкая связь между долговечностью и окружающей средой.Увеличивая жизненный цикл строительных материалов, мы сохраняем ценные природные ресурсы. Подробнее по этой теме в разделе «Прочность бетона».
Далее, сконцентрируйтесь на другой великой инициативе «Инженеров без границ» – проекте водоснабжения деревни Нтисав в Камеруне.
Penetron® Характеристика: Прочность бетона и воды
Вода является основным агентом как для создания, так и для разрушения бетона, и она активно участвует практически во всех формах разрушения бетона.
Полевой опыт показывает, что в порядке уменьшения важности основными причинами разрушения являются коррозия армированной стали, воздействие циклов замораживания и оттаивания, щелочно-кремнеземная реакция и химическое воздействие. С каждой из этих четырех причин разрушения бетона проницаемость и присутствие воды связаны с механизмами расширения и растрескивания.
Обеспечивая водонепроницаемость бетона не только на поверхности, но и по глубине, мы можем предотвратить возникновение основных причин разрушения.
Продукты«Пенетрон» – это неотъемлемые гидроизоляционные материалы, которые обеспечивают именно это;
- Предотвращение коррозии стали за счет предотвращения попадания химикатов в бетон и содействия поддержанию щелочной среды
 - Предотвращение повреждений от замерзания-оттаивания за счет глубокой сушки бетона
 - Предотвращение щелочно-кремнеземной реакции путем отказа от реакции воды, в которой он нуждается
 - Предотвращение попадания химикатов в бетон за счет герметизации капилляров и пор
 
Включение продуктов Penetron в бетон значительно увеличивает его долговечность.Конкретно это означает продление срока службы конструкции, а также огромную экономию на ремонте и обслуживании.
Penetron®News: «Инженеры без границ» реализуют проект водоснабжения деревни Нтисав в Камеруне
Только некоторые из бенефициаров проекта водоснабжения деревни Нтисав.
Организация Объединенных Наций недавно объявила, что антисанитарная вода убивает больше людей, чем войны и другие виды насилия. Сюда входят 2,2 миллиона человек, смерть которых связана с диареей, в основном из-за грязной воды, и 1.8 миллионов детей в возрасте до 5 лет, которые заболевают болезнями, передающимися через воду.
ICS Penetron International играет свою роль в решении этой проблемы благодаря сотрудничеству с Engineers Without Borders (EWB). Грант 2009 Penetron-EWB был присужден отделению EWB в Университете штата Иллинойс в Урбане-Шампейне (EWB-UIUC). Пенетрон поздравляет EWB-UIUC с их проектом водоснабжения деревни Нтисав в Камеруне, Западная Африка.
Более 1000 жителей деревни Нтисав не имеют постоянного доступа к чистой питьевой воде.Надежный источник воды улучшит здоровье всех жителей деревни, а также предоставит возможности для образования и предпринимательства девочкам и женщинам, роль которых традиционно заключалась в том, чтобы нести воду из источника в деревню.
EWB-UIUC приступил к решению задачи по проектированию и строительству системы сбора и распределения питьевой воды для Ntisaw. Пенетрон рад поддержать EWB-UIUC и их значимую работу в Камеруне.
Penetron® по всему миру:
Tropicana City Mall, Петалинг-Джая, Малайзия
Торговый центр Tropicana City Mall был разработан Dijaya Corporation Berhad.Торговый центр состоит из 4 торговых этажей, 12-этажной офисной башни и 3 подвальных этажей. Общая площадь дома составляет около 700 000 квадратных футов (65032 м).
Проект представляет собой открытый частично литой подвал, который десять лет стоял заброшенным, что вызывает опасения по поводу долговечности конструкции. Эта часть конструкции требовала особого внимания, поскольку во время возобновления проекта показала сильную протечку, что представляет собой огромную проблему для любого подрядчика по гидроизоляции.
После получения нескольких предложений от конкурирующих подрядчиков, заказчик полностью выбрал систему Penetron для ректификации и гидроизоляции фундаментной плиты. Это решение было основано на длительном опыте работы Penetron на малазийском рынке, а также на его репутации в области качества и обслуживания.
Продукты, используемые в проекте, включают Penecrete Mortar, Penetron, Peneplug и цементный раствор под давлением. Об общем уровне удовлетворенности клиентов свидетельствует рекомендательное письмо, полученное от Meinhardt Consultants.
Palais Royale, Мумбаи, Индия
Мумбаи переживает огромный строительный бум. Началось проектирование и строительство сотен новых средних и высотных зданий в центральном деловом районе города, на бывших мельничных землях и в Дхарави.
Самым примечательным является Пале-Рояль, коммерческая и жилая башня. Его высота превышает 320 м, и после завершения строительства он станет доминирующим элементом на горизонте города. Разработчик Shree Ram Urban Infrastructure получил платиновый сертификат LEED от Индийского совета по экологическому строительству, установив новые стандарты в управлении водными и энергетическими ресурсами, переработке отходов и сокращении выбросов углерода.LEED – Leadership in Energy and Environmental Design – это международно признанная рейтинговая система экологичного строительства, разработанная Советом по экологическому строительству США. Он обеспечивает набор стандартов экологически устойчивого строительства.
Palais Royale также является уникальным проектом с точки зрения гидроизоляции. Поскольку конструкция будет передана покупателям в виде оболочки, покупатели могут свободно проектировать внутреннюю часть жилого помещения в соответствии со своими требованиями. Поскольку это один из самых престижных жилых комплексов Мумбаи, консультантам по строительным работам и архитекторам необходимо было обеспечить абсолютную водонепроницаемость каждой плиты.Затем они начали искать подходящий продукт, чтобы сделать бетонные плиты непроницаемыми. После проведения исследования они пригласили представителей «Пенетрон» для презентации и впоследствии решили включить «Пенетрон Адмикс» во все 58 плит перекрытия конструкции.
Howard Lamade Stadium, Уильямспорт, Пенсильвания, США
30 августа 2009 года на стадионе Ховарда Дж. Ламаде команда Чула Виста обыграла команду Китайский Тайбэй со счетом 6: 3 и завоевала титул чемпионов Мировой серии Малой лиги.
Little League International – крупнейшая молодежная спортивная организация в мире, в которой участвует более 2,6 миллиона участников в более чем 100 странах, при поддержке более 1,5 миллиона взрослых добровольцев и 200 международных молодежных команд. Стадион Ховарда Дж. Ламаде является центральным местом их штаб-квартиры и уже более 50 лет является домом для финалов Мировой серии Малой лиги. Игра на стадионе Ховарда Дж. Ламаде в Уильямспорте, штат Пенсильвания, – это «большая» мечта каждой бейсбольной команды Малой лиги в мире.
Стадион был назван в честь Говарда Дж. Ламаде, успешного издателя журнала “Grit” (журнал о сельском образе жизни, который существует до сих пор). Ламаде также был руководителем Малой бейсбольной лиги и сыграл важную роль в превращении ее в национальное учреждение, которое с тех пор превратилось в международное учреждение.
С момента своего первоначального строительства в 1959 году стадион Ламаде превратился из футбольного поля в бейсбольный комплекс на 40 000 мест. Тем не менее, 50 лет воздействия стихий в конечном итоге сыграют свою роль.Пенетрон Адмикс был включен в недавний проект реконструкции стадиона за его способность обеспечивать водонепроницаемость и защищать бетон. Существующая стена, которая служила для разделения перепада высот между сиденьями стадиона и всемирно известными землянками, пришла в негодность из-за инфильтрации воды и последовательных масштабов и повреждений при замораживании и оттаивании. Стена поддерживала проход в вестибюле, ведущий к сидячим местам, и была покрыта защитными циновками / настенными циновками для защиты игроков от сильно поврежденного бетона.Сама существующая плита перекрытия ранее была отремонтирована с помощью покрытия эмульсионного типа, но покрытие поднялось, и плита также сильно отслаивалась в результате агрессивного действия замораживания и оттаивания. Проектная группа компаний Brinjac Engineering, Zartman Construction и Center Concrete работала вместе над реконструкцией и заменой существующей стены новой стеной, обработанной Penetron Admix, и новыми входными плитами. Был также расширен вестибюль, построены новый бордюр и дренаж, чтобы свести к минимуму затопление поля водой в насаждениях.Кроме того, был улучшен дренаж, чтобы обеспечить более безопасный и легкий доступ к сиденьям стадиона.
«Для нас большая честь участвовать в сохранении традиций такого давнего спортивного учреждения». заявил Кристофер Чен, директор по продажам и маркетингу ICS Penetron в Северной Америке: «Как компания с широким международным присутствием, мы остро осознаем, что понимание, общение и работа с различными странами, народами и культурами имеет решающее значение для нашего успеха. Вовлечение в организации например, Международная Маленькая Лига, напоминает нам о том, насколько важны эти базовые связи и насколько многого можно достичь, соблюдая их во всем, что мы делаем.«
Penetron помогает делать вино из воды (расстойка) с помощью кристаллической технологии
В первой половине 2019 года значительное количество существующих винных заводов по всей Италии модернизировали и расширили производственные мощности за счет новых помещений и винных погребов, построенных с помощью кристаллического оборудования Penetron технология.
 «Гидроизоляционная система Penetron была разработана для подземных конструкций многочисленных виноделен здесь, в Италии, и для многих других проектов подвалов, чтобы обеспечить долговечность обработанных бетонных конструкций», – поясняет Энрикомария Брак, директор Penetron в Италии.«Технический персонал Penetron Italia сотрудничал с подрядчиками проекта и поставщиками готовых смесей на этапе планирования, чтобы обеспечить оптимальное решение, соответствующее параметрам производительности проекта». 
Проверенная защита бетона
Добавляемая в состав бетонной смеси на этапе замеса, кристаллическая добавка Пенетрона обеспечивает целостную и постоянную гидроизоляцию матрицы благодаря составу реактивных компонентов. В результате химических реакций в бетоне образуются нерастворимые кристаллические образования в порах и капиллярных путях, которые прочно защищают матрицу от проникновения воды или жидкостей, что значительно снижает проницаемость бетона.
«Благодаря присущей PENETRON ADMIX простоте использования и устранению любых последующих затрат на техническое обслуживание, добавка пользуется быстро растущей популярностью в Италии», – добавляет Энрикомария Брак. «Даже когда обычная гидроизоляционная мембрана и инъекционные растворы изначально указаны в спецификациях проекта, превосходство кристаллического раствора быстро становится очевидным для инженеров проекта и подрядчиков.
 Четыре последних проекта, демонстрирующих преимущества кристаллической технологии «Пенетрон»: 
Кантина Биссон
Основанная более 40 лет назад Пьерлуиджи Лугано, Cantina Bisson создает вина из винограда, собранного в Лигурии, итальянском винодельческом регионе, известном своими сухими свежими белыми винами, расположенном в северо-западном регионе Италии вдоль Итальянской Ривьеры.
 Новая винодельня Кантина Биссон, спроектированная и построенная Moretti SpA, идеально вписывается в холмистый рельеф местности. Он включает в себя приемную, дегустационный зал и обширный винный погреб. Поскольку цокольный этаж находится ниже местного уровня грунтовых вод, компания Unicalcestruzzi, поставщик товарной смеси, добавила PENETRON ADMIX в бетонную смесь для фундаментной плиты и подпорных стен нового погреба. 
Морра Диего Погреба
Виноградники с середины 1900-х годов в Пьемонте, главном винодельческом регионе на северо-западе Италии, семейные владения Морра Диего выросли с одного участка земли до 50 гектаров виноградников и рощ лесных орехов.
 При строительстве нового погреба, осуществленного Энрико Ферреро из Пинероло, были просачивающиеся грунтовые воды. Благодаря простоте применения и долговечности PENETRON ADMIX был использован для гидроизоляции подпорных стен нового погреба. Бетонную смесь доставила компания Stroppiana Calcestruzzi, поставщик товарной смеси. 
Кантина Мионетто
Отель Cantina Mionetto расположен на холмах Вальдоббьядене, родине Просекко на северо-востоке Италии, и является признанным производителем марочных вин и Просекко.Винодельня, входящая в состав известной корпорации Henkell & Co., немецкого производителя игристых вин, вин и спиртных напитков, недавно открыла новый погреб.
 Создавая дизайн, гармонирующий с окружающей сельской местностью, Bertazzon SpA, генеральный подрядчик проекта, выбрал PENETRON ADMIX для фундаментной плиты и подпорных стен нового подвала. Сборные железобетонные элементы также были обработаны PENETRON ADMIX для обеспечения долговечности. Бетон предоставила компания Superbeton, поставщик товарных смесей.
Beni di Batasiolo
Известный прежде всего своими великолепными винами Бароло и Барбареско, винный регион Ланге в Пьемонте на северо-западе Италии является домом для Бени ди Батасиоло. Пять поколений семьи Дольяни выращивали знаменитый виноград Неббиоло да Бароло для своих вин.
В строительстве нового винного погреба использованы конструктивные элементы из сборного железобетона. Анра, подрядчик проекта, работала с Stroppiana Calcestruzzi, поставщиком готовой смеси, чтобы разработать правильную смесь с PENETRON ADMIX, чтобы противостоять высоким уровням грунтовых вод.Бетон, обработанный PENETRON ADMIX, использовался для гидроизоляции фундаментной плиты и всех сборных элементов.
«Следует также отметить, что все четыре проекта были выполнены в рамках чрезвычайно жестких графиков строительства и со строгим бюджетом, который не допускал задержек», – говорит Энрикомария Брач. «Благодаря простоте применения PENETRON ADMIX, наш кристаллический раствор постоянно позволял значительно сократить время планирования, а также помогал держать расходы под контролем.”
Penetron защищает систему питьевого водоснабжения в городе Харрисонбург, штат Вирджиния,
Восточный Сетокет, штат Нью-Йорк (PRWEB) 27 апреля 2007 г.
Когда город Харрисонбург, штат Вирджиния, искал уверенности в том, что новые резервуары, которые они заказали для постройки, будут служить долгие годы, их инженеры-консультанты, Wiley & Wilson, Inc., указали на использование Penetron Admix.
И основной резервуар на 5 миллионов галлонов, и меньший резервуар на 600 000 галлонов были резервуарами из предварительно напряженного бетона, спроектированными и изготовленными The Crom Corporation. Пенетрон Адмикс использовался при строительстве стен и полов резервуаров.
В дополнение к обеспечению бетона с очень низкими характеристиками проницаемости, Penetron Admix обеспечил защиту от коррозии, необходимую для предварительно напряженных кабелей и арматуры, используемых в конструкции резервуара.
Уникальная способность Пенетрона выращивать кристаллы в естественных порах бетона блокирует воду и перекрывает микротрещины, пластические усадочные трещины, которые обычно образуются в процессе отверждения бетона.Эта особенность дает этим бетонным резервуарам систему активной защиты для борьбы с проблемами технического обслуживания, которые обычно вызывают утечки и, в конечном итоге, другие серьезные проблемы.
Добавляя Penetron Admix в свои резервуары, администрация города Харрисонбург предприняла активные шаги для обеспечения долгих, многих лет недорогого обслуживания и безотказного обслуживания.
«Кристаллические гидроизоляционные материалы Penetron идеально подходят для таких и многих других применений в сфере водоснабжения и водоотведения», – заявил Кристофер Чен, директор по продажам и маркетингу компании Penetron в Северной Америке.«В дополнение к полной защите бетона, которую наши продукты обеспечивают от проникновения воды, коррозии и замерзания / оттаивания, продукты Penetron также имеют сертификат NSF 61 для использования в системах питьевой воды. Наши усилия по превышению таких строгих стандартов подчеркивают наше стремление предоставлять продукты, которые не только с высокими эксплуатационными характеристиками, но и с заботой о здоровье и окружающей среде “.
###
Поделиться статьей в социальных сетях или по электронной почте:
Новый российский аэропорт стартовал с применением гидроизоляции PENETRON ADMIX
ВОСТОК СЕТАУКЕТ, Нью-Йорк, 9 апреля 2020 г. / PRNewswire-PRWeb / – Саратовский международный аэропорт имени Гагарина, официально открытый в августе 2019 года, недалеко от Саратова, Россия, является третьим полностью новым аэропортом, построенным в России с 1989 года.Строительство аэровокзального комплекса было завершено к концу прошлого года; ПЕНЕТРОН АДМИКС использовался для гидроизоляции ключевых бетонных элементов комплекса.
Саратовский международный аэропорт имени Гагарина, названный в честь легендарного российского космонавта Юрия Гагарина, находится примерно в 20 км к северу от города Саратов (население около 2,5 миллионов человек). Этот проект стоимостью 10 миллиардов рублей (150 миллионов долларов) заменил предыдущий аэропорт Центральный в качестве главного коммерческого аэропорта Саратовской области в Приволжском федеральном округе России.Новый аэропорт, спроектированный архитектурным бюро ASADOV, имеет пропускную способность в один миллион пассажиров в год. Дизайн проекта был номинирован на премию Союза архитекторов России.
«Около 15 лет назад становилось все более очевидным, что Центральный аэропорт Саратова, функционирующий с 1930-х годов, скоро станет слишком маленьким для прогнозируемого роста авиапассажиров», – добавляет Игорь Черноголов, президент «Пенетрон Россия». «Новый Саратовский международный аэропорт Гагарин – последний из серии новых аэропортов и их расширения, которые происходят по всей России.«
 В поисках надежного решения для гидроизоляции 
 Вскоре после начала строительства в конце 2014 года« Пенетрон Россия »попросили предложить надежное гидроизоляционное решение для фундамента диспетчерской вышки нового аэропорта, а также бетонные резервуары, обеспечивающие надежную питьевую воду. снабжение.
«Наша команда рекомендовала PENETRON ADMIX, кристаллическую гидроизоляционную добавку, чтобы обеспечить бетонную смесь с необходимыми гидроизоляционными характеристиками, а также столь необходимую прочность, чтобы противостоять довольно суровому местному климату», – добавляет Игорь Черноголов.«Благодаря опыту, который мы приобрели в прошлом участии в других проектах аэропортов в России и соседних странах, наша команда была уверена, что это решение превзойдет их строгие требования».
 Повышает прочность и способность к самовосстановлению 
 Легко смешивается во время замеса и не зависит от климатических условий, PENETRON ADMIX становится неотъемлемой частью бетонной матрицы, реагируя на влагу в свежем бетоне, что создает нерастворимые кристаллические образования во всех порах и капиллярные тракты бетона.Эти кристаллы надежно закрывают микротрещины, поры и капилляры в бетоне от проникновения воды или жидкостей с любого направления.
«Обладая низкой проницаемостью и способностью к самовосстановлению для заделки новых трещин, бетонные элементы, обработанные PENETRON ADMIX, будут иметь увеличенный срок службы», – заключает Игорь Черноголов. «Благодаря PENETRON ADMIX обслуживание обработанной конструкции будет минимальным для Саратовского международного аэропорта Гагарин – экономия времени и денег».
Группа компаний «Пенетрон» – ведущий производитель специальных строительных материалов для гидроизоляции бетона, ремонта бетона и систем подготовки полов.Группа работает через глобальную сеть, предлагая поддержку проектировщикам и строителям через свои региональные офисы, представителей и каналы сбыта.
Для получения дополнительной информации о решениях для гидроизоляции PENETRON посетите Penetron (dot) com или Facebook (dot) com / ThePenetronGroup, отправьте электронное письмо CRDept (at) Penetron (dot) com или свяжитесь с отделом корпоративных отношений по телефону 631-941-9700.
ИСТОЧНИК Группа компаний «Пенетрон»
[PDF] Без названия – Скачать бесплатно PDF
1 2 3 4 5 6 7 8 9 10 11 12 13 14 15 16 17 18 19 20 21 22 23 24 25 26 27 28 29 30 31 32 33 34 35 36 37 38 Клиент ICS / Pene…
ПРЕДЛОЖЕНИЕ ПО ЗАЩИТЕ ПРОЕКТА ЗАЩИТЫ СТОЧНЫХ ВОДICS Penetron International Ltd.
Solution
4
Как продукты Penetron обеспечивают водонепроницаемость и защиту бетона Penetron / Penetron Plus
5
Penetron Admix
6
Характеристики, преимущества и преимущества технологии Penetron Характеристики и преимущества Преимущества Сравнение продуктов с пенетроном Система
7-8 9 10-11
Предложение по гидроизоляции бетона с применением продуктов Penetron для очистных сооружений Проектное предложение по резервуарам
12
Предложение по туннелям или каналам сточных вод
12
Предложение по вспомогательному Структура
13
Применение продуктов Penetron Применение Penetron Применение Penetron Admix
14-15 16
Обеспечение / контроль качества продуктов Penetron A / QC Penetron
17-18
A / QC Penetron Admix
19-21
История проекта
22-24
Одобрения
25
Данные испытаний
26
Микроскопический анализ в терминале аэропорта Чанги3
27-36
Лабораторные испытания гидроизоляционной системы Penetron
370003 Лабораторные испытания материала «Пенетрон» на химическую стойкость
40-42
Бетонная гидроизоляция с интегральной капиллярной системой
Городская система очистки сточных вод представляет собой сочетание канализационной трубы и канала, насосной станции и станции очистки сточных вод.В некоторых отдаленных районах нет системы, и сточные воды не очищаются перед сбросом в систему канализации. Очистные сооружения очищают бытовые сточные воды и промышленные отходы. Сбросы с растений сбрасываются в водные пути или распространяются по суше. Большинство очистных сооружений проходят первичную очистку (физическое удаление плавучих и твердых частиц) и вторичную очистку (биологическое удаление растворенных твердых частиц).
Типовая установка для очистки сточных вод, включая удаление питательных веществ S – Экран
GC – Песколовка
PT – Предварительная очистка
CL – Уточнение
Типовая схема установки
-1-
ICS / Penetron International LTD.
Проект очистных сооружений сточных вод
Бетонная гидроизоляция интегральной капиллярной системы
ICS / Penetron ICS / Penetron International International LTD. LTD.
Почему бетонные конструкции изнашиваются
Влага, вода и химические вещества повреждают бетон Даже высококачественный бетон является пористым материалом –
Избыточное испарение воды во время затвердевания оставляет миллионы пор и капилляров в бетоне
–
Зоны между цементом и заполнителями склонны к растрескиванию во время твердения из-за усадки при высыхании, температурного напряжения и внешних сил
Пористость бетона –
Позволяет влаге, воде и химическим веществам свободно перемещаться по бетону
–
Увеличивает абсорбцию вредные химические вещества
Влага, вода и проникновение химикатов –
Приводит к коррозии бетона из-за растворенных в воде химикатов
–
Приводит к нейтрализации (карбонизации) бетона
–
Приводит к щелочному заполнителю реакция
–
Циклы замораживания / оттаивания могут привести к образованию бетона te растрескивание и повреждение
–
Уменьшает структурные свойства
-2-
Гидроизоляция бетона с интегральной капиллярной системой
ICS / Penetron International LTD.
Повреждение арматурной стали влагой, водой и химическими веществами
В необработанном затвердевшем бетоне остаются миллионы пор и капилляров
Хлориды проникают в бетон с помощью поверхностной влаги и воды
Когда хлориды проникают в арматурную сталь, начинается коррозия
Дальнейшее проникновение хлоридов приводит к дальнейшей коррозии, разрушению и растрескиванию.
Со временем любая необработанная бетонная конструкция будет медленно разрушаться из-за присутствия воды и химикатов. -3-
Гидроизоляция бетона с интегральной капиллярной системой
Продукция Penetron цементирующие капиллярно-кристаллические гидроизоляционные материалы –
Порошки, состоящие из портландцемента, кварцевого песка и нескольких активирующих химикатов
–
Диапазон активирующих химикатов в порошковой форме, которые можно наносить на бетон в качестве добавки, суспензии и в сухом виде. встряхнуть
Продукция Пенетрон банка эффективно предотвращает проникновение воды и влаги в бетон и обеспечивает наилучшую защиту бетона за счет улучшения капиллярной структуры и уменьшения пористости –
Penetron
Наносится кистью или распылителем на затвердевшую бетонную поверхность
–
Penetron Plus
Нанесение сухим встряхиванием на горизонтальную свежую бетонную поверхность
–
Penetron Admix
Добавка, добавляемая в новый бетон во время замеса для полной целостной гидроизоляции
Применение Водонапорные башни и резервуары для хранения
Резервуары и дамбы
Бассейны
Метро и другие туннельные системы
Мостовые настилы
Парковочные площадки
Морские и морские сооружения
Подвалы
Фундаменты
Канализационные и водоочистные сооружения
Транспортные конструкции Лифтовые шахты
Компания прошла ISO 9001
проверка подлинности системы качества 90 003
-4-
ICS / Penetron International LTD.
Что такое продукция «Пенетрон»?
Интегральная капиллярная система гидроизоляции бетона
ICS / Penetron International LTD.
Как продукты Penetron обеспечивают водонепроницаемость и защиту бетона
Penetron или Penetron Plus
Типичная структура бетона с влажностью
При смешивании с водой и нанесении в качестве покрытия активные химические вещества в Penetron вызывают реакцию, приводящую к образованию нерастворимых веществ. кристаллы в порах и капиллярных каналах бетона
Бетон становится постоянно герметичным, и ни вода, ни другие жидкости не могут проникать в бетон с любого направления
Бетон предварительно пропитан водой, поэтому присутствует достаточное количество жидкости чтобы химические вещества попадали в поры бетона.Химические вещества попадают в бетон за счет диффузии. При правильных условиях химические вещества могут также проникать в бетон, просачивая воду или естественным образом впитывая бетон. Попадая в бетон, химические вещества вступают в реакцию с негидратированными частицами цемента и побочными продуктами гидратации цемента с образованием игольчатых кристаллов, которые заполняют и блокируют поры и капилляры в бетоне. Вода больше не может проходить через бетон, поэтому бетон считается «водонепроницаемым».В отсутствие влаги активирующие химические вещества остаются бездействующими в бетоне в течение многих лет. Любая проникающая влага может активировать спящие материалы. Каждый раз, когда появляются новые трещины, химическая реакция и процесс герметизации повторяются автоматически.
-5-
Интегральная капиллярная система Гидроизоляция бетона
Penetron Admix – уникальная кристаллообразующая добавка, обеспечивающая постоянную защиту зданий и других конструкций путем гидроизоляции бетона изнутри.Пенетрон Адмикс добавляется в бетонную смесь во время замеса. Активирующие химические вещества продукта вступают в реакцию с водой, негидратированными частицами цемента и побочными продуктами гидратации цемента в бетоне с образованием игольчатых кристаллов. Эти кристаллы растут и мигрируют через бетон, заполняя микротрещины и микроскопические пустоты, которые в противном случае служили бы проходами для вредной влаги. Penetron Admix усиливает естественный процесс гидратации в бетоне за счет интенсификации роста кристаллов гидратации, увеличения прочности на сжатие и уменьшения растрескивания, вызванного усадкой.В отсутствие влаги активирующие химические вещества остаются бездействующими в бетоне в течение многих лет. Если трещины появятся снова, эти спящие материалы активируются любой проникающей влагой, и химическое воздействие и процесс герметизации повторяются автоматически.
-6-
ICS / Penetron International LTD.
Penetron Admix
Интегральная капиллярная система гидроизоляции бетона
ICS / Penetron International LTD.
Характеристики, преимущества и преимущества
Характеристики и преимущества –
Penetron Admix Постоянная гидроизоляционная добавка · Герметичность сохраняется до тех пор, пока бетон · Система становится неотъемлемой частью бетона · Не требует повторного нанесения · Устойчив к высокому гидростатическому давлению от с положительной или отрицательной поверхностью · Идеально для укладки под грунтом · Не требует какой-либо другой гидроизоляции · Защищает от загрязнения грунта водой Защищает арматурную сталь от коррозии · Высокая устойчивость к агрессивным химическим веществам на водной основе · Предотвращает проникновение воды, необходимой для AAR · Позволяет бетону растекаться. дышать, устраняя скопление паров и оставляя бетон полностью сухим. Вырастет кристаллы спустя годы после первоначального строительства. • Активизируется повторно в присутствии влаги.4 мм и предотвращает проникновение воды, которое может произойти в результате последующего повреждения конструкции. • Постоянно улучшается со временем. Многофункциональная добавка. • Не содержит стеаратов, натрия и силикатов. • Не является продуктом гидрофобного типа. действует как катализатор для негидратированных частиц цемента, уже существующих в бетоне · Снижает содержание воды, увеличивает удобоукладываемость свежего бетона · Повышает прочность на сжатие затвердевшего бетона · Нетоксичен · Допущен для использования с водопроводной водой
-7-
Integral Капиллярная система Гидроизоляция бетона
Пенетрон или Пенетрон Плюс Свойства глубокой гидроизоляции · Глубоко проникает, и непроницаемость сохраняется, пока бетон · Система становится неотъемлемой частью бетона, образуя целостное тело прочности и долговечности · Гидроизоляция и химическая стойкость свойства остаются нетронутыми, даже если поверхность повреждена. Полностью эффективна против высокой гидростатичности. статическое давление · Идеально для применения под землей, резервуаров и трубопроводов · Не требует защиты во время засыпки, укладки стальной или проволочной сетки и других обычных процедур · Защищает от загрязнений грунта, переносимых водой. контакт; Ph3-12 периодический контакт) и обеспечивает широкий спектр защиты от циклов замерзания / оттаивания, агрессивной воды, морской воды, карбонатов, хлоридов, сульфатов и нитратов · Прекращает проникновение воды, необходимой для AAR · Позволяет бетону дышать, устраняя скопление паров и оставляя бетон полностью сухим. Через несколько лет после первого нанесения вырастут кристаллы. • Активизируется повторно в присутствии влаги.4 мм и предотвращает проникновение воды, которое может произойти в результате последующего повреждения конструкции. • Постоянно улучшается со временем. Эффективный метод нанесения. • Может применяться как с положительной, так и с отрицательной стороны. бетон · Совместим с клеями на водной основе и поверхностными покрытиями Технология высоких темпов роста · Отсутствие летучих органических соединений · Не содержит стеаратов, натрия и силикатов · Не является продуктом гидрофобного типа · Не уплотняет поверхность · Нетоксичен · Допущен для использования с питьевой водой
-8-
ICS / Penetron International LTD.
–
Интегральная капиллярная система гидроизоляции бетона
ICS / Penetron International LTD.
Преимущества Penetron Technology –
Penetron Admix Преимущества для владельцев недвижимости · Рентабельность · Снижает общие затраты на проект · Постоянная гидроизоляционная система · Не требует обслуживания · Повышает качество бетона для структурных характеристик и целостности · Увеличивает использование инфраструктуры · Устраняет время простоя и затраты, связанные с техническим обслуживанием и ремонтом. • Снижает требования к времени выполнения проекта. • Долгосрочная гарантия производителя. • История успеха производителя в различных климатических и экологических условиях. Преимущества для подрядчиков. • Непревзойденная техническая поддержка. системы · Улучшает заливку и укладку бетона · Устраняет задержки строительства из-за устранения традиционного периода ожидания для установки мембран на затвердевший бетон
–
Пенетрон или Пенетрон Плюс Преимущества для владельцев недвижимости · Рентабельность · Снижает общие затраты на проект · Постоянная гидроизоляция fing system · Не требует обслуживания · Долгосрочная гарантия производителя · История успеха производителя в различных климатических и экологических условиях. Преимущества для подрядчиков · Непревзойденная техническая поддержка · Снижает количество ошибок, связанных с установкой других систем · Снижает риск выхода из строя мембраны · Не требует защитный цементный раствор по сравнению с другими системами
-9-
Интегральная капиллярная система Гидроизоляция бетона
Penetron Penetron Plus
Penetron Admix
Мембраны (положительная сторона)
Цементный материал, нанесенный на поверхность бетона для переноса игольчатых кристаллов для проникновения в бетонную массу · Улучшается со временем · Устойчивость к давлению, превышающему 150 м · Выдерживает 3 МПа при испытании на проницаемость
Цементный материал, добавленный в свежий бетон для образования игольчатых кристаллов в бетонной массе · Улучшается со временем · Постоянная способность к самовосстановлению · Инициирует полный гидр. атион
Защита арматурной стали
· Предотвращает коррозию арматурной стали, перекрывая прохождение воды и хлоридов
· Постоянная защита · Предотвращает проникновение воды и хлоридов
· Отсутствие защиты от отрицательных сторон · Легко протекает в стыках и швах
Способность к самовосстановлению трещин
· Повторно активируется в присутствии влаги, чтобы запечатать новые трещины даже спустя годы. · Жесткий материал, не выдерживает чрезмерных преобразований, но самостоятельно лечит незначительные трещины до 0.4 мм
· Повторно активируется в присутствии влаги, чтобы заделать новые трещины даже спустя годы · Уменьшает растрескивание пластика и стадию отверждения · Самостоятельное заживление мелких трещин до 0,4 мм в присутствии влаги · Повышает долговечность за счет удаления воды изнутри бетон · Устраняет проникновение воды в трещины · Легко ремонтируется как с положительной, так и с отрицательной стороны · Доступен широкий спектр опций · Ремонт рентабелен
· Нет способности к самовосстановлению
Описание
Устойчивость к гидростатическому давлению воды
Устойчивость к трещинам
Устойчивость к замораживанию / оттаиванию
Требование к ремонту
· Повышает долговечность за счет удаления воды из бетона · Устраняет проникновение воды в трещины · Постоянная гидроизоляционная защита, не требует ремонта
Другие продукты для поверхностного нанесения
Жидкие и листовые битумные и полимерные покрытия к бетонной поверхности
Материалы, наносимые на бетонную поверхность, содержат в основном гидрофобизаторы и герметики
· Защита нарушена любым отверстием или швом · В случае утечки потребуется замена
· Снижает первоначальное поглощение, но со временем ухудшается · Ограниченное проникновение приводит к плохой устойчивости к гидростатическому давлению · Отсутствие защиты от отрицательной стороны · Ограниченная защита, поскольку он замедляет проникновение воды в неповрежденные участки · Нет способности к самовосстановлению
· Может выдерживать чрезмерное преобразование · Ограниченная временная защита в местах существующих трещин
· Нет трещиностойкости · Временно заполняет существующие трещины
· Медленно ухудшающие факторы изначально
· Изначально медленно ухудшаются факторы · Отсутствие износостойкости в местах трещин
· Сложно ремонтировать · Сложно обнаружить точечные отверстия и плохие соединения · Может потребоваться полное удаление и ремонт · Дорогой, а иногда и невозможный из-за доступности
· Ремонт может потребовать удаления предыдущие материалы
-10 –
ICS / Penetron Internat ional LTD.
Сравнение продуктов Penetron с другими гидроизоляционными системами
Интегральная капиллярная система Гидроизоляция бетона
Применение
Подготовка поверхности
График строительства
Эффективное землепользование
Подземная дренажная система
· Наносится кистью / распылителем на положительный или отрицательная сторона старого / нового бетона.
· Может наноситься на отрицательную сторону бетона, позволяя строительство плотно прилегать к собственности. · Не требуется
Дополнительные покрытия
· Можно отделывать покрытиями, плиткой и т. Д.
Техническое обслуживание
· Не только в качестве поверхностного покрытия · Техническое обслуживание не требуется · Постоянно и улучшается со временем
Срок службы
Penetron Admix · Смешивается на периодическом заводе или на месте · Не требуется дополнительных применений
· Не требует подготовки поверхности
· Добавляется в свежий бетон во время замеса. · Экономит 10-50% времени и затрат на строительство. · Может плотно прилегать к строительным участкам.
· Не требуется.
. не требуется для срока службы бетона · Срок службы бетона
Мембраны (положительная сторона)
Другие продукты, наносимые на поверхность
· Жидкости: нанесение кистью · Листы: приклеенные или приваренные к бетонной поверхности · Правильные соединения и швы, критически важные для рабочие характеристики · Чистая поверхность · Сухая поверхность · Гладкая поверхность
· Наносится только на положительную сторону · Профиль основания критичен для рабочих характеристик
· Обязательно после завершения строительных работ · Требуется защитный цементный раствор
· Некоторым требуется 28 дней выдержки бетона · Планирование аналогично мембранным
· Необходимое пространство между линией собственности и бетоном для установки мембраны · Требуется дренаж под высоким гидростатическим давлением · Требуется предварительный защитный раствор до отделки поверхности
· Необходимое пространство между линией покрытия и бетоном для нанесения на поверхность
· Обычно требуется дорогостоящая замена
· Требуется повторное нанесение в гидростатических условиях · Лучше всего при первом нанесении · Со временем ухудшается · Уязвимость к повреждению поверхности
· С возрастом становится хрупким, что приводит к появлению трещин и отверстий · Повреждение поверхности устраняет защиту
· Требуется подготовка поверхности в зависимости от требований к продукту
· Требуется дренаж при высоком гидростатическом давлении · Может потребоваться специальная подготовка перед отделкой поверхности
– 11 –
ICS / Penetron International LTD .
Penetron Penetron Plus
Интегральная капиллярная система Гидроизоляция бетона
Предложение для резервуаров Самогидроизоляционная обработка бетона или гидроизоляция бетонной поверхности
–
Самогидроизоляционная обработка бетона Penetron Admix добавляется в бетон во время дозирования для полная интегральная гидроизоляция.
–
Гидроизоляция бетонных поверхностей Пенетрон наносится на поверхность резервуаров кистью или распылением.
– 12 –
ICS / Penetron International LTD.
Пенетрон для проекта водоочистных сооружений
Интегральная капиллярная система Гидроизоляция бетона
Самогидроизоляционная обработка бетона или гидроизоляция бетонной поверхности
–
Самогидроизоляционная обработка бетона Penetron Admix добавляется в бетон во время дозирования для полной целостной гидроизоляции.
–
Гидроизоляция бетонных поверхностей Пенетрон наносится на поверхность туннелей или канализационных каналов кистью или распылением.
Предложение для вспомогательных конструкций Самогидроизоляционная обработка бетона или гидроизоляция поверхности бетона –
Самогидроизоляционная обработка бетона Пенетрон Адмикс добавляется в бетон во время замеса для полной целостной гидроизоляции.
–
Гидроизоляция бетонной поверхности Пенетрон наносится на поверхность кистью или распылителем.
– 13 –
ICS / Penetron International LTD.
Предложение для туннелей или каналов сточных вод
Бетонная гидроизоляция с интегральной капиллярной системой
ICS / Penetron International LTD.
Применение продуктов «Пенетрон»
Применение продуктов «Пенетрон» –
Подготовка поверхности Бетонная поверхность для установки системы «Пенетрон» должна быть структурно прочной и не содержать грязи, почвы, масла, разделительных агентов, цементного молочка или любых других посторонних материалов, которые могут повредить сцепление, проникновение и / или общие характеристики материалов Penetron. Чрезвычайно гладкая бетонная поверхность должна быть подвергнута водоструйной или пескоструйной очистке, чтобы убедиться, что бетонная поверхность имеет открытую капиллярную систему.Удалите видимые трещины размером более 0,4 мм на глубину от 20 до 25 мм. Также удалите ячеистые карманы и дефектные строительные швы, чтобы обеспечить прочный бетон. Строительные швы фрезерованы или снабжены формованным реглетом 20 мм * 20 мм. Смочите сухие поверхности перед нанесением материалов Penetron. В слоях бетона должна присутствовать влага, чтобы обеспечить максимальное проникновение химикатов. При нанесении продуктов «Пенетрон» поверхности должны быть влажными.
–
Нанесение смешивающей кистью: 0.8–1,5 кг / м2, 5 частей пенетрона на 2 части воды Распыление: 0,8–1,5 кг / м2, 5 частей пенетрона на 2,75–3,25 частей воды (зависит от климата и оборудования для распыления). Пенетрон следует перемешать до консистенции. густой латексной краски. Часто перемешивайте суспензионную смесь во время нанесения и готовьте ровно столько, сколько можно нанести за 30-минутный период.
–
Нанесение Нанести покрытие Пенетрон каменной кистью (искусственные волокна, если есть). Для нанесения распылением рекомендуется оборудование типа капельного бункера или поршневого насоса.Перед нанесением покрытий «Пенетрон» заполните анкерные отверстия в форме, удалите трещины, медовые бомбы, реглеты и уплотнительные ленты на строительных швах с помощью Penecrete Mortar слоем ламината от 2,5 до 3 см. Перед нанесением раствора Penecrete Mortar загрунтуйте бетонную поверхность этих участков одним слоем суспензии пенетрона. Раствор Пенетрон необходимо наносить на влажную бетонную поверхность. Второй слой следует наносить, когда первый слой высохнет на ощупь. В жарком / сухом климате между слоями может потребоваться легкое распыление воды.
– 14 –
Гидроизоляция бетона с интегральной капиллярной системой
Нанесите пенетрон или пенетрон Плюс сухим способом на «все еще пластичный» бетон путем разбрызгивания или использования мелкоячеистого сита в указанных количествах. Обработайте поверхность плит с порошковым покрытием Penetron с помощью деревянного шпателя или механического шпателя до достижения требуемой отделки. –
Покрытие Горизонтальная бетонная поверхность: Пенетрон от 1,4 до 1,6 кг / м2. Наносить одним слоем суспензии или порошковой краской, когда бетон достигнет начального схватывания.Шпателем или теркой до указанной отделки. Нанесение порошка Пенетрон Плюс из расчета 0,5 кг / м2, когда бетон достигает начального схватывания. Шпателем или теркой до указанной отделки. Вертикальные бетонные поверхности: Пенетрон от 1,4 до 1,6 кг / м2. Наносить в два слоя (0,8 кг на слой).
–
Отверждение За исключением очень жаркой погоды и очень низкой влажности, отверждение системы Penetron не требуется. В этих экстремальных условиях отверждение с использованием легкого водяного тумана должно начинаться, как только покрытие Penetron достаточно затвердеет.В большинстве случаев достаточно в первый день опрыскивать участки, обработанные Пенетроном, трижды в день. В очень жарком климате опрыскивание может потребоваться чаще и в течение нескольких дней. Пенетрон Плюс (наносится шпателем): Следуйте конкретным спецификациям по процедурам отверждения.
–
Требования к температуре Система Penetron может наноситься в виде покрытия или строительного раствора при температуре выше 32 градусов по Фаренгейту или 0 градусов по Цельсию. Penetron Plus (наносится шпателем) можно наносить при температурах, при которых возможно укладывание бетона.Соблюдайте конкретные спецификации требований к защите в соответствии со стандартными конкретными процедурами.
-15-
ICS / Penetron International LTD.
Горизонтальные бетонные поверхности: Нанесите суспензию Пенетрон в один слой с помощью щетки с жесткой щетиной / щетки или ракеля.
Бетонная гидроизоляция с интегральной капиллярной системой
–
Дозировка Penetron Admix: 0,8% -1% от веса цементирующих материалов, включая летучую золу, микрокремнезем и т.д. увеличивается на 2% -3%, в зависимости от условий проекта.
–
Нанесение Готовая смесь Завод-Сухая партия: Добавьте Пенетрон Адмикс в виде порошка в барабан грузовика для готовой смеси. Загоните грузовик под бетонный завод и добавьте 60% -70% необходимой воды вместе со 136-227 кг заполнителя. Смешивайте материалы в течение 2-3 минут, чтобы адмикс равномерно распределился по всей воде для замешивания. Добавьте остаток материалов в автобетоносмеситель в соответствии со стандартной практикой дозирования. Завод по производству готовых смесей – Центральный режим смешивания: смешайте Penetron Admix с водой до образования очень жидкой суспензии (например,г., 18 кг порошка смешать с 22,7 л воды). Залить необходимое количество материала в барабан автобетоносмесителя. Заполнитель, цемент и вода должны быть дозированы и смешаны на заводе в соответствии со стандартными методами (с учетом количества воды, которое уже было залито в грузовик для приготовления товарной смеси). Залейте бетон в грузовик и перемешивайте не менее 5 минут, чтобы обеспечить равномерное распределение Penetron Admix по бетону. Сборный завод периодического действия: добавьте Penetron Admix в камень и песок, а затем тщательно перемешайте в течение 2-3 минут перед добавлением цемента и воды.Общая масса бетона должна быть смешана с использованием стандартных методов.
–
Примечание Penetron Admix совместим с другими водоредуцирующими добавками и суперпластификаторами. При использовании Пенетрон Адмикс возможно замедление схватывания. Для определения времени схватывания необходимо выполнить пробные смеси в условиях проекта. После того, как состав бетонной смеси определен, любая корректировка дозировки без тестирования запрещена.
– 16 –
ICS / Penetron International LTD.
Применение Penetron Admix
Интегральная капиллярная система гидроизоляции бетона
ICS / Penetron International LTD.
Контроль качества продуктов Penetron
Контроль качества и качества проекта Penetron: Раздел приложения: Заказчик: Подрядчик: Дата проверки: Проверка перед применением: Ремонт поверхности:
Обработка гладкой поверхности:
Ремонт трещин
[
]
Ремонт выкрашивания
[
]
Пустой ремонт
[
]
Удаление строительного мусора
[
]
Пескоструйная очистка
]
Waterblast
[
]
Scabbling
[
]
[
]
[
]
/
] по подготовке поверхности:
Контроль во время нанесения: Смешивание Продукт:
Качество воды в смеси Счетчик смеси
[
Норма внесения Количество слоев Нанесение кистью или распылением
[1 [
кг / м2]] или 2 [
] [
]
[
]
– 17 –
Интегральная капиллярная система гидроизоляции бетона
ICS / Penetron International LTD.
Проверка после нанесения: Наблюдайте и прокомментируйте последовательность нанесения: Толщина: Покрытие: Соединения: Перекрытие: Проникновение: Программа отверждения: Водяной туман [
] раз в день, в течение [] дней
Объем продукта, использованного в этом секция:
[
кг]
Обработанная площадь
[
м2]
Комментарии:
Проверено: Дата:
– 18 –
Интегральная капиллярная система для гидроизоляции бетона
ICS LTD.
Обеспечение / контроль качества предварительного литья под давлением Penetron Admix: Тип конструкции: Идентификация секции: Дата проверки: Дата предлагаемого литья: Предлагаемое отверждение?
Да / Нет
Период отверждения
Тип отверждения:
Вода
Мешковина (смачиваемая)
Песок / вода
Химические вещества (указать марку или тип)
дней Пластик
Отчет о состоянии площадки: удален строительный мусор
Да / Нет
Опалубка чистая и надежная
Да / Нет
Арматура чистая, надежная (хорошо закреплена)
Да / Нет
Строительные швы готовы
Да / Нет
Общие условия на площадке: поверхность отливки- Строительный шов / тощий бетон / пластиковая пленка / уплотненный грунт / опалубка / другие свидетельства наличия грунтовых вод или просачивания? Созданы точки стока или водоотвода с поверхности? Гидравлическая перегородка установлена 
Да / Нет
Тип
Состояние установки гидроизоляции: необходимо подробно описать характер и расположение всех дефектов
Проверено:
Свидетелями:
– 19 –
Интегральная капиллярная система гидроизоляции бетона
Спецификация
Указанная характеристическая прочность:
28 дней
Целевая средняя прочность: Отношение свободная вода / цемент: Тип бетона: Осадка бетона: Цементные материалы
Цемент
Тип: Содержание:
Содержание кремнезема: Зола-унос
Содержание:
Прочее
Тип: Содержание:
Заполнители
Тип
Крупные частицы: Мелкие:
Относительная плотность агрегатов: Номинальная крупность крупнодисперсных агрегатов: Сортировка тонкодисперсных агрегатов: Крупнозернистые. Содержание: Вода
Свободная вода Содержание:
Добавки
Тип: Penetron Admix Dosag e: Другое
на 100 кг вяжущих материалов Тип: Дозировка: Тип: Дозировка:
Проверено:
Свидетель:
Дата:
-20 –
ICS / Penetron International LTD.
Дизайн бетонной смеси
Интегральная капиллярная система Гидроизоляция бетона
ICS / Penetron International LTD.
Объем бетона после заливки: Идентификация литого профиля: Дата осмотра: Дата заливки: Дата снятия опалубки: Применено ли отверждение? Да / Нет
Период отверждения
Дней
Тип отверждения:
Вода
Мешковина (смачиваемая)
Пластик
Песок / вода
Химический
Опалубка
Отчет о состоянии сотовой связи: свидетельства образования сотов?
Да / Нет / Фотография
Доказательства взлома?
Да / Нет / Фото
Доказательства утечки воды?
Да / Нет / Фото
Открытая арматура
Отверстия для анкерных болтов
Да / Нет / Фото
Да / Нет / Фото
Состояние финишной поверхности:
Гидравлическая планка установлена 
Да / Нет
Состояние гидроизоляции Установка: непрерывная? Требуется повторная сварка?
Требуется очистка?
Все дефекты подлежат подробному описанию, включая расположение, степень, видимую глубину и т. Д.
Осмотрел:
Свидетель: ICS / Penetron International LTD.
– 21 –
Интегральная капиллярная система Бетонная гидроизоляция
Пенетрон на Миланской водоочистной станции Миланская водоочистная установка, строительство которой планируется завершить осенью 2004 года, будет отводить воду Южного Ламбро с водосборной площадью 1 000 000 жителей . После завершения первой части, обработанной системой «Пенетрон», управляющие инженеры сочли ее производительность превосходной и решили использовать систему «Пенетрон» также для обработки всех очистных бассейнов.Общая площадь этих бассейнов составляла около 120 000 м2. В целом общая поверхность, покрытая пенетроном, составила около 150 000 м2 при расходе продукта около 250 000 кг. Система «Пенетрон» применялась в этом проекте тремя различными способами: распыление (на вертикальной поверхности), кистью и сухим встряхиванием (на горизонтальной поверхности) на различные части водоочистной установки. Раствор Penecrete использовался вместе с Penetron для гидроизоляции бетонных «ям», ремонта сколотых и поврежденных участков, заделки анкерных отверстий и заполнения проложенных трещин.
Нанесение распылением на поверхность аддукционного канала
перед нанесением
Нанесение распылением
Распыление сверху
Распыление на стену
Нанесение распылением на вертикальную поверхность различных резервуаров
Пескоструйная обработка
цикл полива
распыление
после распыления
– 22 –
ICS / Penetron International LTD.
История Проекты
Интегральная капиллярная система Бетонная гидроизоляция
ICS / Penetron International LTD.
Пенетрон на водоочистной станции Милана
Нанесение кистью на бетонный пол резервуаров с твердым покрытием
Нанесение сухим встряхиванием на свежий бетонный пол резервуаров
заливка бетона
отделка
смешивание пенетрона с кварцевым песком
отделка
сухая встряска с квартовым песком
сухая встряска через 1 день
Ремонт бетона пенекретом
– 23 –
Интегральная капиллярная система Гидроизоляция бетона
Рижские очистные сооружения по очистке сточных вод Предприятие Рижского самоуправления «Rigas Udens» Очистка сточных вод Реконструкция завода “Даугавгрива”
Канализация и водоочистка Город Утена, Литва Пенетрон был применен для теплоизоляции двух (2) резервуаров для сточных вод.
Завод по контролю за загрязнением сточных вод на Кони-Айленде, Бруклин, Нью-Йорк. В 1992 году пенетрон был применен для строительства туннелей для персонала под и между входными и сточными каналами, а также во всех подземных помещениях и сооружениях.
Завод по борьбе с загрязнением сточных вод в Сидар-Крик, США В 1993 году пенетрон был применен в туннелях для персонала под и между входными и выходными каналами.
-24-
ICS / Penetron International LTD.
История Проекты
Интегральная капиллярная система Бетонная гидроизоляция
ICS / Penetron International LTD.
Данные испытаний Penetron –
Лабораторные испытания гидроизоляционной системы PENETRON Рижский технический университет Определение гидроизоляции RTU Обзор испытаний № 64-98 Определение гидроизоляции Испытания с помощью сканирующего электронного микроскопа (SEM) Отчет об испытаниях рентгеновского дифракционного анализа / Шэньчжэнь, Китай
–
Прочность на сжатие
–
Шимель и Сор 12/21/94 Шимель и Сор 11/22/93 AITA 4/3/85 –
Шимель и Сор 21/12/94 AITA 8 / 7/85 AITA 12/10/90
Микроскопические исследования
–
Шимель и Сор 12/21/94 –
–
Испытания на водопроницаемость
Анализ бетона на содержание пенетронов Шимел и Сор 21.12.94
Химическая стойкость
–
Содержание хлоридов
Таблица химической стойкости / коррозии Shimel and Sor 19/93
Shimel and Sor 21.12.94
Испытания на сдвиг и сцепление
Токсичность
9000 2 –Шимель и Сор 12/21/94 AITA 3/7/85 AITA 3/8/85 Рига 4/97
Острая пероральная токсичность Миграция токсичных элементов Тест на цитотоксичность
Penetron Admix SETSCO Сингапур – отчет о перекрытии трещин на Терминале 3, Непроницаемость аэропорта Чанги, Университет Алеппо Эффект Penetron Admix на бетон – Хельсинкский ACCI – Университет Нового Южного Уэльса, Австралия – полное исследование эффекта Penetron Admix на бетон SETSCO Сингапур – микроскопическое исследование эффекта перекрытия трещин Penetron Admix на бетоне PBFC SETSCO Оценка производительности Penetron Admix
под микроскопом в Сингапуре через 14 дней
Микроскопическое исследование бетона через 28 дней – 25 –
Гидроизоляция бетона с интегральной капиллярной системой
SETSCO SERVICES PTE LTD 18 Teban Gardens Crescent Singapore 608925 Тел: ( 65) 6566 7777 Факс: (65) 6566 7718 Веб-сайт: www.setsco.com
Наш номер: A6127 / CHF ОТЧЕТ ОБ ИСПЫТАНИЯХ
Дата: 25.10.02 Стр. 1 из 4
(Этот отчет выпускается в соответствии с условиями, изложенными ниже)
МИКРОСКОПИЧЕСКИЙ АНАЛИЗ БЕТОНА ЯДЕРЫ ИЗ СТЕНЫ В ТЕРМИНАЛЕ 3 АЭРОПОРТА ЧАНГИ
Подготовлено для: REVERTON ENGINEERING (S) PTE LTD 605A Macpherson Road # 06-02 Citimac Industrial Complex Singapore 368240 Attn: Г-н Гэри Ло
Отчет подготовил: Chen Hong Fang Senior Engineer Отдел строительных технологий
Отчет получил и утвердил: Вонг Чунг Ван Директор департамента строительных технологий
– 26 –
Бетонная гидроизоляция с интегральной капиллярной системой
A6127 / CHF
Страница 2 из 4
1.ВВЕДЕНИЕ О растрескивании и просачивании воды на подпорную стену в Терминале 3 аэропорта Чанги сообщила компания Reverton Engineering (s) Pte Ltd (далее – заказчик). Заказчик нанял SETSCO для проведения лабораторного анализа для определения ширины трещины и роста кристаллов в трещине на бетонных ядрах, извлеченных из указанной конструкции. Предлагаемый подвал был построен с тремя сторонами стены, обозначенной в этом отчете как стена 1-3 (см. Рисунок 1 в Приложении A). Толщина стены около 600 мм.Говорят, что в бетон использовалась гидроизоляционная добавка PENETRON. Утечка воды была обнаружена по линии трещины и шпильке после засыпки. Однако утечка воды была остановлена на стене 1, которая была отлита где-то в 2001 году. Признаки высолов были обнаружены со всех трех сторон стены. Большая часть высолов исходила от шпилек, но на некоторых участках также были отмечены трещины с некоторыми признаками высолов (см. Фотографии в Приложении). 10.05.2002 из стены 1 было извлечено три образца керна.Образцы S1 и S3 были извлечены из области трещины, а образец S2 – на шпильке. Во время извлечения керны были просверлены на глубину 400 мм, но из-за наличия арматуры длина удаленного керна S3 составила всего 240 мм. Проект бетонной смеси, предоставленный заказчиком, приведен в Приложении A.
2. МИКРОСКОПИЧЕСКИЙ АНАЛИЗ Микроскопический анализ был проведен на шлифованном срезе с использованием стереомикроскопа и металлургического микроскопа, а на шлифе – с помощью поляризационного и флуоресцентного микроскопа (PFM). в проходящем и отраженном свете.Для подготовки шлифованного участка небольшой блок образца был вырезан и отшлифован до получения гладкой поверхности. Для изготовления шлифа из образца керна выпиливали небольшой бетонный блок, приклеивали к предметному стеклу и пропитывали эпоксидной смолой, содержащей флуоресцентный краситель. После затвердевания эпоксидной смолы для анализа PFM был подготовлен тонкий участок с площадью поверхности приблизительно 33 * 63 мм и толщиной 20-30 мм.
– 27 –
Интегральная капиллярная система Гидроизоляция бетона
A6127 / CHF
Страница 3 из 4
В проходящем свете, различные компоненты (тип цемента и заполнители), содержание воздушных пустот, поры уплотнения и явления повреждения в образцы были идентифицированы.В отраженном свете флуоресцентная микроскопия позволяла исследовать однородность смеси и цементного теста, капиллярную пористость, микротрещины и другие дефекты в образцах. Методы сканирующего электронного микроскопа (SEM) и энергодисперсионного рентгеновского анализа (EDX) также применялись для полуколичественного анализа элементного состава кристаллов, присутствующих в трещине, и топографии кристаллов. Таким образом, SEM использует пучок электронов в вакуумной среде для формирования изображения топографии поверхности образца.Такие увеличенные изображения характеризуются высоким уровнем разрешения и хорошей глубиной обзора. Характерные рентгеновские лучи, испускаемые поверхностью образца при облучении электронами, затем анализируются с использованием аксессуара / детектора EDX, который подключен к SEM, что позволяет оценить% содержания элементов в облученных областях / пятнах на образце.
3. РЕЗУЛЬТАТЫ i) Визуальный осмотр Длина стержней варьировалась от 240 мм до 310 мм. Трещина, перпендикулярная поверхности, отмечена в образцах S1 и S3.Ширина трещины составляла от 0,04 мм до 0,3 мм. Матрица пасты имела светло-серый цвет, тогда как матрица пасты была в целом светло-серой. Были приготовлены тонкие срезы в верхней части образца S2 и в конце образца S3 для дальнейшего микроскопического анализа. Стереомикроскоп и анализ SEM-EDX были выполнены на образце S3 для определения присутствия кристаллов в трещине и их элементного состава. ii) Микроскопический анализ. Под стереомикроскопом было видно множество крупнозернистых удлиненных кристаллов, выстилающих трещину.На тонком срезе образца S3 обнаружены крупнозернистые удлиненные кристаллы и мелкозернистые игольчатые кристаллы в трещине. Все эти кристаллы показали низкое двойное лучепреломление под микроскопом с перекрестной поляризацией.
– 28 –
Интегральная капиллярная система Бетонная гидроизоляция
A6127 / CHF
Страница 4 из 4
Кристаллы, присутствующие в трещине, были выполнены с помощью сканирующего электронного микроскопа и энергодисперсионного рентгеновского анализа. Крупнозернистый удлиненный кристалл (изображение BEI в Приложении) содержал в основном кальций (Ca), кислород (O) и кремний (Si).Мелкозернистый игольчатый кристалл преимущественно состоял из кальция (Ca), кремния (Si), кислорода (O), серы (S), алюминия (Al), который, вероятно, был эттрингитом (C6AS3h42). Хорошо сформированные кристаллы CaCO3 присутствовали в виде слоистой текстуры на поверхности образца S2.
– 29 –
Интегральная капиллярная система Бетонная гидроизоляция
ПРИЛОЖЕНИЕ A
Стена 2
Стена 3
Стена 1 Рис. Дата заливки
S1
19.12.2001
S2
19.12.2001
S3
06.08.2001
-30 –
Интегральная капиллярная система гидроизоляции бетона DESIGNETE
CONCRIGN Подрядчик проекта Дата Ссылка
: Строительство свайного фундамента и фундамента для Терминала 3 Сингапурский аэропорт Чанги: Сато Когио., Ltd: 8 марта 2001 г .: RE / SK / PU / 40P / 01 Насос для бетона класса 40
1
Спецификация 1.1 Удельная характеристика прочности 1.2 Расчетное стандартное отклонение 1.3 Расчетный запас 1.4 Целевая средняя прочность 1.5 Соотношение свободная вода / цемент 1.6 Тип Бетон 1.7 Осадка бетона 2 Цемент 2.1 Тип цемента 2.2 Содержание цемента 3 Заполнители 3.1 Тип заполнителя Грубый Мелкий 3.2 Относительная плотность заполнителей 3.3 Нормальный размер заполнителя 3.4 Сортировка мелкого заполнителя 3.5 Содержание грубого заполнителя: SSD 3.6 Содержание мелкого заполнителя: SSD 4 Вода 4.1 Содержание свободной воды 5 Добавки 5.1 Дозировка добавки типа 1 5.2 Дозировка добавки типа 2 6 Сводная информация (вес партии (SSD) на кубический метр бетона) Уровень осадки цемент Крупный мелкий заполнитель 40 100 ± 25 мм 398 1000 695
40 Н / мм2 через 28 дней в соответствии с BS 5328 4,6 Н / мм2 7,5 Н / мм2 47,5 Н / мм2 0,46 Бетон для насоса 100 ± 25 мм Обычный портландцемент 398 кг / м3 Гранитный щебень Природный песок / Технический песок 2,60-2,65 20 мм BS 882 Таблица 5 1000 кг / м3 695 кг / м3 185 кг / м3 Пенетрон (состав смеси) Примесь 0.8 кг на 100 кг цемента Daratard 88. Уменьшение воды, пластификация и замедление схватывания 550 мл на 100 кг цемента кг / м3 Вода 185
Admix Penetron 3.18
A / C
W / C
Плотность
4,26
0,46
2281,18
– 31 –
Интегральная капиллярная система Бетонная гидроизоляция
ПРИЛОЖЕНИЕ B
ФОТОГРАФИИ
A6127 / CHF
Трещина, соединяющаяся шпилькой со следами выцветания20003 на стене был найден по линии трещины на стене 1.
Местоположение образца S1, извлеченного в области трещины на стене.
Керн диаметром 75 мм, содержащий трещину у стены 1, был извлечен для лабораторного анализа.
– 32 –
Интегральная капиллярная система Гидроизоляция бетона
A6127 / CHF
В ядре S1 была видна трещина, перпендикулярная открытой поверхности.
Сердечник S2 был извлечен за шпильку на стене 1.
На поверхности керна S2 было довольно толстое беловатое вещество.
Признак высолов был обнаружен вдоль линии трещины в месте взятия керна S3 на стене 1.
В керне S3 была видна трещина, перпендикулярная открытой поверхности.
В керне S3 видна трещина, перпендикулярная обнаженной поверхности.
– 33 –
Гидроизоляция бетона с интегральной капиллярной системой
A6127 / CHF
Образец S3: Некоторые кристаллы выросли в трещине.
Образец S3: Большое количество крупнозернистых кристаллов в трещине.
Образец S2: слоистые кристаллы CaCO3 на поверхности бетона.Ширина поля при плоском освещении составляет 3,88 мм.
Образец S2: слоистые кристаллы CaCO3 на поверхности бетона. Ширина поля в скрещенном поляризованном свете составляет 3,88 мм.
Образец S3: Крупнозернистые удлиненные кристаллы и мелкозернистые игольчатые кристаллы выстилали трещину. Ширина поля при плоском освещении составляет 3,88 мм.
Образец S3: Изображение в отраженных электронах (BEI) показало, что некоторые кристаллы находились в трещине.
– 34 –
Гидроизоляция бетона с интегральной капиллярной системой
A6127 / CHF
Образец S3: На изображении в отраженных электронах (BEI) видны удлиненные кристаллы и мелкие игольчатые кристаллы в трещине.
Образец S3: Изображение игольчатых кристаллов в трещине в большом увеличении.
Образец S3: вторичное электронное изображение (SEI)
EDX-спектр удлиненных кристаллов в трещине.
EDX-спектр игольчатых кристаллов в трещине.
Образец S3: На вторичном электронном изображении (SEI) видны крупнозернистые чешуйчатые кристаллы в трещине.
Образец S3: изображение SEI показывает кристаллы в трещине.
– 35 –
Интегральная капиллярная система гидроизоляции бетона
Клиент ICS / Penetron International Ltd., 45 Research Way, Suite 203, East Setauket, NY 11733 Информация о проекте заказчика Лабораторные испытания гидроизоляционной системы Penetron Номер отчета: 95-387
Дата: 24.01.95
Ссылка сделана на наш отчет No. 94-6175 от 21 декабря 1994 г. В этом отчете сообщалось о влиянии покрытия «Пенетрон» на свойства бетона. Как указано в этом отчете, глубина проникновения некоторых компонентов «Пенетрона» составляла 50 мм, хотя большинство проникновений происходило на глубину до 10 мм от бетонной поверхности.По запросу Заказчика были проведены дополнительные исследования для определения и фотографирования типа проникновения или диффузии материалов в бетон от покрытия «Пенетрон». Для проведения этих испытаний использовались методы сканирующей электронной микроскопии и методы дифракции рентгеновских лучей с дисперсией по энергии. РЕЗУЛЬТАТЫ ИСПЫТАНИЙ 1. Испытания с помощью сканирующего электронного микроскопа (СЭМ) Испытанный участок бетонного сердечника был покрыт минимумом золота, чтобы обеспечить поверхность, которую можно было бы изучить с помощью световой микроскопии и сравнить с изображениями, полученными с помощью СЭМ.Фотографии, сделанные с помощью SEM, представлены в Приложении I. 2. Рентгеноструктурный анализ Согласно приложенным четырем спектрам дифракции рентгеновских лучей, в бетоне под покрытием Penetron имеется накопление кальция на глубину от 25 до 50 мм. Кальций, по-видимому, находится в форме Ca (OH) 2 и геля силиката кальция. Очевидно, эти кристаллические образования являются продуктами диффузии компонентов покрытия Пенетрон на бетонную поверхность. На глубине менее 50 мм Ca (OH) 2 меньше, в то время как содержание кремнезема (из цемента) становится доминирующим.
– 36 –
Интегральная капиллярная система Гидроизоляция бетона
ВЫВОДЫ Основываясь на этих результатах испытаний, мы пришли к выводу, что бетонные поверхности с покрытием Penetron развивают улучшенную микроструктуру бетона и гидроизоляционные свойства.
KS / smd cc: (1) Клиент Роберт Ревера
– 37 –
Гидроизоляция бетона с интегральной капиллярной системой
– 38 –
Гидроизоляция бетона с интегральной капиллярной системой
Клиент: ICS / Penetron International Ltd., C / o All Island Testing Labs. Проект: Информация клиента Тема: Лабораторные испытания материала пенетрона на химическую стойкость Отчет № 93-3981
Дата 19.10.93
По запросу клиента были проведены лабораторные испытания для определения химической стойкости обработанного пенетроном конкретный. Схема эксперимента Бетон, использованный для исследования, имел расчетную прочность f “c = 4000 фунтов на квадратный дюйм. Пропорции бетонной смеси представлены в Приложении 1. Использованные образцы бетона были вырезаны из бетонных цилиндров 6 x 12 дюймов.Образцы имели толщину 2 дюйма и диаметр 6 дюймов. На момент исследования бетону было 28 дней. Материал «Пенетрон» (который был получен в виде порошка в запечатанном пакете) был смешан с водой до образования суспензии. Соотношения были следующими: – 2 части Пенетрона – 0,8 части воды. Затем суспензия была нанесена на все поверхности бетонных образцов с помощью кисти. После окончательного схватывания пенетрона поверхности образцов были увлажнены и помещены в обычную комнату для отверждения бетона на 14 дней при 73 OF и 100% относительной влажности.По истечении 14 дней образцы были удалены из камеры для отверждения и помещены в различные химические растворы, обеспечивающие широкий диапазон уровней pH и коррозионных условий.
– 39 –
Интегральная капиллярная система Гидроизоляция бетона
Результаты испытаний ТИП ОБРАБОТКИ
PH
Обработка пенетроном
Dilute Hcl
1B
Нет Penetron
000 Penetron
2000 Penetron
2000
ТИП ОБРАЗЦА
1A
2B
НАБЛЮДЕНИЯ 7 дней
28 дней
3
Нет эффекта
Нет эффекта
Разбавленный Hcl
3
3
3
Нет эффекта
Нет эффекта
Нет разведения пенетрона h3SO4
3
Нет эффекта
Поверхность выветрилась
3A
Обработка пенетроном
Дождевая вода
4
Дождевая вода
4
4
3B
Нет пенетрона
Дождевая вода
4
Нет эффекта
Выветривание поверхности
4A
Обработка пенетроном
CaCl2
7
Нет эффекта
Нет эффекта
Нет эффекта
Нет эффекта
CaCl2
7
Нет эффекта
Незначительный эффект
5A
9000 2 Обработано пенетрономNaOH
11
Нет эффекта
Нет эффекта
5B
Нет пенетрона
NaOH
11
Нет эффекта
Нет эффекта
ВЫВОДЫ На основании этих выводов были нарисованы: 1.





 Такую зачистку проводят с помощью антисептиков.
 Состоит из портландцемента, кварцевого песка определенной гранулометрии, активных химических компонентов.
 Если в новообразовавшиеся поры бетона начинает просачиваться вода, то возобновляется рост кристаллов.
 75-3.25 parts water
 etc
 1-95