Туалет для дачи своими руками: пошаговая инструкция
Первая постройка, которая появляется на любом участке — туалет. Мы можем как-то обойтись без домика и душа, а вот без этой постройки — никак. Для многих туалет для дачи своими руками — первый строительный опыт. Хорошо что строение незамысловатое, так что даже без наличия опыта справится несложно.

Самая первая постройка на даче — туалет. Часто это — первый опыт строительства своими руками
Хоть дачный туалет и не самая сложная постройка, особенностей много. Без четкого плана действий не обойтись. Распишем по шагам, как построить туалет на даче:
- Выбираете тип туалета.
- Определяете место на участке под строительство.
- Определяетесь с размерами и материалами для строительства.
- Приступаете к строительству.
Теперь о каждом пункте подробнее.
О видах, конструкциях домиков для дачного туалета читайте тут (со схемами и размерами).
Какой туалет сделать на даче
Содержание статьи
Перед началом строительства нужно выбрать тип дачного туалета. Речь идет не о домике, а о его внутреннем устройстве. По типу устройства разделить их можно на две большие группы: с выгребной ямой или без. Если уровень грунтовых вод на участке высокий — выше чем 3,5 метра — выбор ваш ограничен только туалетами без выгребной ямы, иначе в воде неминуемо окажутся остатки продуктов жизнедеятельности. Аналогичные ограничения накладываются и на участки, в основании которых есть природные трещины, а также на сланцевых породах. На других грунтах с более глубоким залеганием водоносных слоев устанавливать можно кабинку любой конструкции.

Форма и размеры туалетной кабинки — далеко не все отличия, которые может иметь туалет
С выгребной ямой
При выборе такого варианта нужно учесть, что глубина ямы должна быть на 1 метр меньше, чем самый высокий уровень грунтовых вод (обычно весенний). Объем ее выбирается в зависимости от частоты посещения и количества человек. Например, в домах постоянного проживания на 2-3 человека достаточно объема в 1,5 куба. Для дач, посещаемых в основном на выходные, выгребная яма для туалета может быть меньше.
Форма емкости — любая, но чаще делают квадратную, иногда — круглую. Стенки выкладывают из кирпича, бетона, бутовой кладки, просмоленной древесины. Можно емкость сделать из бетонных колец. Только в этом случае нужно будет побеспокоиться о герметичности стыков и дна.
Чтобы обеспечить герметичность, под кладкой и по бокам делают слой утрамбованной глины (глиняный замок) толщиной 20-30 см. Если с трамбовкой глины возится неохота, можно покрыть готовую кладку пропиткой, придающей материалам повышенную степень гидроизоляции (битумной или на основе цемента).

Чертеж дачного туалета с выгребной ямой
Выгребной туалет для дачи обязательно обустраивают системой вентиляции. В яму встраивается труба большого диаметра (не менее 100 мм), второй конец которой поднимается не менее чем на 50-70 см над крышей домика (или дома). Также вентиляционное окошко делается в самом домике. Оно может быть на дверью или на одной из боковых стен.
При заполнении более чем на 2/3 объема содержимое ямы выкачивается машиной ассенизатором. Планируя туалет для дачи своими руками, принимайте во внимание, что к яме должна подъезжать машина.
Есть два типа организации выгребной ямы:
- Обычный — под домиком.
- Люфт-клозет — яма располагается в стороне. При таком строении унитаз может стоять в доме, а нечистоты по трубам, уложенным под определенным уклоном, попадают в емкость.
Строительство люфт-клозета на даче весьма дорогая затея, разве что вы все равно решили делать пристройку или дача у вас — полноценный жилой дом, в котором проводится много времени. Вам нужна будет полноценная система вентиляции, вода для смыва, и трубы нужно будет прокладывать ниже глубины промерзания грунта. А так как они должны идти под наклоном, то и выгребная яма опускается на приличную глубину.

Схема люфт-клозета. Если любите комфорт, построить туалет можно прямо в дачном домике
При устройстве туалета такого типа важно выдержать наклон трубы — он должен быть 2-3 см на метр. Не нужно делать больше или меньше — именно в таком диапазоне. Если сделать уклон меньше, есть риск того, что содержимое будет застаиваться. Если сделать больше, то вода убежит, а твердые и более тяжелые включения останутся в трубе и будут распространять «ароматы».
О методах устранения запахов в уличном туалете с выгребной ямой читайте тут.
Без выгребной ямы
В большинстве своем туалеты без выгребной ямы строятся намного проще и быстрее. В них отходы собираются в герметичную емкость, которая обычно ставится прямо под стульчаком. Вся разница в том, как перерабатываются отходы и нейтрализуется их запах. Есть следующие виды:
- Пудр-клозет. В кабинке ставится еще емкость с торфом, золой, опилками, землей или смесью этих компонентов. После посещения туалета отходы засыпаются слоем этой присыпки — припудриваются. Отсюда и название.
- Торфяной туалет. Это разновидность пудр-клозета. Но для присыпки используется только измельченный торф. Торфяные туалеты есть и промышленного изготовления. Они очень похожи на привычные квартирные унитазы с бачком. Но в бачке находится не вода, а крошка торфа. После посещения туалета нужно провернуть несколько раз ручку на бачке, откуда посыпется торф.

Так выглядит самый простой пудр-клозет или торфяной туалет. Построить его самостоятельно — совсем простая задача
- Био-туалет. Отходы попадают в емкость, заполненную раствором содержащем микроорганизмы, перерабатывающие их. Эти кабинки часто можно увидеть в качестве уличного туалета в городах. Биотуалеты продаются как вместе с пластиковыми кабинками, так и отдельно — только унитаз с емкостью.
- Химический туалет. Принцип переработки такой же как в биотуалете, только используют не микроорганизмы, а химические вещества. Обычно они выпускаются в виде порошков или таблеток. Переработанные таким способом отходы не могут использоваться в качестве удобрения. Их периодически нужно сливать в канализацию.
Плюсы у дачных туалетов без выгребной ямы (называют еще сухими) существенные:
- вам ненужно рыть яму и возится с ее герметизацией;
- не нужно вызывать ассенизатор (платить за него) и организовывать подъезд для машины;
- строится быстро;
- переработанные отходы можно использовать как удобрения.

После переработки отходы из пудр-клозета и биотуалета можно использовать как удобрение
Минусы тоже немалые:
- Туалеты фабричного изготовления не так уж и дешевы.
- Необходимо периодически менять емкость.
- Нужно следить за наличием средств нейтрализации.
Как сделать недорогую, но красивую дорожку к туалету читайте здесь.
Нормы установки туалета на участке
Большая часть ограничений относится к туалетам с выгребной ямой: необходимо ограничить возможные загрязнения. Нормы такие:
- До источника воды — озера, реки, колодца, скважины и т.п. — должно быть не менее 25 метров. Это касается и источников, расположенных на соседних участках.
- До подвала или погреба — не менее 12 метров.
- До ближайшей обитаемой постройки — душа, бани — не менее 8 метров.
- До построек, где содержатся животные — не менее 4 метров.
- Ближайшие деревья должны находится в 4 метрах, кусты — в 1 метре.
На плане участка постарайтесь выбрать место, которое удовлетворяет всем требованиям
Остальные нормы справедливы для всех типов туалетов:
- До границы участка должно быть не менее 1 метра.
- Двери не должны открываться в сторону соседнего участка.
- При выборе места расположения нужно учитывать преобладающее направление ветра.
Выбирая место, где будете строить туалет для дачи своими руками, обращайте внимание не только на собственные постройки и объекты, но и на соседские. Это поможет избежать трений с ними и с санстанцией.
Если строить будете туалет с выгребной ямой, ко всем перечисленным требованиям нужно еще добавить — организацию подъезда для машины-ассенизатора.
Постройка дачного душа описана в этой статье.
Как сделать туалет на даче своими руками
Первые два шага вы уже прошли: выбрали тип туалета и место для его установки. Следующий шаг — выбираем размеры. С ними определиться не так уж и сложно. Как выбрать объем выгребной ямы рассказывали — на 2-3 человека достаточно 1,5 кубометра, теперь о том, каких размеров должен быть домик для туалета. Тут все зависит от собственного желания и от габаритов хозяев. В стандартном варианте делают туалеты следующих размеров:
- высота — 220 см;
- ширина — 150 см;
- глубина — 100 см.
Эти габариты удобны для людей со средней комплекцией. Их можно изменять так, как вам удобно. Никаких стандартов нет.
Домики для туалетов чаще всего делают из дерева. Но это — не правило. Он может быть из листового материала типа ДВП, ГВЛ, из плоского шифера, кирпича и любых других строительных материалов, профилированного листового металла, даже из пластика.

Туалет на даче своими руками строят из любого материала. Этот — из профнастила
Самый любимый кровельный материал для дачного туалета — шифер. Недорого стоит устройство мягкой кровли из наплавляемых материалов. А вообще, можно использовать любой имеющийся в наличии. Его крепят на сплошную обрешетку, так что особой разницы нет.
Строим деревенский туалет
Последний этап — собственно строительство. Порядок действий определяется тем, какого типа туалет вы будете возводить. Если с выгребной ямой, первой делают ее.

Устройство деревенского туалета с выгребной ямой. Отличный вариант для дачи
Выгребная яма для туалета
Порядок действий при строительстве такой:
- В выбранном месте выкапывают котлован. Его размеры — на 30-40 см больше, чем планируемые размеры выгребной ямы.
- На дне укладывают и трамбуют 20-30 см разведенной до пастообразного состояния глины: делают глиняный замок, который будет препятствовать проникновению нечистот в почву. Потому укладывайте пласты без пустот.
- Выкладывают дно и стены ямы из кирпича, бута, толстой пропитанной смолой доски. Главное, чтобы стенки не пропускали влагу: ни внутрь, ни изнутри она не должна поступать. Потому необходимы меры по гидроизоляции. Потому желательно стенки выгребной ямы заштукатурить, а потом промазать гидрофобной пропиткой. Только той, которая может выдерживать агрессивные среды.

Выгребная яма дачного туалета не должна пропускать воду
- Промежуток между возведенными стенками и грунтом закладывают размоченной глиной — и тут делают глиняный замок. Это — гидроизоляция снаружи.
- Сверху на яму укладывают перекрытие. Обычно его делают из досок (толщиной не менее 40 мм). В перекрытие должно быть два отверстия — одно для установки стульчака, второе — для организации люка. Люк для выкачки обычно делают двойным — чтобы не проникали неприятные запахи.
- Устанавливают вентиляционную трубу.
Далее приступают к сооружению туалетного домика.
Чтобы не возится с кладкой и гидроизоляцией, можно установить специальную пластиковую емкость — септик. Они бывают разных объемов и конструкций — с одной или двумя горловинами.

Септики в выгребную яму дачного туалета — и никаких проблем с гидроизоляцией
Котлован роется чуть больше размеров выбранного септика, емкость устанавливается, засыпается вынутым ранее грунтом. Устройство такой выгребной ямы в разы быстрее и надежнее.
Кабинка для дачного туалета
Любой туалет для дачи устанавливается в небольшой кабинке-домике. Своими руками проще всего сделать прямоугольное сооружение с односкатной крышей: минимум времени, затрат и материалов.

Основание под кабинку — столбики
Первым делом нужно позаботиться о наличии пола. Его нужно поднять на некоторое расстояние над землей. Удобнее сделать это при помощи столбиков, сложенных в углах постройки. Закапывать их на глубину промерзания грунта вряд ли стоит, но заглубить в грунт на 20-30 см ниже плодородного слоя нужно. Складывают их обычно из кирпичей, бутового камня, можно залить из бетона, и т.п. На таком основании во время пучения кабинка будет подниматься, но обычно это ни к каким серьезным повреждениям не приводит: сооружение небольшое.
- На подготовленные столбики укладывается настил. Он обычно деревянный. Древесину желательно промазать защитными пропитками: среда агрессивная, да еще и воздействие климатических факторов.
- Устанавливают вертикальные стойки из бруса 100*100 мм или большего сечения. Высота выбирается в зависимости от роста «посетителей», но редко бывает ниже 2,2 м. Передние стойки делают на несколько сантиметров (10-15 см) длиннее — для обеспечения ската кровли. Крепят их к подиуму при помощи металлических пластин или опорных брусков. Раньше использовали преимущественно длинные гвозди, теперь все чаще — саморезы.
- Верхнюю часть обвязывают по периметру таким же брусом.

Этапы строительства туалетной кабинки на даче
- Из бруса такого же сечения или меньшей толщины (50*100 мм) оформляют дверной проход. Ширина его зависит от ширины имеющейся двери.
- Если в регионе сильны ветра, можно установить дополнительные укосины — наклонные балки между вертикальными.
- Обшивают каркас.
- Делают сплошную обрешетку на крыше — доски прибивают вплотную или кладут кусок фанеры, ДВП, ГВЛ.
- Укладывают и закрепляют кровельный материал.
- Навешивают двери.
Как оказалось, туалет для дачи своими руками построить не так уж и сложно. Времени и затрат нужно немного. Зато в процессе приобретете полезные навыки.
stroychik.ru
Дачный туалет своими руками. Как сделать туалет на даче – инструкция

Даже если дача представляет собой просто голый участок земли без единой постройки, все равно не обойтись без главного – туалета. Потребность в этой незамысловатой постройке возникает уже спустя несколько часов пребывания на дачном участке. Не смотря на то, что мы все представляем, как должен выглядеть туалет и что необходимо делать, все же не стоит торопиться. В первую очередь следует изучить участок, чтобы понять, какой вид дачного туалета можно построить в конкретном случае, ведь их существует несколько. Затем необходимо определиться, где именно можно поставить туалет, соблюдая при этом санитарные правила и нормы. И только после этого можно приступать к непосредственно строительству. В том, чтобы сделать дачный туалет своими руками, нет ничего сложного. Тем не менее, изготавливать коробку туалета не обязательно самостоятельно. Современный рынок может предложить готовые туалетные домики на любой вкус. В данной статье мы разберем инструкцию, как сделать туалет своими руками, начиная с выбора вида туалета и заканчивая изготовлением домика.
- Какой туалет на даче можно обустроить – виды и особенности
- Где можно разместить дачный туалет – правила и рекомендации
- Туалет на даче своими руками – инструкция строительства пудр-клозета
- Как построить туалет на даче с выгребной ямой
- Дачный туалет люфт-клозет и его особенности
Какой туалет на даче можно обустроить – виды и особенности
На обустроенной даче, где есть дом и фактически можно жить, желательно иметь два туалета – один в доме, а второй на улице. Туалет в доме удобно использовать ночью или в непогоду, когда идет дождь. Все же в доме и теплее и комфортнее. Уличный туалет для дачи необходим для того, чтобы использовать его днем после огородно-садовых работ на участке и не нести грязь с улицы в дом.
Всего существует несколько видов туалетов, которые можно использовать на даче:
- Уличный туалет с выгребной ямой.
- Пудр-клозет.
- Люфт-клозет.
- Биотуалет.
- Химический туалет.
- Торфяной туалет для дачи.
На выбор туалета влияет такой показатель, как уровень залегания грунтовых вод. Если вода находится далеко (глубже 2,5 м) и никогда не поднимается выше этой отметки даже в сезон дождей или весенних паводков, то можно использовать любой из предложенных вариантов туалета. Если же уровень грунтовых вод высокий, вода находится близко от поверхности, то обустраивать туалет с выгребной ямой нельзя.

Уличный туалет с выгребной ямой – старая добрая проверенная временем конструкция. Она представляет собой выгребную яму глубиной до 1,5 м, сверху которой стоит туалетный домик. Нечистоты в яме накапливаются и постепенно разлагаются. Если интенсивность использования такого туалета велика, то заполнение ямы происходит стремительно, нечистоты не успевают ферментироваться. Раньше такую проблему решали просто – снимали туалетный домик, закапывали старую яму, а в другом месте выкапывали новую и ставили сверху туалет. Сейчас же предпочитают чистить выгребные ямы либо с помощью ассенизаторской машины, либо вручную.

Пудр-клозет – вариант туалета для местности, где близко находится вода. В его конструкции вовсе нет выгребной ямы. Вместо нее используется емкость (ведро, бочка, ящик), которая устанавливается сразу под стульчаком. Чтобы нечистоты не слишком напоминали о себе неприятным запахом, после каждого похода в туалет их посыпают сухим торфом, опилками или золой. Сам процесс напоминает припудривание, от чего и произошло название данного вида туалетов «пудр-клозет». После заполнения емкость достается и опорожняется в компостную яму, кучу или другое место. Со временем нечистоты, пересыпанные торфом, превратятся в чудное удобрение.

Люфт-клозет – туалет с герметичной выгребной ямой, которую очищают с помощью ассенизаторской машины. Обычно люфт-клозеты обустраивают непосредственно в доме рядом с наружной стеной дома. Выгребная яма находится снаружи, нечистоты в нее поступают по трубе. Сама яма имеет уклон в сторону от дома для удобства очистки.
Биотуалет – привычная для городских жителей кабинка с емкостью, в которую заливают активные микроорганизмы для переработки нечистот. Наверное, самый простой способ обустройства туалета на даче, так как строить ничего не нужно – можно купить готовый биотуалет любых размеров, как уличный, так и домашний.
Химический туалет отличается от биотуалета только средством переработки нечистот. Здесь используются химические реагенты, поэтому содержимое контейнера после переработки нельзя использовать в качестве удобрения на огороде, в отличие от биотуалета.

Торфяной туалет – это домашний вариант пудр-клозета. По сути пудр-клозет тоже является торфяным туалетом, ведь в нем торф используется для припудривания фекалий. Домашний торфяной туалет – модернизированное достижение цивилизации. Он очень похож на обычный унитаз, только в бачке для воды вместо воды – сухой торф, а вместо труб канализации емкость для нечистот.

Такой туалет можно смело устанавливать внутри дома. Для устранения неприятного запаха в его конструкции предусмотрена вентиляция, которую необходимо вывести на улицу.
Выбор туалета для дачи полностью зависит от ваших личных предпочтений и от условий, которые диктуют правила СанПина.
Где можно разместить дачный туалет – правила и рекомендации
На размещение уличного туалета существуют определенные ограничения. В первую очередь они касаются тех туалетов, в которых нечистоты могут контактировать с грунтом и грунтовыми водами.
- От туалета до источника воды должно быть не менее 25 м. Будь то колодец, скважина, озеро, ручей или другой водный объект. Если дачный участок располагается под некоторым уклоном, то туалет необходимо устанавливать ниже источника забора воды. Это исключит попадание стоков в питьевую воду.
Важно! Обратите внимание, что учитывать следует не только свой источник воды, но и ближайших соседей.
- От туалета до дома и погреба или подвала должно быть минимум 12 м.
- От летнего душа или бани, сауны не менее 8 м.
- Расстояние от постройки для содержания животных до туалета должно быть 4 м.
- От стволов деревьев – 4 м, от кустарников – 1 м.
- От забора до туалета должно быть не менее 1 м.
- Также обязательно учитывается роза ветров при выборе места и расположения уличного туалета, чтобы не досаждать ни себе, ни соседям неприятным амбре.
- Дверь в туалет не должна открываться в сторону соседей.
- Если грунтовые воды ниже 2,5 м, то можно обустраивать любой уличный туалет. Если выше 2,5 м, то туалет с выгребной ямой делать нельзя, только пудр-клозет или люфт-клозет, а также можно ставить биотуалеты. Такие конструкции безопасны в том плане, что нечистоты не могут попасть в грунтовые воды и загрязнить их.
Учтите, что при выборе места для туалета необходимо ориентироваться на объекты не только на своем участке, но и на соседском. Это касается и деревьев, и сараев, и дома, и всего остального. Для туалетов типа пудр-клозет и люфт-клозет перечисленные выше ограничения не действуют, так как в них нечистоты не контактируют с грунтом. Единственное, что придется учесть при их размещении, это розу ветров и удобство использования.
Туалет на даче своими руками – инструкция строительства пудр-клозета
Обустроить дачный туалет собственноручно не так уж и сложно, достаточно обладать начальными плотницкими навыками, инженерным мышлением и запастись помощью друга. Рассмотрим пример строительства туалета на даче по типу пудр-клозет. Как мы уже писали, его особенность в том, что под туалетом нет выгребной ямы. И это значительно облегчает задачу. Во-первых, такой туалет можно располагать рядом с жилым домом. Во-вторых, сама технология строительства несколько легче, не придется рыть котлован. В-третьих, исключено загрязнение грунтовых вод.
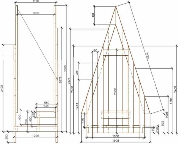
Чертеж дачного туалета
Строительство туалета необходимо начать с чертежа, чтобы все элементы и детали имели соответствующие размеры, а не на глазок. В связи с тем, что в пудр-клозете нет выгребной ямы, на чертеже будет представлена только конструкция туалетного домика.
Схематично пудр-клозет можно представить так:

Размеры туалета подбираются так, чтобы им было удобно пользоваться. Например, самый распространенный размер: ширина 1,5 м, глубина 1 м, высота 2,2 м. Размеры могут быть увеличены, если того требуют габариты хозяев. Материал изготовления туалета может быть разным: самые распространенные деревянные туалеты, но можно обшивать стены металлопрофилем, шифером или другим материалом, а также возводить стены из кирпича.
Туалет дачный деревянный – чертеж в разрезе.
Пример 1.


Пример 2.

Вы можете воспользоваться готовым чертежом, а можете составить свой. Главное – соблюдение размеров при строительстве.
Фундамент и опора для туалета

Дачный туалет – это строение, которое не требует тяжелого фундамента. В некоторых источниках Вы можете встретить предложение заливать под туалет ленточный фундамент. На самом деле это лишнее, особенно, если туалет деревянный. Опору для туалетного домика можно сделать двумя способами: первый – закопать столбы-опоры, второй выложить по периметру кирпичи или бетонные блоки.
В качестве столбов-опор можно использовать как деревянный брус или бревно, так и бетонные столбики. Последние более устойчивы к агрессивной среде и прослужат дольше.
- Первым делом размечаем участок. Крайне важно точно определить углы строения.
- Берем 4 асбестоцементные трубы диаметром от 150 мм и обмазываем их снаружи битумной мастикой.
- В углах туалетного домика выкапывает скважины и заглубляем трубы на глубину 50 – 70 см. Глубина заложения труб может быть и больше, это зависит от структуры грунта. Можно сделать 90 см или 1 м.
- На высоту 1/3 трубы их необходимо залить бетонным раствором. Старательно уплотняем бетон, чтобы удалить пузырьки воздуха.
- Внутрь труб вставляем деревянные или бетонные столбы-опоры. Чтобы закрепить их, добавляем бетонный раствор.
Столбы-опоры в данном случае могут выступать и вертикальной частью каркаса, т.е. их необходимо выгнать на высоту 2,3 м от земли. Также необходимо постоянно проверять, чтобы расположение столбов было ровным относительно углов.
Бывают случаи, когда в качестве опоры достаточно закрепить бетонные блоки или кирпичи, на которые затем будет установлен каркас. В таком случае необходимо снять верхний слой грунта на глубину 20 – 30 см и плотно утрамбовать основание. Для большей надежности на дно можно засыпать слой песка. Сверху устанавливаются бетонные блоки, кирпичи или бетонные бордюры.
Изготавливаем каркас уличного туалета

Каркас дачного туалета можно изготовить из деревянного бруса 50х50 мм или 80х80 мм. Более толстый и массивный брус 100х100 мм и больше брать не обязательно. Также можно использовать металлические уголки.

Каркас должен представлять собой конструкцию:
- 4-е несущие вертикальные опоры.
- Обвязка крыши туалета. Продольные брусья для крыши должна выступать за пределы корпуса туалета на 30 – 40 см. Спереди навес будет служить козырьком, а сзади – для отвода дождевой воды подальше от туалета.
- Обвязка или стяжка на уровне будущего стульчака. Обычно брусья обвязки стульчака крепятся в распор к несущим вертикальным опорам. Высота расположения стульчака должна быть удобной – 40 см от пола туалета.
- Диагональные укосины для прочности конструкции на задней и боковых стенках туалета.
- Каркас для крепления двери. Две вертикальные опоры на высоту до 1,9 м и горизонтальная перемычка сверху на этой же высоте.
Обязательно высчитайте высоту стульчака, так как слишком высокое сидение будет неудобным, особенно если среди хозяев есть низкорослые люди. Обозначьте, на каком уровне будет чистовой пол в туалете, и отложите от него 38 – 40 см вверх. Учтите, что сверху обвязки будет еще обшивка толщиной 20 – 25 мм.
Обшиваем корпус туалета, делаем крышу
Дальнейшее строительство дачного туалета заключается в том, чтобы обшить каркас. Так как деревянные туалеты пользуются неизменной популярностью за счет своей самобытной красоты, удобства и комфорта, то стены дачного туалета можно обшить деревянными досками.

Деревянные доски толщиной 15 – 25 мм прибивают к каркасу, плотно подгоняя их друг к другу. Располагать доски необходимо вертикально. Так как крыша будет располагаться с уклоном к задней стенке, то верхнюю часть досок обшивки придется аккуратно срезать под углом.
Вместо дерева можно использовать листы профнастила, шифера или другого материала. С ними намного легче работать, так как потребуется всего три листа для задней и двух боковых стенок. Но в таком туалете значительно менее комфортно находиться, чем в деревянном. А все потому, что не происходит естественный влажностный и воздушный обмен через стены.
На задней стенке туалета необходимо сделать дверцу, через которую можно будет вынимать емкость с нечистотами. Обычно ее делают на всю ширину задней стенки на высоту 40 см (до высоты стульчака). Закрепляется такая дверца на петлях. Выполнить ее можно из тех же деревянных досок.
Крышу дачного туалета обычно кроют тем же материалом, что и все постройки на участке, чтобы строения не выбивались из композиции. Можно использовать листы профнастила или металлочерепицу. В крыше необходимо выполнить отверстие для вентиляционной трубы, которое затем следует тщательно герметизировать.
Если Вы хотите сделать крышу туалета деревянной, то ее обязательно следует покрыть рубероидом или другим рулонным материалом, чтобы дерево не намокало.
Навешиваем дверь
Дверь для дачного туалета обычно делают деревянной. Дверь навешиваем на петлях. Количество петель 2 или 3 зависит от тяжести и массивности двери. Чем тяжелее дверь, тем больше должно быть петель. Механизм закрывания двери в туалет каждый делает, как ему больше нравится: защелка, крючок, шпингалет или деревянная задвижка. Внутри туалета также необходимо установить защелку.
Над дверью следует сделать окошко, через которое сможет проникать естественное освещение. Обычно его делают как можно ближе к крыше, чтобы внутрь не попадала вода во время дождя. Окошко можно застеклить, тогда будет не страшен ни дождь, ни насекомые, которые часто залетают через такие оконца. Как выглядит дачный деревянный туалет, можно увидеть на фото.
Дачный туалет: фото – примеры



Обустраиваем стульчак в туалете
Сиденье или стульчак в дачном туалете выполняют из деревянных досок, вагонки или влагостойкой фанеры. Лучше использовать чистое дерево без добавок, поэтому фанеру исключаем. Каркас будущего стульчака был сделан еще на этапе обустройства каркаса, поэтому сейчас достаточно аккуратно обшить его деревянными досками и окрасить. Посередине вырезаем отверстие, через которое будем справлять нужду. Обязательно проверьте, на какой глубине от начала стульчака следует сделать отверстие, чтобы им было удобно пользоваться.

Под стульчак устанавливаем емкость для нечистот объемом от 20 до 40 л. Кстати, крышку стульчака можно сделать откидывающуюся на петлях, а можно стационарную.
На стене в удобном месте навешиваем емкость для торфа. Внизу ставим ведро для туалетной бумаги. Внутри туалета можно установить умывальник, если это позволяют габариты строения. Тогда под умывальником устанавливаем ведро для помоев.
Как построить туалет на даче с выгребной ямой

Строительство туалета с выгребной ямой несколько сложнее, так как придется обустроить яму для отходов. Туалетный домик для данного вида туалетов ничем не отличается, поэтому мы его затрагивать не будем. Обозначим только, как сделать коммуникации. На схеме представлено, как должна располагаться выгребная яма относительно туалетного домика. Исходя из этого, выполняем разметку участка и приступаем к земляным работам.

- Копаем выгребную яму с уклоном в сторону задней стенки туалета глубиной 1,5 м.
- Дно и стены ямы утрамбовываем глиной слоем 15 – 25 см. Некоторые вместо глины делают стены ямы из дерева, кирпича или бетона. Если грунтовые воды находятся на достаточной глубине, то делать стены выгребной ямы полностью герметичными не обязательно. Достаточно глиняного замка.
- Основание под туалет сбиваем из деревянного бруса 100х100 мм. Также можно использовать тротуарный бордюр или бетонные блоки, уложив их на землю. Если использовать деревянный брус, то его необходимо обработать антисептиком.
- Над выгребной ямой обустраиваем настил из досок. Сначала сбиваем каркас из брусьев. Делаем между ними такое расстояние, чтобы было удобно очищать яму. Учтите, что настил делается за пределами туалетного домика, под домиком остается свободное пространство достаточного размера, чтобы нечистоты попадали в яму.
- Настил необходимо обить снизу рубероидом или другим рулонным материалом.
- За туалетом устанавливаем люк, представляющий собой откидную крышку на петлях. Люк будет использоваться при очистке ямы. Деревянный люк обрабатываем антисептиком.
- Прокладываем вентиляционную трубу из ямы. Устанавливаем ее рядом с задней стенкой туалета, выводим на 70 – 100 см выше крыши туалета. Для этих целей можно использовать обычную канализационную трубу. Сверху на трубу закрепляем козырек, чтобы внутрь не попадала вода и мусор. Закрепляем трубу к задней стенке хомутами. Нижний край вентиляционной трубы должен располагаться на 15 – 20 см ниже уровня пола туалета.
- Сверху устанавливается туалетный домик.
- Вокруг туалета с выгребной ямой необходимо обязательно делать отмостку и отведение дождевой воды, чтобы она не затопила яму с нечистотами.
Если в дальнейшем планируется очищать выгребную яму с помощью ассенизаторской машины, то туалет необходимо так располагать на участке, чтобы машина могла подъехать на достаточное расстояние. Помните, рукав такой машины всего 7 м.
Дачный туалет люфт-клозет и его особенности

Чаще всего дачный туалет типа люфт-клозет устанавливается рядом с жилым домом или внутри дома. Сточная яма располагается снаружи строения, за его стенами. Туалет такого типа можно строить только там, где есть возможность обогревать сточную яму в зимний период. Если же пользоваться туалетом зимой не будут, то перед концом сезона выгребную яму необходимо полностью очистить.
Основное отличие люфт-клозета от других видов туалетов в том, что выгребная яма в нем выполняется полностью герметичной и регулярно очищается с помощью ассенизаторской машины. Вот несколько отличий в строительстве люфт-клозета:
- Герметичная яма, чтобы нечистоты не впитывались в грунт. Можно заливать яму из бетона, выполнять ее из кирпича и оштукатуривать, а можно использовать готовые пластиковые емкости – кессоны.
- Из выгребной ямы обязательно должна идти вентиляционная труба. Проводить ее необходимо через дымоход печи или камина. В свою очередь из дымохода должна идти труба в яму, через которую будет поступать теплый воздух. Это необходимо, чтобы яма не замерзала. Материал вытяжной трубы – асбестоцементная или керамическая.
- Если в доме нет обычной печи или камина, а только газовое отопление, то обогрев выгребной ямы необходимо осуществить с помощью маломощного электронагревателя.
- Над ямой делается крышка/люк. Чтобы крышка не промерзала, ее делают двойной: верхняя – металлическая или чугунная, а нижняя – деревянная. Между крышками укладываем теплоизоляционный материал.
- Уклон ямы должен быть в сторону от дома для удобства ее очистки.
В последнее время все большей популярностью пользуются торфяные туалеты для дачи. Их удобство в том, что их можно смело располагать в доме в любом помещении. Торфяные туалеты легко чистятся, практически не издают запаха, с ними может совладать даже хрупкая женщина или пожилой человек. Также подобные туалеты можно делать на улице, тот же пудр-клозет – всего лишь предшественник современного торфяного туалета.
strport.ru
видео-инструкция по монтажу своими руками, особенности устройства в доме, фото
Буквально с первых дней использования дачного участка возникает вопрос: «Как делать туалет на даче?», ведь бегать к соседям неудобно, а строить отхожее место придется в любом случае. Мы рассмотрим приемлемые для дачи конструкции туалетов, определим наиболее подходящее местоположение и расскажем, как сделать туалет на даче своими руками.

Туалет для дачи необходим в любом случае.
Санузел для загородного участка
Разновидности

На фото показан правильно смонтированный и установленный клозет.
Следует сразу оговориться: мы рассматриваем именно дачные варианты туалетов, поэтому сооружения с централизованной или локальной канализацией, системой смыва и прочими привычными горожанам удобствами здесь перечислены не будут.
Конечно, для постоянного проживания больше подойдет современная конфигурация клозета, подключенного к водопроводу и канализации, которая может состоять из трубы и очистного септика. Однако далеко не все дачники имеют возможность построить столь недешевую конструкцию, более того, большинству владельцев усадеб она и вовсе не нужна, так как пребывание на даче носит эпизодически-сезонный характер. (См. также статью Дачные туалеты с септиком: особенности.)

Уличный вариант вполне приемлем для летнего отдыха.
Исходя из приведенных аргументов, мы выбрали 4 наиболее приемлемых варианта:
- Уличный клозет с выгребной ямой. Представляет собой привычный для деревенского ландшафта домик, под которым вырыта неглубокая яма. Продукты дефекации попадают непосредственно в эту яму, где подвергаются естественной ферментации вследствие жизнедеятельности микроорганизмов, которая вполне достаточна для утилизации нечистот в условиях эпизодического использования;
- Пудр-клозет, или туалет с ведром. Здесь мы видим все тот же домик, однако вместо ямы под седалищем унитаза расположена емкость (ведро, бак), в которую попадают фекалии. По мере заполнения емкости ее достают и опорожняют в дачную компостную яму или используют содержимое в качестве удобрения;
- Люфт-клозет – наиболее приближенный к городскому вид дачного туалета. Унитаз расположен в доме около внешней стены, а фекалии попадают в коллекторную яму, которая находится рядом с этой стеной. Коллектор забетонирован и полностью герметичен, очищается с помощью ассенизатора;
- Биотуалет или химический клозет. Данное устройство в представлении не нуждается – каждый видел его в городе у станций метро и в местах скопления людей. Нечистоты перерабатываются активными бактериями или химическими реактивами.

Устройство люфт-клозета.
Важно!
Уличный вариант с выгребной ямой хоть и распространен достаточно широко, особенно в сельской местности, наиболее приемлемым его назвать трудно.
Во-первых, выгребной туалет нельзя строить в регионах с высоким (менее 2.5 метра) уровнем грунтовых вод. Во-вторых, яма рано или поздно наполняется, а ее чистка без ассенизаторской машины – затея не самая лучшая. Наконец, достаточно сложно на участке размером 8 соток установить такой туалет и не нарушить несколько пунктов санитарных норм и правил.

Рядом с унитазом расположена емкость с торфом.
Пудр-клозет получил свое наименование благодаря тому, что после отправления нужды емкость припудривают сухим торфом, золой, опилками или химикатами, что позволяет ослабить выделение запахов. Современные варианты торфяных туалетов вполне пригодны даже для установки внутри жилого дома при условии грамотной вентиляции, которая также предусмотрена во многих моделях (дачные дома из блок контейнеров могут комплектоваться такими устройствами).
Люфт-клозет рассчитан на достаточно обжитую местность с нормальной инфраструктурой, не сильно удаленную от населенных пунктов, так как ассенизация коллектора производится силами спецтехники. Цена строительства и обслуживания такого туалета превышает остальные варианты.

Данный девайс в представлении не нуждается.
Биотуалет – вариант для ленивых, так как все, что необходимо сделать – это купить изделие, доставить его на участок и установить на выбранном месте. Обслуживание будет заключаться в своевременной замене реактивов и периодическом опорожнении коллекторной емкости, что делает его схожим с пудр-клозетом.
Важно!
Выбор конструкции туалета – личное дело каждого хозяина, однако мы советуем остановиться на торфяном пудр-клозете, так как это самый дешевый и простой в изготовлении вариант.
Выбор места

Важно помнить о правильном выборе местоположения санузла.
После того, как вы определились с выбором конструкции и разновидности санузла, необходимо решить, где он будет расположен. Это достаточно важный момент, ибо нечистоты могут отравить почву и грунтовые воды на вашем и соседних участках.
Кроме того, необходимо учесть взаимное расположение построек: близость дома, колодца, летней кухни или зоны барбекю к туалету. Также следует учесть интересы соседей.

Продумайте расположение санузла на участке.
Важно! Для пудр-клозетов принципы расположения не так строги, как для выгребных конструкций, по той причине, что нечистоты в грунт не попадают. Тем не менее, их все равно следует учитывать.
Основные минимальные расстояния от клозета до сооружения или объекта на участке:
| Сооружение или объект | Расстояние до санузла, м |
| Жилой дом, погреб или подвал | 12 |
| Колодец, ручей, озеро, пруд, скважина или другой источник воды | 25 |
| Душевая кабинка, баня или сауна | 8 |
| Курятник, коровник или другое место содержания домашних животных | 4 |
| Ближайший ствол фруктового дерева | 4 |
| Граница участка, ближайший кустарник | 1 |

Постарайтесь найти укромное, но не слишком удаленное место.
Важно!
Кроме приведенных в таблице данных, следует иметь в виду, что дверь туалета не должна открываться в сторону соседнего участка или быть расположенной неподалеку просматриваемой дороги.
Также стоит учитывать розу ветров и расположение жилой зоны и зоны барбекю ваших соседей.
Не следует пытаться спрятать санузел слишком далеко во избежание сомнамбулических ночных путешествий по темному саду. Также стоит заранее продумать, как и где будет расположена дорожка от дома до туалета.
Монтаж

До того, как сделать теплый туалет на даче, подумайте, нужен ли он вам.
Пришло время рассказать, как сделать дачный туалет своими руками.
Для вашего удобствами нашими мастерами составлена пошаговая инструкция:
- На выбранном месте снимаем плодородный слой почвы и утрамбовываем площадку 2х2 метра. Затем в углах выкапываем 4 ямы 30х30х70 см, чтобы между ними образовалась площадка 1.7х1.7 метра, в ямы укладываем полиэтиленовую пленку и бетонируем их цементно-песчаным раствором с щебнем, можно добавить легкий арматурный каркас;

Делаем фундамент.
- Когда бетон застынет, на поверхность каждого столба укладываем двойной слой рубероида и делаем нижнюю обвязку: укладываем брус 100х100 мм, соединяем в углах в полдерева и крепим к столбам анкерами или дюбелями;

Делаем нижнюю обвязку.
- Набиваем на обвязку половые доски впритык друг к другу, лучше использовать шпунтованные или террасные доски. Также можно смонтировать лаги с шагом 40 см и зашить их влагостойкой фанерой для пола;

Зашиваем пол.
- В углах полученного помоста устанавливаем стойки из бруса 100х100 мм или 70х70 мм, которые крепим на стальной уголок и саморезы. Передние стойки – 2.5 м, задние 2.2 м;

Монтируем стойки.
- Делаем верхнюю обвязку из бруса 50х50 мм, также вставляем поперечины на высоте 40 см от пола и на 30 – 40 см ниже верхней обвязки;

Делаем верхнюю обвязку.
- На верхнюю обвязку набиваем обрешетку из доски и укладываем кровельный материал – шифер, металлический профиль, рубероид и т.д.;

Делаем кровлю.
- Делаем каркас для дверного проема из двух брусков 70х70 мм в передней части конструкции, расстояние между брусками – 80 см, бруски соединяют пол и верхнюю поперечину;

Ставим дверной проем.
- На расстоянии 50 см от задней стенки крепим на уголки отрезок бруса 50х50 мм, которым соединяем нижние поперечины. Между этим отрезком и полом монтируем две опоры из такого же бруса. Должна получиться прямоугольная коробка, которую мы зашиваем доской, оставляя отверстие сверху, а вертикальную стенку оборудуем дверцей, в которую сможет пройти ведро;

Должно получиться примерно так.
- Зашиваем стены вагонкой и вставляем дверь. Проводим от крыльца электрический провод, подключаем к патрону с лампой, на крыльце делаем выключатель.

Зашиваем стены и навешиваем дверь.
Важно!
Бруски нижней обвязки и половые доски следует защитить от гниения с помощью антисептической пропитки.
Так как туалет строят в первую очередь, часто отсутствует подводка электрической энергии на участок. В этом случае вам поможет аренда дизель генератора для дачи.
Вывод
Строительство туалета легко выполнить своими силами следуя нашей инструкции. Также вам поможет видео в этой статье, которое демонстрирует процесс сборки туалетного домика.
Понравилась статья? Подписывайтесь на наш канал Яндекс.Дзен Добавить в избранное Версия для печатиОтличная статья 0
9dach.ru
Дачный туалет своими руками – порядок постройки
Без такого сооружения, как туалет, на загородном участке не обойтись. Дачный туалет своими руками сделать несложно, если приложить некоторые старания и усилия. Самым трудоемким этапом в процессе возведения отхожего места будет рытье котлована, но и эту работу можно сделать. Эстетическая сторона постройки — это второстепенный вопрос, самое главное — правильно устроить выгребную яму и создать надежную основу для надземного строения.

Дачный туалет своими руками
Нужно отметить, что некоторые владельцы загородных участков не строят туалет по правилам и обходятся обычным ведром, подставленным под стульчак. Но, так или иначе, отходы жизнедеятельности нужно куда-то девать, поэтому без капитальной ямы все равно не обойтись. Поэтому лучше один раз выполнить все работы правильно и долгие годы не возвращаться к этому вопросу. Особенно важно сделать капитальное строение в том случае, если жильцы проводят на даче значительную часть года.
В случае если не хочется портить оформление территории участка установкой обычного туалета, то его можно скрыть в дальнем углу за домом, или же придумать для него такой дизайн, который поможет органично вписать строение в ландшафт.
Содержание статьи
Выбор места туалета и его конструкции
Обычно туалет устанавливают в ближе к дальней границе участка, и это понятно, так как хотя бы незначительный запах, но будет присутствовать в этом помещении или около него. Но иногда пользуются другим вариантом, устраивая выгребную яму рядом с домом, а для помещения туалета отводят свободный уголок дома, выводя широкую канализационную трубу в яму. Такую конструкцию в основном используют в тех случаях, когда в дом проведена вода, и в планах есть установка изолированной емкости для сбора отходов жизнедеятельности.
В любом случае, следует придерживаться, установленных санитарно-эпидемиологическими службами стандартов. Их необходимо соблюдать для того, чтобы обезопасить себя, соседей и окружающую среду от нежелательных последствий, таких, как инфекционные болезни или заражение почвы.
- Если устраивается выгребная яма, ее необходимо расположить на расстоянии, не менее чем 30 м от источников воды, а глубина ее не должна доходить до грунтовых вод.
- Если будет устанавливаться септик, то его располагают не ближе, чем 15 м от дома.
- Если планируется использовать изолированную емкость, которая будет очищаться по мере заполнения ассенизаторской машиной, то ее можно установить в любом месте, так как отходы не будут поступать в грунт.
Изолированная емкость — это еще и выход в тех случаях, когда грунтовые воды проходят не слишком глубоко и устройство выгребной ямы, вырытой в грунте, невозможно.
Обычно ямы простейшего дачного туалета имеет площадь порядка одного квадратного метра. Если же яма отрывается круглая, то ее диаметр должен быть равен, примерно 1 м. Глубина ее составляет 1,5—2 м, в зависимости от глубины залегания грунтовых вод.
После того как определено место для ямы, можно переходить к выбору конструкции туалета.
- Первое, что нужно учесть — это вес конструкции — он во многом будет предопределяться материалом, который планируется использовать для строительства. Сам домик не должен быть слишком тяжелым, так как со временем грунт под его тяжестью может начать проседать и, в конце концов, постройка деформируется и повредится.
Для строительства хорошо подойдут деревянные бруски и доски, или тонкий металл – оцинкованные профили и профнастил.
Если же принято решение возводить будку туалета из бревен или кирпича, то придется подумать о хорошо укрепленном фундаменте. Но строить такие тяжелые строения совершенно ни к чему, так как они все равно не станут теплее легких построек. Лучше, если в этом есть необходимость, термоизолировать помещение утеплителями, которые имеют небольшой вес, например, пенопластом. Такая постройка будет и легкой, и теплой, не продуваемой в холодное время года, и в ней не будет чрезмерно жарко летом.
- Определившись с материалом можно переходить к размерам будки.
Обычно стандартный туалет имеет размер в ширину 1 м, высоту — 2,3 м, а длина помещения — 1,3 ÷ 1,5 м. Однако, эти размеры – отнюдь не догма и вполне могут варьироваться. В любом случае, помещение должно быть комфортным для нахождения в нем любому члену семьи в положении и стоя, и сидя.
Что потребуется для постройки туалета
Определившись с конструкцией и размещением туалета, приобретают необходимые материалы для его постройки. Деревянный или металлический «домик» можно купить уже в готовом виде. Если же решено возводить его самостоятельно, то понадобятся следующие материалы:
- Доски и деревянные бруски.
- Крепеж — гвозди и саморезы.
- Металлические уголки для усиления конструкции деревянного каркаса.
- Ручка для двери, крючок или задвижка для закрывания двери.
- Материал для покрытия крыши – шифер или профнастил.
- Пластиковый или деревянный стульчак с крышкой.
- При необходимости — пенопласт для утепления будки, и материал для внутренней обшивки утепленных стен, ДСП, тонкая доска или фанера.
Для устройства выгребной ямы нужно потребуется:
- Цемент, щебень, песок.
- Арматура для укрепления фундамента домика.
- Металлическая сетка-рабица для обтягивания ямы и металлические скобы или штыри для крепления этой сетки к грунту.
Другим вариантом, вместо сетки и ее оштукатуривания бетоном, может стать кирпич, которым обкладывают стены ямы.
Кроме этого, для устройства ямы нередко используют бетонные кольца, имеющие в стенках отверстия. Многие дачники предпочитают старые резиновые покрышки больших размеров.

Установка бетонных колец с перфорированными стенками
Еще одним, самым экологически чистым вариантом, может стать готовая емкость — септик. Их производят разных размеров, поэтому можно выбрать нужный, в зависимости от количества членов семьи и длительности периода проживания на даче.

Изолированные полимерные емкости для туалетов
Естественно, при возведении дачного туалета не обойтись без инструментов, поэтому в наличие нужно иметь:
- Ручной бур, который может помочь при рытье котлована.
- Совковую и штыковую лопату, с длиной и короткой ручкой.
- Если почва на участке каменистая, возможно, понадобится перфоратор.
- Молоток и шуруповерт.
- Шлифмашинка — «болгарка» с дисками по камню и металлу.
- Электролобзик.
- Разметочный инструмент – линейка, рулетка, угольник, строительный уровень, карандаш или маркер.
Первым на участке строят туалет, а затем остальные постройки!
Рекомендуем ознакомиться с пошаговой технологией строительства дачного домика, которую мы постарались изложить в данной статье — ссылка.
Кроме этого советуем прочитать про строительство беседки своими руками, строительство бытовки.
Цены на популярные септики
Септики
Устройство выгребной ямы
Безусловно, начинают всегда с разметки и рытья ямы. Она будет иметь квадратную или круглую форму, в зависимости от выбранной конструкции.
1. Если будет устанавливаться двухкамерный пластиковый септик, то яма роется таким образом, чтобы входной патрубок находился непосредственно в кабинке туалета, так как на него будет монтироваться стульчак. Горловина второй камеры должна оставаться за пределами помещения — она нужна для регулярной откачки скопившихся фекальных масс.

Один из типов двухкамерных септиков для дачного туалета
Баки бывают разной формы, и от этого будет зависеть габариты и форма ямы. Размер котлована нужно делать на 20—30 см больше имеющейся емкости, так как вокруг нее нужно хорошо утрамбовать грунт.

Септик может быть и более компактным
2. Если стенки ямы будет отделываться бетоном или кирпичом, ее можно сделать круглой или квадратной формы.

Яма квадратной формы
- После выкапывания ямы нужной глубины, на ее дне нужно устроить дренаж из крупного щебня, камней, обломков кирпичей
- Затем, стены ее обтягиваются металлической сеткой-рабицей с ячейками размером 50 × 50 мм. Сетку закрепляют, вбивая в грунт скобы из стальной проволоки или штыри.
- Чтобы стены получились более крепкие, можно дополнительно армировать стены металлической решеткой с крупными ячейками 100 × 100 мм.
- Далее, методом набрасывания, на стены наносят бетонный раствор, который оставляют до полного высыхания. Общая толщина бетонного слоя должна составлять около 50 ÷ 80 мм.
- После схватывания первого набросанного слоя, стены штукатурятся до ровного состояния таким же бетонным раствором. Отштукатуренную яму оставляют сохнуть.
- Перекрывают яму или готовой железобетонной плитой, или изготавливаемой по месту. Она будет служить для туалета фундаментом и площадкой вокруг него.
- На яму укладывают доски, которые должны выходить за ее пределы на 700 ÷ 800 мм и быть утоплены в землю до одного уровня с грунтом. Доски должны быть обработаны антисептическими средствами. Эту деревянную подложку под фундамент вполне можно заменить бетонными столбиками.

Укладка опорных досок для заливки фундамента
- На поверхности оставляют два отверстия для установки стульчака и для выгребного отверстия, которое позже должно накрываться крышкой. Вокруг будущих отверстий устанавливается опалубка.
- На всю площадь будущего фундамента расстилается полиэтиленовая плотная пленка.
- Сверху нее укладывается арматурная решетка, которая заключается в опалубку по всему периметру будущего фундамента.

Опалубка, гидроизоляция, армирование будущего фундамента
- Высота опалубки отверстий должна быть такой же, как у опалубки всего фундамента. Доски опалубки и будут служить маячками при выравнивании поверхности.
- Замешивается бетонный раствор, заливается на площадку, разравнивается и оставляется сохнуть. Для долговечности и прочности внешнего бетонного слоя можно, после первоначального схватывания, провести «железнение» влажной поверхности сухим цементом.

Получившаяся плита и перекрыла выгребную яму, и станет основанием для домика туалета
- На готовую площадку после ее полного созревания можно будет устанавливать будку для туалета. На отверстие, предназначенное для откачки скопившихся отходов, нужно устроить люк. Его можно приобрести в магазине или же изготовить самостоятельно. Крышка люка должна легко открываться и закрываться.
3. Еще одним вариантом может стать круглая яма с уложенными в нее автомобильными покрышками. Но нужно отметить, что такой вид выгребных ям не подойдет для постоянного пользования. Подобный туалет можно применять только в дачных условиях, когда жильцы приезжают лишь эпизодически, например, в выходные дни, иначе очень часто придется откачивать собравшиеся отходы.

Выгребная яма из старых автомобильных покрышек
- Для устройства выгребной ямы такого типа роется круглый котлован на 150 ÷ 200 мм больше, чем диаметр имеющихся покрышек.
- На дно котлована укладывается дренажный слой дренаж толщиной в 15—20 см.
- Затем ровно посередине ямы укладываются покрышки одна на другую до поверхности грунта.
- Вокруг покрышек, по мере их укладывания засыпается и утрамбовывается дренаж из щебенки и песка. Этот процесс проводится до самого верха.
- Когда покрышки полностью уложены, вокруг ямы можно устроить неглубокий ленточный фундамент. Для этого по периметру будущего туалета роется траншея глубиной порядка 500 мм, в которую будет заливаться бетон.
- Дно траншеи утрамбовывается и засыпается слоем песка в 50 ÷ 70 мм, который тоже утрамбовывается и закрывается слоем щебня той же толщины.
- Укладывается гидроизоляция из плотного полиэтилена.
- Далее можно поступить двумя способами:
— сварить и установить арматурную решетку, смонтировать опалубку высотой в 100 ÷ 150 мм над уровнем земли и затем залить бетонным раствором;
— выложить фундамент из кирпича, а затем оштукатурить его цементом.
- После застывания раствора с цементного фундамента снимается опалубка, а кирпичный выравнивается сверху.
- На его поверхность укладывается рубероид, который отделит бетонную поверхность от деревянной.
- На фундамент или устанавливается готовая конструкция туалета, или же он возводится самостоятельно.

Дачный туалет можно установить и на свайном или столбчатом фундаменте
Для удобства процесса постройки, на фундамент сначала закрепляется деревянная основа-рама, изготовленная из мощных брусков, а на нее будут монтироваться другие элементы конструкции, в зависимости от выбранной модели постройки.
4. Нельзя не упомянуть и еще один способ обустройства выгребной ямы — с помощью металлических бочек с обрезанным дном. Их устанавливают одну на другую и так же, как и в предыдущем случае. Вокруг получившейся трубы утрамбовывают гравийную смесь или смесь песка со щебнем.

Выгребная яма из металлических бочек — явно долго не прослужит
Казалось бы, метод несложный в исполнении, но недостатков у него намного больше, нежели достоинств. Металлические бочки под агрессивным воздействием и изнутри, и снаружи, со стороны грунта, очень быстро корродировать, и прослужит такой туалет очень недолго.
Возведение домика дачного туалета
Когда и яма, и площадка для установки помещения туалета готовы, можно переходить к монтажу домика по заранее составленной схеме.
Домики для туалета могут иметь самые разнообразные формы, например, даже в виде сказочной избушки. Непосвященный сразу и не определит, что это за помещение так идеально вписалось в ландшафтный дизайн участка. Такое сооружение вполне можно выполнить своими руками, зная схему его сборки.
На фото представлен вариант, частично выполненный из бревен, которые придают этому строению декоративность, маскируют предназначение самой постройки.

Оригинальный теремок — не сразу и поймешь, что это туалет
На схеме представлена основа постройки бревенчатого домика, только вместо бревен использованы доски. Хорошо видно, как собираются стены и поднимаются скаты крыши. Распределено внутреннее пространство и выбрано место расположения стульчака.

Примерная схема «теремка»
Следующим этапом пойдет обрешетка крыши, настил кровли и обшивка стен выбранным для этого материалом — это может быть как дерево, так и металл.
Такой домик может быть или установлен на выгребную яму, или же использован, как помещение для биотуалета.
Строите туалет? не забудьте про канализацию
Рекомендуем ознакомиться с материалом по возведению канализации в доме своими руками. Кроме этого скорее всего Вам будет полезно, как построить сарай.
О строительстве сарая читайте — здесь.
Видео: изготовления домика — «теремка» для дачного туалета
Другой вариант строения туалета, которое называют «шалаш». В этом случае домик строится в виде треугольника, и его боковые стенки одновременно являются крышей. Форма достаточно простая, поэтому возводить постройку будет несложно.

Туалет — «шалаш»

Такая конструкция не только проста в постройке, но и удобна в эксплуатации — она устойчива в основании и достаточно просторна внутри.

Монтаж туалета — «шалаша»
На представленном рисунке видно все внутреннее строение домика, место установки стульчака и способ обрешетки стен-крыши. Начата обшивка передней части строения и задней стенки. Домик- «шалаш» можно поставить на обустроенную выгребную яму, как в данном случае, а можно использовать и как помещение для биотуалета.

Даже самый традиционный домик туалета можно оформить по разному
Эту форму домика можно назвать традиционной, так как чаще всего ее можно встретить на участках. Но даже такую незамысловатую конструкцию можно декорировать по своему предпочтению.
Например, туалет на этой приусадебной территории решено было сделать под японский домик. Об этом говорят иероглифы, написанные на табличке, подвешенной на цепочках, японский фонарь у входа и даже дополнительно устроенная крыша. Кроме этого, внутреннее оформление помещения также выдержано в общем стиле.
Подобное отношение к оформлению участка говорит о том, что даже из такого строения, как туалет, можно сделать маленькое произведение искусства, если приложить немного усилий.

Схема наиболее распространенного типа туалетного домика
Примерная схема постройки такого туалета представлена на рисунке. На нем хорошо видны устройство выгребной ямы, установка сверху нее строения туалета и люка для очистки. Конструкция достаточно проста в устройстве, и возвести ее несложно. Но чтобы она была надежной, необходимо достичь жесткости связок всех деталей между собой.
Внутреннее пространство туалета, устраиваемое над выгребной ямы, в процессе возведения стен может выглядеть, таким образом. То есть, на фундамент устанавливаются бруски основы, на которую закрепляется каркас будущего строения.

Над ямой крепится пояс из толстого бруса, к которому монтируются остальные детали строения
Далее, производится обшивка стен и монтаж крыши. Только после этого можно настилать пол и устанавливать стульчак.

Помещение туалета после завершения работы
После окончательной отделки туалета изнутри, помещение может иметь такой аккуратный и уютный вид.
При желании и возможностях можно придумать и другой дизайн дачного туалета, но делать всю внутреннюю отделку нужно из теплых материалов. Не рекомендовано использовать для оформления керамическую плитку, так как это очень холодный вид материала, а кроме этого, в зимнее время кафель становится еще и очень скользким.
Видео: несколько вариантов устройства дачного туалета
Биотуалет
Если нет никакой возможности построить дачный туалет или же просто отсутствует желание связываться со строительными работами, то можно воспользоваться биотуалетом. Этот вариант избавит и от рытья ямы и, возможно, от монтажа домика.

Биотуалет — отличное решение для дачных условий
Биотуалет — это автономный унитаз, не требующий ни отдельного помещения, ни подключения к отводным коммуникациям
Биотуалет состоит из двух отделений-камер, верхняя из которых исполняет роль унитаза, а другая служит для биологической переработки отходов. Во второй, нижней камере находятся активные вещества, которые разлагают фекалии и превращают их в однородную массу, которая не имеет запаха. Действия биоактивной жидкости для разложения отходов хватает на десять дней, затем камеру очищают, выливая содержимое в центральную канализацию или в почву. Способ утилизации будет зависеть от того, какие активные вещества будут использоваться в биотуалете. Эти вещества бывают трех типов: компостирующие, химические и микроорганические. Каждый из них подходит для определенного типа биотуалета.
- Для компостирующего биотуалета в качестве активного вещества используется торф. Он обладает высокой впитывающей способностью – так, один килограмм торфа поглощает десять литров жидкости. Получаемый в результате активных процессов, не имеющий запаха компост отлично подойдет для удобрения грядок.
Обычно в комплекте с таким биотуалетом идут трубы вентиляции, которые отводят неприятные запахи во время переработки.
- Биотуалет, работа которого основана на применении химических веществ, имеет индикатор, который укажет на то, что контейнер требует очистки. Отходы, переработанные таким образом, сливаются в канализацию, с целью обезопасить окружающую среду. Для таких моделей производятся специальные вещества с незамерзающим свойством.
- Третьим видом этого полезного приспособления является биотуалет, в котором переработкой отходов занимаются микроорганизмы, превращая их в компост. Полученный материал экологически чист и безвреден для почвы и животных, поэтому утилизировать его не составит труда.
При желании биотуалет можно установить в самом обычном помещении, построенном своими руками, которое располагается во дворе, а на зимний период — занести его в дом, отведя для этих нужд удобный угол.
Цены на популярный ряд биотуалетов
Биотуалеты
Биологические средства для туалетов
В помощь владельцам дачных участков, имеющих на своей территории туалеты с выгребными ямами, разработаны специальные средства, аналогичные тем, которые используются в биотуалетах.

Одно из биологических средств для туалетов и выгребных ям
Они также содержат химические, торфяные или бактериальные концентраты, которые избавят туалет от неприятных запахов, и постепенно будут перерабатывать все содержимое выгребных ям или септиков. Такие составы производятся в разных формах — это таблетки, порошки или жидкие растворы.
Перед применением средства нужно обязательно изучить инструкцию, так как состав насыпается или наливается частями. Как правильно использовать такие вещества, можно узнать из информации на упаковке, так как каждое средство дозируется по-разному. Используется подобное вещество, как правило, очень экономно. Например, одной упаковки или банки некоторых средств хватает на год для выгребной ямы объемом 3,5 ÷ 4 тонны.
Итак, способов решить проблему дачного туалета существует немало – всегда есть возможность выбрать тот или иной вариант.
stroyday.ru
Как сделать туалет на даче своими руками

Первая постройка, которая возводится на дачном участке это туалет. Туалет на даче отличается от городского санузла отсутствием системы канализации. Поэтому постройка туалета на даче — это не только возведение кабинки, но и организация места сбора и утилизации отходов. Возможных вариантов устройства туалета на даче несколько о них и о том, как построить туалет на даче своими руками будет подробно рассказано в этом материале.
Уличный туалет для дачи
Большинство дач используется только в теплое время года, поэтому наибольшей популярностью пользуется летний или уличный туалет для дачи. Эта конструкция проста и хорошо проверена временем. Построить летний туалет на даче можно своими руками из доступных материалов, что безусловно является большим достоинством.
Рис.1. Интересный дизайн дачного туалета.
Рис.2. Такое строение будет отличным украшением участка.
Рис.3. Китайский стиль.
Уличный туалет для дачи состоит из туалетной кабинки и ямы для сбора отходов под ним. Кабинка для туалета на даче может быть изготовлена из любых материалов. Яма под туалет на даче может быть изготовлена любого размера. Глубина ямы для туалета зависит от числа пользователей.
Рис.4. Схема устройство уличного туалета с выгребной ямой.
Рис.5. Деревенский туалет самый простой вид, который имеет длительный срок эксплуатации. Он представляет собой кабинку, под которой сделана яма. Все отходы попадают прямиков в нее. Яму можно чистить раз в 7 – 10 лет, или просто закапывать и передвигать туалет на новое место. Чтобы деревенский туалет не имел неприятного запаха в яму раз в несколько месяцев добавляют аэробных бактерий, которые перерабатывают отходы, и запах пропадает.
Рис.6. Оригинальное решение для двери.
Однако выгребная яма для туалета на даче хорошо будет работать только при низком уровне грунтовых вод. Если уровень грунтовых вод большой, то выгребную яму будет постоянно подтапливать, и она все время будет переполняться. В этом случае от туалета такого типа придется отказаться, либо в место ямы придется использовать гидроизолированную емкость. Однако тогда необходимо, как минимум раз в год вызывать ассенизатор.
Рис.7. Схема уборной с выгребной ямой.
Рис.8. Устройство торфяного туалета.
Рис.9. Торфяной биотуалет для дачи.
Деревянный туалет для дачи своими руками
Строительство туалета на даче уличного типа можно разбить на три этапа подготовка ямы для сбора отходов, устройство фундамента и изготовление кабины туалета. При строительстве важно помнить, что туалет будет служить очень долго только в том случае если установка туалета на даче выполнена правильно.
Рис.10. Требования к размещению уборной на дачном участке.
Рис.11. Правила расположение строений на участке.
Выгребная яма для туалета на даче
Яма для туалета на даче изготавливают с укрепленными стенками. Если не укрепить яму под туалет на даче, то за не большой промежуток времени она быстро обвалиться. Для укрепления стенок ямы удобно использовать бак для туалета из двухсот литровой бочки.
Рис.12. Устройство ямы при низком уровне грунтовых вод.
Если существует опасность высокого уровня грунтовых вод, то необходимо использовать пластиковый герметичный бак. Бочку вкапывают в землю в месте выгребной ямы. По мере эксплуатации туалета ее придется чистить. Чтобы облегчить это дело и одновременно не задумываться куда деть содержимое, в процессе эксплуатации туалета в него необходимо добавлять специальный состав. Этот состав можно приобрести в любом дачном магазине. В него входят бактерии, которые переработают все отходы, после чего их можно использовать как удобрение.
Рис.13. При высоком уровне грунтовых вод существует риск подтопления выгребной ямы и утечки нечистот. В этом случае для отходов используют пластиковый бак. Вокруг него устраивают дренаж. В этом случае отходы туалета на даче периодически приходится удалять, что без сомнения является недостатком такой конструкции.
Если грунтовых вод нет, то хорошо использовать металлическую бочку. В ней проделываются отверстия для того чтобы жидкая фаза отходов уходила в землю. Бочка засыпается не грунтом, а гравием. Таким образом получается дренаж для жидкой фракции. Выгребная яма для туалета на даче, построенная по такому принципу может работать более 10 лет и не требовать очистки.
Рис.14. При низком уровне грунтовых вод можно использовать металлическую или пластиковые бочку. В бочке по периметру делают отверстия для отвода жидкой фракции. Вокруг бочку засыпают гравием это обеспечивает дренаж. Такую выгребную яму чистить придется раз в несколько лет, что является большим преимуществом по сравнению с предыдущим вариантом.
Рис.15. Яма из автомобильных покрышек.
Рис.16. Выгребная яма из кирпича.
Как сделать фундамент для туалета на даче
По большому счету для такой конструкции как деревянный туалет не требуется особого фундамента. Однако для того чтобы постройка служила долго фундамент под туалет на даче все-таки нужен. Кроме того, если кабинку поднять над землей хотя бы на 10 см, то таким образом будет обеспечено проветривание туалета на даче.
Рис.17. Подняв туалет над землей на 10-20 см можно обеспечить хорошую вентиляцию выгребной ямы.
Рис.18. Летний туалет на сваях на наклонном участке.
Самый простой вариант фундамента для уличного туалета — это вырыть ямы по углам туалета глубиной 20 – 30 см, засыпать их песком, а на песок положить блоки или бордюрный камень. Так же просто будет установить свайный фундамент, для этого можно приобрести четыре винтовые сваи длиной 1 м.
Рис.19. Простейший фундамент из блоков для туалетной кабинки.
Рис.20. Фундамент из бетонных блоков.
Рис.21. Фундамент из толстой тротуарной плитки.
Чертежи деревянного туалета для дачи
Кабина туалета для дачи может иметь различный внешний вид, но по конструкции она всегда однотипная. Она изготавливается из деревянных брусьев по каркасной технологии. Сначала собирают каркас из брусков, а потом обшивают вагонкой или любым другим материалом.
Рис.22. Каркас туалета для дачи. Кабинка для туалета на даче может быть изготовлена по каркасной технологии. Сначала строят каркас из бруска сечением 60х80 или 80х80 мм. После чего каркас обшивают, вагонкой, доской и сайдингом. Для крыши в качестве стропил может использоваться доска сечением 40х100 мм, обрешетку можно сделать из доски толщиной 20 мм. Чаще всего крышу кроют профлистом. Вентиляция туалета обеспечивается за счет окошка над дверью.
Рис.23. Чертеж туалетного домика с крышей типа мансарда.
Рис.24. Основные размеры простой кабинки.
Для каркаса хорошо подойдет брус 60х80, 80х80 или 100х100 мм. Можно использовать брус меньшего сечения, но тогда необходимо ставить несколько диагональных перемычек для устойчивости конструкции.
Рис.25. Схема кабинки с размерами.
Рис.26. Чертеж и спецификация туалетной кабинки.
Каркасный туалет для дачи начинают строить со сборки основания из 4 брусков длиной 1,5 м. Далее устанавливают вертикальные стойки. Обязательно необходимо установить стойки для двери. Расстояние между стойками должно быть равно ширине двери вместе с коробкой. В качестве стропил можно использовать доску 40х120 мм. Сверху на стропила укладывается доска толщиной 20-25мм, поверх нее настилается профлист.
Рис.27. Устройство кабинки летнего туалета.
Рис.28. Чертеж туалетной кабинки.
Как сделать вытяжку в туалете на даче
Для летнего туалета важно предусмотреть окно над дверью, это будет вентиляция туалета и источник освещения. Не стоит это окно стеклить иначе в туалете будет жарко и сильно пахнуть.
Рис.29. Окно вентиляция над дверью.
Рис.30. Устройство вентиляционного окна.
Чем обшить туалет для дачи снаружи
Снаружи для защиты от дождя каркас туалетной кабинки может быть обшит любым материалом, например, профлистом или сайдингом. Однако наиболее популярным материалом является вагонка или блок-хаус. Для крыши туалета используется любой кровельный материал, например, профлист.
Рис.31. Каркас туалета может быть зашит любым материалом. Чаще всего используют деревянную вагонку. Однако дерево плохо противостоит атмосферным осадкам, поэтому его необходимо обрабатывать антисептиком.
Рис.32. Такая кабинка будет мало заметна на участке.
Рис.33. Комбинированная обшивка туалетного домика.
Рис.34. Отделка туалета доской.
Сиденье для туалета на даче
В качестве сиденья может быть использованы различные конструкции начиная с помоста заканчивая отверстием в полу. На мой взгляд удобнее всего использовать специальное сиденье для туалета на даче.
Рис.35. В качестве сиденья может использоваться специальное ведро. Оно устанавливается на пол туалета непосредственно над ямой и крепится к полу саморезами. Крышка не позволяет распространяться неприятному запаху. Обеспечить хорошее проветривание яме можно подняв туалет на 10-15 см над уровнем земли, так не будет запаха и мух.
Рис.36. Сиденье для дачного туалета в виде унитаза.
Рис.37. Традиционный вариант сиденья.
Туалет для дачи без запаха
Существует несколько вариантов организации туалета для дачи без запаха: биотуалет, торфяной туалет, выгребная яма и септик. Все эти варианты отличаются по стоимости, сложности обслуживания и трудоемкости постройки.
Химический биотуалет на даче
Биотуалет представляет собой разновидность туалета, которым не требуется система канализации. Отходы жизнедеятельности накапливаются в специальном баке.
Рис.38. Модульный биотуалет.
Химические биотуалеты снабжены баком для накопления отходов и смыва, в бак смыва наливают воду и дезодорирующую жидкость, а в бак отходов добавляются дезинфицирующе-расщепляющую жидкость. Использование такого туалета практически аналогично городскому.
Рис.39. Химический биотуалет — это автономный комплекс, снабженный баком для нечистот. Такой туалет может быть установлен в любом месте. Однако небольшая емкость для нечистот требует постоянной утилизации отходов жизнедеятельности. Такой туалет прекрасно подойдет для кратковременного использования.
Достоинством химических биотуалетов является автономность, а, следовательно, их возможно установить в любом месте, в том числе и в доме, и не строить специального строения.
Рис.40. Дезодорирующая жидкость обеспечит отсутствие запаха.
Рис.41. Правила обращения с химическим туалетом.
Недостатком является необходимость постоянного слива отходов. Следует отметить, что не все химические жидкости позволяют сливать отходы в почву, а значит придется иметь специальное место для утилизации отходов.
Финский туалет для дачи
Торфяной туалет для дачи от химических отличаются более простой конструкцией. В своей работе они не используют химических препаратов. Конструктивно торфяные туалеты представляют собой небольшой бак с механизмом отвода жидкости. Для расщепления отходов после каждого использование необходимо в туалет засыпать немного торфа.
Рис.42. Торфяной туалет для дачи представляет собой систему в которой отделяется твердая фракция отделяется от жидкой. Жидкая фракция отводится, а твердая за счет присыпки торфом перерабатывается в удобрения для сада. Недостатком торфяного биотуалета является необходимость утилизации жидкой фракции и регулярная чистка от переработанной твердой фракции.
Большим достоинством торфяного туалета является экологичность. Отходы, перемешанные с торфом можно использовать как органическое удобрение для растений.
Рис.43. Емкость с отходами у финского туалета располагается под кабинкой.
Рис.44. Устройство торфяного туалета по финской технологии.
Недостатком является необходимость сооружения специального домика, установка вентиляции и необходимости оборудования дренажа для жидких фракций.
Рис.45. Вентиляция финского туалета.
Септик для туалета на даче
Септик для туалета на даче это самый современный способ утилизации отходов жизнедеятельности. Существуют полностью автономные септики не требующие обслуживания. Их принцип работы построен на расщеплении отходов.
Рис.46. Принцип работы септика.
Рис.47. Схема установки септика.
Рис.48. Септик — это автономная система канализации для дома. Из-за сложности установки и необходимости круглогодичного использования, они обычно применяются в загородных домах. Нечистоты попадая в септик подвергаются разложению. Септик не требует регулярных чисток.
Учитывая сложность установки и стоимость оборудования, септики обычно применяются в загородных домах круглогодичного проживания.
Рис.49. Септик для загородного дома.
Мы рассмотрели все возможные варианты туалетов для дачи. Несмотря на обилие вариантов наибольшее распространение получили септик и традиционный уличный туалет для дачи. Септик хорош своей автономностью и возможностью организации полноценной системы канализации. Обычно септик применяют в загородных домах и дачах круглогодичного проживания. Если дача посещается только в летний период, то самый простой вариант организации туалета — это деревенский вариант. Для деревенского туалета необходимо установить выгребную яму, роль которой обычно выполняет бочка, а сверху построить кабинку. Обычно кабинку строят из дерева. Если хорошо декорировать туалетный домик, то помимо выполнения своего прямого назначения, он будет еще прекрасным украшением участка.
mhremont.ru
Как сделать туалет на даче без запаха: доступные варианты
Туалет на даче вещь столь же необходимая как источник водоснабжения, но в отличие от воды он может разносить по дачному участку неприятные запахи. Проблема осложняется тем, что в городских квартирах есть канализация, отправляющая стоки на очистные сооружения, здесь же отходы остаются на месте.
Решить эту проблему можно несколькими способами, о которых будет рассказано в данной статье.
Устройство дачного туалета без запаха
Самые простые и дешёвые способы устранения запаха от туалета, использование опилок и торфа. Засыпая ими фекалии, мы способствуем образованию компоста, а затем используем его как удобрение на участке.
Вокруг клозета можно высадить сильно пахнущие растения. Но полностью избавиться от запаха таким способом не удастся.

Насаждения вокруг туалета
Другой способ, нужно сделать туалет полностью герметичным по типу люфт-клозета. В этом случае туалет может располагаться в доме, а канализационная труба выходить в выгребную яму, построенную из кирпича и обработанную гидроизоляционными материалами, исключающее попадание отходов жизнедеятельности в землю.

Люфт-клозет
Сейчас многие делают выгребные ямы из стеклопластика или бетонных колец большого диаметра.
Выгребная яма должна быть ниже уровня земли, иметь вентиляционную трубу, которая может быть располагаться как отдельно, так и соединена с дымоходом в доме. Люк, расположенный на улице, должен закрываться плотно и обеспечивать герметичность, чтобы избежать неприятных запахов. Расстояние от дома до выгребной ямы должно быть не меньше 4 метров, канализационные стоки должны поступать туда самотеком, для чего трубу устанавливают с наклоном 4 градуса.
В доме можно использовать стандартный фаянсовый унитаз с бачком, который может наполняться вручную или быть подключенным к системе водоснабжения.
Очищение ямы проводится один раз в год или по мере наполнения с помощью ассенизаторской машины.
Биотуалеты или пудр-клозеты
Сейчас активно используются биотуалеты или пудр-клозеты. Они различаются по способу обработки биоотходов.
Биотуалет, изготовленный своими руками, устанавливается на дачном участке и имеет две емкости: бак для отходов и емкость для опилок или торфа. При использовании пудр-клозета, вы пересыпаете отходы опилками или торфом. По мере заполнения этой ёмкости ставите новый бак, а предыдущий освободите при образовании в нем компоста. Бак должен плотно закрываться крышкой, чтобы избежать неприятного запаха.

Пудр-клозет: торф или опилки для засыпки
Современный биотуалет может использовать биологические или химические очистители. В первом случае используются биобактерии для переработки отходов их разложения и удаления неприятного запаха. Бактерии уничтожают жировую пленку, грязь, пищу, бумагу и фекалии. Любая органика является питательной средой для них.
Биобактерии работают только при положительных дневных и ночных температурах от +4 до +32 градусов. Они препятствуют наросту жировых отложений в дренажных трубах и канализационных системах, абсолютно безопасны для природы и человека. Образовавшуюся биомассу можно использовать как удобрение, а воду для полива огорода.
Искусственно выращенные бактерии состоят из энзимов, дрожжей и гнилостных бактерий. Они обладают высокими очистными свойствами и разлагают биомассу в несколько раз быстрее, чем природные бактерии.
В этой статье подробнее о биопрепаратах для выгребных ям.
Химические антисептики не имеют ограничение по температуре и работают с агрессивной средой, то есть стоками, поступающими от стиральных машин. Биобактерии в такой среде погибают.
Отходы, обработанные химическими антисептиками из выгребных ям нужно удалять ассенизаторской машиной, так как при попадании в грунт они вызовут экологические проблемы.
Выгребная яма при использовании химических антисептиков должна быть и изготовлена из бетона или полимерных материалов.
Антисептики, которые в основе своей имеют нитратные окислители, прекрасно разлагают органику, а очистители с соединением аммония ускоряют процесс разложения и гасят запахи.
Популярные септики с биобактериями «Доктор Робик», «Эколайн», «BIOFORCE Septic» — туалет без запаха и химический антисептик «Део Турал».

Они прекрасно удаляют запахи и разлагают органику, снижают необходимость автоассенизации, очищают канализационную систему от заиливания и жировых отложений.
Видео: средства для выгребных ям и туалетов.
Деревенский туалет без запаха
При строительстве туалета в деревенском доме нужно обязательно руководствоваться соблюдением санитарных норм и правил (СНиП 30-02-97), за неисполнение которых может налагаться штраф. В них написано, что туалет может быть построен не ближе одного метра от границы соседнего участка и находится на удалении 8 метров от источника воды (колодец, артезианская скважина, пруд).
Этими же правилами предусмотрено, что выливать мыльную воду после стирки на землю нельзя, она должна быть вылита в специальную фильтровальную траншею со слоем песка и гравия.
Современный деревенский дом строится с комфортом приближенным к городскому уюту. Поэтому требуется строительство автономной канализационной системы. Самый дешёвый способ канализационной системы в деревенском доме – это устройство выгребной ямы.

Выгребная яма
Расчет ее размеров должен исходить из того, что каждый человек при постоянном проживании расходует 200 литров воды в сутки, которые после использования окажутся в выгребной яме. Семье из четырех человек будут заполнять объем 2,4 кубических метра в месяц.
Внутри дома монтируется система водопровода и канализации, стоки из неё должны попадать в выгребную яму. Глубина траншеи от дома к яме должна быть ниже промерзания грунта в вашей местности, чтобы исключить замерзание канализационной трубы в зимние месяцы.
Локальная канализация может собирать отходы в два разных резервуара.

Раздельная система для сброса фекальных и бытовых стоков
Отдельно собираются стоки из туалета, из них можно сделать с помощью биобактерий компост для удобрения земельного участка. В другой резервуар собирается вода, после стиральной машины. Их нейтрализуют с помощью химических антисептиков и по мере заполнения удаляют с помощью ассенизаторской машины.
Как построить уличный туалет без запаха
Есть еще простой способ сооружения уличного туалета без запаха, не требующих особых затрат. Выкапываете сливную яму, укрепляете деревянными брусьями стены, чтобы они не осыпались. Размер её:
- ширина один метр, длина и глубина полтора метра.
- Вниз ямы насыпьте слой мелкого гравия толщиной 6-8 сантиметров.
Сверху сооружаете туалетный домик со стулом, который должен плотно закрываться. Из сливной ямы выводите вентиляционную трубу из ПВХ диаметром 10-15 см. При высоте туалета 2,3 метра, вентиляционная труба должна быть выше крыши на 40-60 сантиметров. Место входа трубы в яму изолируйте паклей или герметикам, а сама труба прикрепляется хомутами к задней стенке туалета.

Когда яма заполнится отходами на 2/3 от объема, ее засыпают землей, а туалет переносят на другое место. Такого туалета хватит на 3-4 года.
Отходы от предыдущего туалета превратятся в компост через 5 лет и их можно использовать как удобрение. Процесс можно ускорить, используя биобактерии.
Видео: как построить туалет на даче своими руками.
Обустройство дачного туалета без запаха дело ответственное, но при достижении положительного эффекта ваша жизнь на даче или в деревенском доме будет ничем не омрачена и принесет вам немало радостных мгновений.
dachadoma.ru
Уличный туалет своими руками – как лучше сделать?
Содержание статьи:
На дачном или частном участке первой постройкой должен быть туалет. Даже если строительство только начинается, то без этого сооружения не обойтись. Более актуальной ситуация будет при постоянном проживании или периодических поездках на дачу. Самым оптимальным решением будет обустройство уличного туалета. Постройка не отличается особой сложностью. С задачей сможет справиться любой домашний мастер. Именно о том, как обустроить уличный туалет своими руками пойдет речь далее.
Разновидности уличных туалетов
Туалет с выгребом. Чаще всего деревянная будка или домик, под которым находится выгребная яма. Функционирует просто. Все отходы помещаются в яму. Жидкость испаряется и впитывается в грунт. Плотные остатки накапливаются. Их время от времени приходится удалять.

Люфт-клозет. Также имеет выгребную яму. Однако она выполняется абсолютно герметичной и больших размеров. Процесс дренажа из нее недопустим. Очищение происходит только путем откачки ассенизаторской машиной. Обычно подобные сооружения применяются для жилых помещений и устанавливают унитаз.

Пудр-клозет. Эта система не нуждается в обустройстве выгребной ямы. Внутри домика обустраивается стульчак, под которым размещается накопительная емкость для отходов. В непосредственной близости располагают торф. После каждого похода в туалет экскременты посыпаются торфяным слоем. Когда емкость наполняется ее просто выносят на компостную кучу.
Подобное уличное устройство обладает рядом достоинств. В сравнении с туалетом с выгребом он обладает более простой конструкцией. Его можно разместить даже в жилом помещении. Однако процесс очищения емкости с отходами не слишком приятный.

Торфяной биотуалет. Представляет собой разновидность пудр-клозета, но сделанный в заводских условиях. Выглядит как пластиковый унитаз с бачком. Принцип действия полностью аналогичен предыдущему варианту. Также используется торф для подсыпки нечистот. Подобные биотуалеты подойдут для уличного размещения и для домашнего.

Химический туалет. Отличием от предыдущего варианта будет использование химических реагентов вместо торфа. Они проводят расщепление и дезодорацию отходов. В качестве химически активной среды могут применяться биобактерии. Они будут даже предпочтительны для дач. Продукты их переработки можно удалять даже на грядки. До такой степени они безопасны.

Где можно поставить туалет?
С видами разобрались. Теперь стоит понять, в каком месте можно поставить туалет в частном доме своими руками. Конечно этот раздел будет касаться только туалета с выгребной ямой. Пудр-клозета и вариаций биотуалетов это не будет касаться, так как они не доставят проблем с выбором места. Их можно поставить в любом понравившемся месте.
Про нормативы и расстояния расположения септика от дома мы говорили в одной из статей. В ней подробно рассмотрели все нюансы размещения. Эти же правила касаются выгребной ямы. Рекомендуем их изучить прежде, чем начинать обустройство туалета.
Повторять их в рамках этой статьи нет смысла. Всю эту информацию вы найдете, пройдя по ссылке. Лучше перейдем к вопросам строительства.

Туалет с выгребной ямой
Делая туалет в частном доме своими руками, следует придерживаться рекомендуемых характеристик постройки. Так, слишком большой домик обустраивать нет смысла. Лишняя площадь ни к чему, да и зимой будет свежо. Наоборот, чересчур маленькая постройка будет неудобна. Именно поэтому оптимальными размерами будут следующие:
- Высота – от 2 до 2,5 метров;
- Длина – до 1,5 метров;
- Ширина – 1 метр.
В одной из предыдущих статей мы привели чертежи дачного деревянного туалета. Поэтому если вам необходим готовый начерченный вариант, то переходите по ссылке и изучайте.
Начальный этап и подготовка ямы
Начальным этапом будет подготовка. В самом начале следует продумать проект и провести подготовку участка. Сразу же стоит подготовить требуемые материалы и инструменты.
Выше мы уже затрагивали вопрос выбора места. К нему стоит подходить со всей серьезностью. Если не продумать все нюансы, то можно получить массу проблем. Перенести выгребную яму не так уж просто.
После начальной подготовки и выбора места можно приступать к обустройству выгребной ямы. Для уличного туалета, который не предполагает непрерывного использования, подойдет яма размером 1-1,5 м3. Подготавливать яму можно вручную или с привлечением спецтехники. Однако в любом случае самый оптимальный размер будет следующий:
- Глубина – 2 метра;
- Ширина – 1,5 метра;
- Длина – 1,5 метра.
Для того, чтобы укрепить стенки ямы можно использовать доски, старые покрышки, бетонные кольца или кирпичи. В качестве альтернативы можно использовать металлические или пластиковые бочки.

При кладке кирпича необходимо делать армировку. Используется арматура или армированная сетка. Все швы должны быть тщательно заделаны и гидроизолированы. Выгребная яма не должна пропускать жидкость.
В общей последовательности технология обустройства выгребной ямы будет выглядеть так:
- Копается котлован. Его нужно сделать сантиметров на 30 больше, чем планируется выгреб;
- На дно укладывается и трамбуется глина. Толщина – до 30 см. Это будет глиняный замок. Благодаря ему нечистоты не будут проникать в почву.
- Стены и дно выкладываются кирпичом, камнем или досками. Основным требованием будет невозможность пропускать воду. На этом этапе производится гидроизоляция.
- Зазор между стенкой и грунтом тоже следует заделать глиной. Это тоже замок – наружная гидроизоляция.
- Поверх ямы укладывается перекрытие. Чаще всего используются доски толщиной от 40 миллиметров. В этом перекрытии необходимо сделать 2 отверстия. Первое потребуется для монтажа стульчака. Второе – для люка откачки.
- Выполняется вентиляция.
Чтобы исключить всю трудоемкую работу по выкладке стенок с гидроизоляцией можно использовать какую-нибудь подходящую емкость (варианты выше) или же специальную – септик. Этот вариант сделать получится раза в 2 быстрее.
Возведение туалетного домика
Для любого туалета потребуется кабинка. Если делать своими руками, то проще всего соорудить прямоугольное сооружение. Крыша односкатная. Этот вариант требует минимальное количество затрат времени и материалов. Наиболее подробно вся процедура возведения рассматривалась в статье технология возведения деревянного дачного туалета.
В первую очередь следует изготовить пол. Однако он должен быть приподнят над землей. Лучше всего это сделать с помощью столбов по углам сооружения. Заглубить их лучше всего сантиметров на 20-30. Изготавливаются они из камней, кирпича или бетона. Существуют специальные проставки из бетона, как на изображении. Однако найти их будет сложнее и дороже, чем сделать самостоятельно.

Дальше последовательность следующая:
- На столбы кладется настил. Чаще всего деревянный. Дерево лучше обработать защитными препаратами. Стоит помнить об агрессивной среде.
- Ставятся вертикальные опоры. Для этого используется брус 100х100 мм и больше. Высоту подбираете сами, но рекомендуемые значения мы привели. Передние необходимо делать на 15 см выше. Это требуется для создания ската крыши. К основанию они фиксируются пластинами или отрезками брусков. Вместо гвоздей лучше использовать саморезы.
- Вверху периметр также обвязывается брусом.
- Брусом 50х100 мм формируется дверной проем. Ширина подбирается исходя из размеров двери.
- Каркас обшивается досками, фанерой или ОСБ плитой.
- На крыше выполняется обрешетка. В качестве нее могут использоваться те же материалы, что для обшивки.
- Настилается кровельное покрытие – шифер, профлист или мягкое покрытие.
- Устанавливаются двери.
Туалет без выгребной ямы
Без ямы создать уличный туалет для дачи своими силами намного проще и быстрее. В рассмотренных вариантах вы видели, что все отходы собираются в емкости. Соответственно для расположения на улице потребуется соорудить лишь подходящую кабинку. Технологию строительства кабинки для уличного туалета вы увидели. Поэтому для туалета без выгреба ее соорудить можно точно так же.

У подобных туалетов имеются значительные преимущества:
- Не потребуется вырывать яму, герметизировать ее.
- Не нужно проводить регулярную откачку или очистку.
- Отходы после переработки можно использовать в качестве удобрений.
Однако у фабричных туалетов имеются свои недостатки:
- Заводские туалеты стоят недешево.
- Потребуется время от времени заменять емкость.
- Необходимо наблюдать за средствами нейтрализации.
Несмотря на определенные недостатки современные биотуалеты завоевывают все большую популярность. Конечно, возможность использования в помещениях может перевесить все недостатки. При покупке подобного устройства вам вообще не потребуется озадачиваться обустройством уличного туалета и проблема будет решена легко и просто.
Советуем почитать:
stroysoveti.ru

Первым на участке строят туалет, а затем остальные постройки!