Толщина стен в монолитных многоэтажных домах. Технологическая карта на монтаж конструкции 16-ти этажного монолитного жилого здания
Чем отличаются панельные, монолитные, кирпичные многоэтажные дома? -Блог от застройщика
Где жили наши бабушки и дедушки еще 60 — 70 лет назад в послевоенное время?
Ну в лучшем случае, если в деревянном доме в деревне. В городах же это были бараки. Одну комнату умудрялись делить на 2-3 части занавесками и жить по 5-6 человек. Звукоизоляция между комнатами никакая, так как перегородки из досок. На «чих» соседа говорили «будь здоров».
Ярославль, Нефтестрой, ул. Рыкачева, бараки
Также встречались случаи, когда люди жили в землянках. И это не преувеличение, а реалии тех лет. Это, например, подтверждает специалист по истории градостроения Андрей Рейнер.
В 1955 году было принято знаменитое постановление об устранении излишеств в строительстве многоквартирных домов (как это было принято в «сталинках») и все средства перенаправлять на создание массового жилья.
Так появились «хрущевки». В основном они возводились из панелей, которые готовыми привозились на стройку. Чаще всего строили в 5 этажей. Если больше, то требовался лифт. А это уже затратно. Квартиры получались компактные. Например, кухня 6 м² . Комната проходная. Санузел совместный. Без балконов. Что говорить, Вы и сами это все знаете.
Также строили и кирпичные «хрущевки». Они получались более затратны. Но и характеристики были выше (по шумоизоляции, отсутствию щелей, сроку годности, имелись балконы).
В 70х годах распространение получили «брежневки». Это те же «хрущевки», но улучшенной планировки (раздельный санузел, больше комнаты, 9 этажей и более, мусоропровод и т.д.).
А какие дома строят в 21-ом столетии в России и, в частности, в Ярославле?
Кирпичный многоэтажный дом – это?
Кирпичный жилой дом – это дом, который возводится строго из кирпича. Этаж за этажом. Исключения — лишь плиты перекрытия, балконные плиты и оконные проемы.
Наружные стены толщиной – 640 мм. (но могут встречаться и другие размеры). Капитальные стены – 510 или 380 мм. Кирпич может использоваться как керамический, так и силикатный (белый).
Перегородки между квартирами или комнатами могут быть из разных материалов.
Например, у дома, который строит компания «Светлояр» в Брагино на ул. Батова, 10, межкомнатные перегородки из гипсовых пазогребневых блоков толщиной — 70 мм. Толщина стен между квартирами – 180 мм. Это 2 слоя по 70 мм и воздушная прослойка между ними 40 мм.
На Батова 10 капитальные (внутренние) стены выполнены из полнотелого силикатного кирпича. Наружные стены – из пористого керамического камня, который облицовывается фасадным керамическим кирпичом. Преимущество керамического лицевого кирпича в том, что он меньше впитывает влагу, в отличие от фасада из белого кирпича.
Вид с 7-го этажа. Всего жилых этажей будет 10.
Плюсы и минусы кирпичного дома
Преимущества:
— шумоизоляция.
С улицы посторонние звуки поглощаются стеной в 640 мм. В кирпичном доме, например, звуки от работы отбойного молотка распространяются слабо;
— срок службы 150 лет. И подтверждения этому хрущевки из кирпича, которые стоят 60 лет. И простоят еще больше.
— естественный микроклимат. Кирпичный дом в жару не нагревается и в нем прохладно. А зимой не промерзает. И это благодаря толщине наружной кирпичной стены и применению современных технологий и материалов;
— возможность перепланировки. Так как редкие стены являются несущими;
— отсутствие швов, в которые может «сифонить» с улицы. Например, в отличие от панельных домов, где вероятность такая существует.
Недостатки:
— срок строительства. В среднем темпы строительства дольше, чем у других технологий;
— квадратный метр дороже. Строительство кирпичного дома – это высокие затраты на квалифицированных каменщиков и на кирпич;
— неравномерная усадка.
Сдача дома новоселам – это тонны мебели и отделочных материалов. Поэтому в первые годы происходит его естественная усадка. Например, плитку в ванной не рекомендуется укладывать ранее 3 лет.
Монолитно – каркасный жилой дом. Что это?
Вкратце рассмотрим монолитный дом. Это дом, нагрузки которого несет единая железобетонная конструкция. Колонны, плиты перекрытия, капитальные стены являются единым целым. Вяжется арматурный каркас, устанавливается опалубка, в которую заливается высокопрочный бетон марки B25. Не монолитными являются только перегородки.
Монолитно – каркасное строительство – это каркас дома монолитный (колонны, плиты перекрытия, несущие стены), а наружные стены, межквартирные и перегородки из других стройматериалов.
Для примера возьмем дом в Ярославле на ул. Батова 3 корп. 4, который «Светлояр» сдал в ноябре 2017 года.
Наружные стены у него из газосиликатных блоков и наружная часть из кирпича.
Между ними не большая воздушная прослойка. Благодаря, пористой структуре газобетон отличается низкой теплопроводностью и высокой шумоизоляцией. Такие блоки в 2 раза легче кирпича, поэтому нагрузка на фундамент ниже. А также они на 1/3 дешевле кирпича и укладываются быстрее. Соответственно, и квадратный метр обходится дешевле.
Кстати, в данном доме еще есть свободные квартиры. Поэтому Вы можете задать любые вопросы, позвонив в отдел продаж: (4852) 28 — 88 – 00.
Перегородки, как и в кирпичном на Батова 10, «Светлояр» строит из силикатных пазогребневых стеновых пористых блоков. Хочется отметить, что у силикатных стеновых пористых блоков высокая шумоизоляция. Считается, что толщина стены в 70 мм из них равна 400 мм из железобетона.
Плюсы и минусы монолитно — каркасных домов
Преимущества:
— возможность перепланировки. Так как большинство стен не несущие;
— скорость строения. Процесс сбора и заливки опалубки быстрее, чем использование штучных материалов;
— недорогая стоимость квартир.
Трудозатраты и стоимость материалов на такие дома не самые высокие;
— равномерная усадка. Из-за монолитного каркаса;
— срок службы более 100 лет. Монолитный железобетон – это прочная и вечная конструкция.
Недостатки:
— шумоизоляция. Если от шума с улицы жильцы защищены толстой стеной в 640 мм, то от перфоратора соседей железобетон не спасает.
Что же такое панельные многоквартирные дома?
Многие сравнивают строительство дома из готовых панелей со всеми известным конструктором ЛЕГО. И мы не будем исключением. Наружные и внутренние стены, плиты перекрытия изготавливаются на заводах ЖБИ. Доставляются транспортом на объект, где в последствии и монтируются. Причем с готовыми проемами в стеновых панелях.
За примером далеко ходить не надо. У дома в Брагино на Батова 10 есть «сосед», построенный как раз таким способом. Правда фото со стройки с боку. Но на солнышке отчетливо видны и плюсы, и минусы таких построек.
Правда с одной оговоркой, технологии по которым строили панельные дома в советское время и 90-е, могут отличаться от современных в лучшую сторону.
Минусы и плюсы панельных домов.
Преимущества:
— скорость возведения. За 10 месяцев реально возвести дом под ключ;
— строительство круглый год. В зимнее время такой способ не требует дополнительных трудозатрат;
— низкая стоимость квартир. Здесь логично. Меньше затрат, дешевле на выходе квартира.
Недостатки:
— наличие швов. Высокая вероятность промерзания швов между панелями;
— низкая шумоизоляция. Если не использована доп. отделка;
— срок службы 50 – 70 лет;
— нет возможности перепланировки. Практически все стены являются несущими (кроме перегородок санузлов).
Для желающих купить квартиру в Ярославле, несомненно, важно разобраться в вопросе технологии строительства домов.
Время от времени, не забывайте заглядывать в наш блог, чтобы не пропустить важную информацию. Она может сэкономить Вам время и средства. А иногда и нервы.
Для Вас мы уже начали готовить следующую тему «Этапы строительства кирпичного жилого дома».
До встречи!
06.08.2018, 103 просмотра.
svetloyar-yar.ru
Проблемы монолитных и монолитно-каркасных новостроек
Напомним, что применяемые в последние годы при строительстве каркасно-монолитных многоэтажных жилых домов трехслойные наружные конструкции стен с внутренним слоем из плитного эффективного утеплителя и лицевым слоем из кирпичной кладки имеют существенные повреждения на значительном количестве эксплуатируемых зданий. Как правило, недостатки конструкции выявляются при эксплуатации зданий, и устранение дефектов силами эксплуатирующих организаций практически невозможно.
В соответствии с распоряжением №18 от 23 мая 2008 г. министерство строительного комплекса московской области рекомендовало проектным организациям при разработке проектов предусматривать конструктивные решения наружных ограждающих конструкций преимущественно с применением теплоэффективных каменных материалов, исключив применение колодцевой кладки.
Кабинет министров республики Татарстан выпустил распоряжение №382-р от 30.03.2009г., согласно которому было рекомендовано при проектировании и строительстве жилых и общественных зданий расчетной надежностью и долговечностью более 50 лет не применять метода слоистой кладки наружных стен с расположенным внутри утеплителем из пенополистирола или минеральной ваты, показавшим себя в эксплуатации как неэффективный, а также предусматривать в проектной документации долговечность и надежность зданий на срок от 100 до 150 лет.
Министерством строительства Удмуртии в июне 2013 года были выпущены рекомендации, согласно которым на социальных объектах высотой до трех этажей должны применяться каменные конструкции наружных стен.
Таким образом, опасения, связанные с вопросами долговечности и ремонтопригодности были вынесены и подтверждены на высшем уровне в регионах России.
Однако, применение исключительно каменных конструкций и отказ от колодцевой кладки и утеплителей из различного рода ват и пенополистирола не означает сиюминутного решения всех проблем.
Отдельные судебные процессы, связанные с недостатками строительства на объектах, в которых не применялись утеплители из ват, не являются сегодня редкостью.
Специалисты Уральского научно-исследовательского и проектно-конструкторского института Российской академии архитектуры и строительных наук Екатеринбург (УралНИИпроект) задаются интересным и шокирующим вопросом: «Не сдует ли ветер стены с высоток?»
Тревогу у специалистов вызывает прочность многослойных стен, выполненных из ячеистобетонных или полистиролбетонных блоков при строительстве многоэтажных зданий.
Не секрет, что требования энергосбережения, а также стремление застройщиков и проектировщиков не тратить на толстые массивные стены полезную площадь квартир привели к значительному облегчению наружных стен.
Если в советский период толщина однослойных массивных кирпичных стен составляла 510 мм и более, то сегодня при возведении так называемых монолитно-каркасных домов толщина наружных стен из легких бетонов (газобетон, ячеистый бетон и т.п.) может быть и менее 400мм. В этом можно легко убедиться, посетив любую новостройку с монолитным каркасом и навесной стеной: просто сравните толщину наружной стены нового дома и дома советской постройки.
Свойства легкобетонных камней таковы, что их линейные размеры со временем могут уменьшаться. Высота стен за 3-5 лет может уменьшиться на несколько миллиметров, что приводит к образованию зазора в месте примыкания стены к монолитному перекрытию. В таком состоянии стена может шататься под воздействием ветра. Под воздействием таких подвижек могут образовываться видимые повреждения внутренней отделки: трещины, через которые проникает холодный воздух, отслоения штукатурки, обоев и т.
п.
Недостаточная прочность и некачественное крепление наружных стен и лицевой кладки в условиях значительного и постоянно меняющегося ветрового давления, могут привести к плачевным последствиям.
Ознакомиться с документами и скачать их можно по ссылкам ниже.
my-amber.ru
Этапы строительства монолитного многоэтажного дома
Зная этапы строительства монолитного многоэтажного дома, легко убедиться в качестве и надежности таких сооружений, которые помогают тысячам семей в России обзавестись новой квартирой. Преимущества таких зданий неоспоримы — высокая скорость возведения, продолжительный срок службы и внешняя привлекательность. Ниже рассмотрим, что такое монолит, какие технологии применяются при возведении таких объектов в Москве и других городах России, а также разберем этапы строительства. Кроме того, захватим вопросы надежности, стоимости постройки и преимущества такой технологии. Но обо всем подробнее.
Содержание страницы:
Что такое монолит?
Панельное и кирпичное строительство постепенно теряют актуальность, уступая место монолитным технологиям.
Монолит — сооружение, которое возводится с применением специальной опалубки и бетонной смеси. По конструктивным особенностям опалубка — специальная конструкция, которая применятся для создания формы при заливке в нее подготовленной бетона. Без ее использования монолитное строительство невозможно. Именно благодаря опалубке здание получает требуемую жесткость, устойчивость к изменению формы и надежность. Кроме того, с помощью этого элемента каркасного строительства задаются главные параметры — размер, форма и другие элементы сооружения.
Монолитное строительство считается инновационной технологией, поэтому ее применяет небольшое число строительных компаний. При этом единицы застройщиков готовы предложить качественные услуги по строительству монолита. Главное требование к исполнителям проекта — четкое знание и следование технологии, что на данном этапе доступно единицам строительных компаний. Вот почему многие продолжают возводить дома из кирпича, по каркасной или панельной технологии.
Главной сложностью монолитного строительства считается возведение опалубки — неизменного элемента монолитной конструкции. Ее применение позволило значительно повысить качество сооружений. Несмотря на доступность информации и популярность технологии за рубежом, отечественные застройщики только начинают набирать опыт.
Причины популярности монолитных домов
Выше уже отмечалось, что монолитные здания отличаются долговечностью, высокой скоростью возведения и уникальной надежностью. Сегодня строительный рынок насыщен строительным материалом и технологиями, позволяющими упростить процесс возведения монолита, в том числе своими руками.
При строительстве частного дома владелец понимает, что его фантазия ограничивается только внешними стенами сооружения. При строительстве многоэтажных домов по монолитной технологии выделяются те же преимущества — будущий владелец квартиры получает свободу выбора в вопросе планирования помещения и создания собственной планировки. Квартиры в таких домах позволяют реализовать любые замыслы, благодаря отсутствию несущих стен внутри квартиры.
Вот почему число желающих приобрести недвижимость в монолитном доме или построить его своими руками только растет.
Технология строительства
Особенность монолитной технологии — жесткие требования к соблюдению правил и норм возведения таких объектов. Принцип заключается в установке на строительной площадке специальных опалубок, повторяющих контур будущего объект. Они обозначают стены, колонны и прочие элементы. Опалубка может иметь различные виды (предусматриваются схемой). Как только каркас подготовлен, устанавливается металлическая арматура, а далее в подготовленные формы заливается бетонная смесь.
Сегодня применяется два типа опалубки:
- Тоннельная. Ее особенность в том, что при строительстве удается получить цельные блоки квартир. Это обусловлено возможностью строительства внутренних стен и перекрытий тех габаритов (ширины и высоты), которые необходимы по проекту. После завершения основного строительства остается достроить внешние стены с помощью кирпича.
Минус применения такой опалубки в том, что площадь готового жилья ограничена 50-60 кв. метрами, поэтому такую новостройку сложно отнести к категории элитных. - Щитовая. Для строительства сооружений с применением такой опалубки требуется больше времени. Ее особенность — в возможности возведения объекта без каркасных балок, что открывает дополнительные возможности. К примеру, можно возвести здание с любым фасадом и различной этажностью. При этом имеется возможность спланировать будущее жилье так, чтобы удовлетворить запросы любого покупателя (даже с наиболее жесткими требованиями). Клиенты при этом получают множество вариантов недвижимости с учетом личных пожеланий. К примеру, в готовых квартирах может не быть перегородок, что позволит самостоятельно разработать планировку. Покупатель решает, сколько комнат будет в квартире, обустраивает интерьер и принимает решение по числу уровней.
В завершение монтируются коммуникации — электрическая часть, утепление и прочие элементы здания.
При возведении внешних стен применяются панельные, навесные или кирпичные стены. К слову, кирпично-монолитный вариант дома считается наиболее удачным с позиции звукоизоляции.
Этапы строительства монолитного многоэтажного дома
Возведение монолитного дома (как и любого другого объекта) проходит в несколько этапов:
- Расчистка и подготовка территории, на которой планируется строительство сооружения. Расчет площади производится с учетом габаритов будущего дома, а также площадки, которая потребуется для хранения и подвоза оборудования (материалов). Особенность строительства монолита — возможность подготовки бетона прямо на строительной площадке, что снижает расходы по смете.
- Установка арматурного каркаса. Следующим этапом считается монтаж основы сооружения. Важность этого этапа сложно переоценить, ведь именно его реализация позволяет возвести монолитное здание за небольшой промежуток времени. В зависимости от выбранной формы каркаса создается вид будущей постройки.
Каркас из арматуры обеспечивает готовому объекту дополнительную прочность и стойкость. - Монтаж опалубки. Как только участок под строительство подготовлен, а арматурный каркас стоит на месте, строительная компания приступает к установке щитовых конструкций. Именно в них заливается бетонная смесь (как отмечалось ранее, она готовится на площадке).
- Заливка бетона. При возведении монолитного здания применяется простая бетонная смесь, от качества которой также зависит надежность готового объекта. Собственно, бетонная основа позволяет сформировать стены будущего сооружения.
- Прогрев бетонной смеси. Более сложный процесс протекает зимой, ведь перед применением бетон приходится прогревать. В ином случае он застывает еще до заливки в подготовленные формы. Если работа происходит в теплое время года, необходимость проведения такой процедуры отпадает.
- Выдержка бетона и демонтаж опалубки. Чтобы бетонная смесь полностью застыла и получила требуемую форму, ее оставляют на несколько дней.
После опалубки демонтируются, а процесс строительства приближается к финишу. - Отделочные работы. На завершающем этапе происходит наружная отделка здания. Эта стадия считается заключительной в процессе строительства монолитного здания. Благодаря отличным характеристикам бетона в плане изоляции, монолитные постройки не требуют выполнения дополнительных мероприятий по звуковой, тепловой или гидроизоляции. Кроме того, нет необходимости выравнивать стены и проводить сложные отделочные работы. На завершающей стадии достаточно простой облицовки.
Фасадные работы подразумевают применение любых материалов, используемых для выполнения декоративной отделки. Как правило, применяются панельные материалы для облицовки, декоративная штукатурка, облицовочный кирпич и другие. У архитекторов открывается ряд возможности по реализации наиболее смелых замыслов и воплощения вкусовых предпочтений заказывающей стороны.
Строительные материалы
При возведении зданий по монолитной технологии строительные компании, как правило, применяют опалубки несъемного типа, произведенные с применением пенополистирола.
Такие конструкции выглядят, как пустотелый блок, состоящий из 2-х панелей (объединяются друг с другом при помощи специальных перемычек). Особенность пенополистирола заключается в небольшой массе и легкости установки, благодаря чему материал и получил широкую популярность.
Недостаток упомянутого изделия заключается в горючести, поэтому к выбору отделки при работах изнутри и снаружи здания стоит подойти крайне внимательно. Чаще всего для внутренних отделочных работ применяются листы из гипсокартона (клеятся прямо на пенополистирол). Далее внешние стены здания покрываются слоем штукатурки или облицовываются. В последнем случае применяются специальные панели, которые трудно подвержены горению, или плитка.
Кроме того, при возведении монолита используются опалубки, которые можно разбирать и собирать. В большинстве случаев они применяются при строительстве зданий административного характера и многоэтажных сооружений. В такой ситуации конструкция здания выполняется одним из методов:
- Монолитные внешние стены и утеплитель на фасаде.

- Монолитные стены и утепление изнутри.
Первый вариант подходит для больших домов, а второй для других зданий.
Надежность
Возведение каркасно-монолитного сооружения подразумевает передачу главной нагрузки на колонны, которые выполнены с применением железобетона, а также на бетонные перекрытия. Использование такой технологии позволяет строительным компаниям возводить каркас, отличающейся высокой надежностью и устойчивостью.
Перегородки в монолитах — элементы здания, которые имеют формальный характер. Они не принимают на себя нагрузок и выполняют функцию разделения или создания формы. При покупке недвижимости в здании, построенном по монолитной технологии, покупатель вправе вообще отказаться от перегородок и создать персональную планировку. Владелец вправе сделать одну большую студию или разбить квартиру на необходимое число комнат.
Качество готового здания во многом зависит от следующих факторов:
- Наличия подготовленных и отшлифованных конструкций.

- Контроля выполнения работы со стороны специалистов.
При организации контроля результаты возведения постройки вносятся в специальный журнал. Так, строительство монолитно-кирпичного здания требует проверки качества «обвязки» арматурного каркаса, контроля бетонной смеси, вычисления точности расположения опалубки и прочих работ. Контроль осуществляется с момента начала строительства и до полного затвердевания готовой опалубки.
Стоимость
Применение технологии монолитного строительства, о которой говорилось ранее, позволяет уменьшить расходы на возведение объекта. Это объясняется несколькими факторами — высокой технологичностью, быстрым возведением объекта и оптимизацией рабочих процессов. Если сравнивать стоимость жилплощади в монолитном доме с объектами в зданиях сборного типа, в первом случае цена ниже на 15-20%.
Преимущества
Технология строительства монолитных зданий имеет следующие плюсы:
- Дом сдается намного быстрее.
- Возведение обходится в меньшую сумму, что делает жилье доступнее для покупателей.

- Готовое здание обладает отличными характеристиками в плане звуко- и теплоизоляции.
- Монолитные здания отличаются небольшой массой и повышенной прочностью.
- Для возведения объекта требуется минимум техники.
- Легкость монтажа.
- Готовый объект не нуждается в чистовой отделке.
- Открываются пути для реализации различных архитектурных замыслов. Следовательно, такие сооружения можно возводить даже в тех районах, где кирпичное или панельное строительство исключено.
Что касается недостатков, они касаются сложности процесса при работе в зимний период (требуется подогрев бетона), также необходимости выполнения работ на открытой территории. Как результат, строительная компания зависит от погоды.
stroimprosto-msk.ru
Монолитное строительство многоэтажных многоквартирных домов
В современном мире строительство становится одной из головных отраслей хозяйства. Популярность набирает не только индивидуальное строительство, но и возведение многоэтажек.
Строительные фирмы предлагают построить монолитный жилой дом из разнообразных материалов: кирпича, бетонных и газосиликатных блоков, бруса, панелей и других. Качественные характеристики каждого материала помогают определиться при выборе типа дома.
Содержание материала
Определение монолитного строительства
Для строительства многоэтажных жилых домов в основном применяется монолитно бетонное строительство. Многоквартирный монолитный дом создается методом заливки бетонного раствора в специально оборудованную арматурным каркасом опалубку.
Спецификой строительства является то, что каждый последующий слой продолжает предыдущий без стыковочных швов. Результатом строительства является сплошной (цельномонолитный) и ровный многоэтажный дом. Фундамент для такого дома составляет единое целое с каркасом здания и укрепляется арматурой.
Для возведения монолитных частных жилых домов применяется технология кирпично-монолитного строительства.
В таких домах монолитный каркас из бетона соединяют с внешней кирпичной кладкой.
Строительные организации предлагают проекты монолитного строительства, доступные любому человеку.
Вернуться к оглавлениюПреимущества монолитного возведения
Технология монолитной постройки в сравнении с другими методами возведения зданий имеет свои положительные стороны:
- Сравнительно большая скорость возведения монолитных зданий.
- Устойчивость – монолитный жилой дом может выдержать землетрясение до 8 баллов.
- Усадка монолитного здания незначительная и равномерная. Такое свойство обеспечивает отсутствие трещин и позволяет практически тут же после постройки здания приступить к его отделке, как внутренней, так и внешней.
- Прочность каркасно-монолитной конструкции достигается отсутствием швов. Срок службы таких сооружений достигает 100 лет.
- Монолитные сооружения можно строить практически на любых почвах.Проект монолитного двухэтажного здания
Технология такого строительства предусматривает застройку проблемных грунтов благодаря меньшему весу сооружения, усадка в этом случае будет минимальна.

- Стоимость возведения фундамента для многоэтажных домов ниже за счет отсутствия на него точечных нагрузок. В монолитном строительстве нагрузка на фундамент распределена по всему периметру здания.
- При применении щитовой опалубки нет необходимости в доставке тяжелых и объемных конструкций к месту строительства.
- Каркасно-монолитное строительство обходится дешевле благодаря экономии на материалах, количестве рабочих и технике.
- Строительство монолитных домов предусматривает возведение конструкций любой этажности и разнообразной архитектурой.
- Большая внутренняя полезная площадь каркасно-монолитных конструкций достигается из-за толщины стен таких домов – она меньше.
- За счет целостности конструкции монолитные дома защищены от потопов, в отличие от кирпично-деревянных.
Недостатки монолитного строительства
Несмотря на указанные преимущества, технология монолитной постройки имеет свои недостатки:
- Построить монолитный дом обойдется дороже, чем панельный.

- Отсутствует возможность перепланировки, поэтому проекты таких домов должны учитывать все аспекты строительства с самого начала.
- Непрерывность процесса бетонирования для обеспечения дополнительной прочности конструкции.
- Температурный режим процесса заливки бетона не ниже +5°С, поэтому зимние работы требуют использование дополнительных специальных добавок.
- Необходимо качественное уплотнение бетонной смеси.
- Монолитной конструкции требуется дополнительное утепление, потому что стены из железобетона имеют хорошую теплопроводность.
- Монолитный дом, также как и панельный имеет низкий уровень звукоизоляции, особенно от ударных шумов.
Городское строительство
Строительство монолитов в черте города набирает популярность. Для возведения многоэтажек в сжатые сроки такой вид застройки является оптимальным. Поскольку усадка монолитного многоэтажного дома минимальна, то обеспечивается высокая скорость возведения.
Этапы строительства многоэтажного многоквартирного дома следующие:
- Выделяется участок под строительство.
- Проводятся геологические исследования.
- Составляются проекты.
- Строительство.
- Сдается дом в эксплуатацию.
Подбор подходящего земельного участка – первый этап многоэтажного строительства. Для этого необходимы не только проекты, но и согласование с планированием городской застройки. Разрешение на строительство проще получить в том районе, где мало многоэтажных домов, сложнее – в центре города.
Возведение монолитного каркаса здания в черте городаПосле того, как получено такое разрешение, проводятся исследования грунта. Проводится экспертиза близости грунтовых вод, оценивается состояние грунта на участке. Когда все исследования закончены и сделаны выводы, определяется, нужна ли специальная технология строительства.
На этапе проектирования рассматриваются все вопросы, связанные с возведением дома или комплекса домов и составляются проекты.
Составление проекта строительства многоэтажного дома – сложная задача, ведь такой проект включает в себя не только проектировку дома, но и учитывает удобства и предпочтения жильцов, также уделяется внимание нормам санитарного законодательства.
Во время проектирования строительства дома решаются вопросы не только площади каждой квартиры, но и вопросы освещенности, вентиляции, теплозащиты.
теплоизоляция монолитного домаКогда возводятся многоэтажные дома, учитываются климатические условия в регионе и уровень возможных природных катастроф.
Строительство монолитных домов предполагает непосредственно возведение конструкции. После чего проводится отделка дома: внутренняя и внешняя. Далее необходимо провести подключение отопления, канализации и водопровода. Обязательно проводятся телефонные коммуникации и кабели электроснабжения.
Проекты многоэтажных домов могут содержать разные варианты использования крыши здания и первых этажей.
Строительные организации могут предложить украсить крышу зимним садом или переходом к другому дому.
Квартиры на нижних этажах могут быть проданы или сданы под строительство магазинов. При окончании строительства обязательно около дома возводится детская площадка, место для парковки, зеленая зона.
Вернуться к оглавлениюРемонт в монолитной многоэтажке
Строительство монолитных зданий представляет собой сооружение литой конструкции из бетона, фасад которой облицовывают панелями или кирпичами. Такой дом не имеет швов, он прочный с большим сроком эксплуатации.
Благодаря минимальной толщине стен, масса дома, по сравнению с кирпичным сооружением, становится меньше на 20%. Благодаря чему давление на фундамент минимальное и его усадка равномерная.
После окончания возведения дома многие строительные предприятия сдают «голые» квартиры в эксплуатацию. Конечно, жильцам хочется быстрее сделать ремонт. Но специалисты рекомендуют подождать. Причиной этому служит усадка здания.
Хотя монолитная технология строительства предполагает минимальную и равномерную усадку, бываю досадные исключения.
Особенностью монолитно-каркасного дома является не только равномерная и минимальная усадка, но и свободная планировка. Она подразумевает частичные стены либо их отсутствие, потому что монолитный дом не имеет несущей стены. Преимущество – владельцы имеют полную свободу выбора площади комнат и их планировки.
proekt-sam.ru
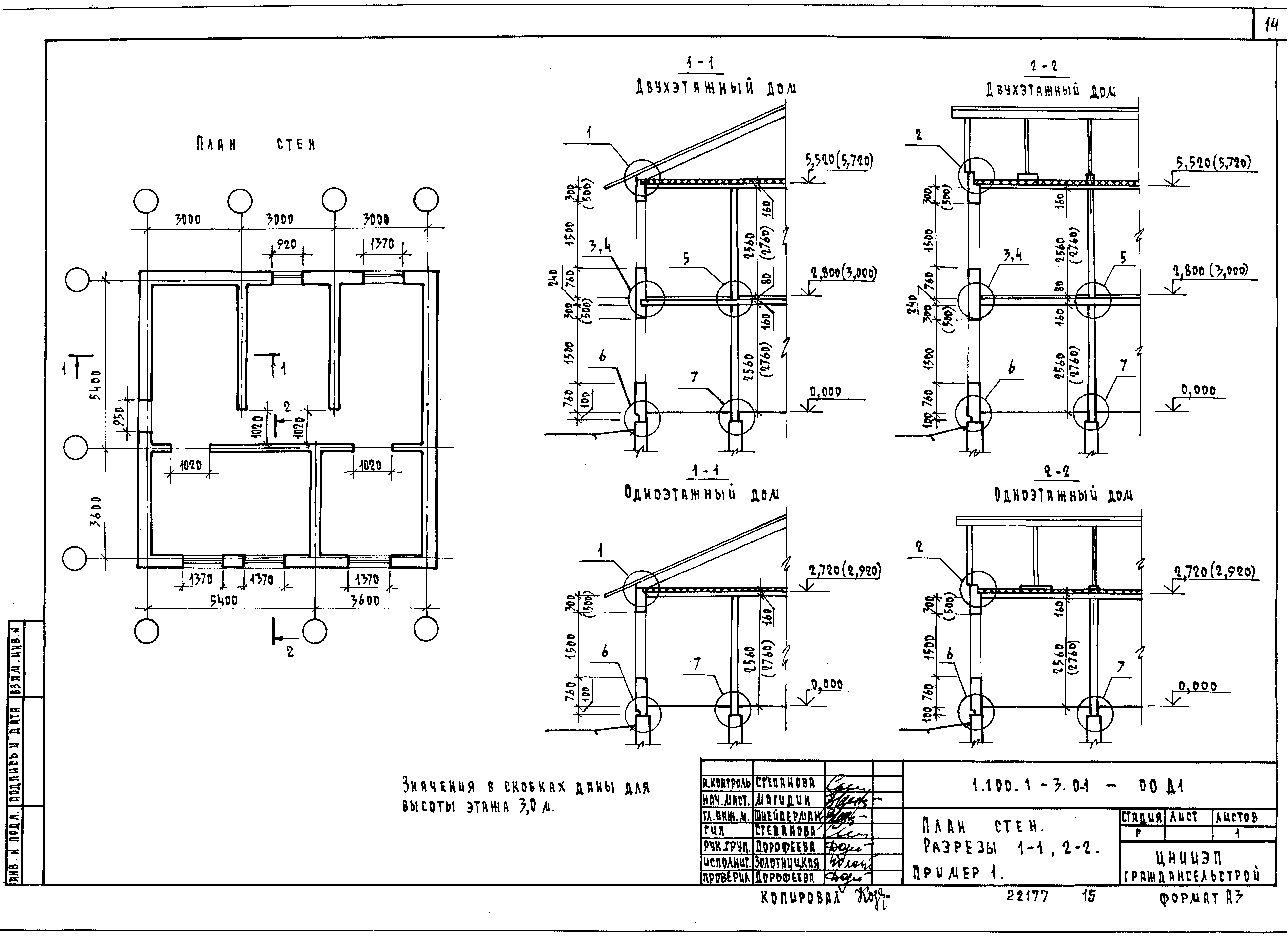
Технологическая карта на монтаж конструкции 16-ти этажного монолитного жилого здания
МОСКОВСКИЙ ГОСУДАРСТВЕННЫЙ СТРОИТЕЛЬНЫЙ УНИВЕРСИТЕТ
МИНИСТЕРСТВО ОБРАЗОВАНИЯ РОССИЙСКОЙ ФЕДЕРАЦИИ
Кафедра Технологии Строительного Производства
Пояснительная записка к курсовому проекту на тему:
“Технологическая карта на монтаж конструкции
16-ти этажного монолитного жилого здания”.
Выполнила:
Студентка факультета
ПГС-3-9
Ионычева О.А.
Проверила:
Комиссарова А.С.
Москва
2008
Оглавление:
Задание на проектирование технологии возведения многоэтажного монолитного жилого дома.
Исходные данные для проектирования.
План подземной части здания.
Задание на проектирование технологии возведения многоэтажного монолитного жилого дома.
Целью проекта является разработка технологии возведения подземной части монолитного шестнадцатиэтажного жилого дома в городе Казань. Размер сооружения в плане составляет 46200´19200 мм. Дом имеет один подъезд, два пассажирских лифта грузоподъемностью 1000 кг с размерами лифтовых кабин 1400 ´ 1200 мм и 1400 ´ 2350, две лестницы.
Грунт, на котором возводится здание – супесь.
Фундаментом служит монолитная железобетонная плита толщиной 0,8 м.
Подземная часть состоит из монолитных железобетонных стен толщиной 300 мм и перекрытия подвала толщиной 200 мм, колонн сечением 400´400 мм и ригелей сечением 500´200 мм.
Высота подвального этажа – 3,2 м.
Диаметр/шаг рабочей арматуры стен – 16/200 мм; перекрытия – 18/250 мм; сеток фундаментной плиты – 18/250 мм.
В процессе строительства задействованы следующие материалы: щебень для устройства подсыпки; бетон класса В30; арматурные стержни диаметром 16 мм ; щитовая опалубка
для возведения фундаментной плиты, стен и перекрытия подвала. Используемые машины: бульдозер, экскаватор, автокран, самосвалы, автобетоновоз.
Комплексный процесс возведения монолитных бетонных и железобетонных конструкций состоит из заготовительных и построечных процессов, которые технологически и организационно связаны между собой.
Заготовительные процессы включают: изготовление опалубки, арматурных каркасов, армоопалубочных блоков, приготовление бетонной смеси. Эти процессы выполняют в условиях заводского производства.
К построечным процессам относятся: земляные работы, установка опалубки и арматуры, транспортирование, распределение и укладка бетонной смеси, выдерживание бетона, демонтаж опалубки.
Организация работ по возведению зданий в монолитном варианте должна предусматривать максимальную совместимость работ по времени и поточность на базе комплексной механизации всех работ.
Технология монолитного домостроения связана со средствами горизонтального и вертикального транспорта, разнообразием применяемых опалубок и механизацией укладки бетонной смеси на объекте.
Исходные данные для проектирования:
Место строительства – г. Казань
Количество этажей – 16
Высота этажа НЭТ, м – 3
Высота подвального этажа НП, м – 3,2
Грунт, отметка поверхности, м – супесь(-2)
Толщина монолитных ж/б стен ВС, мм – 200
Толщина монолитного перекрытия, мм – 200
Толщина стен подвала ВП, мм – 300
Сечение колонн подвала АхВ, мм – 400х400
Сечение монолитных балок НБхВБ, мм – 500х200
Толщина фундаментной плиты НФП, мм – 800
Класс используемого бетона – В30
Диаметр/шаг рабочей арматуры стен, мм – 16/200
Диаметр/шаг арматуры сеток перекрытия, мм – 16/200
Диаметр/шаг арматуры сеток фундаментной плиты, мм – 16/200
Температура бетона после укладки (зима) +15°С
Темп возведения типового этажа, дни – 10
План подземной части здания.
Подготовительные работы.
Прежде чем начинать планировочные и земляные работы, требуется выполнить подготовительные работы. Они различаются в зависимости от площадки, на которой предстоит вести строительство и в общем случае состоят из:
- Ограждение площадки.
- Удаление с площадки деревьев, кустов, пней или их ограждение, защита.
- Снос существующих строений.
- Перекладка существующих коммуникаций.
- Прокладка недостающих коммуникаций (водопровод, электроснабжение).
- Строительство жилья для рабочих, административно-бытовых строений, обустройство площадок для складирования материалов.
Продолжительность подготовительных работ – около 20 дней.
Земляные работы
Планировочные работы.
Планировочные работы выполняются после подготовительных. На этом этапе со всей строительной площадки срезается слой растительного грунта толщиной 20 см. Грунт сдвигается будьдозером к одной из сторон площадки и складируется в отвале до окончания работ, после чего он будет использован для благоустройства территории.
После срезки плодородного грунта, площадка выравнивается на глаз со срезкой излишков грунта и засыпкой впадин бульдозером.
Размеры строительной площадки.
Выбор бульдозера и расчет продолжительности планировочных работ.
Бульдозером снимается грунт на всей строительной площадке, которая имеет размеры 92,45 × 65,45 м и площадь 6050 м2. Толщина срезаемого грунта 0,2 м. Объем срезаемого грунта 1210 м3.
Таблица 1. Техническая характеристика бульдозера.
Наименование показателя | Марка бульдозера |
ДЗ-25 | |
Тип отвала | Поворотный |
Длина отвала, м | 4,43 |
Высота отвала, м | 1,2 |
Управление | Гидравлическое |
Мощность, кВт (л. | 132 (180) |
Марка трактора | Т-180 |
Масса бульдозерного оборудования, т | 2,85 |
Таблица 2. Нормы времени на 100 м3 грунта.
Расстояние перемещения грунта | ||||
Марка трактора | Марка бульдозера | до 10 м | добавлять на каждые следующие 10 м | |
Группа грунта – I | ||||
Т-180 | ДЗ-25 | 0,32 (0,32) | 0,29 (0,29) | |
Производительности бульдозера (расстояние перемещения 40 м):
м3/см ;
Продолжительность работы:
смены (1 день)
Разбивка здания.

Требуется перенести осевые линии на спланированную площадку. Для этого устанавливают сборную железобетонную обноску в створе осей и натягивают шнур параллельно оси. Обноска устанавливается на расстоянии 5 м от края котлована.
Схема обноски.
Контуры, размеры и геометрический объём котлована
Геометрические размеры котлована (исходные данные):
Рисунок 1. Поперечный разрез котлована.
Таблица 3. Наибольшая допустимая крутизна откосов временных котлованов и траншей, выполняемых без креплений.
Вид грунта | Глубина выемки, м | |
от 1.5 до 3 | ||
Угол между нап-равлением откоса и горизонталью, град | Отношение высо-ты откоса к его заложению, 1 : m | |
Супесь | 56 | 1 : 0. |
Таблица 2. Допустимая величина недобора грунта, .
vunivere.ru
Монолитное строительство многоэтажных домов: технология, требования
За несколько последних десятилетий монолитное строительство многоэтажных домов стало настоящим прорывом для всей строительной сферы. Конструкции таких сооружений содержат минимальное количество несущих элементов в виде колонн, капитальных стен и пилонов, что открывает широкие возможности для более рационального практического применения сэкономленного жилого пространства.
Причины роста популярности монолитного строительства
В настоящее время появление широкого ряда новых материалов и разработка инновационных строительных технологий значительно упрощают процесс монолитного возведения сооружений, сделав его более экономичным и быстрым.
Выполняя строительство монолитного дома своими руками, будущий хозяин жилья понимает, что при обустройстве помещений его фантазия будет ограничиваться лишь внешними стенами строения.
Именно при возведении частного дома согласно монолитной технологии возможно выделение достаточной площади под организацию уютного и в то же время достаточно широкого кухонного пространства, создание просторных гостиных, гардеробных, оформление интерьера в виде студии.
Достоинства реализации проектов по монолитному строительству жилья прекрасно знают строительные компании, а также профессиональные риэлторы, так как из года в год количество желающих проживать в квартире или доме из монолитного железобетона только возрастает.
Строительство монолитных домов: технология и основные этапы
Процесс возведения жилища согласно технологии монолитного строительства предполагает следующие этапы проведения работ:
- закладка прочного фундамента;
- монтаж каркаса на основе арматуры;
- укладка бетона;
- монтаж опалубки;
- распалубка или удаление опалубки (в случае применения съемной технологии укладки).
На строительных площадках по возведению монолитных домов опалубки заполняются бетонной смесью при помощи высокомощных бетононасосов.
Если говорить о конструкционной схеме таких сооружений, то основной упор здесь делается на прочные диафрагмы и ядра жесткости, которые обычно формируются в области лифтовых и лестничных зон. Именно эти элементы отвечают за устойчивость монолитного здания.
Строительство монолитных жилых домов предполагает разделение межквартирного и внутриквартирного пространства при помощи монтажа кирпичных стен. В последние годы в качестве альтернативы кирпичу с данной целью все чаще применяются перлитовые и гипсокартонные перегородки. Такой подход к разделению пространства сокращает срок введения жилья в эксплуатацию с момента закладки фундамента более чем в 5 раз. К тому же разделение жилплощади подобным образом не требует затраты особых сил на отделку поверхностей, ведь на гипсокартон можно сразу наносить обои или покраску.
Материалы
При возведении капитальных сооружений согласно монолитной технологии помимо использования таких обязательных составляющих, как бетон и металлическая арматура, большинство крупных компаний делают упор на применении несъемных опалубок из пенополистирола.
Такие элементы конструкции будущего монолитного здания производятся в форме полого внутри полистирольного блока, составляющими которого выступают две панели, связанные перемычками. Изготавливают панели и перемычки из того же материала либо из прочного пластика. Пенополистирол отличается по-настоящему незначительным весом, поэтому способствует легкому, быстрому монтажу.
Особенности строительства монолитных сооружений
Что собой представляет монолитное строительство многоэтажных домов? Технология достаточно проста, но в то же время имеет свои отличительные особенности. Основные работы, как и в случае применения любых других строительных технологий, начинаются с закладки фундамента. От того, насколько качественным и выверенным окажется фундамент монолитного сооружения, во многом будет зависеть прочность всего здания.
По окончании всех организационных мероприятий, после выполнения необходимых земляных работ производится монтаж специально подготовленных арматурных каркасов, а также закладных элементов монолитного фундамента.
Далее при наличии готового фундамента и каркасных элементов строения, включая обустройство дренажных коммуникаций и систем гидроизоляции, начинается процесс сооружения этажей с применением монолитного железобетона.
Строительство домов из монолитного пенобетона при возведении колонн, стен, лифтовых шахт и пилонов нуждается в применении щитовой опалубки, которая является частью монолитных перекрытий. При организации перекрытий, прежде всего, собирается опалубка, куда в последующем монтируется каркас из арматуры.
Одним из важнейших этапов при возведении капитального монолитного сооружения является разработка точного проекта по выбору положения опалубки. Решается данный вопрос благодаря применению опыта квалифицированных специалистов и привлечению персонала геодезических служб.
Процесс бетонирования монолитных конструкций
Бетонирование конструкций зданий, возведенных с применением монолитной технологии строительства, производится путем плотного равномерного распределения заранее подготовленной бетонной смеси в опалубке.
Для уплотнения бетона, залитого в опалубки при помощи высокомощных насосов, способных к его подаче на значительную высоту, используются специальные вибрационные механизмы.
Строительство монолитного каркаса дома в зимнее время года имеет свои исключительные особенности. Чтобы уложенный бетон приобретал прочность и твердел в срок согласно разработанному проекту, «зимняя» бетонная смесь формируется с применением противоморозных добавок. При этом арматурные каркасы будущего монолитного строения оборудуются специальными греющими кабелями. Реализация подобных мероприятий при выполнении работ в сильные морозы значительно упрощает строительство монолитного кирпичного дома.
Уровень надежности
Строительство каркасно-монолитного дома заключается, прежде всего, в передаче несущих нагрузок по колоннам из железобетона, а также армированным перекрытиям на устойчивый к существенным нагрузкам монолитный бетон. Применение данного принципа на практике способствует строительству действительно устойчивого и чрезвычайно надежного каркаса многоэтажного строения.
Что касается перегородок, то в монолитных зданиях они несут чисто формальный характер и не закрепляют за собой никаких нагрузок. Приобретая жилье в монолитном доме, можно запросто отказаться от всяческих перегородок, оформив собственную квартиру в виде просторной студии с максимально открытым пространством.
От чего зависит качество сооружения монолитного дома?
Качество выполнения работ по возведению монолитных строений зависит в первую очередь от наличия ровных отшлифованных конструкций, а также от жесткого контроля над ходом выполнения всех без исключения мероприятий. Результаты подобного контроля обязательно должны заноситься в специальный журнал. В частности, строительство монолитно-кирпичного дома нуждается в тщательной проверке качества вязки каркасов из арматуры, определении точности положения опалубки, контроле надежности бетона, начиная с момента его приема и заканчивая приобретением прочности залитой в опалубку бетонной массы.
Цена вопроса
В настоящее время строительство монолитных домов, технология возведения которых была описана выше, позволяет значительно снизить стоимость готового к заселению жилья.
Происходит это за счет высокой скорости строительства, что обуславливается возможностью применения рабочих процессов с высокой технологичностью. Если сравнивать цены на жилплощадь в монолитных домах с аналогичной стоимостью в строениях сборного типа, то здесь данный показатель оказывается ниже на 10-15%.
Преимущества монолитного строительства
Почему сегодня предпочтительно монолитное строительство многоэтажных домов? Технология сооружения таких строений отличается следующими достоинствами:
- длительный срок службы зданий;
- неограниченные возможности планировки и внутреннего оформления помещений;
- высочайшая скорость выполнения строительных работ;
- наличие улучшенных звуко- и теплоизоляционных характеристик за счет отсутствия стыков, швов и пустот поверхностей;
- сниженная материалоемкость.
Недостатки монолитного строительства
Несмотря на внушительный ряд очевидных достоинств, имеет ряд минусов монолитное строительство многоэтажных домов.
Технология не обходится без недостатков, но они касаются в первую очередь хода строительства и не относятся к качеству готовых сооружений. К основным минусам монолитного строительства можно причислить:
- вероятность возникновения серьезных задержек по срочному выполнению плана при ухудшении погодных условий, которые затрудняют заполнение опалубки бетоном;
- необходимость выполнения всех строительных мероприятий на открытом пространстве, что создает определенные затруднения и неудобства для специалистов строительных бригад.
Заключение
В статье мы подробно рассмотрели монолитное строительство многоэтажных домов. Технология их возведения дает возможность вводить высотные жилые строения в эксплуатацию в максимально сжатые сроки. Это, в свою очередь, является очевидным плюсом не только для строительных компаний, которые нуждаются в точном выполнении плана, но и для будущих владельцев жилья, которые приобретают жилплощадь задолго до начала работ по возведению многоквартирного дома.
Применяя в качестве основы надежную опалубку и прочную металлическую арматуру, намного сложнее допустить критическую конструкционную ошибку или брак в структуре сооружения. Конструкция монолитных многоэтажных домов, возведенных согласно последним стандартам, такова, что они обладают высочайшей сейсмической устойчивостью. Стены, покрытие пола и потолок получаются максимально ровными, поверхности лишены всевозможных швов и пустот.
Только при строительстве монолитных сооружений жилого предназначения присутствуют широчайшие возможности для реализации самых разнообразных объемных и пространственных решений, что само по себе повышает эксплуатационные характеристики здания.
Что касается уровня экологичности монолитных строений, которые по своей сути представляют всего лишь бетонные коробки оригинальной проектировки, строительными компаниями предусматривается возможность создания кирпичной облицовки и перегородок. Именно кирпич наряду с гипсокартоном и прочими распространенными перегородками обладает наивысшим уровнем экологической безопасности.
fb.ru
6.2. Внутренние монолитные стены
В домах с монолитными и сборно-монолитными наружными стенами внутренние несущие стены выполняют монолитными однослойными толщиной не менее 160 мм из тяжёлого бетона и толщиной не менее 180 мм из лёгкого конструктивного бетона на пористых заполнителях (керамзите, аглопорите или др.). В домах высотой до 16-ти этажей внутренние монолитные стены, как правило, не имеют расчётного вертикального армирования, но отдельные участки стен имеют расчётное или конструктивное армирование.
Как и в наружных стенах расчётное армирование в виде плоских или пространственных каркасов имеют надпроёмные участки внутренних стен, а конструктивное армирование в виде вертикальных пространственных каркасов устраивают в местах взаимных пересечений внутренних стен и их примыканий к наружным стенам, и в виде плоских каркасов – у граней проёмов (рис. 6.2). Конструктивное армирование зон примыкания одной стены к другой устраивают для ограничения трещинообразования и ширины раскрытия трещин в этих зонах.
В домах высотой более 16-ти этажей и при строительстве на просадочных грунтах, в сейсмоопасных районах и на подрабатываемых территориях внутренние монолитные стены имеют конструктивное или расчётное вертикальное армирование, вид которого зависит от величины воспринимаемых нагрузок и технологических особенностей устройства монолитных стен.
Рис. 6.2. Внутренняя монолитная стена и схема конструктивного армирования монолитных внутренних стен для обычных условий строительства: а – глухая стена; б – стена с проёмом; 1 – пространственный каркас в пересечении стен; 2 – плоские каркасы у граней проёмов; 3 – пространственный каркас надпроёмной перемычки
6.3. Перекрытия, лестницы, перегородки, покрытия и другие элементы
в домах с монолитными и сборно-монолитными стенами
В домах с монолитными и сборно-монолитными несущими наружными и внутренними стенами перекрытия выполняют, как правило, сборными из многопустотных или ребристых плит-настилов. Это позволяет при поэтажном бетонировании стен после набора бетоном стен этажа требуемой прочности беспрепятственно убирать вверх и наружу этажа все элементы внутренней технологической оснастки, что было бы трудно выполнимым при устройстве монолитных перекрытий.
Плиты-настилы перекрытий опирают на продольные наружные и внутренние несущие стены (вариант конструктивной схемы с продольными несущими стенами) или на поперечные внутренние и наружные несущие стены (вариант конструктивной схемы с поперечными несущими стенами). Возможна также комбинация этих конструктивных схем, т. е. часть дома может иметь продольные несущие стены, а вторая часть – поперечные несущие стены. Длина опорных площадок плит-настилов перекрытий на монолитные бетонные стены не менее 50 мм.
Возможен вариант конструктивного решения здания с несущими монолитными внутренними поперечными и продольными стенами, с монолитным безбалочным перекрытием и с ненесущими наружными продольными стенами, которые устанавливают поэтажно на перекрытия после удаления технологической оснастки, применявшейся для бетонирования внутренних стен и перекрытий этажных ячеек дома и прикрепляют к перекрытиям и поперечным стенам.
Лестницы в домах с монолитными и сборно-монолитными стенами могут быть тоже монолитными, опирающимися на монолитные стены лестничных клеток. Правда, такие лестницы не технологичны и трудоёмки. Поэтому чаще применяют сборные крупноэлементные или крупнопанельные лестницы, этажные и междуэтажные площадки которых опирают непосредственно на стены лестничных клеток или на стальные опорные столики, привариваемые к закладным деталям стен лестничных клеток.
Перегородки в таких домах могут устраиваться крупнопанельными или из мелкоразмерных элементов, но в домах с монолитными перекрытиями перегородки могут быть только мелкоэлементными.
Покрытия в зданиях с монолитными стенами устраивают чердачными или совмещёнными, при этом чердачные покрытия могут быть с холодным, тёплым или комбинированным чердаком. Несущими элементами покрытий могут служить многопустотные плиты-настилы или специальные ребристые плиты с рёбрами вниз. Плиты покрытий опирают на наружные и внутренние монолитные стены или специальные опорные элементы, устраиваемые в чердачных покрытиях выше чердачного перекрытия.
При устройстве лоджий или эркеров в наружных монолитных стенах устраивают соответственно западающие или выступающие участки, на которые поэтажно опирают плиты перекрытий лоджий или эркеров.
Дома с монолитными и сборно-монолитными стенами имеют высокую прочность и пространственную жёсткость из-за высокой прочности монолитных стен и прочного соединения в местах пересечений внутренних стен и их примыканий к наружным стенам, что обеспечивает их совместную работу при восприятии горизонтальных нагрузок. Кроме того, пространственную жёсткость этих домов повышают поэтажные перекрытия из плит-настилов, являющиеся горизонтальными диафрагмами жёсткости.
При отработанной технологии производства работ и использовании при бетонировании многократно применяемой универсальной технологической оснастки домостроение с монолитными и сборно-монолитными стенами может быть более экономичным (особенно по расходу металла) по сравнению с крупнопанельным, крупноблочным и мелкоэлементным домостроением.
Общественные здания
studfiles.net
Монолитный дом: плюсы и минусы
Все чаще на рынке новостроек можно встретить предложения вложиться в монолитный дом. В чем его преимущества, а главное, какие могут быть у него недостатки, разбирается «РБК-Недвижимость»
Фото: Shutterstock
Что такое монолитный дом
Монолитный дом — это конструкция, возведенная способом, при котором весь каркас здания, внешние стены и основные перекрытия отливаются из бетона, образуя единую конструкцию без швов и соединений. Так строятся не только многоквартирные дома, но и частные коттеджи и другие объекты. Считается, что здания, построенные таким способом, наиболее долговечны и могут стоять 100–150 лет. Монолитная конструкция не пропускает влагу и ветер, устойчива к землетрясениям.
Фото: Vasiliy Skuratov/Pexels
Основные стены выполнены полностью из бетона, а вот внутренние перекрытия и основные элементы могут быть из разных материалов. Здесь выделяют два основных типа:
- монолитно-каркасные здания. При их создании в основе каркаса на фундамент устанавливают забетонированные колонны, которые формируют костяк всего строения. Между этими столбами уже выстраиваются стены, залитые также бетоном. Внутренние перекрытия могут быть сделаны из вспененного бетона или стеновых панелей;
- монолитно-кирпичные здания. Для возведения стен комнат и других помещений внутри здания используется кирпичная кладка. Часто используют пустотелый кирпич. Он же может быть применен для отделки дома снаружи;
- иногда можно встретить и дом с монолитной структурой, когда абсолютно все стены и перегородки выполнены из литого бетона.
Технологии строительства монолитных домов
Возведение монолитного дома отличается тем, что практически все работы проводятся на месте. В отличие от панельных или других типов домов, для этого типа все материалы привозят на точку строительства. Сначала заливают фундамент, который чаще всего представляет собой метровую бетонную плиту, при необходимости усиленную забивными сваями. Фундамент укрепляют арматурой, которая становится поясом каркаса.
Затем начинается возведение литых бетонных стен. Прямо на месте собирают конструкции, которые остановятся формой для заливки бетона. Опалубки, так называются эти системы, могут быть сделаны из разных материалов — дерева, стали или алюминия. Часто используется современный материал полистирол.
Опалубка может быть съемной, когда она отсоединяется от уже засохшей и готовой стены и перемещается на уровень выше. Это наиболее экономичный вариант. Несъемная же конструкция остается в стене, служа дополнительной крепости стен и тепло- и звукоизоляции. Так поступают чаще всего при строительстве частных малоэтажных домов.
Фото: Quang Nguyen/Pexels
За счет того, что опалубки представляют собой сборные элементы, в архитектуре монолитного здания нет ограничений. Оно может быть круглым или полукруглым, иметь форму многогранника. Это позволяет воплощать любой индивидуальный дизайн здания, что особенно ценится при строительстве частных коттеджей.
Бывают опалубки, которые изготавливаются промышленным способом — тоннельные, их привозят на объект уже готовыми и изменить такие конструкции невозможно. Но создаются они по индивидуальному проекту, поэтому никаких ограничений по форме здания не возникает.
Плюсы и минусы монолитных домов
Для многих монолитный дом — синоним надежности и качества. Новостройки все чаще возводят именно таким способом. Достоинств у него действительно много:
- высокая скорость возведения. Многоэтажный дом можно построить за год-два. Правда, панельные дома можно построить еще быстрее;
- прочность достигается отсутствием швов и возможных щелей. Износостойкость таких зданий может превышать 100 лет. Монолит также отличается высокой сейсмоустойчивостью;
- небольшая усадка. За счет цельности конструкции дом равномерно усаживается, трещины в стенах при этом минимальны. Если вы строите частный дом таким способом, заселяться в него можно почти сразу, не боясь начинать отделочные работы;
- звуко- и теплоизоляция внешних стен;
- индивидуальный дизайн — большой плюс для застройщика, при монолитном строительстве нет ограничений в архитектуре. Можно сделать первые пять этажей типовыми, а верхние три — каждый с индивидуальным дизайном, добавить подземный паркинг;
- широкая возможность перепланировки. Несущие стены в монолите — внешние. Все внутренние стены, как правило, можно двигать и убирать. Более того, многие застройщики сдают монолитные дома без внутренних стен в квартирах, чтобы собственники могли самостоятельно спланировать проект;
- ровные стены, которые достигаются опалубками, считаются преимуществом, когда квартира сдается без отделки. Необходимо меньше материалов и работ для подготовки к чистовой отделке.
Но есть и недостатки:
- сложность строительства при плохих погодных условиях. Особенно от этого страдают недострои, которые мокнут под дождями и снегом. Длительное негативное воздействие может привести к отсыреванию бетона, плесени на стенах и другим неприятным последствиям. Правда, сейчас используется технология подогрева бетона, которая позволяет строить монолиты даже зимой;
- требуется жесткий контроль строительства на этапе возведения. Поскольку весь дом возводится на месте, строители должны быть профессионалами высокого уровня и понимать, что делают. При строительстве, к примеру, панельных домов строители лишь собирают на месте, как конструктор, детали, сделанные на заводе;
- низкая шумоизоляция, особенно в отношении воздействия на стены. Если кто-то штробит, дрелит или сверлит, за счет цельности стен слышимость будет высокая и на большие расстояния;
- теплоизоляция ниже, чем в кирпичных домах. Если застройщик не справился с задачей утепления наружных стен, есть риск, что в квартирах всегда будет прохладно, особенно зимой;
- относительно высокая стоимость. Из-за преимуществ перед другими типами зданий жилье в монолитных домах стоит дорого. Стоимость квартиры будет выше, чем в панельных и даже некоторых кирпичных домах.
Шумоизоляция в монолитном доме
Вопрос шумоизоляции в многоквартирных домах для покупателей всегда стоит остро. Многие ошибочно считают, что монолитные стены обеспечивают хорошую защиту от соседского шума. На самом же деле наоборот — именно за счет монолитности конструкции любой шум по стене передается вверх, вниз и через стену. Особенно это касается работ по проделыванию отверстий в стене: штробления, сверления и ударов молотком. Все эти звуки сильно резонируют.
Так называемый воздушный шум тоже проблема в таких строениях. Волны звука из динамиков, будь то телевизор, радио или музыкальный инструмент, ударяются о стену и точно так же передаются в соседние квартиры.
Фото: Shutterstock
Чтобы обеспечить полную звукоизоляцию, недостаточно просто толстых стен, требуется и звукоизоляция полов. В современных домах она выполняется редко, особенно в квартирах, которые сдаются без отделки. Даже при стенах толщиной 200–250 мм слышимость в квартирах остается высокой.
Проблему шумоизоляции в монолитных домах хорошо решает дополнительное усиление стен и пола с помощью конструкций со звукоизоляционными материалами. Важно не только сделать изоляцию в своей квартире, усилить пол и стены, но и договориться с соседом сверху, чтобы и он установил защиту от шума на пол. Тогда будет защита от шума в квартире будет максимальной.
Комментарии экспертов
Мария Литинецкая, управляющий партнер компании «Метриум» (участник партнерской сети CBRE):
— Характерная черта жилья, расположенного в монолитном доме, — неровные стены, полы и потолки. Покупая квартиру в монолитной новостройке, имеет смысл присмотреться к вариантам с отделкой. Самостоятельное приведение в порядок поверхностей потребует много строительных материалов, сил и времени.
Стоит обратить внимание и на теплоизоляцию внешних стен. Если утеплитель уложен неправильно, зимой через бреши будет просачиваться холодный воздух. Такую неисправность легко обнаружить с помощью тепловизора, который должен быть у консультантов, помогающих собственникам при приемке квартиры. Покупателям не обойтись без такого специалиста.
Утверждение, что монолитные жилые дома лучше защищены от протечек, — распространенное заблуждение. Объекты, построенные по этой технологии, лишены швов, что, казалось бы, гарантирует герметичность этажей. Но нельзя забывать, что этажи связаны между собой коммуникативными шахтами, где проходят системы водопровода и канализации. Надежную защиту от протечек обеспечивает гидроизоляция «мокрых» зон, которую можно сделать в монолитном, панельном, кирпичном — любом здании.
Требования к планировке квартиры одинаковы для всех типов домов. Например, «мокрые» зоны запрещено переносить как в панельных, так и в монолитных объектах. Монолитные дома отличаются минимальным количеством несущих конструкций. Благодаря этому застройщики предоставляют покупателям максимальную свободу планировки.
Павел Турков, директор департамента девелопмента ГК «А101»:
— В монолитном доме больше возможностей по перепланировке. Квартиры без отделки передаются собственнику без межкомнатных стен — сами комнаты просто размечены рядами пеноблоков. Но собственный проект планировки все равно надо согласовывать, в том числе в БТИ. Согласования с УК, соседями и надзорными органами требует и объединение жилого помещения с летним (например, с неотапливаемой лоджией или балконом), поскольку это нарушает теплый контур здания.
Что касается переноса «мокрых» зон в любом многоквартирном доме вне зависимости от технологии строительства, то он требует сделать гидроизоляцию пола в несколько слоев. Проект нужно заказывать в специализированной организации, после выполнения работ провести проверку, при которой воду на полу в санузле оставляют на два дня, а затем подписать акт освидетельствования скрытых работ, оформить который может только строительная организация с допуском СРО. В противном случае, если произойдет авария или протечка, вам придется заплатить штраф и в полном объеме возместить ущерб соседям.
Если работы в монолитном доме были по какой-то причине приостановлены, как случилось весной 2020 года во время действия мер по нераспространению коронавируса, важно обеспечить объекту правильную консервацию. Самое важное — защитить выпуски арматуры от ржавления, обеспечить водоотведение из пазух котлована и предотвращение оползней. Если это сделано, возобновить работы можно в любое время без каких-либо последствий для конструктива.
Что касается кирпича, то у него лучшие показатели гибкости, которые сильно расширяют варианты конструкций из него, а также шумо- и теплоизоляции. Но это довольно дорогой материал, заметно снижающий скорость и повышающий себестоимость строительства. Поэтому сейчас монолитно-кирпичными строят дома премиум- и элитного сегмента.
10 советов, как отличить качественную новостройку от некачественной
Как найти действительно качественное жилье, рассказывают эксперты компании «Самолет» Андрей Абдулов, руководитель отдела продаж, Александр Яшин, руководитель проекта, и Сергей Пыров, руководитель строительства.
Встречайте не по одежке
Все новостройки на сайтах, в каталогах и на макетах выглядят нарядными и красивыми. Радуют глаз яркие фасады, отражаются в новых окнах облака.
1. Внешний вид здания важен, но первое, на что следует обратить внимание – материал, из которого строится здание.
Современному новоселу выбирать приходится всего из двух вариантов: панель или монолит. Кирпичные здания в Москве сегодня можно встретить разве что в премиальном сегменте: строить их дорого и долго.
Строительство «Квартал Спутник» компании «Самолет»
2. Долговечность. Из всех материалов, используемых сегодня в строительстве, монолит является самым долговечным. Нормативный срок его службы – 150 лет. Для сравнения: у панельных домов – 70 лет.
3. Герметизация швов. Как строится панельный дом? Панели соединяются друг с другом с помощью сварки металлических элементов. А эти элементы подвержены коррозии. Так как панельные дома собираются из готовых деталей, как конструктор «Лего», необходима тщательная герметизация швов. Если работы проведены недостаточно качественно, на стыке швов появляются щели, и в дом проникает влага, появляется плесень в углах. Разгерметизация может происходить и во время эксплуатации дома.
Долговечность и прочность монолитных домов объясняется технологией производства. В монолите нет сварных соединений, все соединяет бетон. Устанавливается арматурный каркас, монтируется опалубка, затем заливается бетонная смесь. В результате получается монолитный железобетонный каркас. Бетон надёжен, а металл, расположенный внутри него, не подвержен разрушению.
Устройство каркаса здания, гидроизоляции в 8 корпусе «Квартала Спутник» компании «Самолет»
4. Себестоимость строительства. Возведение монолитного здания сложнее, и требует больших затрат. Строительство панельного дома обходится дешевле. Однако цена продажи совсем необязательно будет низкой, к стоимости может добавиться, например, дорогая отделка или фонтан во дворе. И тогда получится, что стоят два дома – панельный и монолитный – примерно одинаково, а запас прочности у них разный.
5. Контроль качества. Есть еще один важный момент: проверка монолитного дома на качество гораздо серьезнее, чем панельного. Это связано с тем, что панели с завода приходят готовыми, и при строительстве проверяется только качество монтажных работ.
При строительстве монолитного дома контроль начинается с момента завоза арматуры на площадку: что за материал, какого размера арматура, как она «завязана», какой бетон, когда залили, как идет набор прочности, за какое время набрана проектная прочность и т.д. Строгий контроль, сопровождающий каждый этап строительства, гарантирует качество проекта.
6. Шумо- и теплоизоляция. Еще один плюс монолита – лучшая шумо- и теплоизоляция по сравнению с панельным домом. В монолитно-кирпичном доме толщина внешних стен – 600 мм (блок плюс кирпич). У панельной новостройки – 350-400 мм. Благодаря большей толщине стен в монолитном доме сохраняется хорошая теплоизоляция: зимой тепло, летом – прохладно.
Хорошая звукоизоляция достигается в основном за счет малого количества стыков. Шум распространяется не сквозь стены, а через перекрытия, стыки, швы. Поэтому панельные дома не могут похвастать качественной звукоизоляцией. В монолитном доме даже технические ниши делаются звуконепроницаемыми. Единственный «проводник» звука в монолитном – несущие конструкции: если стучать по ним, будет слышно на всех этажах.
7. Тип дома. Если вы выбираете панельную новостройку, нужно узнать о серии дома. Сейчас в Москве преимущественно строятся серии И-155, П-3М, П44Т. И потом найти информацию о них: какая планировка, высота потолка и прочее. Можно съездить и посмотреть, как они выглядят, узнать у жильцов, как там с шумо- и звукоизоляцией и т.д.
8. Планировки. Важным преимуществом монолитного дома является возможность создавать различные планировки. Можно даже на разных этажах делать квартиры с разным количеством комнат (исключая кухни и мокрые зоны, разумеется). Более гибкими могут быть решения, связанные с технической и электрической разводками. Если в панельном доме максимум два варианта электроразводки, в монолитном она своя у каждой квартиры. Розетки можно ставить хоть через каждый метр.
Пример свободной планировки в «Квартале Спутник» компании «Самолет»
Обращать ли внимание на бренды?
9. Качество окон, дверей, инженерии. Многие покупатели считают, что качество гарантирует только использование строительных материалов и технического оборудования знаменитых брендов. Это не всегда так. Например, сейчас все устанавливают двухкамерные пластиковые стеклопакеты. Часто застройщики говорят: «У нас в жилом комплексе профиль Rehau». И это правда, профиль в доме действительно известного бренда, а вот оконные блоки при этом могут быть другого производителя, который не отличается качеством. Поэтому важно правильно сформулировать вопрос. Нужно спрашивать не какого бренда профиль устанавливаются в доме, а какой марки оконные блоки. Рейтинг лучших производителей можно найти в интернете. Так, например, в числе лидеров за 2019г. назывались компании Rehau, Proplex, Montblanc, Brusbox, KBE.
Не всегда надо ориентироваться только на бренды. Например, как утверждают эксперты, плохих лифтов не бывает. Качество каждого проходит строжайшую проверку на заводе. Бывают лифты со сбившейся настройкой, тогда необходимо просто вызвать мастера, чтобы он устранил сбой.
Кстати, у лифтов российского производства есть очень важное на сегодняшний день преимущество: люди, которые занимаются ремонтом и настройкой находятся рядом. А вот если лифт, например, греческого производства, чтобы дождаться мастера из представительства компании, может потребоваться не одна неделя.
Чему верить, что проверить?10. Как принимать готовую квартиру.
- Принимая квартиру без отделки в монолитном доме, нужно посмотреть на то, чтобы поверхность стен была ровной, без вкраплений оголенной арматуры.
- Отклонение от вертикали поверхности не должно превышать 15-20 мм на высоту стены.
- Пол также должен быть ровным, это проверяется с помощью лазерного или обычного уровня или с помощью обычной рейки.
- Следует обратить внимание на перекрытия, на возможное наличие трещин в углах и возле оконных проемов.
- Очень важно, чтобы правильно были установлены окна: ровно, плотно, без щелей. Особенно это важно, когда сдача дома происходит зимой. Обязательно проверьте, какая температура воздуха в комнате, она не должна быть ниже 21 градуса.
- В квартире с отделкой нужно убедиться, что обои наклеены аккуратно, ламинат и плитка выложены ровно, выяснить, нет ли отклонений от вертикали поверхности стен.
- Проверить, хорошо ли закрываются и открываются все двери
- Есть ли в кранах горячая и холодная вода, как быстро она уходит, не подкапывает ли кран.
- Для того, чтобы понять, работает ли вытяжка, нужно закрыть входную дверь, открыть одно окно и приложить к вытяжке лист бумаги. Если работает, листок притянется к вытяжке. Если бумага упадет, есть проблемы.
- Не забудьте проверить каждую из розеток. Для этого можно просто взять с собой зарядку для мобильника.
- Состояние мест общего пользования, как и системы противопожарной безопасности, дымоудаления, электрохозяйства, принимаются государственной комиссией. Если дом принят, то все в порядке.
Конечно, обычному покупателю сложно обнаружить возможные недочеты во время приема квартиры. Поэтому люди все чаще обращаются к помощи независимых экспертов. Но важно найти именно эксперта. Порой покупатели приводят с собой «мастеров», именно в кавычках, и реальной помощи ожидать не приходится.
Грамотно составленное описание недоделок поможет покупателю избежать проблем в дальнейшем, ведь все дефекты застройщик обязан устранить за собственный счет.
И новоселу останется только заниматься приятными хлопотами, связанными с обустройством в новой квартире.
Панель, кирпич и три вида монолита. Из чего делают квартиры в Екатеринбурге
Столица Урала – один из самых монолитных городов в России. У нас доля многоквартирного строительства с применением литого бетона на четверть выше, чем в целом по стране. Даже Группа «ПИК», известная своими панельными технологиями, намерена строить в Екатеринбурге дома из монолита… Портал METRTV.ru разбирался в особенностях технологий, наиболее активно используемых застройщиками Среднего Урала.
По данным Института развития строительной отрасли (ИРСО), сегодня для возведения многоквартирных домов российские застройщики применяют 10 технологий. Они возводят дома, в том числе из дерева, листового металла (ЛСТК) и по каркасно-щитовой технологии. Тем не менее, львиную долю рынка уже долгое время занимает монолитное строительство. По данным за декабрь 2017 года по такой технологии в стране возводится 67% жилья (рассматривается сегмент только многоквартирных домов). Стоит отметить, что в отдельно взятой Свердловской области доля монолита ещё выше (см. табл. 1).
Целиком из монолитного бетона жилые дома сегодня не возводятся. Из него отливаются несущие (как правило, внутренние) стены и/или колонны и межэтажные перекрытия. Наружные стены и внутренние перегородки выкладываются из кирпича или блоков. Соответственно, технологию монолитного строительства можно разделить на два типа по типу заполнения стен: монолит+блоки и монолит+кирпич. Монолитные дома с кирпичным заполнением застройщики часто позиционируют как «кирпичные». По данным ИРСО, в Свердловской области сегодня 63,2% многоквартирного жилья возводится из монолита с заполнением из газо- или пеноблоков, и 20,6% из монолита с заполнением из кирпича или керамических поризованнных блоков. Суммарная же доля монолитного строительства составляет 83,8%.
Таблица 1. Характеристики строительных технологий, используемых застройщиками Свердловской области
| Показатели | Монолит | Панель | Кирпич |
|---|---|---|---|
| Доля рынка (%) | 83,8 | 8,6 | 7,6 |
| Период строительства дома в 12-16 этажей (мес.) | 12-16 | 9-12 | 18-24 |
| Себестоимость строительства (тыс. руб /кв. м) | 42-48 | 36-42 | Н/Д |
| Классы жилья, в которых применяется | Эконом, комфорт, бизнес, элит | Эконом, комфорт | Комфорт, бизнес, элит |
Монолит с блочным заполнением и утеплителем
Основные преимущества монолитных домов – минимум ограничений при проектировании, достаточно длительный срок эксплуатации (100 лет и более), равномерная усадка и возможность создания квартир свободной планировки – то есть с колоннами вместо внутренних перегородок. Основной минус монолита – акустика. Силовой каркас дома представляет собой единое целое из однородного материала – гашение звуковых колебаний в такой среде происходит крайне медленно. Даже в домах высокого класса эта проблема толком не решена.
Олег Колесников
начальник отдела маркетинга АО «ЮИТ Уралстрой»
Монолитное строительство в экономичном сегменте технологически ничем не отличается от дорогого монолита. Просто в проектах элит-класса используется другая квартирография, в том числе количество квартир на этаже, и более дорогое инженерное оборудование и отделочные материалы.
Некоторые приёмы, используемые застройщиком, позволяют лишь незначительно улучшить акустические характеристики монолитных домов. К таким приёмам, например, относится сухая стяжка полов и подложка из пенополистирола под напольное покрытие. Такой слоёный пирог за счёт наличия границ твёрдое/мягкое хоть и в очень малой степени, но способен приглушить звуки. Для полноценной же звукоизоляции квартиры собственнику придётся провести целый ряд мероприятий, включая создание «плавающего пола» и обшивку стен и потолка изолирующими матами.
Подавляющее большинство монолитных домов в Екатеринбурге строится с использованием газо- и пеноблоков для заполнения стен. Поверх блоков на наружных стенах крепятся плиты утеплителя (как правило, базальтового), а поверх него – фасадная отделка. Наиболее популярный вариант отделки – мокрый фасад или попросту – штукатурка. Она превалирует в новостройках компаний «ЮИТ Уралстрой», «Маяк» и ряда других. Второй по популярности вариант отделки фасадов – облицовка лицевым кирпичом.
Следует отметить, что монолитную технологию в Екатеринбурге планирует использовать группа компаний «ПИК». Это крупнейший федеральный застройщик, известный как апологет панельного строительства. В пресс-службе ГК «ПИК» порталу METRTV.ru сообщили, что в столице Урала группа планирует строительство монолитных железобетонных домов высотой 16-25 этажей. Как ранее сообщалось, данный застройщик будет осваивать бывшую территорию завода «Уралпластик» в микрорайоне Завокзальный. На территории 26,86 га планируется возвести от 250 до 350 тыс. кв. м жилья комфорт-класса и ряд социальных объектов.
Монолит плюс кирпич
Как правило, застройщики позиционируют монолитные дома с кирпичным заполнением стен просто как кирпичные, не акцентируя внимания на том, что силовая основа здания состоит из литого бетона. Причём кирпичными домами называют, в том числе такие, при строительстве которых использован не классический кирпич, а крупноформатные керамические поризованные блоки Porokam, Porotherm, Kerakam, BRAER и пр.
Оксана Косинова
главный архитектор проектной фирмы «Дизарх», член Союза архитекторов России
Даже если для заполнения стен используются теплоэффективные поризованные блоки, всё равно делается дополнительное утепление стен. При кладке таких блоков используется цементный раствор, и швы из бетона могут стать мостиками холода. Поэтому если речь идёт только о заполнении, то кирпичная стена может иметь небольшую толщину – от 250 мм. Для сравнения, если кирпич или керамический камень используются для возведения несущих стен, то толщина стены должна быть не менее 380 мм. Соответственно стоимость постройки ощутимо увеличится.
Потребительские характеристики домов, построенных с применением кирпича или керамических блоков в среднем выше, чем с применением газоблоков. Особенно, если кирпич активно использовался при возведении внутренних перегородок. В таких домах чуть лучше звукоизоляция, кроме того, керамический камень (кирпич или блоки) не выделяют вещества, способные повлиять на качество воздуха в квартирах.
Монолитные дома с заполнением стен керамическим камнем в Екатеринбурге возводят всего несколько застройщиков. Наиболее широко такую технологию использует компания «Брусника». В ней поясняют, что в строительстве они применяют поризованный керамический блок оснащённый системой соединения паз-гребень, что позволяет не использовать кладочный раствор для заполнения вертикального шва. За счет сокращения числа швов, снижается количество мостиков холода. По такой технологии «Брусника» возводит квартал «Новаторов», «Суходольский» квартал, микрорайон «Шишимская горка», кварталы в районе «Солнечный». Из уже построенных можно упомянуть «Каменный ручей». В 2018 году компания начнет строить по монолитно-кирпичной технологии микрорайон в границах улиц Шаумяна-Московская- Фурманова.
Монолитные дома с кирпичным заполнением возводит также Группа PREMIER. Речь идёт о 30-этажных домах в составе микрорайона «Екатерининский парк». На наружных стенах там будут использованы блоки Porokam толщиной 200 мм, плюс 200 мм утеплитель. В составе этих же жилых кварталов PREMIER строит и несколько 9-этажных домов. Они будут возведены полностью из кирпича, без бетонных монолитных конструкций (подробности – ниже).
Можно упомянуть ещё ряд новостроек с кирпичным заполнением стен – это ЖК «Современник» в Пионерском от компании «Стройтэк» и ЖК «Еланский дворик» в районе автовокзала. Кроме того компания «ЮИТ Уралстрой» сообщила о намерении использовать крупноформатный керамический камень в некоторых своих новых проектах.
Монолит и газоблок малой плотности
Данную технологию в Екатеринбурге использует только один застройщик – «Атомстройкомплекс». Заполнение стен в монолитном доме производится газоблоком плотностью 400 кг/куб.м., дополнительный слой утеплителя отсутствует.
Вячеслав Анищенко
начальник отдела качества и технического надзора АО «Корпорация «Атомстройкомплекс»
Ранее мы делали трёхслойные стены: газоблок-утеплитель-фасадная отделка, но когда наш завод «Теплит» освоил выпуск блока малой плотности, решено было перейти на двухслойную кладку – газоблок плюс фасад из силикатного кирпича. По теплотехническим расчетам стена из такого блока толщиной 40 см подходит для нашего региона. К тому же при сооружении такой стены меньше риск совершить ошибку и проще осуществлять контроль кладки. Есть и ещё одно преимущество – срок эксплуатации минераловатного утеплителя меньше, чем у самих стен, то есть дом ещё может долго стоять, но его тепловые характеристики уже ухудшились. При двухслойной кладке от этой проблемы мы избавлены.
В «Атомстройкомплексе» пояснили, что для заполнения стен используются блоки толщиной не 40, а только 20 см., зато они кладутся в два ряда. Каменщику проще работать с такими блоками, кроме того снижается риск возникновения сквозной щели между блоками. Для кладки используются, как правило, блоки без системы паз-гребень, вертикальные швы заполняются клеем (на котором делается кладка). Кроме монолита и газоблоков в новостройках «Атомстройкомплекса» ограниченно используется несъёмная опалубка из плит «филигран». Это пустотелые тонкостенные плиты, изготовленные в заводских условиях. После того, как такая плита установлена на месте, её внутреннее пространство заполняется бетоном. Из «филиграна» делаются в частности лифтовые шахты и стены цоколя – заводское изготовление предполагает высокое качество бетонной поверхности, это гарантированно защищает цоколь от протечек.
Панель
Дома из сборного железобетона сегодня в столице Урала возводит только «Группа ЛСР». У этого застройщика есть собственное производство железобетонных изделий, он активно использует этот материал и не планирует от него отказываться. До недавнего времени «Группа ЛСР» на Урале возводила дома из многослойных панелей, когда каждая панель имеет в своём составе несущий слой, утеплитель и фасадную отделку (технология, отработанная ещё в советские времена). Однако уже несколько лет компания строит дома только по технологии бесшовного фасада – из однослойных железобетонных панелей формируется несущий остов дома, включающий несущие наружные стены. Поверх стен крепятся плиты базальтового утеплителя, наружная отделка – штукатурная. Технология исключает возникновение продуваемых швов в наружных стенах.
Виктор Елькин
управляющий по строительству «Группы ЛСР» на Урале
Наша технология строительства, в отличие от монолитной, позволяет нам вести монтаж домов в любых погодных условиях, поскольку при устройстве наружных стеновых панелей применяется технология герметизации межпанельных швов, исключающая использование бетона. Одним словом, на нашей стройплощадке отсутствуют «мокрые» процессы. Все железобетонные конструкции производятся на собственном заводе ЖБИ и поставляются на стройку полностью готовыми к монтажу. Качество поверхности железобетонных изделий не требует никакой доработки. За счет этого на строительство дома тратится существенно меньше времени, особенно в зимний период.
В Группе «ЛСР» пояснили, что максимальная скорость монтажа жилой «свечки» одним краном при благоприятных условиях и работе 24 часа в сутки – 7 этажей в месяц. Опыт скоростного строительства у компании уже есть, благодаря ему значительно раньше запланированного срока застройщик сдаёт в первом квартале 2018 года «Дом на Расточной» и пятый дом «Рассветного», на полгода раньше срока, в декабре 2017 года «Группа ЛСР» сдала паркинг в «Рассветном».
Архитекторы отмечают, что в качестве ещё одного плюса панельного дома можно назвать чуть лучшие акустические характеристики, нежели у монолитной новостройки. На лучшую звукоизоляцию, в частности работает то, что на межэтажных перекрытиях в панельных домах используются готовые железобетонные плиты с пустотами. В таких перекрытиях звук гасится лучше, чем в сплошных монолитных. Кроме того, некоторое гашение звуковых колебаний происходит на стыках плит, из которых состоит остов дома.
Кирпич
Наилучшие акустические характеристики имеют постройки, выполненные по классической кирпичной технологии – без монолитного каркаса. Основа такого дома кирпичная кладка – это довольно массивная и не сплошная конструкция (в ней чередуются кирпич и швы). Благодаря этому в кладке довольно эффективно затухают звуковые волны. Не стоит забывать и о том, что межэтажные перекрытия в кирпичных многоэтажках делаются из железобетонных плит с пустотами. Как уже говорилось, такие перекрытия имеют неплохие акустические характеристики.
Среди российских застройщиков чистое кирпичное строительство – достаточно непопулярная технология. Строить из кирпича, дорого, долго, к тому же требуется большое количество высококлассных профессионалов – каменщиков. В Екатеринбурге многоквартирные дома по классической кирпичной технологии сегодня строит ГК PREMIER. Группа возводит несколько девятиэтажных домов в составе микрорайона «Екатерининский парк» из утолщённого кирпича. Толщина кладки 380 мм (т.е. в полтора кирпича).
Также несколько кирпичных новостроек сегодня реализуется в окрестностях Екатеринбурга. Компания «ЮИТ Уралстрой» по данной технологии строит ЖК «Балтым-Парк» в Верхней Пышме, в пос. Косулино достраивается ЖК «Молодёжный», в состав которого входит 4 пятиэтажных дома. В Берёзовском компания «Арсенал и К» (входит в ГК «БРОЗЭКС») завершила строительство жилого комплекса «6 микрорайон», в настоящее время застройщик возводит малоэтажные кирпичные дома в ЖК «Уют-Сити», также расположенном в Берёзовском.
Все перечисленные кирпичные дома строятся с применением минераловатного утеплителя. Если строить только из кирпича (обычного полнотелого), то толщина стены должна быть не менее 64 см. Такой дом получится слишком дорогим и тяжёлым.
Фасадная отделка в новостройках
Сегодня наиболее популярный вариант наружной отделки стен – штукатурка. Иногда такую отделку называют «мокрым фасадом» или «тёплым фасадом» – если штукатурка наносится на слой утеплителя. Штукатурку используют компании, строящие дома из монолита и из панели. Исключение составляет «Атомстройкомплекс». Большинство новостроек этого застройщика облицовано силикатным кирпичом. Кирпичную облицовку активно применяет и компания «Арсенал и К», но использует не силикатный кирпич, а керамический.
Застройщик «Брусника», наряду со штукатуркой активно использует систему «навесных» фасадов из клинкерного кирпича (производство Санкт-Петербург). Такая отделка присутствует на домах в квартале «Новаторов» на Уралмаше, в «Суходольском» на Широкой речке, в «Солнечном» и в микрорайоне «Шишимская горка». Группа PREMIER в своём проекте «Екатерининский парк» также делает ставку на вентелируемые фасады из клинкерного кирпича.
Не следует, кстати, путать навесной вентилируемый фасад из кирпича и фасад с кирпичной облицовкой. У вентилируемого фасада между утеплителем и наружной отделкой имеется зазор, в котором свободно циркулирует воздух. Это удорожает строительство, зато гарантирует, от того, что в толще стены начнёт скапливаться влага. Что положительно сказывается на долговечности конструкции. Если же используется особо устойчивый клинкерный кирпич, то фасад будет служить столетиями. В силу своей относительной дороговизны вентилируемые фасады в новостройках используются реже, чем штукатурка или обычная кирпичная облицовка.
При создании навесных фасадов застройщики применяют не только кирпич, но и другие материалы. Например, керамогранит. Им отделан, в частности, дом на Новгородцевой от Группы «ЛСР». Ожидается, что технологическую новинку в сфере отделки зданий в Екатеринбург привезёт Группа «ПИК». В её пресс-службе сообщили, что в новостройках группы будут применены фасадные панели KMEW, изготовленные в Японии. Это фиброцементные панели толщиной 10 мм с защитным покрытием. Они не усиливают шум от дождя и не подвержены коррозии.
comments powered by HyperCommentsДвухэтажный монолитный бетонный дом | BuilderClub
Здравствуйте уважаемые специалисты.
Спрашивал у знакомых строителей, искал по форумам и в итоге вышло описание ниже, теперь хожу и свиряю со всеми и дорабатываю нюансы.
- Имеется земля в городе. Земля по городу глинистая, именно в нашем районе 0,5 метра чернозем, 1,5 метра темный желтный песок (скатывается в комок, но в колбаску не скатать сделал вывод что содержание глины низкое), ниже 2,0 метров уже глинистые породы идут. Уровень грунтовых вод около 3,0 м, в 100 метрах пруд в 3 метрах от уровня земли примерно. Но интересно что вода в колодце уже на 2.0 метрах стоит, знакомый строитель обосновал это наличием ниже 2.0 метров глины. По райноу полно 2=х эт. домов и пеноблоки и кирпич (1.5 кирпича + облицовка кирпичом довольно массивный), поэтому решили анализ грунта не заказывать, просто вырали 2,5 метра яму под колодец и посмотрели.
- Грунт наклонный с перепадом в 0,5 метра в доль самой длинной стены дома (8*11 м).
- Уровень промерзания грунта 1,2 метра.
- Вес дома с фундаментом рассчитали с запасом 190 тонн.
- Сначала решили сделать подушку 0,8 м. в ширину и 0,4 м. в высоту с арматурой 14 мм. 8 прутов по 4 в нижнем и верхнем ряду и 10 мм. Поперечные прутья (не армированные) шаг 50 см. С выпусками арматуры для связки с фундаментом. Обоснование технологии нашел тут https://www.youtube.com/watch?v=hOAl8RflWHo
- 1,7 м. сам фундамент (без подошвы) – 1,2 метра в земле и 0,5 м. над землей. ширина 0,4 метра. Арматуру использовать 12 мм. по 2 прута в горизонтальной плоскости (ряд), всего таких рядов будет 4. Поперечные прутья (не армированные) 8 мм, шаг 50 см. Обоснование технологии нашел тут : http://dom.dacha-dom.ru/raschet-armatury.shtml
- Дом монолитный железо-бетон. Стены 15 см. арматура 10 мм. (продольные и поперечные – сетка), будет вязаться сетка 20 см. Сетка будет одна (распологаться будет в центре стены). Сама стена будет высотой 0,5+3,0+2,5 = 6,0 м.
- Бетон используется М300.
- Все перекрытия (1 эт, 2 эт, чердак) деревянные, для них в стене будут заранее сделаны закладки на глубину 10 см для установки лаг.
Есть ли несущие стены в монолитном доме. Как найти в квартире несущую стену и правильно сделать перепланировку. Несущие стены в панельном доме
Многие сталкиваются с желанием внести некоторое корректировки в существующий проект квартиры. И вот здесь появляется вопрос — какие же стены несущие, а какие — обычные перегородки.
Давайте сразу внесем ясность, что такое несущая стена? Это стена на которую опираются элементы конструкции, которые находятся на последующих этажах. И что примечательно, несущие стены могут заменяться балками и колоннами, так как исполняют одну и ту же функцию — поддержки целостности всей конструкции.
Если неправильно провести перепланировку и снести несущую стену, это чревато большими проблемами — начиная трещинами в конструкции и заканчивая обрушением перекрытий. Чтобы грамотно перестроить вашу квартиру, нужно знать заранее, какие стены можно сносить при перепланировке, а какие нельзя.
Правильную, грамотную и безопасную перепланировку могут провести только профессионалы — инженеры и строители. В независимости от масштабов реконструкции, — будь-то маленькая ниша в стене или снос целой стены.
Поэтому первое, что делается перед планировкой — приглашаются специалисты из БТИ, которые должны дать вам разрешение на перепланировку, в котором уже будут отмечены все стены, которые можно изменять или сносить. И лишь после этого можно обсуждать тонкости перепланировки со строителями и архитекторами.
Кроме того, если вы получите все разрешительные документы перед началом работ, есть шанс не запустить этот вопрос в «долгий ящик». Ведь квартиры с неузаконенной перепланировкой нельзя продать, а если вдруг возникнет такая необходимость, узаконить уже готовую переделку довольно сложно и проблематично. Но если же вам интересно знать о градации стен в квартире до официального вердикта, мы подскажем вам несколько простых способов, как сделать это самим.
Способы определения несущих стен
Итак, первый, самый простой и точный — найти конструктивный план дома, который хранится в управлении капитального строительства, который находится в городском Исполнительном Комитете, он же Исполком. Есть еще технический паспорт квартиры, который имеют все хозяева квартир, но в нем вы сможете разобраться только при условии, если вы умеете читать строительные чертежи.
Если вы не смогли раздобыть план, то несущую стену можно попробовать определить по её толщине и расположению.
Толщина стены
В кирпичном доме — все стены, толще 38 см — несущие. Толщина стен в таких домах определяется количеством выложенных в ряд кирпичей. Один кирпич — 12см., значит работает простая арифметика: 250 мм — это стена в два кирпича + шов между ними 10 мм. 380 мм — это стена в три кирпича + 2 шва по 10 мм. 510 мм — это стена в четыре кирпича + 3 шва по 10 мм. 640 мм — это стена в пять кирпичей + 4 шва по 10 мм. и так далее. Межкомнатные перегородки строятся из кирпича или бетонных блоков и в толщину составляют от 12 до 18см. Стены между квартирами немного толще — 25см.
В панельном — все стены, толще 14см — несущие. К сожалению, в таких типах домов очень сложно воплотить все свои идеи, так как большинство стен в таких домах — несущие. Перегородки в панельных домах значительно тоньше несущих стен — всего 8-10см. Еще есть нюанс — толщина несущих стен в панельных домах может быть и 12см, это зависит от серии дома. И как же быть? Считать такую стену утолщенной перегородкой, или несущей стеной? Окончательный ответ вам даст только инженер, в соответствующей организации, которая выдает заключение по техзаданию вашего проекта.
Толщина стены измеряется без учета штукатурки и обоев. Так что лучше проводить замеры уже после очищения всех стен от старой отделки.
В монолитных домах — стена, толще 20см — несущая. Самый верный способ для таких домов — взять план этажа у застройщика. Так как сейчас существует огромное разнообразие конструкторских решений, то в таких домах бывает очень сложно определить несущую стену просто по ее толщине. Например, в монолитно-каркасном доме, вообще может не быть несущих стен. А бывают случаи, когда простая перегородка толще 20см. Так что только архитектурный план сможет внести ясность в этот вопрос.
По расположению
Наружные стены составляют «коробку здания» и являются несущими. К несущим стенам также относятся стены, которые обращены к лестничному пролету и внутриквартирные стены, которые обращены к соседней квартире.
Итак, когда вам удалось определить несущие стены в квартире, и так вышло,что именно их вам и нужно изменить, помните: нельзя удалять несущую стену полностью, оставляя верхние перекрытия без поддержки. Вы можете убрать только небольшую ее часть, и в получившемся проеме разместить металлические подпорные конструкции, которые потом легко скрыть под фальш-балками. Или удаляя всю стену, нужно обеспечить надежную поддержку с помощью стоек или колонн. Толщину и расположение которых вам смогут определить только специалисты во время выдачи разрешения на перестройку квартиры.
Помните! Очень важно не пренебрегать мнением профессионалов во время перепланировки и не заниматься самодеятельностью, которая может быть чревата последствиями, не только для вашей квартиры, но и для окружающих вас квартир.
Здравствуйте. В прошлых статьях я описывал особенности скрытой электропроводки в многоквартирных жилых домах, а именно, разговор шел о штроблении стен. Можно подвести краткий итог этих статей: не рекомендовано дробление несущих стен многоквартирных домов. Возникает простой и логичный вопрос, как определить, какие стены являются несущими, а какие нет? Это особенно важно при покупке новой квартиры. Разрушение несущих стен может стать неприятным сюрпризом при переезде в новую квартиру.
Большое значение при переезде с места на место является выбор транспортной компании. Особое значение выбор компании приобретает при переезде из другой страны, например в Россию. Здесь к хлопотам с переездом добавляется оформление документов, беспокойство о пересечении грузом границы и т.д. Выбор транспортной компании с большим опытом практической работы, акцентирующей услуги по переезду в Россию будет отличным вариантом беспроблемного переезда. Пример такой компании, компания ТОО GTrans . Отработанный переезд в Россию из Казахстана по наезженным маршрутам.
Зачем определить несущие стены в квартире (офисе)
Ответы на вопросы «Зачем определять несущие стены» или «Какая стена, несущая» вообще не имеют никакого значения, если вы не планируете серьезный ремонт, связанный с перепланировкой и/или прокладкой новой скрытой электропроводки. Как перепланировка, так и электромонтаж связан с затрагиванием конструкций помещения и согласно Жилищному кодексу РФ, требует согласований и получения разрешений, если эти конструкции являются несущими.
Юридически, вопрос максимально понятен. Нарушение несущих конструкций дома (здания) может нарушить его прочность и привести к его разрушению (частичному или полному).
На практике, некоторые строительные фирмы, без опасок, рушат и долбят стены, увещая заказчиков, что «мы делаем это постоянно». Это совсем не аргумент, ведь ответственность за незаконную перепланировку и разрушение конструкций лежит на собственнике жилья.
Как самостоятельно определить несущую стену
Есть несколько практических советов, как определить несущая стена или нет.
Жилой дом из кирпича
Толщина несущих стен в кирпичном доме начинается с 38 см. Все другие стены, 12 см (один кирпич), 25 см (два кирпича), 8-12 см (легкий бетон), являются перегородками.
Несущие стены в хрущевках и сталинках
Конструкция домов типа «сталинка» и «хрущевка» продемонстрирована на фото.
- 3 продольные стены они несущие;
- Между ними несущие диафрагмы, они удерживают несущие стены от падения;
- Лестничные пролеты удерживаются на несущих стенах.
Все остальные стены это перегородки.
Как определить несущие стены в доме: Хрущевка
На плане квартиры это будет выглядеть так.
План квартиры
Серийный многоквартирный дом из панелей
Измеряем толщину стены.
В серийных панельных домах толщина несущих стен составляет 12, 14, 18, 20 см. Толщина перегородок в панельных домах, то есть стен, возводимых после постройки (сборки) дома, колеблются в пределах 8-10 см.
Вывод 1. Если толщина стены (без штукатурного слоя) меньше 10 см, очень велика вероятность, что это не несущая стена, а перегородка.
Важно! Конструкция панельного дома держится за счет несущих стен, и разрушение несущей стены нарушает целостность конструкции всего дома.
Узнать серию своего дома и посмотреть архитектурную планировку
Панельные многоквартирные дома серийные и каждый дом принадлежит определенной серии. В Интернет можно найти довольно полные сайты с описанием и фото серийных панельных домов. По серии дома, вы легко найдете авторов проекта и проект вашего дома. На проекте дома (квартиры) четко видны несущие стены (они заштрихованы и\или толще остальных). Альтернативой проекту, может стать общение с БТИ или с управляющей компанией вашего дома.
Многоквартирный монолитный дом
В новостройках монолит, определить несущие стены просто. Несущие стены видны визуально. Ровная бетонная стена, несущая, перегородка выложена из блоков.
В обжитых монолитных домах, несколько сложнее. Перегородкой точно является стена толщиной меньше 20 см. Однако, стена толще 20 см может быть как перегородкой, так и несущей конструкцией. В этом случае, поможет, определить несущая стена или нет, только архитектурный раздел рабочего проекта. Он должен быть у управляющей компании. Несущие стены будут заштрихованы.
Какие работы для несущих стен запрещены
В завершении несколько нельзя для несущих стен:
- Нельзя , полностью сносить несущую стену в любых зданиях () и невозможно получить законное согласование на такой снос.
- переносить несущую стену;
- делать проём в несущей стене без согласования и проекта;
- Нельзя , (в Москве) делать любые борозды для электропроводки, а также труб водопровода и отопления. (ППМ №508)
- Можно! Сверлить несущие стены для навешивания предметов мебели и приборов, а также можно делать сквозные отверстия в несущих стенах для прохождения труб водопровода, закладных электрокабелей, вентиляции.
Вывод
Как видите определить несущие стены в своей квартире, самостоятельно вполне реально.
Перед началом капитального ремонта, предполагающего внесение изменений в планировку квартиры, нужно выявить несущие стены. По закону такие строительные конструкции запрещено демонтировать, так как снижает надежность и долговечность здания. Предварительное определение несущих конструкций квартиры убережет собственника от многих проблем с государственными органами, контролирующими соблюдение действующих строительных норм и правил.
Как определить все несущие стены в своей квартире?
В хрущевках и панельных домах есть несущие стены и тонкие межкомнатные перегородки. Демонтировать для объединения помещений можно только ненесущие конструкции, работы с которыми не приведут к возникновению опасных для пользователей здания аварийных ситуаций. Необходимость в демонтаже и переносе перегородок возникает достаточно часто, причиной тому неудобное расположение комнат в старых многоквартирных домах и их небольшие размеры. Проще говоря, комнаты слишком маленькие для комфортного проживания людей, а их снос позволяет освободить дополнительное полезное пространство.
Но ни одна несущая стена не должна быть разрушена в ходе ремонта. Такие перегородки выполняют очень важные функции в доме – они принимают на себя вес выше расположенных строительных конструкций здания. Если несущая стена не сможет выдерживать всю получаемую нагрузку, она начнет разрушаться, что в итоге может привести к обрушению целых секций дома и человеческим жертвам.
Чтобы ремонт не привел к таким негативным последствиям и требуется предварительно узнавать, какие стены можно демонтировать, а какие – нет. Существует два основных способа, позволяющих определить важные конструктивные элементы здания:
- 1. Обращение в БТИ. В Бюро технической инвентаризации хранится техпаспорт каждого дома.
- 2. Самостоятельное определение функций перегородок. Если на посещение БТИ нет времени, можно своими силами провести в квартире специальные изыскания, позволяющие определить несущие стены.
Поиск несущих перегородок в панельном доме
В панельном доме, как в и любом другом, легче всего определить назначение внутренних конструктивных элементов с помощью технического паспорта квартиры. Если по каким-то причинам у вас нет технической документации, несущая стена может быть выявлена по ряду важных признаков. Первое, на что нужно обратить внимание при исследовании перегородки – ее толщина. В панельных домах несущие стены всегда значительно толще обычных межкомнатных перегородок.
По строительным правилам минимальная толщина несущей перегородки в панельном доме должна быть не менее 12 см. Это чистый размер, без учета облицовочных материалов на стене, коих может быть достаточно много (штукатурка, обои, краска и т. д.). Межкомнатные перегородки, не выполняющие несущих функций, имеют толщину в пределах 8-10 см (без учета отделки).
То есть, для определения несущих стен, все необходимо измерить, предварительно очистив их от облицовочных материалов. Только после определения можно приступать к планированию капитального ремонта, выбирая подходящие способы, средства и решения для перестройки жилого объекта.
При выполнении замеров следует учитывать, что все стены в старых панельных девятиэтажных домах состоят из панелей, а потому очень многие из них имеют несущие функции, что делает невозможным их демонтаж. С несущими стенами запрещено проводить множество работ, помимо демонтажа – создавать в них дверные и оконные проемы без получения соответствующих разрешений от ответственных органов, и даже штробить их для установки коммуникаций.
Какие стены можно демонтировать в хрущевке?
В хрущевках определить назначение стен достаточно просто. Для этого можно воспользоваться техническим паспортом жилого объекта, а если его нет – провести специальные замеры. Все хрущевки характеризуются одинаковой планировкой, причем несущими конструкциями в них обычно выступают только те, которые отделяют квартиру от других квартир, лестничной площадки и улицы, а все внутренние перегородки просто разделяют комнаты и их смело можно демонтировать.
Однако сразу приступать к демонтажным работам не нужно, рекомендуется предварительно провести замеры и узнать толщину всех внутренних стен. В хрущевке несущая стена всегда имеет толщину более 12 см без отделочных слоев. Если очищенная от облицовки стена толще 12 см, можно сносить ее, не опасаясь негативных последствий.
Никаких несущих функций в хрущевке обычно не выполняет и стена, разделяющая квартиру и балкон. Но демонтировать ее все равно запрещено. Балкон является холодной зоной и стена, отделяющая его от квартиры, нужна для сбережения тепла. Если ее снести, квартира будет плохо защищена от внешних погодных условий, именно поэтому в настоящее время невозможно получить разрешение на объединение комнаты с балконом от жилинспекции, с которой осуществляется согласование перепланировок.
О возможности переносить и разбирать стену можно узнать также и с помощью сверления. В хрущевках несущие стены очень прочны и для создания в них отверстия порой приходится менять сверла одно за другим. Для создания отверстия в ненесущей стене практически не нужно прикладывать усилий, сверло проходит сквозь нее очень легко.
Определение назначения стены по планам квартиры
Считается, что несущая стена в любой квартире легко может быть найдена с помощью технической документации, к примеру поэтажного плана многоквартирного дома. Это действительно так, но для определения функций внутренних перегородок необходимо уметь работать с проектной документацией, разбираться в условных обозначениях, читать схемы и т. д.
К сожалению, не существует одного общепринятого обозначения несущих стен на планах, которыми бы пользовались все проектные предприятия, застройщики и другие организации, потому собственнику часто приходится долго сидеть над полученными чертежами, прежде чем удастся узнать, какая стена несущая, а какая – нет.
На архитектурно-строительных планах рабочего проекта на постройку многоквартирного дома несущие стены обычно выделяют специальной штриховкой. На планах из БТИ такие конструкции обозначены большей толщиной, чем простые межкомнатные перегородки, но не всегда. Нередки случаи, когда на планах старых домов стена обозначена тонкой линией, но в действительности она является несущей.
Собственникам настоятельно не рекомендуется пытаться выполнить на основе полученных результатов измерения стен или данных из техпаспорта. Лучше перестраховаться, заказать в БТИ документацию на дом и поручить задачу оценки возможностей перепланировки профессиональным проектировщикам.
Правила демонтажа внутренних перегородок
Перепланировка рассматривается современным законодательством как капитальный, сложный и ответственный ремонт, который при неправильном исполнении может причинить немало вреда многоквартирному дому и его обитателям. Именно поэтому в Жилищном кодексе детально описывается правильная процедура выполнения перепланировки, отходить от которой нельзя ни в коем случае.
Предусмотренная законодательством процедура предполагает предварительное проектирование капитального ремонта и согласование разработанной проектной документацией с жилищной инспекцией или местной администрацией населенного пункта. Чтобы проект успешно прошел согласование, его следует заказать у профессиональных проектировщиков, квалификация которых подтверждается допусками СРО и лицензиями от государственных контролирующих органов.
Для согласования в МФЦ необходимо подать пакет документов, в состав которого входят:
- заявка от собственника квартиры на перепланировку;
- проект перепланировки;
- техническое заключение от проектировщиков о возможности и безопасности проведения капитального ремонта;
- свидетельство о праве собственности;
- согласие прописанных в квартире людей на капремонт.
Эти документы будут переданы из МФЦ в ответственный орган для согласования, после чего в течение 45 дней они будут рассмотрены и собственник получит уведомление о том, разрешается ли ему выполнять перепланировку. Если сотрудники жилинспекции посчитают, что запланированный ремонт может негативно отразиться на здании, владельцу запретят реализовывать проектную документацию.
Игнорировать требования законодательства о необходимости согласования капитального ремонта не стоит. Если выполнить перепланировку без соответствующих разрешений, можно не только нарушить целостность дома и подвергнуть опасности свое и чужое здоровье, но и получить от жилищной инспекции предписание, требующее заплатить установленный законом штраф (до 2500 р. для физических лиц) и вернуть жилищу его исходную планировку, на что придется потратить внушительную сумму денег.
Очень часто у нас спрашивают: какая стена несущая – и действительно именно с этого вопроса начинается любая перепланировка в помещении. Но почему это так важно? Ответ прост – все стены в помещении делятся на две категории несущие стены и перегородки. Причем, если перегородки просто разделяют комнату то несущие стены несут нагрузку плит. Несущие стены или только после составления и получения разрешения сертифицированными профессионалами с допусками СРО на проведение проектных работ. Если внести изменения в несущую способность стены, то весь дом может сложиться словно карточный.
В случае если перепланировка квартиры все таки влечет за собой нарушение целостности несущих стен, то делать это надо только после разработки проекта перепланировки у специалистов имеющих допуск СРО. Стены – перегородки же в свою очередь никакой нагрузки не несут и могут быть демонтированы по усмотрению дизайнера проектировщика без каких-либо специальных разрешений.
Какая стена несущая в монолитных домах?
В отличие от кирпичных домов наружные стены в монолитных домах не всегда являются несущими и поэтому определение какая стена несущая в монолитных домах наиболее сложная. Такие дома являются наиболее дифференцируемыми по конструктивным и архитектурным решениям, здесь можно встретить не только несущие стены, но и несущие колонны, несущие балки и пилоны, в том числе и встроенными в стены перегородки. Однако, как правило, несущие бетонные конструкции в монолитных домах не могут быть менее 200 мм в толщину, часто этот показатель достигает 300 и даже 350 мм вместе с отделкой. Однако это не является окончательным показателем так, к примеру, толщина стен в домах из пеноблоков может достигать 300 и более мм.
Наиболее надежным способом определения какая стена несущая это запросить в архиве план вашего помещения у застройщика или у управляющей компании. Ну а в самом плане несущие стены всегда нарисованы более толстыми, чем перегородки.
Какая стена несущая в панельных домах?
В панельных домах, также как и в монолитных, есть своя особенность обычно несущая стена является цельной от подвала до крыши однако панельный дом состоит из коробок – комнат в которой все стены выполняют несущую роль за исключением наружных стен задача которых сохранить тепло. Однако и здесь можно найти перегородки, например туалет и ванная, как правило, состоят из перегородок.
Здесь стоит отметить, что толщина перегородок в панельных домах довольно маленькая порядка 80 – 100 мм. Толщина же несущих стен в панельных домах начинается с 120 и достигает 200 мм, таким образом, если толщина стены, которую вы измеряете больше – не сомневайтесь, она несущая. Однако не забывайте про отделку стены, в некоторых случаях на стену может быть нанесен довольно большой слой штукатурки в некоторых случаях до 60 мм.
Какая
стена
несущая
в хрущевке?
Все «хрущевки» строились по одним и тем же типовым проектам в которых можно отметить одну важную деталь: схема представляет собой три продольные несущие стены и поперечными к ним стенами. Назначение этих стен обеспечение устойчивости всей конструкции дома. Хотя поперечные стены и не являются несущими, однако нагрузку они все равно несут и относится к ним стоит внимательно. Другими словами, для того, чтобы определить какая стена несущая в «хрущевке», лучше всего запросить информацию в БТИ или довериться профессионалам для проведения обследования.
простых приемов
определить
какая стена несущая:
- Стены, которые выходят на лестничные марши – всегда несущие.
- Перегородка между ванной комнатой и туалетом чаще всего несущей не является. Так же как и перегородка между ванной или туалетом и коридором.
- Несущие стены всегда самые толстые в квартире. Однако это правило не применимо к стенам из пенобетона. Стены из пеноблоков не являются несущими.
- Межэтажные плиты всегда опираются на несущие стены, стоит лишь поднять голову и посмотреть по стыкам плит как они уложены.
- Обратитесь в БТИ по вашему району или в управляющую компанию вашего дома и запросите архитектурный план вашего дома.
Обратитесь к нам для проведения обследования.
– Мы занимаемся перепланировками уже более 10 лет.
– Мы поможем сделать перепланировку не потратив лишних средств и времени
– Более 70% наших заказов это клиенты которые уже работали с нами и доверяют нам до сих пор. Убедитесь в этом сами.
Как определить несущую стену – какие стены несущие
Стены домов и квартир выполняют разные функции и испытывают неодинаковую нагрузку. Несущие стены принимают на себя нагрузку не только собственного веса, но и вес потолочных перекрытий. Задумав капитальный ремонт, связанный с перепланировкой, просто необходимо знать, как определить несущую стену.
Несущая стена установлена перпендикулярно по отношению к плите, которая на нее упирается. То есть плита лежит короткой стороной на стене, отдавая ей значительную часть своей массы. В постройках не всегда используются несущие стены. Иногда вместо них ставят колонны или балки. Но в основном, в жилых помещениях при строительстве устанавливают несущие стены, определить которые в одних случаях просто, в других — затруднительно.
Несущая стена — опора для плит перекрытияЗаранее отметим, что операции, проводимые с несущими стенами, включая внутренний монтаж проводки, обустройство ниш и разных отверстий, не стоит проводить самостоятельно без профессиональных навыков. Об арках, дверных проемах, протяженных участках или частичном сносе и речи быть не может.
Как определить, какая стена несущая
Самый легкий способ найти несущую стену – ознакомиться с планом дома. На нем эта стена обозначена довольно понятно. План можно найти в местном исполкоме в отделе управления капитального строительства. Также можно использовать подробный план квартиры, находящийся в домовой книге или техпаспорте. Но в таком случае у владельца должен быть некоторый строительный опыт и навыки чтения чертежей.
План квартирыНа такой план можно взглянуть и вместе с соседями, проживающими этажом выше. В их проекте должно быть указано, на какую стену опирается конструкция их пола. Если квартира находится на верхнем этаже, можно залезть на чердак, и обратить внимание то, каким образом лежат плиты.
Обратите внимание! Если есть хоть малейшая капля неуверенности, ни в коем случае не трогайте стену, поскольку это может обойтись очень дорого.Толщина кирпичной несущей стены
Если план добыть невозможно, будем определять несущую стену по характерным признакам. Расположение стены может многое сказать о ее предназначении. Стены, смотрящие на лестничный холл, а также внутренние стены, граничащие с квартирой соседей, являются несущими. Кроме того, некоторые наружные стены, граничащие с окружающей средой, тоже могут быть несущими. Они могут составлять коробку здания, и принимать на себя весь груз.
Следующий способ определить такую стену, обратить внимание на ее толщину. Если толщина кирпичной кладки составляет 38 сантиметров и больше, и если железобетонная панель имеет толщину более 14 см, то эти стены – несущие. Теперь об этом поподробнее.
Кирпичные дома
Ширина кирпича составляет 12 см. Цементный шов между кирпичами занимает в среднем 1 см. Простая математика подсказывает нам, что 38 см – это кладка из трех кирпичей, в которой присутствует два шва (12+1+12+1+12=38). 51 см – 4-кирпичная кладка; 64 см – 5-кирпичная и т. д. Межкомнатные стены обычно не толще 18 см. Толщина стен определяется без учета штукатурки. Поэтому перед замером, лучше очистить стены от старой отделки.
В кирпичных домах, построенных в 90-е годы и позднее, ситуация немного сложнее. Они, скорее всего, были построены по индивидуальному проекту, и определить несущую стену поможет автор планировки.
Панельные дома
Несущие стены в панельном домеВ панельном или блочном доме очень сложно реализовать свои строительные идеи, поскольку большинство стен в нем – несущие. К ним относятся и межквартирные, и наружные и перпендикулярные наружным стены. Также несущими являются стены сантехнических комнат.
Перегородки между комнатами составляют всего лишь 80–100 мм. Но бывают исключительные случаи, когда в подобных домах толщина стен составляет 12 сантиметров в ширину. Считать ли ее несущей, или это просто утолщенная перегородка? В этом случае, за помощью необходимо обратиться к компетентным людям, которые сделают заключение, опираясь на архитектурный проект здания. Они же и будут решать, можно проводить дальнейшие работы в доме или нет.
Монолитные дома
Каркасные зданияКак узнать несущую стену в монолитном доме? В домах, фундамент которых плавно переходит в каркас здания, любая стена толщиной более 20 см, считается несущей. Однако в таких домах, которые часто строятся не по стандарту, а по конструкторскому решению заказчика, для определения несущей стены, недостаточно руководствоваться одними размерами. Простая перегородка в монолитном доме может быть толще 20 см. А бывают дома, где вообще нет несущих стен. Вместо них используются надежные колонны. Поэтому помощью может послужить план здания и чертежа. Если по какой-то причине они недоступны, в таком случае не обойтись без вердикта уполномоченных лиц.
Разрешение соответствующих органов.
Многие не желают связываться с должностными лицами и предпочитают решать такие важные вопросы самостоятельно. Но это чревато грубыми ошибками. Не стоит бояться вызывать в свой дом специалистов для консультации и получения разрешения. Более того, если вы обнаружили на стене, пусть даже не несущей, малейшие трещины, отсыревший или раскрошившийся участок, пригласите инспектора, который оценит степень повреждения и даст советы.
Обратите внимание! Любая перепланировка независимо от типа квартиры, будь то хрущевка, или коттеджный дом, требует согласия и письменного разрешения БТИ или других соответствующих государственных служб. Работы с несущими стенами, даже если их выполняет профессионал, также требуют наличия разрешения.Демонтаж стены
Если все же придется проводить некоторые демонтажные работы несущих стен, их должен выполнять грамотный специалист, умеющий устанавливать временные колонны, берущие на себя вес плиты вместо стены. Следить за процессом и проводить расчеты таких колонн должны представители уполномоченных организаций, инженеры, имеющие лицензию на данную строительную деятельность.
Обратите внимание! Квартиру с неузаконенной перепланировкой невозможно продать, а получить проект уже переделанной квартиры будет очень тяжело и проблематично.
Не нужно думать, что планируемая работа является незначительной, и не стоит того, чтобы вызывать бригаду. Малейшая ошибка может стоить жизней многих людей, ведь незаметная микротрещина в несущей стене со временем может привести к обрушению здания.
Работы, проводимые на несущих стенах
Монтаж опоры при сносе несущей стеныРешившись проводить работы на несущих стенах, например, штробить канавы, делайте это с максимальной осторожностью. Если на стене есть розетки или выключатели, помните, что внутри стены прячется проводка, которая, если не обесточить помещение, может вывести из строя систему электроснабжения и нанести травму работнику. Если дом старый, в стене может даже находиться газовая труба. Работайте аккуратно и, если есть возможность, пользуйтесь проектом, где все эти нюансы отмечены.
Обратите внимание! Никогда не забывайте, что нельзя сносить несущую стену, оставляя перекрытие без опоры.
Если профессиональные навыки позволяют взяться за частичное удаление стены, не забудьте разместить в получившемся проеме подпору, которую со временем можно скрыть фальшбалками.
Видео
Дополнительные советы вы найдете ниже:
различий между фундаментными стенами и монолитными фундаментами
Есть два типа фундаментов, которые преимущественно используются при строительстве нового дома; Стенки и монолитные плиты. Оба имеют определенные преимущества и проблемы во время строительства, и важно знать их, прежде чем начинать строительство нового дома. В этой статье мы рассмотрим различия и преимущества двух типов фундаментов.
Монолитная плита
Монолитный означает «все за одну заливку», поэтому фундамент строится за одну заливку, состоящую из бетонной плиты с более толстыми участками под несущими стенами и краями по всему периметру, которые заменяют нижние колонтитулы.Поскольку эта плита заливается сразу, это происходит намного быстрее и снижает затраты на рабочую силу.
При использовании в правильных условиях плиты Monoslab могут быть такими же прочными, как плиты Stem-Wall. В большинстве жилых домов, построенных по частям, земля является ровной по всей территории и более плотно уплотнена, и требуется очень небольшое количество грунта для засыпки. В этом случае, если все отметки готового этажа одинаковы от участка к участку и имеется очень небольшой уклон, лучшим выбором могут быть монопласты.
Есть несколько серьезных проблем, которые могут возникнуть, если условия партии не влияют на монолитную плиту. Их нельзя использовать, когда требуется много засыпной грязи, потому что бетон более склонен к растрескиванию, если грунт не утрамбован достаточно хорошо. Это проблема для домов, которые должны быть построены так, чтобы подниматься выше уровня наводнения, предоставленного вашим инженером (как и большинство строительных площадок во Флориде). В этой ситуации моноплитки имеют тенденцию треснуть по периметру стен и других основных несущих областях.Это растрескивание может вызвать структурные проблемы, которые влияют на другие аспекты дома в процессе строительства, такие как гипсокартон и пол, если каркасные стены нестабильны.
По этим причинам большинство строителей участков во Флориде (включая нас) предпочитают фундаменты со стволовыми стенами.
Стенка-ножка
Стеновые и стеновые перекрытия строятся в многоэтапном процессе, при котором нижний колонтитул заливается на уровне первичной земли, а затем укладываются блоки, формирующие стену до уровня готовой плиты.Этот тип фундамента намного более устойчив, когда требуется заполнить грунт для достижения окончательной высоты постройки. Этот процесс занимает немного больше времени, чем монолитная плита, но более стабильный фундамент предотвратит другие проблемы, которые могут возникнуть в будущем с фермами или конструкцией стен. При работе с различными условиями на участке стволовые стены – гораздо более последовательный метод строительства фундамента.
Качественное строительство начинается с прочного и прочного фундамента.
Что такое монолитно-плитный фундамент?
У вас традиционный трехсекционный или монолитно-плитный фундамент?
Традиционный трехкомпонентный фундамент: Это Т-образный фундамент, состоящий из нескольких частей.Под линией промерзания кладут опору. Блоки кладут на место, чтобы сформировать стену, как только фундамент затвердеет. После возведения стен между ними и поверх фундамента заливается плиточный пол.
Монолитный: Этот фундамент создается путем заливки одного слоя бетона для образования плиты и фундамента. Подрядчикам нравится монолитная концепция, потому что она снижает затраты на рабочую силу, а процесс строительства идет быстрее, чем при использовании других фундаментов.
Известный монолитный фундамент из плит имеет толщину от 12 до 18 дюймов в основании и от 4 до 6 дюймов для плиты.Правильная подготовка площадки и армирование бетона арматурой и проволокой необходимы для возведения монолитного фундамента.
Надлежащая подготовка места- Почва под плитой не должна содержать органических веществ. Почву необходимо утрамбовать (удалить верхний слой почвы) и хорошо дренировать.
- Применение Кодекса определяет тип и расположение арматуры в фундаменте этого типа. Чаще всего используется монолитная плита №4 арматуры. Арматура представляет собой два металлических стержня, которые легко сгибаются и размещаются рядом друг с другом внахлест в траншеях и связываются проволокой.
- Траншея по периметру плиты – это то, что создает утолщенный край. Должностные лица строительных норм определяют глубину и ширину траншеи. Эта траншея может иметь ширину 1 фут и глубину 1 фут в теплом климате или 1 фут шириной и 2 фута глубиной в условиях, когда возникает морозное пучение.
Монолитный фундамент имеет много преимуществ перед традиционным.К плюсам можно отнести следующее:
- Строительство происходит быстро и легко: После того, как траншея по периметру была добавлена и гравий разложен, можно начинать заливку бетонного пола.
- Эта основа сохнет быстрее, чем все другие основы.
- Прочный фундамент: Этот фундамент является прочным при условии правильной установки анкерных болтов и арматуры.
- Низкие эксплуатационные расходы: Монолитный фундамент требует проверок только через запланированные интервалы времени, чтобы убедиться в отсутствии трещин в фундаменте.
- Энергоэффективность: Тратится меньше энергии, потому что между домом и землей нет места. Воздух не проходит под черным полом.
Конечно, есть недостатки при установке конструкции монолитного фундамента. Вот минусы этого типа фундамента:
- Риск затопления: Ваш дом подняли только прибл. 6 дюймов над уровнем земли с этим фундаментом, поэтому дом может быть затоплен.
- Стоимость ремонта дорогая: При наличии трещины в фундаменте требуются дорогостоящие методы ремонта фундамента.
- Возможна меньшая стоимость при перепродаже.
Есть несколько случаев, когда фундамент из плит является идеальным выбором:
Это идеальный вариант для климата, где земля не замерзает, а температура не очень жаркая и не похожа на пустыню.Если нет необходимости в подвале или лазейке; можно использовать монолитную плиту для повышения энергоэффективности.
Какие проблемы возникают с монолитным фундаментом?Несмотря на удобство и простоту установки монолитного фундамента, могут возникнуть проблемы, которые могут поставить под угрозу фундамент. Фундамент может потребовать дорогостоящего ремонта, а это значит, что лучше использовать традиционный фундамент.
Типичные проблемы, обнаруживаемые с монолитным фундаментом, – это трещины в других частях дома, поддерживаемых фундаментом.
- Трещины в фундаменте – большой повод для беспокойства. При появлении трещин в фундаменте он может расслоиться в местах холодных стыков (стена встречается с плитой). Узкие отверстия облегчают проникновение воды, влаги и насекомых в дом.
- Проблемы с повышением влажности почвы или неправильная конструкция могут повредить фундамент. Это может привести к тому, что столешницы, пол и стены в доме станут неровными.
- Движение фундамента может привести к застреванию дверей и окон и появлению трещин в стенах из гипсокартона.
- Подрядчикам следует избегать использования фундаментов из монолитных плит (монолитных) в определенных ситуациях.
- Дома с уклоном могут привести к дорогостоящим расходам из-за необходимого количества бетона.
- Дома со множеством залитых грязью отверстий под домами приводят к растрескиванию бетона.
- Строительная компания не может построить монолитный фундамент из плит в зоне затопления из-за требований норм.
Средняя стоимость фонда может варьироваться от 4600 до 20 000 долларов в зависимости от нескольких факторов. Некоторые из факторов, определяющих цену фундамента, включают в себя место вашего проживания, размер вашего дома, арматуру, используемую в бетоне, толщину и почву, на которой вы строите.
Статьи по теме:Размещено: 7 апреля 2021 г.,
Подвалы должны иметь инженерные петли во время гидроизоляции подвала для прочного фундамента.Очень важно оставлять участки пола в нижнем колонтитуле.
Размещено: 24 марта 2021 г.,
Ложный уровень грунтовых вод – основная причина намокания подвалов, разрушения фундаментных стен и растрескивания полов. Это «ложь», потому что это временно.
Размещено: 17 марта 2021 г.,
Затопление подвала обычно происходит, когда грунтовые воды находят путь наименьшего сопротивления. Есть шесть способов предотвратить наводнение в подвале.
Размещено: 27 января 2021 г.,
Монолитный фундамент из плит создается путем заливки одного слоя бетона для образования плиты и фундамента.Процесс строительства более быстрый и недорогой.
Что такое фундамент из стволовой стены? | 2020
Каркасные стены являются основой одного из пяти типов фундаментов домов, распространенных в Соединенных Штатах, – фундаментов для подвесных пространств. Вот основы того, как эти короткие стены выдерживают большие дома.
Что такое стенка ствола?
Тип фундамента, распространенный на большей части территории Соединенных Штатов, стволовые стены короткие (до нескольких футов, или высоты подполья), прикреплены к бетонному основанию.Они обычно используются в домах с пространствами для прогулок, вентилируемыми или невентилируемыми, и особенно распространены в Калифорнии, Техасе, Северо-Западе и Юге. Они также являются популярным выбором среди архитекторов, проектирующих дома в районах, где часто происходят землетрясения.
Стенки стволов нельзя использовать в домах с полными подвалами, которые распространены на большей части Средней Атлантики и Северо-Востока, а также на Среднем Западе, или в тех, которые возвышаются на опорах, чтобы находиться выше уровня наводнения, как в некоторых прибрежных районах.
Каковы преимущества фундаментов стеновых стволов?
Есть много причин, по которым фундаменты подполья со стенками ствола являются обычным явлением. Вот несколько самых важных:
- Они прочные. Стены ствола передают нагрузку от дома к основанию (часто это раздвинутое основание, имеющее более широкую нижнюю часть), а затем она распределяется по большей площади.
- Они защищают сам дом. Подняв фундамент дома, его стены защищены от затопления и некоторых других опасностей окружающей среды.
- Они обеспечивают легкий доступ к водопроводу, электропроводке и другим механическим системам по сравнению с плиточным фундаментом.
- Конечным результатом может быть более красивый дом. Поднимая основание дома, поднимается вся конструкция.
Особый случай: Если участок, на котором вы строите, расположен на склоне, фундамент стены ствола имеет некоторые особые плюсы в том, что его высота может варьироваться в зависимости от отметки земли в разных точках.(В таких ситуациях количество бетона, необходимое для плиточного фундамента, может быстро стать дорогим.)
Как строятся фундаменты стеновых стволов?
Несмотря на то, что существуют вариации конструкции стенок ствола, несколько первых шагов являются общими для всех из них:
- Очистить сайт. Удалите все растения и прочий мусор. Вам нужно удалить все большие пни, а также подтвердить у местных властей, что никакие деревья на участке не защищены.
- Уплотните земляное полотно. Используйте пластинчатый уплотнитель и при необходимости внесите в почву добавки (например, гравий), чтобы получить достаточно плотную и однородную почву для вашего проекта. Вам понадобится только крупное оборудование, такое как ролики, для более крупных проектов.
- Залить фундамент дома. Эти бетонные основания для стен ствола должны находиться минимум на 12 дюймов ниже линии ненарушенного грунта и на 12 дюймов ниже линии промерзания (или они должны быть защищены от промерзания).Они также должны быть минимум 12 дюймов в ширину. Точные размеры опор могут отличаться и будут частично зависеть от типа почвы на участке. Если вы строите на материале с высокой несущей способностью (LBV), например на скальной породе, ваши опоры могут быть меньше, чем на участке с песчаным грунтом, который имеет низкую LBV.
Стенки ствола из бетона иногда называют «фундаментом с двумя бетонными стенами». Первая заливка предназначена для основания, а вторая – для самих стенок ствола.
Во время строительства стен ствола над опорой необходимо использовать вертикальные стержни, чтобы гарантировать, что стены не соскользнут с опоры (особая проблема в зонах, подверженных землетрясениям).
После того, как вы построили стену ствола, вы можете прикрепить подоконник (структурное основание каркаса дома) к стене ствола с помощью анкерных болтов (их количество и размер обычно определяется местными строительными нормами).
Из чего сделаны фундаменты стеновых стволов?
Каркасные стены чаще всего возводятся либо из кирпичной кладки (КМУ или шлакоблоки), либо из бетона.Заливные бетонные стены обладают преимуществом большей общей прочности, что может быть необходимо в некоторых районах с сильными ветрами, а также в зонах затопления. Однако они требуют больших усилий и затрат, так как требуют создания форм и распорок. Стены бетонных стволов также могут потребовать дополнительных визитов инспекторов.
Некоторые считают стволовые стены из обработанной консервантом древесины (также известные как «пони-стены») менее дорогим решением в некоторых конструкциях – например, на участках с хорошим дренажем и в удаленных местах, где транспортировка бетона может быть невозможна.Чтобы защитить древесину, необходимы пароизоляция и другие виды обработки.
В чем разница между стеной ствола и монолитным фундаментом?
Распространенной альтернативой стенам из стволов, по крайней мере в некоторых более теплых частях США, являются монолитные фундаменты, иногда называемые монопластами. При монолитном бетонном фундаменте одинарная плита заливается увеличенной толщиной вдоль тех участков, которые будут поддерживать несущие стены.
Основное преимущество монолитных фундаментов в том, что они дешевле и быстрее возводятся, так как за один раз заливается весь фундамент.Поскольку в зданиях с монолитным фундаментом нет места для обхода, будущему домовладельцу остается на одну вещь меньше, чем нужно заниматься.
Монолитные фундаменты обычно используются в районах, где земля никогда не замерзает, и чаще встречаются в тропических регионах – в некоторых странах большинство домов строится с использованием этого метода. Однако в большинстве Соединенных Штатов они ограничены хозяйственными постройками, такими как садовые навесы или гаражи. Тем не менее, были достигнуты успехи в проектировании теплоизоляционных плит, также известных как защищенные от замерзания неглубокие фундаменты (FPSF), что расширило возможности их использования в областях, где температура опускается ниже нуля.
Даже в теплом климате монолитные плиты могут не подходить там, где грунт недостаточно уплотнен. Они также могут иметь тенденцию к растрескиванию на участках под несущими стенами.
MT Copeland предлагает онлайн-классы на основе видео, которые дают вам фундамент в области строительства с использованием реальных приложений. Классы включают профессионально подготовленные видеоролики, преподаваемые практикующими мастерами, и дополнительные загрузки, такие как викторины, чертежи и другие материалы, которые помогут вам овладеть навыками.
Хозяйственные постройки … – Ch5 Элементы конструкции: стены
Хозяйственные постройки … – Ch5 Элементы конструкции: стены СтеныСодержание – Назад – Вперед
Стены можно разделить на два типа:
a Несущие стены, которые выдерживают нагрузки от перекрытий и крыши в дополнение к их собственному весу и которые выдерживают боковое давление от ветра и, в некоторых случаях, от хранимых материалов или предметов внутри здания,
b ненесущие стены, не несущие нагрузок на пол или крышу.Каждый тип можно разделить на внешние и закрывающие. стены и внутренние перегородки. Применяется термин разделение к стенам, несущим или ненесущим, разделяющим пространство внутри здания на комнаты.
Стены хорошего качества обеспечивают прочность и устойчивость к погодным условиям. сопротивление, огнестойкость, теплоизоляция и звук изоляция.
Виды стен зданий
Есть разные способы возвести стену и много разных материалы можно использовать, но их можно разделить на четыре основных группы.
Кладка стены, в которой стена построена из отдельных блоков материалов, таких как кирпич, глина или бетонные блоки, или камень, обычно в горизонтальных рядах, скрепленных какой-либо формой ступка. Некоторые продукты земного происхождения, высушенные на воздухе или обожженные, имеют разумную стоимость и хорошо подходят для климата.
Монолитная стена, в которой стена построена из материала размещаются в формах при строительстве. Традиционная земля стена и современная бетонная стена являются примерами.Земляные стены недорогие и долговечные, если их положить на хороший фундамент и защищен от дождя штукатуркой или широкими свесами кровли.
Каркасная стена, в которой стена выполнена в виде каркаса из относительно небольшие элементы, обычно из дерева, через короткие промежутки которые вместе с облицовкой или обшивкой с одной или обеих сторон образуют несущая система. Обрезки – недорогой материал для каркасное настенное покрытие.
Мембранная стена, в которой стена выполнена в виде сэндвича. из двух тонких обшивок или листов армированного пластика, металла, асбестоцемент или другой подходящий материал, прикрепленный к сердцевине пенопласт для изготовления тонкостенных высокопрочных элементов и небольшой вес.
Другая форма конструкции, адаптированная для каркаса или земли здания состоят из относительно легких листов, прикрепленных к лицевую сторону стены, чтобы сформировать закрытый элемент. Эти обычно называют «облицовкой».
Факторы, которые будут определять тип стены, которая будет использоваться:
- a Материалы доступны по разумной цене.
- b Наличие мастеров, умеющих использовать материалы в лучшем виде.
- c Климат
- d Использование здания – функциональные требования.
Высота стен должна позволять людям свободно ходить и работать в помещении, не стуча головой о потолок, балки и т. д. В жилых домах с потолками подходящей высоты 2,4 м. Низкие крыши или потолки в доме создают удручающую атмосферу. и, как правило, делают комнаты теплее в жаркую погоду.
Кладка стен
За исключением некоторых форм каменных стен, вся кладка состоит из прямоугольных блоков, собранных в горизонтальные слои называется курсами.Агрегаты закладываются в специальном строительном растворе. узоры, называемые склеиванием, чтобы распределять нагрузки и противостоять переворачивание, а в случае толстых стенок – коробление.
Материалом каменной кладки может быть глиняный или сырцовый кирпич, кирпичи обожженные, блоки грунта (стабилизированные или нестабилизированные), бетонные блоки, брусчатка или щебень. Блоки могут быть цельными или пустой.
Рисунок 5.18 Примеры, показывающие зачем склеивание необходимо.
Рисунок 5.19 английский и Фламандское склеивание кирпичных стен.
кирпичей
В кирпичной кладке кирпичи, уложенные вдоль стены, носилки и курс, в котором они возникают, курс на растяжку. Кирпичи, уложенные по толщине стены, называется заголовками и курсом, в котором они возникают, заголовком курс.
Кирпичи можно расположить самыми разными способами для получения удовлетворительная связь, и каждая договоренность помечена значком узор из заголовков и подрамников на лицевой стороне стены.Эти узоры различаются по внешнему виду, что приводит к характерным «текстуры» на поверхностях стен, и определенная связь может быть используется для рисунка поверхности, а не для прочности характеристики. Чтобы поддерживать связь, необходимо в некоторых указывает на использование кирпичей, разрезанных по-разному, каждый из которых имеет техническое название согласно способу огранки.
Простейшие договоренности, или, как их еще называют, “ облигации ”, растягивающая облигация и заголовочная облигация.В первом случае каждый курс полностью состоит из носилок, уложенных, как показано на рисунке 5.20, и подходит только для полукирпичных стен типа перегородок, облицовки для блочные стены и листы стенок пустот. Построены более толстые стены полностью с носилками, вероятно, изгибается, как показано на рисунке. 5.18. Заголовок обычно используется только для криволинейных стен.
Две связки, наиболее часто используемые для стен в один кирпич и более по толщине известны как английская облигация и фламандская облигация.А «Толщина одного кирпича» равна длине кирпича. Эти Связки включают в себя как коллекторы, так и носилки в стене, которые расположены с заголовком, расположенным по центру над каждым носилком в приведенном ниже курсе, чтобы добиться связи и минимизировать прямые стыки. В обеих связях 120 кирпичей стандартного размера. требуется на метр стены 23 см. Этот показатель позволяет от 15 до 20% обрыв и швы на 1 см раствора. Рисунок 5.19 иллюстрирует английский язык. и фламандские связи.
Кирпич иногда используют при строительстве пустотелых стен. поскольку воздушное пространство улучшает тепловое сопротивление и устойчивость к проникновению дождя по сравнению со сплошной стеной такая же толщина. Такая стена обычно застраивается внутренней и внешний лист в растягивающейся связке, оставляя пространство или полость 50 до 90 мм между листами. Два листа соединены металлом. стенные анкеры с интервалом 900 мм по горизонтали и 450 мм по вертикали, как показано на рисунке 5.20.
Рисунок 5.20 Кирпичная полость стена.
Бетонные блоки
Большая часть процедуры строительства бетонного блока стены обсуждались под заголовком «Фундаменты». Однако следует учитывать несколько дополнительных факторов.
Лучше всего работать с сухими, хорошо затвердевшими блоками, чтобы уменьшить усадка и растрескивание стены до минимума. Кроме quen (углы) несущие стены из бетонных блоков не следует приклеивать на стыках как в кирпичной, так и в каменной кладке.На стыках одна стена должен упираться в лицо друг друга, образуя вертикальный соединение, которое позволяет движение в стенах и, таким образом, контролирует растрескивание. Если боковая поддержка должна быть обеспечена пересекающаяся стена, два могут быть связаны между собой 5 мм x 30 мм металлические стяжки с разрезными концами, расположенные вертикально с интервалом около 1 200 мм. Компенсационные швы должны допускаться через определенные промежутки времени. не более 2 1/2 высоты стены. Два раздела стена должна быть соединена шпонками или стабилизирована перекрывающимся косяком блоки, как показано на рисунке 5.21. Стыки заделаны эластичная мастика, препятствующая проникновению воды в стену.
Рисунок 5.21 Боковая опора для стен на деформационных швах.
Многие стены в тропиках должны пропускать свет и воздух. действуя как солнечные выключатели. Чтобы удовлетворить эту потребность, перфорированные стены популярны и разработаны в различных узорах, некоторые загружают несущие, прочие легкой конструкции. Пустотные бетонные блоки могут использовать для этой цели с хорошим эффектом.По горизонтали или по вертикали плиты из железобетона (ж / б щели) могут использоваться в качестве солнцезащитные очки. Обычно они строятся под наклоном в чтобы получить максимальное укрытие от солнца.
Камни
Каменные блоки, добытые в карьерах, грубые или гладкие поверхность укладывается так же, как бетон или стабилизированный грунт блоки. Случайные стены из щебня строятся из камней случайного размера. и форму по мере их нахождения или добычи из карьера.Стены с использованием ламинированные разновидности камня, которые легко раскалываются прямые грани произвольного размера называются каменными стенами прямоугольной формы.
Рисунок 5.22 Блочные стены для вентиляция.
В этих стенах, как и во всей кладке, продольная связь достигается за счет перекрытия камней в соседних рядах, но количество перекрытий варьируется, потому что камни различаются по размеру. С стены из щебня, по сути, построены как две оболочки с Неровное пространство между плотно засыпанным щебнем (мелкие камни), поперечное соединение или стяжка обеспечивается использованием длинные камни жатки, известные как бондеры.Они распространяются не более чем на три четверти толщины стенки, чтобы избежать прохождения влага к внутренней поверхности стены, и по крайней мере один требуется на каждый метр поверхности стены. Крупные камни, разумно квадратной формы или примерно квадратной формы, используются для углов и косяки дверных и оконных проемов для получения повышенной прочности и стабильность в этих точках.
Случайные стены из щебня могут быть построены как стены без покрытия, в которых не предпринимаются попытки выложить камни горизонтальными рядами, или он может быть доставлен на курсы, в которых камни примерно выровнены с интервалами от 300 мм до 450 мм для формирования рядов различной длины. глубина с камнями корешка и косяк.
Грубая квадратная обработка камней дает эффект увеличения стабильность стены и повышение ее устойчивости к атмосферным воздействиям, поскольку камни плотнее ложатся друг на друга, стыки тоньше, и следовательно, в строительном растворе меньше усадка. Внешний несущие каменные стены должны быть толщиной не менее 300 мм для одноэтажные дома.
Проемы в кирпичных стенах
Проемы в кирпичных стенах необходимы для дверей и окон.Ширина проема, высота стены над проемом и прочность стены по обе стороны от проема является основным расчетные факторы. Они особенно важны там, где есть много отверстий, которые расположены в стене достаточно близко друг к другу.
Опора над проемом может быть перемычкой из дерева, стали или железобетон или арка из кирпича блоки, аналогичные используемым в прилегающей стене, или такие же. Перемычки создают только вертикальные нагрузки на прилегающие участки стены и сами подвергаются изгибающим и сдвигающим нагрузкам и сжимающие нагрузки в точках их опоры.Бетонные перемычки май быть отлитым на месте или предварительно изготовленным и установленным в качестве стена построена.
Рисунок 5.23. необработанные случайные стены из щебня.
Арки подвергаются одинаковым изгибающим и поперечным силам, но кроме того, существуют силы тяги как к арке, так и к примыкающие участки стены.
Определить нагрузки и выбрать древесину или установить стальную перемычку или спроектировать арматуру для бетонная перемычка.Однако конструкция арки всегда предполагает предположения, а затем проверка этих предположений.
Перемычки из дерева подходят для легких нагрузок и коротких пролеты. Древесина, подвергнутая давлению, обработанная консервантом, должна быть использовал.
Стальные уголки подходят для небольших отверстий и Таблица 5.8. представляет информацию о размерах, пролете и нагрузке для нескольких размеров. Для больших пролетов требуется универсальное сечение 1 – балки и специальный анализ конструкции.Стальные перемычки следует защищать от коррозии. с двумя или более слоями краски.
Таблица 5.8 Допускается Равномерно Распределенные нагрузки на стальные угловые перемычки (кг)
| Размер уголка, мм | Масса | Сейф нагрузка (кг) на длину пролета, (м) | ||||
| В x В x В | кг / м | 1 | 1.5 | 2 | 2,5 | 3 |
| 90 х 90 х 8 | 10,7 | 1830 | 1200 | 900 | 710 | |
| 125 х 90 х 8 | 13,0 | 3500 | 2350 | 1760 | 1420 | 1150 |
| 125 х 90 х 13 | 20.3 | 5530 | 3700 | 2760 | 2220 | 1850 |
| 125 х 102 х 10 | 18,3 | 6100 | 4060 | 3050 | 2440 | 2032 |
V = вертикальная ножка. H = горизонтальная полка, Th = толщина
Железобетон – очень распространенный материал, используемый для перемычки.
Бетонные перемычки изготавливаются из бетонной смеси 1: 2: 4 (с предел прочности 13,8 Н / мм) и обычно усилены один стальной стержень на каждые 100 мм ширины. Для достаточно коротких пролетов над дверными и оконными проемами, “выгибание” нормального хорошо скрепленные кирпичи или блоки из-за перекрытия блоков могут быть приняты во внимание. Можно предположить, что перемычка будет переносите только ту часть стены, которая окружена равносторонним треугольник с перемычкой в основании.Для широких пролетов угол 60 используется. Для пролетов до 3 м размеры перемычек и количество и размеры арматурных стержней, указанные в таблице 5.9, могут быть использовал. Стальные стержни должны быть покрыты бетоном толщиной 40 мм и опоры на стене должны быть предпочтительно 200 мм или не менее равной глубине перемычки. Перемычки с размахом больше чем 3м должны быть рассчитаны на конкретную ситуацию.
Длиннопролетные бетонные перемычки можно заливать на месте в опалубку возведен во главе проема.Однако сборное железобетонное обычно применяется там, где есть подходящие подъемные приспособления или кран. доступен для подъема перемычки на место или там, где она легкая Достаточно, чтобы его поставили на место двое мужчин.
Камень обычно используется в качестве облицовки для стали или бетона. перемычка. Если не армирован стержнями из мягкой стали или сеткой, кирпич перемычки подходят только для коротких пролетов до Im, но как камень, кирпич также используют как облицовку для стали или бетона. перемычка.
Арка – это подконструкция, используемая для перекрытия проема с компоненты меньше по размеру, чем ширина проема. Это состоит из блоков, которые взаимно поддерживают друг друга по проем между абатментами с каждой стороны. Он оказывает нисходящее и толчок наружу на опоры, которые должны быть достаточно сильными для обеспечения устойчивости арки.
Стыковка и указка
Перемычки железобетонные
Соединение и острие – термины, используемые для данной отделки. к вертикальным и горизонтальным швам в кладке, независимо от того, кирпичная, блочная или каменная стена строительство.Соединение – это отделка стыков в качестве работа продолжается. Покраска – это отделка стыков разгребание раствора на глубину примерно 20 мм и заполнение лица твердым цементным раствором, который может есть цветная добавка. Этот процесс может быть применен как к новым и старые постройки. Типичные примеры соединения и заострения: приведено на рисунке 5.25.
Рисунок 5.24 Отверстия в кладка стен.
| Размер Перемычка (мм) | Пролет | снизу Арматура | ||
| H | Вт | м | Количество стержней | Размер стержней |
| 150 | 200 | <2.0 | 2 | 10мм, круглый, деформированный |
| 200 | 200 | 2,0–2,5 | 2 | 10мм, круглый, деформированный |
| 200 | 200 | 2,5 – 3,0 | 2 | 16мм, круглый, деформированный |
| Разъемные перемычки с нагрузкой на стену Только | ||||
| 150 | 200 | <2.0 | 1 штука | 10мм, круглый, деформированный |
| 200 | 200 | 2,0–2,5 | 1 штука | 10мм, круглый, деформированный |
| 200 | 200 | 2,5 -3,0 | 1 штука | 16мм, круглый, деформированный |
Надежные подшипники на каждом конце, 200 мм
Рисунок 5.25 примеров стыковка и наведение.
Монолитные земляные стены
Конструкция земляной стены широко используется, потому что это недорогой строительный метод и материалы обычно в изобилии доступно на месте. Потому что земляная стена – единственный тип, люди могут себе позволить, стоит использовать методы, которые повысить его долговечность. Было обнаружено, что восприимчивость к дождевая эрозия и общая потеря устойчивости из-за высокой влага может быть устранена, если следовать несложным процедурам при выборе участка, строительстве и обслуживании здания.
Земляные стены в основном затронуты:
- эрозия из-за дождя, попадающего прямо на стены или брызгает с земли
- насыщение нижней части стены подъемом капиллярная вода
- землетрясение
Для одноэтажных домов с земляными стенами, конструктивные соображения менее важны из-за обычно используемой легкой кровли. А плохо спроектированное или построенное здание с земляными стенами может треснуть или передернуть, но внезапный обвал маловероятен.Долговечность, а не прочность, это основная проблема и сохранение стен сухими после строительство – основное решение. Способы стабилизации земли можно найти в главе 3.
Ключевые факторы повышения долговечности заземленных в составе строений:
- Выбор участка с адекватной канализацией и бесплатным дренирующая и не набухающая почва. Строительство земли здания на набухающих почвах и с ними могут привести к перекосы фундамента и стен в сезон дождей.
- Строительство фундаментной стены из блоков или камни в цементном или глиняном растворе. Основание сводит к минимуму последствия всех видов повреждений, вызванных водой к основанию стены.
- Стабилизация грунта, используемого для возведения стен. Стабилизированные земляные стены прочнее и устойчивее к влага, дождь и насекомые, особенно термиты. Избегать использование чистого чернохлопкового грунта для строительства потому что он сильно сжимается при высыхании, что приводит к растрескиванию и искажение.Глинистые почвы следует стабилизировать с помощью известь, потому что цемент показал плохие результаты для этих почвы.
- . Пропитка стабилизированной земляной стены водонепроницаемым покрытие.
- Штукатурка для защиты стены от воды и насекомых.
- Обеспечение адекватной ширины пещеры (свес крыши) для уменьшить эрозию стен. Однако ширина пещеры ограничена примерно 0,6 м или чуть больше из-за риска повреждения ветром.Включение веранд может пригодиться для защита стен.
- Уход за стеной и защитным покрытием.
- Обеспечение свободного испарения капиллярной влаги расчистка невысокой растительности у стен здания.
Материал грунт можно использовать по-разному для стен. строительство. Ручной – утрамбованный или машинный – уплотненный, стабилизированный почвенные блоки и высушенные на солнце глиняные (глинобитные) кирпичи используются в том же маннор как кладка из других материалов.Пока кладка конструкции уже были описаны, следует отметить что несколько худшие прочностные свойства и долговечность почвенные блоки и сырцовые кирпичи могут сделать их менее подходящими для некоторых типы строительства, например фундаментные стены. Особая осторожность должна при проектировании абатментов перемычки, чтобы гарантировать, что опорные напряжения выдерживаются в пределах допустимых.
Утрамбованные земляные стены
Способ возведения монолитной земляной стены – показано на рисунке 5.26. Использование грунта, смешанного с подходящим стабилизатор при правильном соотношении увеличит прочность и долговечность стены при условии, что стена должным образом вылечена. Однако самый важный фактор при построении утрамбованная земляная стена (с использованием стабилизированного или естественного грунта), возможно, тщательное уплотнение каждого слоя почвы по мере засыпки форма. опалубка должна быть достаточно прочной, чтобы противостоять боковому силы, действующие на почву во время этой операции.Расстояние между боковыми опорами (поперечными стенами и т. д.) не должно превышать 4 м. для утрамбованной земляной стены толщиной 300 мм.
Рисунок 5.26 Построение стена из утрамбованной земли
Обработайте фундаментную стену крышкой из песчано-цементного раствора. Опирается на горизонтальные кронштейны, проходящие через стену – a плесень построена. Кронштейны, а также протянуть провода вверху форма действует как связка и должна вместе с остальной частью плесень быть достаточно прочной, чтобы противостоять давлению земли во время трамбовки.Засыпьте землю тонкими слоями и тщательно уплотните перед нанесением следующего слоя. После форма была заполнена, ее вынимают и кладут на верхнюю часть уже готовая стена. Хотя форма имеет глубину всего от 500 до 700 мм, он будет перемещен несколько раз до достижения конечной высоты стена достигнута. Вырубка секций увеличит устойчивость стены. Достаточно большая рабочая сила, чтобы позволить несколько операций, таких как подготовка почвы, транспортировка, заполнение и таран, чтобы идти одновременно, обеспечит быстрое строительство.
Опалубка опалубка для стен из утрамбованного грунта
Фундаментная стена возводится на высоте 50 см от уровня земли. с камнями и известковым раствором. Армирование в стенах состоит из шестов или бамбука, которые устанавливают в траншее, когда камни кладется фундаментная стена. Панель земли в скольжении опалубку утрамбовывают слой за слоем до заполнения формы. В форма затем перемещается и запускается новая панель. Наконец верхний кольцевую балку привязывают к стержням арматуры.После завершения панели, стыки заделываются земляным раствором.
Грязевые и опорные стены
Строительство глиняных и столбовых стен осуществляется на заводе. конец Раздела Земля как Строительный Материал вместе с некоторыми другими виды глинобитных конструкций. Можно построить каркасную стену из столбов с толстой землей (25 см и более) или тонкой землей облицовка (10см и меньше). Пока земля блокирует стены и утрамбовывает землю стены обычно лучше глиняных и столбовых, это должно только использоваться, когда имеется запас прочных столбов и почва не подходит для изготовления блоков.Независимо от типа стены, основой всех улучшений является сохранение стены сухой после строительство.
Установить гидроизоляционный слой поверх фундаментной стены, около 50 см над уровнем земли. Изготовить заводские лестницы из зеленого цвета бамбуковые или деревянные шесты диаметром около 5 см. Улица деревянные или колотые бамбуковые рейки прибиваются или привязываются к лестницам по мере засыпки почвы последовательными слоями. Углы должны быть скреплены по диагонали.Устойчивость к землетрясениям повышается за счет закрепления фундаментный каркас к фундаменту с слоем извести или цемента грунтовый раствор.
Рисунок 5.27 Построение утрамбованный земной волк, скользящий по форме.
Рисунок 5.28 Построение стена из грязи и столбов.
Каркасные стены
Каркасные стены состоят из вертикальных деревянных элементов, называемых стойками. обрамлена между горизонтальными элементами сверху и снизу.Вершина элемент называется пластиной, а нижний элемент – подошвой или порогом. Используются простые стыковые соединения с гвоздями или гвоздями с носком. Таким образом, рама не очень жесткая и требует фиксации в чтобы обеспечить адекватную жесткость.
Для этой цели можно использовать диагональные скобы, но обычно метод, который быстрее и дешевле, – использовать строительную плиту или фанерные листы для придания конструкции жесткости. Шпильки обычно разнесены по центрам 400 или 600 мм, что связано с стандартная ширина 1200 мм для многих типов строительных плит, используемых для обшивка.Поскольку несущие элементы стен этого типа деревянные, не рекомендуется для термитников, особенно если обе стороны рамы обработаны или закрыты, что делает ее трудно обнаружить нападение термитов.
Каркасная конструкция из бруса должна подниматься вне контакта с почвенной влагой и защищен от термитов. Это достигается путем возведения его на фундаментную стену или фундаментную балку подъем на гидроизоляционный слой или на край бетонной плиты пол.В качестве основы для всей конструкции устанавливается подоконник и тщательно выровнен на гидроизоляционном полотне и надежно закреплен к фундаменту. Для поддержания эффективности гидроизоляции Конечно, он должен быть тщательно запломбирован на всех позициях болтов. А сплошной термитный щит должен быть установлен между гидроизоляция и подоконник, а также большая забота о герметизации вокруг отверстий, необходимых для анкерных болтов. Подоконник может быть 100 мм на 50 мм при креплении к бетонному основанию, но должен быть увеличена в ширину до 150 мм на кирпичной фундаментной стене.
Вместо бруса можно использовать бамбуковые или круглые деревянные шесты в качестве гвоздики, которые затем покрывают бамбуковыми циновками, тростниковыми циновками, травой, пальмовых листьев и т. д. Другой альтернативой является прикрепление циновок к шпильки, а затем оштукатурить маты цементной штукатуркой или другим материал. Некоторые конструкции этого типа имеют непродолжительный срок службы из-за поражение грибами и термитами. Их также сложно держать чистым и велик риск возгорания. Рисунок 5.30 дает краткую информация о бамбуковых стеновых панелях, которые могут быть изготовлены опытными мастера.
Рисунок 5.29 Каркасная стена строительство.
Облицовка
Облицовка и облицовка относятся к панелям или другим материалам, которые применяются в качестве наружных покрытий на стенах для защиты от элементы или для декоративных эффектов. Облицовка или обшивка особенно полезно для защиты и улучшения внешнего вида стен земляных сооружений, которые сами по себе могут быть размывается дождем и становится совершенно неприглядным.
Облицовки обычно имеют низкую конструктивную прочность или ее отсутствие и должен быть прикреплен к гладкой сплошной поверхности. Штукатурка или мелкая размер плитки являются примерами.
Облицовка отличается от облицовки тем, что в материалах есть структурная прочность и способны заполнить промежутки между рейки или планки обрешетки, на которые они крепятся. Различный черепица, плитка большего размера, вертикальная и горизонтальная древесина сайдинг и строительные плиты, такие как фанера и асбестоцемент доски подходят для облицовки.Профнастил стальной кровли также удовлетворительно. Облицовочные материалы должны уметь переносить ветровые нагрузки на конструкцию здания и для компенсации некоторых злоупотреблений от людей и животных. Расстояние между полосами обрешетки будет влияют на сопротивление оболочки этим силам.
Расстояние между черепицей и черепицей определяется длина агрегатов. Шаг для горизонтального деревянного сайдинга обычно должен быть около 400 мм, тогда как вертикальный деревянный сайдинг можно безопасно перебросить 600 мм.Фанера толщиной не менее 12 мм может мост 1200 мм от края до края, если поддерживается с интервалом 800 мм в другое направление.
Металлочерепица, используемая в качестве обшивки, может монтироваться на каркас полосы на расстоянии 600 мм друг от друга. Это обычное дело для производителей строительные материалы для предоставления инструкций по установке, включая частоту поддержки членов.
Содержание – Назад – Вперед
Как создаются монолитные купола – несколько фактов о современном строительстве
Иглу демонстрирует два наиболее важных преимущества таких конструкций, а именно их высокую прочность и отличные изоляционные свойства.Монолитные купола своей долговечностью в основном обязаны естественной прочности арки, а хорошая изоляция обеспечивается минимальной площадью сферического сечения.
Первым современным монолитным куполом стал каток, построенный в Прово (штат Юта, США) в 1963 году. Четыре года спустя он был перестроен и превращен в рынок. В таком виде первое монолитное сооружение функционировало до тех пор, пока оно не было снесено в 2006 году. В Польше наиболее узнаваемым купольным сооружением является так называемый «Космический город», в котором находится штаб-квартира Radio RMF FM.
В настоящее время монолитные купола используются в различных архитектурных проектах, как жилых, так и промышленных и служебных. Благодаря прочной конструкции монолитные конструкции могут использоваться в качестве складов в цементной, минеральной, энергетической, сельскохозяйственной и горнодобывающей промышленности. Они также часто используются в качестве так называемых зданий, ограничивающих радиацию на атомных электростанциях, благодаря своей структурной целостности.
Этапы возведения монолитного куполаСовременные монолитные купола в основном строятся по методу, разработанному в США тремя братьями: Дэвидом, Барри и Рэнди Саутом.Первый купол был построен в Шелли в Айдахо в апреле 1976 года. Возведение монолитных куполов этим методом основано на нескольких этапах, выполняемых в строго определенном порядке.
Первый этап – подготовка площадки под строительство. Для этого делается кольцевой бетонный фундамент, армированный стальной арматурой. Выложенные вне фундамента бруски служат для связи конструкции с дальнейшим армированием конструкции. Таким образом создается монолит с высокой конструкционной прочностью.
Второй этап строительства монолитного купола – это закрепление пневматического воздуха для образования кольца с последующей прокачкой воздуха до получения нужной формы.
На следующем этапе в игру вступают полиуретаны. Внутри купола нанесен слой пенополиуретана , который после затвердевания действует как изоляция для всей конструкции и обеспечивает дальнейшее усиление. На этом этапе вы можете использовать, среди прочего, готовые полиуретановые системы , доступные в предложении PCC Group, которые позволяют производить высококачественных изоляционных покрытий .Примером таких продуктов являются серии Ekoprodur и Crossin ®. Изоляционные полиуретановые системы обеспечивают отличную тепло- и звукоизоляцию благодаря полужесткому пеноматериалу и жесткому пенопласту . Эти типы изоляции имеют очень широкий спектр применения. Применяются для фундаментов, полов, внутренних и внешних стен, крыш и чердаков. Благодаря использованию продуктов Crossin® можно добиться отличных коэффициентов теплопроводности.Помимо готовых полиуретановых систем , продуктовый портфель группы PCC также включает полуфабрикаты, такие как полиэфирполиолы Rokopol® , антипирены (серия Roflam ), а также используемые компатибилизаторы и эмульгаторы. производить монтажные пены OCF высокого качества. Все эти химические продукты широко используются в современном строительстве.
Четвертый этап строительства монолитных куполов – это монтаж арматурных стержней на ранее нанесенный пенополиуретан с использованием специально разработанной системы бортов.Маленькие купола требуют стержней небольшого диаметра с большим шагом. Для более крупных конструкций необходимо использовать более толстые бруски, расположенные на меньших расстояниях.
Последний этап строительства монолитных куполов заключается в напылении бетона на арматуру, сделанную на предыдущем этапе. Этот слой обычно не превышает 8 см и полностью покрывает стальные стержни, создавая тонкостенный монолитный каркас. После высыхания бетон образует чрезвычайно жесткую и прочную конструкцию.Для улучшения свойств напыляемого бетона часто используются специальные модифицирующие добавки, такие как, например, продукция серии Rofluid ( M, H, P, T ). Добавки для бетона этого типа используются в качестве очень эффективных замедлителей сцепления с бетоном , которые замедляют схватывание бетонной смеси. Кроме того, благодаря своей химической структуре и низкому содержанию хлоридов Rofluids не вызывают коррозию стальной арматуры.
Преимущества и недостатки монолитных куполовМонолитные купола имеют ряд преимуществ.Прежде всего, они отличаются отличными несущими и изоляционными свойствами, в первую очередь благодаря своей форме. Их уникальный дизайн дает им возможность противостоять даже самым серьезным стихийным бедствиям, таким как штормы, торнадо и даже землетрясения. Поэтому монолитные здания особенно популярны в регионах мира, наиболее подверженных стихийным бедствиям.
Отсутствие необходимости в установке несущих стен в монолитных конструкциях позволяет удобно расположить планировку помещений.Кроме того, благодаря уникальному дизайну отпадает необходимость в крыше. Это приводит к значительному снижению инвестиционных затрат, а также к экономии времени строительства. Большая экономия достигается также за счет использования меньшего количества строительных материалов, чем при стандартном строительстве.
Одним из недостатков и трудностей, возникающих при возведении монолитных куполов, является необходимость привлечения опытных специалистов со специализированным оборудованием. Это может повлечь за собой относительно высокую стоимость выполнения такой конструкции.Кроме того, криволинейные поверхности внутри купола требуют корректировки всего внутреннего дизайна и меблировки. Для оптимального использования поверхностей, особенно труднодоступных частей, обычно необходимо изготавливать мебель на заказ. Первоначальный внешний вид этого типа зданий также может быть недостатком, особенно в районах с традиционными зданиями, где монолитные купола были бы слишком самобытными.
Плита на уклоне в сравнении с опорой и балкой – Abry Brothers
В жилищном строительстве есть два основных типа фундаментов.
Плита класса
Первый и, пожалуй, самый распространенный тип фундамента – фундамент перекрытия. Плита на уклоне – это, по сути, плита из бетона, залитая в форму, которая опирается на землю. Существует два основных типа фундаментов из плит: монолитные фундаменты и фундаменты стеновых стволов (или фундаменты цепных стен – в зависимости от того, из какой части страны вы живете). Основное различие между этими двумя типами плитных фундаментов заключается в способе заливки бетона.Монолитный фундамент заливается сразу, бесшовная плита толщиной от 4 до 12 дюймов. Монолитные плиты одинаковой толщины часто используются для внутренних двориков или навесов для автомобилей. Для более надежных строительных проектов (например, дома) в фундамент встраиваются бетонные балки. Фундамент стволовой стены заливают секциями. Сначала заливается внешний край (около 12 дюймов шириной и чуть глубже линии наледи). После того, как ствол стены затвердеет, поверх нее заливается 4-6-дюймовая плита бетона, чтобы завершить фундамент для плиты.
Пирс и балка
Второй тип фундамента – это фундамент в виде опор и балок. Фундамент из опор и балок состоит из опор или коротких колонн и балок, перекрывающих расстояние между опорами. Исторически сложилось так, что опоры строились так, чтобы опираться на землю с небольшой опорой или без нее. Во многом именно поэтому старые дома в Новом Орлеане и его окрестностях склонны тонуть. Строительные методы эволюционировали, и сегодня опоры обычно располагаются на деревянных, металлических или бетонных сваях.Опоры могут быть сделаны из дерева, металла или бетона и часто имеют декоративную отделку.
Какой у вас тип фундамента?
Если у вас есть подвал или подвал под вашим домом, у вас есть фундамент в виде опор и балок. Если вы поднимаетесь по лестнице, чтобы попасть внутрь своего дома, скорее всего, у вас есть дом в стиле пирса и балки. И наоборот, если вы не видите пустоту под своим домом и у вас нет лестницы, по которой можно пройти, вы, скорее всего, живете в доме с плитой на фундаментном фундаменте.
«Если у вас есть дополнительные вопросы о плитах на типах фундаментов или фундаментах типа опор и балок, обращайтесь к нам. Мы обслуживаем территорию Большого Нового Орлеана почти 175 лет. Мы гордимся своей способностью ответить на ваши вопросы. Мы с нетерпением ждем вашего ответа ». – Грег Абри
Монолитное определение | Монолитная плита | Монолитная опора | Монолитный фундамент | Преимущества и недостатки монолитного плитного фундамента
Монолитное определениеМонолитное строительство – это процедура, при которой с использованием однородной смеси конструкция представляет собой монолитно построенную .Это сооружение, построенное из единственного материала, собранное и выкопанное.
Обе монолитные плиты , стены , , , лестницы , вместе с дверью , и оконные проемы, отливаются по методу монолита . Процедура на месте с использованием специально созданной, более простой в использовании модульной опалубки , изготовленной из алюминия , пластмассового композита с меньшими затратами рабочей силы и оборудования.
Система сопротивления боковым и гравитационным нагрузкам в этой системе содержит железобетонные стены и плиты из железобетона .Основные вертикальные структурные элементы представляют собой железобетонные конструкционные стены с двойной функцией , выдерживающие как силу тяжести , так и боковые нагрузки. ( Стандартный размер кирпича )
Монолитная опора Монолитная опора
Монолитный фундамент дает только одну заливку , так что фундамент построен для замены нижних колонтитулов на подошву , сделанную из бетонного пола с более толстыми секциями под конструктивными элементами и с обеих сторон периметр .
Это значительно на более гладкий и позволяет снизить себестоимость производства на , потому что плита сливается вместе сразу. Возвести монолитный фундамент очень просто. Вероятно, сделать каждое из них за один день.
Монолитная конструкция имеет толщину всего 12 дюймов (1 фут). Благодаря благоприятному усилению, это основа для стоимости, цены, и дизайна предпочтения.Это тоже считается выражением.
Что такое монолитная плита?
Монолитные плиты – это фундаментные конструкции, построенные с помощью одной бетонной заливки, обычно содержащие бетонную плиту толщиной 4 дюйма с утолщенными внутренними секциями под несущими стенами и всегда с утолщениями по краям периметр .
Монолитная плитаВ конструкции бетонных плит монолитная плита – это фраза, используемая для обозначения конструктивных компонентов бетона , таких как опоры , плиты, фундаменты, опорные балки, опоры, колонны и , которые заливаются одновременно.
Не просто монолитная цементная плита применима к бетонной плите на земле, но она аналогичным образом соответствует подвесной плите . Использование опорных материалов позволяет производить заливку бетонных плит монолитно с бетонными балками и колоннами , в то время как подвесная бетонная плита находится над уровнем земли .
Строительство монолитной плиты происходит значительно быстрее, а затраты на рабочую силу низкие, так как в этой плите бетон заливается сразу.Монолитная конструкция имеет решающее значение для минимизации толщины стены, минимизации ширины основания и минимизации сейсмического эффекта . ( МДФ )
При использовании в подходящих условиях монолитная плита может быть такой же прочной, как плиты стебель-стена . Мы использовали опалубку в монолитной раме , что дает правильную ориентацию , гладкую поверхность и качественную работу.Это увеличивает скорость строительства по сравнению с традиционными подходами за счет использования опалубки .
Подробнее: Что такое плавающий фундамент | Пригодность плавающего фундамента
Монолитный фундамент для плиты Монолитно-плитный фундамент
Монолитный означает одинарную заливку , что подчеркивает основную точку отличия от этого типа фундамента – это заливка за один раз.Тот факт, что он разливается за один раз, ускоряет процедуру, что позволяет снизить затраты на рабочую силу.
Заливаемая бетонная плита имеет большую толщину снаружи, чтобы поддерживать несущие стены , и нет никаких нижних колонтитулов вокруг внешней стороны.
Монолитный фундамент хорошо подходит для ровной поверхности. Если поверхность земли не является плоской, то количество заполняющей грязи используется для выравнивания с землей; со временем это может привести к трудностям с растрескиванием , если грунт не уплотнен должным образом.
Обычно бетонная поверхность заливается монолитно или независимо от фундамента . Чтобы избежать растрескивания из-за оседания, выбирается арматура или волокнистая сетка . На его строительство уходит меньше времени и труда, чем на традиционный фундамент . ( Водопроводная труба)
Под линией промерзания , пол опоры должен простираться ниже.
Преимущества монолитно-плитного фундамента
Преимущества монолитной плиты
1.
Скорость строительстваМонолитные плиты возвести очень просто. Добавьте периферийную траншею и рассыпьте гравий до тех пор, пока не утрамбует почву (или не удалите верхний слой почвы ).
В самой узкой части (например, в середине дома) бетон должен быть толщиной 4 дюйма и в основном выдержит несколько дней для полного высыхания. Это значительно быстрее , чем любой другой метод строительства фундаментов .
2.
УстойчивостьС точки зрения простоты , монолитный фундамент из плит при правильной конструкции прослужит почти 50 лет . Из-за отсутствия сложных компонентов, нет ничего плохого в самой плите.
В бетоне нет швов, , и если вспомогательные и анкерные болты установлены надлежащим образом, у вас будет прочный фундамент , способный выдержать большой вес.
3.
Плохое обслуживаниеЧтобы поддерживать его в приличной форме , вам не нужно ничего делать по месяцам , если вы регулярно проводите осмотр, чтобы убедиться, что нет пробелов в фундамент .
4.
ЭнергоэффективностьНет никакого пространства между землей и домом для монолитного фундамента из плит, , что означает, что вам не нужно тратить слишком много энергии на нагрев воздуха под ним в вашем доме .Даже для подвала или подвального помещения существует постоянная трата энергии.
Это говорит о том, что монолитная плита основания не только дешевле в краткосрочной перспективе, но и в долгосрочной перспективе, она сэкономит ваши деньги.
Недостатки монолитно-плитного фундамента
У монолитной плиты несколько недостатков,
1.
Нет доступаПодвальное помещение или подвал дает доступ к полу, что гарантирует, что в этом конкретном пространстве можно установить водопровод , а также электрическую панель и проводку.
Точно так же, если что-то пойдет не так с монолитным основанием плиты , вы не сможете добиться этого, чтобы исправить сложность.
2.
Дорогой ремонтВ то время как вещи с фундаментом из монолитных плит редко выходят из строя, когда треснет , это может быть очень дорого .
В основном, вам потребуется использовать методы , которые могут стоить тысяч долларов , такие как поддомкрачивание бурового раствора или базовое поддомкрачивание.
3.
Плохая погодаДом только что приподнят на 6 дюймов или около того от уровня земли л с бетонными перекрытиями плитами , что гарантирует, что остальная часть здания уязвима для наводнений . Это значительная уязвимость в определенных частях мира.
4.
Цена перепродажи домаМонолитная плита в некоторых случаях может снизить стоимость вашего дома.Если у вас есть старая монолитная плита основания , потенциальный потребитель обнаружит, что может потребоваться дорогостоящий ремонт .
Если вы продолжите проектировать его самостоятельно, покупатель может не знать, его результаты.
Как сформировать монолитную плиту? Формовка монолитной плиты
Удовлетворительная площадка , планирование и , усиление бетона – важные критерии для строительства монолитной плиты .
1.
ПочваЭто, безусловно, комфортный выбор , где бетон смешан в настоящее время и поддерживается достаточным количеством стали, чтобы он не расслаивался. За исключением затяжки стыков , нет швов или холодных стыков . Использование сборных опор не предусмотрено.
Очень важно уплотнить почву под плитой и исключить органических веществ . Если верхний слой почвы является очищенным от , то он, как правило, должным образом цементирует ненарушенный грунт под ними .
Значительный для дренаж для грунт скважина . Очень важно учесть потоки воды , необходимо подготовить соответствующее перенаправление и , чтобы оно не подрезало плиту.
2.
Траншеи по периметруУтолщенный периметр монолитной плиты образуется траншеей по окружности плиты. В теплую погоду траншея может быть просто фута глубиной и футов шириной .
Траншея должна иметь глубину 2 фута в регионах, где проникают морозы и может быть изолирована, чтобы предотвратить образование морозного пучения под плитой.
3.
ГравийПлотный гравий рассыпается под плитой и в траншеях на глубину 3,5 дюйма от до 4 или более дюймов.
Хорошо дренирующий гравий с заполнителями от 0,38 дюймов до 0.75 дюймов – отличный выбор.
4.
АрматураАрматура имеет размер примерно 6 дюймов на 6 дюймов. Плетеная проволочная сетка (6 ″ x 6 ″) используется в обычной установке, которая размещается на арматурных стульях так, чтобы ее можно было закрепить рядом с промежуточным звеном завершено плита .
К армируют утолщенный периметр , обычно указываются 4 стержня .Там, в самой нижней части траншеи, 2 последовательных стержня могут быть размещены рядом друг с другом, начиная с одного стержня в верхней части.
Арматура закладывается в траншеи и многократно скрепляется.
5.
БетонВ большинстве случаев бетон определяется как 3000 фунтов на квадратный дюйм , а также как минимум толщиной 4 дюйма.
Минимум 6 дюймов над уровнем пола должен быть в конце плиты.Земля, которая его окружает, должна иметь уклон от плиты.
6.
Анкерные болтыАнкерные болты с 0,5-дюймовыми болтами , самые нижние пластины стен формации прикреплены к плите . На концах, которые помещены на в бетон, когда он уже влажный, эти болты обычно имеют J-образную или L-образную форму.
Различные стороны анкерных болтов имеют резьбу, так что верхняя сторона настенной пластины может быть затянута против гаек .Обычно анкерные болты , находятся на расстоянии 6 футов и от промежуточного звена.
Какие проблемы возникают с монолитным фундаментом?
Несмотря на удобство и простоту установки монолитного фундамента , могут возникнуть проблемы, которые могут поставить под угрозу фундамент. Фундамент может потребовать дорогостоящего ремонта , что указывает на то, что было бы неплохо использовать обычный фундамент .
Типичные трудностей , обнаруженные с монолитным фундаментом: трещин, в различных жилых районах, поддерживаются фундаментом.
Трещины в фундаменте являются огромным регионом концерна . Когда в фундаменте появляются трещины, фундамент можно утеплить по холодным стыкам (стена встречается с плитой) . Маленькие отверстия облегчают проникновение воды, влаги и насекомых в дом.
Проблемы с повышением влажности на в почве или неправильная конструкция могут повредить фундамент. Это может привести к тому, что столешниц , этажей, и стен в доме станут неровными.Движение в фундаменте может вести к дверям , и окнам , которые прилипают и ломаются в стенах из гипсокартона .
Когда не следует использовать монолитно-плитный фундамент для строительства
Подрядчикам следует избегать использования фундаментов из монолитных плит (монополярных) в следующих ситуациях:
- Дома с уклоном могут привести к дорогостоящим расходам из-за необходимого количества бетона .
- Дома с несколькими грязными отверстиями под домом приводят к трещинам в бетоне.
- Строительная компания не может построить фундамент из монолитных плит в зоне затопления из-за положений кодекса.
Правильная подготовка площадки под фундамент из монолитных плит
Почва под плитой не должна содержать органических веществ. Почва должна быть уплотнена (удаление верхнего слоя почвы) и хорошо дренирована .
Применение норм определяет тип и расположение арматуры в этом фундаменте типа . Наиболее часто используются монолитные плиты и четырех арматурных стержней. Арматурный стержень – это два металлических стержня , которые легко изгибаются и располагаются бок о бок с перекрытием , – в траншеях и связаны проволокой.
Канавка по периферии плиты – это то, что образует утолщенный край. Чиновники Строительного кодекса указывают глубину и ширину траншеи. Эта траншея может быть шириной 1 фут, и глубиной 1 фут в теплую погоду, или шириной 1 фут и глубиной 2 фута в условиях , которые испытывают морозное пучение.
Подробнее: Фонд «Что такое хорошо» | Строительство фундамента скважины
Монолитное строительство
- Монолитная система строительства с алюминиевой опалубкой представляет собой быстрое и устойчивое к стихийным бедствиям сооружение, происходящее развитие, которое обеспечивает экономически эффективных и быстро массированных жилых домов.
- Монолитная архитектура – это механизм , с помощью которого одновременно размещаются плиты и стены.
- В этой конкретной системе свежая цементная смесь помещается в легкий алюминий , образуя устройство с арматурными стержнями, необходимыми для требуемой прочности .
- Процедура относительно проста, так как стены и плиты отливаются за один раз.Это желательно для многоэтажного дома конструкции , что позволяет быстро повсеместно возводить .
- Позволяя лучше использовать время, ресурсы, и строительных материалов , таких как цемент, и сталь, эта технология дает более быстрые альтернативы быстро растущему жилищному дефициту в городских районах.
- Когда мы переходим к массовому жилищному строительству , это дает быстрое развитие с оптимальными затратами и временем, особенно для экономически более слабых участков и классов с низким доходом, которых много без домов.
- Это очень полезная технология, которая одновременно упрощает бетонирование всех элементов , таких как крыша , стены и т. Д., В результате чего получается чрезвычайно прочная в конструктивном отношении монолитная конструкция .
- Техника включает необученных и полуквалифицированных (ручных) рабочих и, следовательно, не требует использования дорогостоящей строительной техники .
- Таким образом, рентабельно, Модульные конструкции в популярных жилых помещениях Разработки открывают новые возможности для повторного использования опалубки, создавая относительно рентабельную технологию .
- Опалубочный материал ( либо алюминий, либо HDPE ) является экологически чистым и исключает использование критически важной древесины из природных ресурсов. Это дает начало устройству eco-safe .
- Эта система обеспечивает выдающееся управление качеством всей структуры в соответствии с BIS и различными международными стандартами.
- Нет требований для плитки, блоков , штукатурки и .
- Надстройка и фундамент Расходы на фундамент могут быть уменьшены без ущерба для прочности из-за уменьшения статической нагрузки примерно на 50%.
- Поведение коробчатой формы почти обеспечивает чрезвычайно высокую конструктивную прочность , что делает его устойчивым к землетрясениям и ветру или циклонам к вертикальным и горизонтальным силам.
- Прекрасная завершенная поверхность исключает дорогостоящую штукатурку , а укрепляет поверхность , которая является относительно полностью водонепроницаемой.
- Из-за уменьшенной толщины стен, для предусмотренной зоны цоколя доступно больше коврового пространства .
- Монолитная бетонная конструкция ведет к точной подготовке и гарантирует регулировку консистенции.
Когда монолитно-плитный фундамент – лучший вариант?
В некоторых погодных условиях монолитный фундамент из плит – достойный выбор. Это в основном во влажном и умеренном климате.
1.
Влажный климатВ условиях влажного климата монолитная плита сможет выдерживать влажность двумя основными способами.
Во-первых, , это материал, который не подвергается коррозии после намокания; В отличие от , опоры и балочного фундамента сделаны из дерева, которое относительно плохо переносит влажность .
Во-вторых, , поскольку между землей и домом нет отверстия , влага не может проникнуть.Это снижает не только структурных повреждений , но и аналогичное повреждение от плесени (что является обычным явлением для ползунков).
Подробнее: какой фундамент для дома самый прочный
2.
Мягкий климатВ очень холодную погоду , , где промерзание грунта является обычным явлением, подвал является полезной особенностью дома (на самом деле это , установленный некоторыми строительными нормами ).Однако, если вы не живете в районе, где часто замерзает , нет аналогичного императивного для подвала.
Как упоминалось выше, в мягком климате, можно установить монолитный фундамент плит перекрытия для повышения общей энергоэффективности. В очень жаркую или пустынную погоду , пространство для обхода может быть лучшим, в морозном климате это может быть подвал, но при погодных условиях , которые попадают между двумя (например, большинство из США ).
Часто задаваемые вопросы
Монолитный фундамент?
Монолитная плита Фундамент – это фундаментные конструкции, построенные с помощью единой бетонной заливки, обычно содержащие бетонную плиту толщиной 4 дюйма с утолщенными внутренними секциями под несущими стенами и всегда утолщенными по краям периметра.
Что лучше – монолитная плита?
Да, монолитная плита – хороший выбор , потому что она значительно более гладкая и снижает стоимость производства, потому что плита сразу же заливается вместе.Его строительство происходит значительно быстрее, а затраты на рабочую силу низкие.
Каковы преимущества монолитного фундаментного перекрытия
? Монолитный фундамент из плит имеет следующие преимущества,
1. Монолитные плиты очень просто построить.
2. С точки зрения простоты монолитный фундамент из плит при правильном строительстве прослужит почти 50 лет.
3. Чтобы поддерживать его в приличном состоянии, вам не нужно ничего делать ежемесячно, если вы регулярно проводите осмотр.
4.В самой узкой части (например, в середине дома) бетон должен иметь толщину 4 дюйма, и на полное высыхание потребуется несколько дней.
Какой толщины должна быть монолитная плита?
Монолитная плита имеет толщину всего от 12 дюймов от (1 фут) до 18 дюймов. Это фундаментные конструкции, построенные с помощью одной бетонной заливки, обычно содержащие бетонную плиту толщиной 4 дюйма с утолщенными внутренними секциями под несущими стенами и всегда утолщенными по краям периметра.
Монолитные опоры
Монолитная опора дает только одну заливку , так что фундамент построен для замены нижних колонтитулов на подошву , сделанную из бетонного пола с более толстыми секциями под конструктивными элементами и с обеих сторон периметр .
Минус применения такой опалубки в том, что площадь готового жилья ограничена 50-60 кв. метрами, поэтому такую новостройку сложно отнести к категории элитных.
Каркас из арматуры обеспечивает готовому объекту дополнительную прочность и стойкость.
После опалубки демонтируются, а процесс строительства приближается к финишу.



с.)
67